
| Objekt-ID: | 66927 |
| Lage: | 01900 Großröhrsdorf |
| Immobilienart: | Halle/Lager (Invest.) |
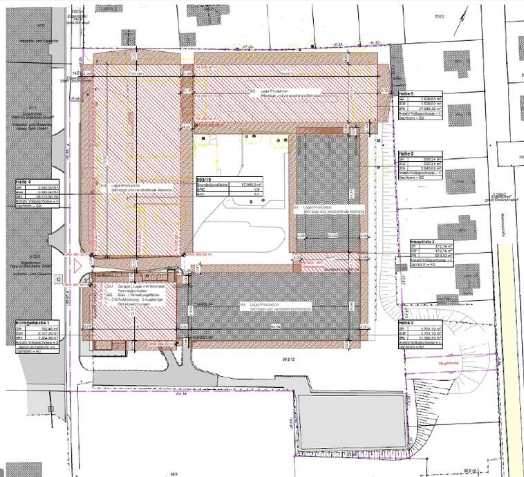
| Grundstücksfläche: | ca. 17.083 m² |
| Gesamtfläche: | ca. 5.815 m² |
| Baujahr: | 1968 |
| Kaufpreis: | 1.350.000,00 € |
| Kaufpreis/m²: | 232,16 € |
| Käuferprovision: | 7,14 % |
| Mieteinnahmen (Soll): | 350.000,00 € |









