5.100 m² beheizte Hallenfläche in Coswig bei Dresden zur Miete

Gebäudeansicht - Immobilienmakler Dresden, Chemnitz, Leipzig

Eckdaten

Objekt-ID:66790
Lage:01640 Coswig
Immobilienart:Prod./ Lager / Gewerbehallen
Lagerfläche: ca. 1.000 m²
Gesamtfläche: ca. 6.100 m²
Bezugstermin:ab sofort
Nettokaltmiete/m²/Monat:5,00 €
Mieterprovision:1,19 MM

Lage

Dieses Gewerbeareal befindet sich in Coswig, im Ortsteil Neusörnewitz, innerhalb eines Gewerbegebietes.

Neusörnewitz befindet sich im nordwestlichen Teil des Elbtalkessels im Nordwesten des Coswiger Stadtgebiets. Der Ortsteil Neusörnewitz dehnt sich hierbei über den nordöstlichen Teil der Gemarkung Sörnewitz und den Norden der Gemarkung Brockwitz aus. Geprägt wird der Ortsteil durch ausgedehnte Industrieflächen und Gewerbegebiete und Wohnsiedlungen. Mit dem Haltepunkt Neusörnewitz besitzt der Ortsteil einen Anschluss an das Dresdner S-Bahn-Netz. Von hier aus gelangt man in ca. 30 Minuten in das Stadtzentrum der Stadt Dresden.

Coswig ist eine Große Kreisstadt im sächsischen Landkreis Meißen und liegt im dicht besiedelten Elbtal zwischen Meißen im Nordwesten und Radebeul bzw. Dresden im Südosten. Angrenzende Gemeinden im Landkreis Meißen sind Klipphausen, die Stadt Meißen, Moritzburg, die Stadt Radebeul und Weinböhla. Zu Coswig gehören neben der Kernstadt die Ortsteile Kötitz, Neucoswig, Brockwitz , Sörnewitz und Neusörnewitz.

Durch Coswig verläuft die Straßenbahnlinie 4 der Dresdner Verkehrsbetriebe, die sechs Haltestellen in der Stadt bedient. Die Fahrtzeit von Coswig ins Dresdner Stadtzentrum beträgt mit der Straßenbahn rund 45 Minuten.

Sonstiges

Haftungsausschluss: Trotz sorgfältiger Bearbeitung von Daten, Bildern und Informationen übernehmen wir keine Haftung für die Richtigkeit der Angaben, ebenso wenig für die Lieferfähigkeit des Angebotes bei Vermietung bzw. Verkauf. Bitte beachten Sie hierzu unsere allgemeinen Geschäftsbedingungen die Sie unter www.der-immo-tip.de einsehen können.

Beschreibung

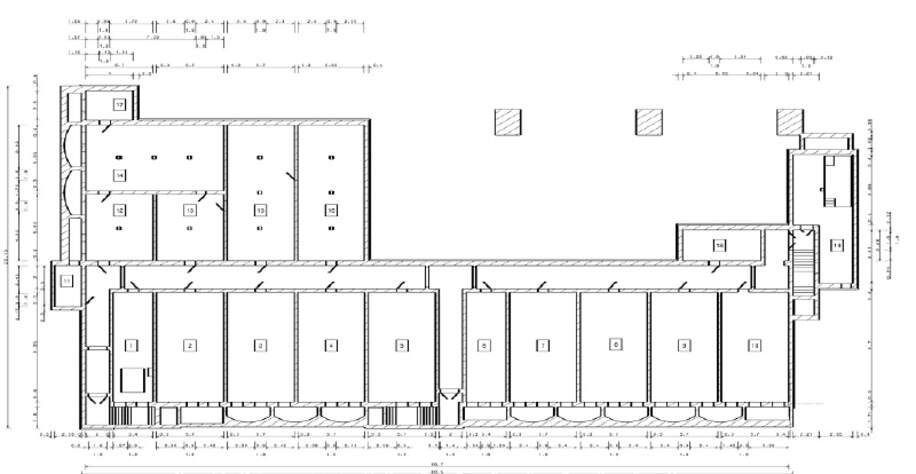
Zur Vermietung steht eine ca. 6.100 m² große Hallenfläche, die sich ideal für Produktion und Lager eignet. Die Halle verfügt über ca. 5.100 m² ebenerdig befahrbare Fläche. Im EG sind u.a. auch Büros- und Sanitärflächen vorhanden. Das UG/Keller hat darüber hinaus ca. 1.000 m² Fläche. Hier befinden sich vorrangig Medien- und Lagerräume, welche ebenfalls von außen zugänglich sind.

Neben dem Gebäude befindet sich ein kleines Bürogebäude (Flachbau) mit ca. 583 m² Fläche. Dieses könnte bei zusätzlichem Bürobedarf ebenfalls angemietet werden.

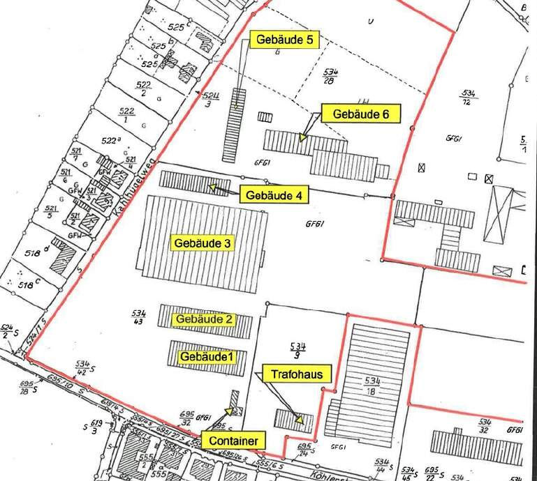
In dem Areal gibt es zusätzlich noch weitere Hallen-, Lager- und Gewerbeflächen, die zur Vermietung stehen.

Bei Interesse stimmen wir gern einen Besichtigungstermin ab.

Ausstattungsbeschreibung

* Außenwände massiv
* Dach: Beton
* beheizt (Gas)
* Starkstrom
* ebenerdig befahrbar
* teilunterkellert
* Rolltor, Sektionaltor, Schleuse
* Büros vorhanden
* Sanitär vorhanden

Kontakt

Robert Haupt
Semperstraße 1
01069 Dresden

Telefon:0351 433 13 0
Telefax:0351 433 13 18

Objekt anfragen

Gebäudeansicht - Immobilienmakler Dresden, Chemnitz, Leipzig
Vogelperspektive
Innenansicht
Innenansicht
Innenansicht
Innenansicht
Innenansicht
Innenansicht
Innenansicht
Schleuse
Werkstatt
Büroflächen
Büro
Sanitärbereich
Grundriss Erdgeschoss
Grundriss Kellergeschoss
Arealübersicht