Erstbezug | Moderne & barrierefreie Bürofläche in Dresden-Striesen zur Miete!

Visualisierung - Immobilienmakler Dresden, Chemnitz, Leipzig

Eckdaten

Objekt-ID:66755
Lage:01277 Dresden
Immobilienart:Büro
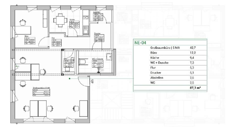
Bürofläche: ca. 87 m²
Gesamtfläche: ca. 87 m²
Bezugstermin:1. Quartal 2026
Nettokaltmiete/m²/Monat:16,00 €
Nebenkosten/m²/Monat:2,00 €

Lage

Die Immobilie befindet sich im Stadtteil Dresden Blasewitz.

Blasewitz befindet sich östlich der Dresdner Innenstadt und ist geprägt von historischen Landhäusern, Villen, den Elbwiesen und Parks wie beispielsweise der Waldpark.

Das Wahrzeichen von Blasewitz ist das sogenannte "Blaue Wunder" - eine bekannte, in hellem Blau gehaltene Stahlbrücke,verbindet Blasewitz mit dem rechts der Elbe gelegenen Stadtteil Loschwitz. Neben diesem wichtigen Verkehrsknotenpunkt, bieten Bus- und Straßenbahnlinien, sowie der gut ausgebaute Elberadweg für eine optimale Anbindung Blasewitzens an das Stadtzentrum und die nahe Umgebung. Der Blick auf die drei Elbschlösser Schloss Eckberg, Villa Stockhausen, Schloss Albrechtsberg ist ein weiteres Wahrzeichen.

Gemütliche Biergärten an der Elbe, Gastronomie und Einkaufsmöglichkeiten wie die Schillergalerie am Schillerplatz, viele kleine Geschäfte, ein Ärztehaus, Schulen, Kindergärten bieten eine hervorragende Infrastruktur.

Sonstiges

Haftungsausschluss: Trotz sorgfältiger Bearbeitung von Daten, Bildern und Informationen übernehmen wir keine Haftung für die Richtigkeit der Angaben, ebenso wenig für die Lieferfähigkeit des Angebotes bei Vermietung bzw. Verkauf. Bitte beachten Sie hierzu unsere allgemeinen Geschäftsbedingungen die Sie unter www.der-immo-tip.de einsehen können.

Beschreibung

Zur Vermietung steht ein ca. 87 m² großes Büro, dass sich im Dachgeschoss eines Büroneubaus befindet. Die Fertigstellung ist für das 1. Quartal 2026 geplant.

Bei Interesse stellen wir Ihnen gern weiterführende Unterlagen zur Verfügung.

Ausstattungsbeschreibung

* Barrierefreiheit
* Einbauküche möglich
* Aufzug
* Zertifizierung DGNB (gold) / EG40 Standard (geringe Energiekosten)
* Passive Kühlung im Sommer (Erdwärme) mit Nutzung PV
* Fußbodenheizung mit Erdwärme
* Vorinstallation Elektro mit Bodentanks und Beleuchtungen
* Barrierefreie Bäder mit Dusche & WC
* Gemeinsame Gartennutzung
* Fahrradunterstand überdacht und abschließbar
* Car-Sharing direkt am Haus

Kontakt

Patrick Pflügner
Semperstraße 1
01069 Dresden

Telefon:0351433130
Telefax:0351 433 13 18

Objekt anfragen

Visualisierung - Immobilienmakler Dresden, Chemnitz, Leipzig
Visualisierung
Visualisierung Treppenhaus
Visualisierung
Lageplan
Grundriss mit Flächenberechnung