Lager/ Werkstatt in Dresden Löbtau | ca. 336 m² ab sofort zur Miete
Eckdaten
Objekt-ID:
66750
Lage:
01159 Dresden
Immobilienart:
Produktion
Gesamtfläche:
ca. 336 m²
Baujahr:
1980
Bezugstermin:
ab sofort
Lage
Die Immobilie befindet sich in Dresden Löbtau.
Löbtau-Süd befindet sich südöstlich des Stadtzentrums von Dresden. Es wird im Norden von Löbtau-Nord, im Süden vom Stadtteil Nausslitz und im Osten vom Fluss Weißeritz begrenzt. Die Trennung zwischen Löbtau-Nord und Löbtau-Süd verläuft entlang der Kesselsdorfer Straße, welche zugleich die wichtigste Einkaufs- und Geschäftsstraße beider Stadtteile ist.
Mit zwei Straßenbahn- und 14 Bushaltestellen ist Löbtau-Süd gut an das öffentliche Verkehrsnetz angebunden. Drei Kindertagesstätten und Horteinrichtungen sowie jeweils eine Grund-, Mittel- und Berufsschule stehen als Bildungseinrichtungen direkt vor Ort zur Verfügung. Zur Freizeitgestaltung bieten sich Möglichkeiten in den zahlreichen Parkanlagen, im Kino, im Fitnessstudio an der Kesselsdorfer Straße und drei anderen Sporthallen.
Sonstiges
Haftungsausschluss: Trotz sorgfältiger Bearbeitung von Daten, Bildern und Informationen übernehmen wir keine Haftung für die Richtigkeit der Angaben, ebenso wenig für die Lieferfähigkeit des Angebotes bei Vermietung bzw. Verkauf. Bitte beachten Sie hierzu unsere allgemeinen Geschäftsbedingungen die Sie unter www.der-immo-tip.de einsehen können.
Energieeffizienz
Energieausweistyp:
Bedarfsausweis
Denkmalschutz:
Nein
Beschreibung
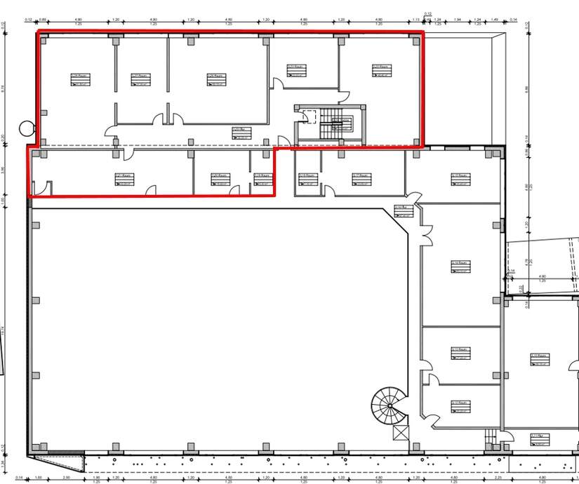
Zur Vermietung steht eine ca. 336 m² große Gewerbefläche, die sich im 1. Obergeschoss einer Lager- und Produktionshalle mit einer Gesamtfläche von ca. 2.050 m² befindet. Die Mietfläche bietet sich für verschiedenen Nutzungen an (Werkstatt, Lager,....)
Bei Interesse stimmen wir gern einen Besichtigungstermin ab.
Ausstattungsbeschreibung
* Duschen
* Sanitärbereich wird noch nachträglich eingebaut
* Glasfaser im Gebäude anliegend
* großes Faltfenster für Anlieferung
Kontakt
Robert Haupt Semperstraße 1 01069 Dresden E-Mail:haupt@der-immo-tip.de Telefon:0049351433130 Telefax:00493514331318
Objekt anfragen
Diese Webseite verwendet Cookies. Mit der Nutzung unserer Dienste erklären Sie sich mit der Verwendung von Cookies einverstanden. Weitere Informationen.