Produktionsfläche - Büro und Logistik in Zwickau zur MIETE

Parkplatz - Immobilienmakler Dresden, Chemnitz, Leipzig
Hallenhöhe Keller Rampe

Eckdaten

Objekt-ID:66099_04
Lage:08058 Zwickau / Mosel
Immobilienart:Halle
Grundstücksfläche: ca. 10.000 m²
Nutzfläche: ca. 5.000 m²
Lagerfläche: ca. 5.000 m²
Gesamtfläche: ca. 5.000 m²
Bezugstermin:sofort
Nettokaltmiete/m²/Monat:2,95 €

Lage

Zwickau ist noch heute die Automobilstadt Nr. 1 in Ostdeutschland. Mit der Volkswagen Sachsen GmbH hat das größte produzierende Unternehmen der neuen Länder seinen Sitz in Zwickau. Die Zulieferfirmen fertigen Produkte, die von A wie Abgassysteme über S wie Sitzelemente bis Z wie zukunftsweisende Antriebstechnologien reichen. Elektroantriebe, Batteriefertigung und Wasserstoff sind in der Region Zwickau die Zukunftsstrategie. Dass der Focus nicht allein auf der KfZ- und Zulieferbranche liegt, stellen die Unternehmen anderer Wirtschaftszweige unter Beweis, etwa der Chemie- und Pharmabranche, des Maschinenbaus, sowie Firmen aus Handel, Handwerk und Dienstleistung. Zu Gute kommen den Unternehmern dabei die zentrale Lage, die gute Verkehrsinfrastruktur oder eine vielfältige Bildungs- und Forschungslandschaft. Bei alledem setzt die Stadt Zwickau auf die regionale Zusammenarbeit, etwa in der Wirtschaftsregion Chemnitz-Zwickau oder Metropolregion Halle/ Leipzig - Sachsendreieck.

Sonstiges

Haftungsausschluss: Trotz sorgfältiger Bearbeitung von Daten, Bildern und Informationen übernehmen wir keine Haftung für die Richtigkeit der Angaben, ebenso wenig für die Lieferfähigkeit des Angebotes bei Vermietung bzw. Verkauf. Bitte beachten Sie hierzu unsere allgemeinen Geschäftsbedingungen die Sie unter www.der-immo-tip.de einsehen können.

Beschreibung

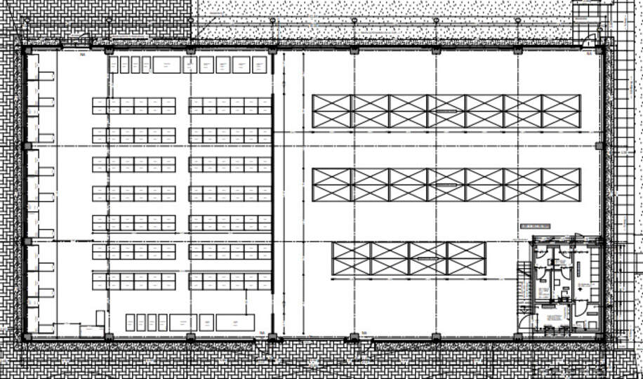
Die Halle mit ca. 5000m² wurde in den 90er Jahren errichtet. Sie ist als Produktionsfläche mit Verwaltung und für Logistik sehr gut geeignet. Eine langfristige Anmietung wird gewünscht. Die Halle steht kurzfristig zur Verfügung. Die Hallenhöhe beträgt ca. 7,50 m. Es gibt eine Option zur Erweiterung. Bitte fordern Sie ihr vollständiges Exposé vorzugsweise per E-Mail an. hoffmann@der-immo-tip.de

Ausstattungsbeschreibung

- 2 Tore
- 2 Rampen

Kontakt

Michael Hoffmann
Jakobikirchplatz 2
01069 Dresden

Telefon:004937123871060

Objekt anfragen

Parkplatz - Immobilienmakler Dresden, Chemnitz, Leipzig
Ansicht
Innen
Halle
Halle mit Hochregal z.B.
Tor zum Gelände
Innenbeispiel
Grundriss
Pausenraum
Umkleide
WC
Waschraum
Halle
Grundriss Nachbarhalle