Ca. 3.760 m² Bürofläche in Leipzig zur Miete | Zentrumsnah

Rückansicht - Immobilienmakler Dresden, Chemnitz, Leipzig
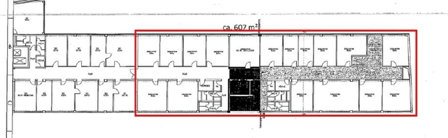
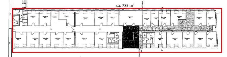
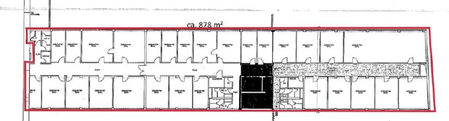
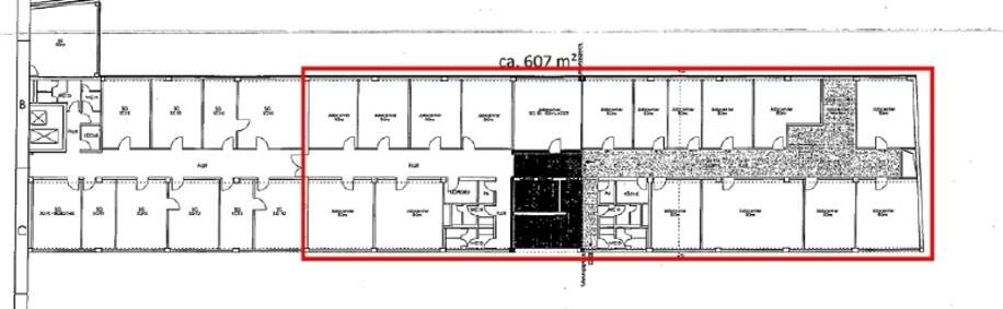
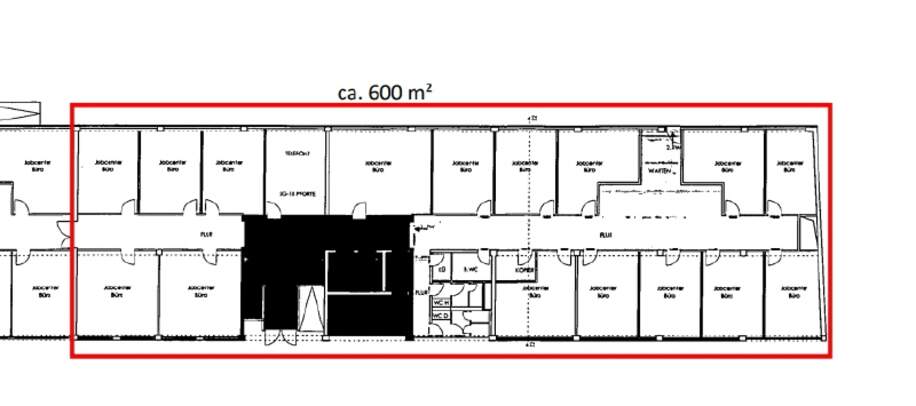
Räume veränderbar

Eckdaten

Objekt-ID:63787
Lage:04105 Leipzig
Immobilienart:Büro
Etage:1
Bürofläche: ca. 3.760 m²
Gesamtfläche: ca. 3.760 m²
Bezugstermin:in Abstimmung
Nettokaltmiete/m²/Monat:10,00 €
Nebenkosten/m²/Monat:4,00 €
Stellplatzmiete:30 €

Lage

Die Immobilie befindet sich in Leipzig im Stadtteil Zentrum Nord, fußläufig vom Hauptbahnhof entfernt.

Direkt vor dem Objekt gibt es Haltepunkte des ÖPNV. Die Autobahnen A9, A14 sowie A38 sind über die Bundesstraße B2 in wenigen Minuten erreichbar. Die Leipziger Innenstadt erreicht man in ca. 10 Gehminuten. Einkaufsmöglichkeiten sowie Geschäfte des täglichen Bedarfs befinden sich in unmittelbarer Umgebung.

Sonstiges

Hinweis: Fehlende Angaben zum Energieausweis gemäß Energiesparverordnung 2014 ( EnEV ) begründen sich durch Nichtangabepflicht bei Denkmalschutzobjekten, Grundstücken, nichtbeheizbaren Immobilien oder wurden bisher trotz Aufforderung gegenüber dem Auftraggeber nicht zur Verfügung gestellt.

Haftungsausschluss: Trotz sorgfältiger Bearbeitung von Daten, Bildern und Informationen übernehmen wir keine Haftung für die Richtigkeit der Angaben, ebenso wenig für die Lieferfähigkeit des Angebotes bei Vermietung bzw. Verkauf. Bitte beachten Sie hierzu unsere allgemeinen Geschäftsbedingungen die Sie unter www.der-immo-tip.de einsehen können.

Beschreibung

Zur Vermietung stehen bis zu 3.760 m² Bürofläche, die sich innerhalb einer Gewerbeimmobilie befinden und über mehrere Etagen erstrecken. Die Immobilie besteht aus zwei Bauteilen (Wohnen & Gewerbe).

Im Innenhof stehen den Besuchern PKW Stellplätze zur Verfügung. PKW Stellplätze für Mitarbeiter sowie Lagerflächen können im Untergeschoss angemietet werden.

Bei Interesse erhalten Sie gern weiterführende Informationen/ Unterlagen.

Ausstattungsbeschreibung

- Aufzug (barrierefrei)
- helle Büroräume
- Teeküche mit EBK
- Kabelkanäle
- DSL-Anschluss
- antistatischer Teppichbelag
- Sonnenschutz/Schallschutz
- Isolierverglasung
- Tiefgarage/ Stellplätze im Freien
- kostenlose Gästeparkplätze im Innenhof
- Variable Raumgestaltung/Umbau nach Vorstellung des Mieters

Kontakt

Robert Haupt
Semperstraße 1
01069 Dresden

Telefon:0351 433 13 0
Telefax:0351 433 13 18

Objekt anfragen

Rückansicht - Immobilienmakler Dresden, Chemnitz, Leipzig
Gebäudeansicht
Gebäudeansicht
Eingangsbereich
Hauseingang
Aufzug
Treppenhaus
Flurbereich
Flurbereich
Impressionen Büro
Impressionen Büro
Impressionen Büro
Sanitärbereich
Sanitärbereich
Grundriss Erdgeschoss
Grundriss 1 Obergeschoss
Grundriss 2Obergeschoss
Grundriss 3 Obergeschoss
Grundriss 4 Obergeschoss