707 m² vielseitige Gewerbefläche (O) für Werkstatt/ Büro/ Lager in Ohorn zur Miete

Gebäudeansicht - Immobilienmakler Dresden, Chemnitz, Leipzig

Eckdaten

Objekt-ID:62530_09
Lage:01896 Ohorn
Immobilienart:Produktion
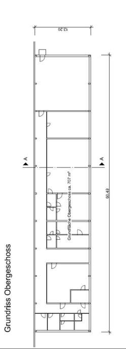
Gesamtfläche: ca. 707 m²
Bezugstermin:ab sofort
Nettokaltmiete/m²/Monat:4,00 €
Mieterprovision:2,38 Nettokaltmieten inkl. MwSt.

Lage

Der Hallenkomplex verfügt über ein TOP-Anbindung an die Autobahn A4! Über die S56 gelangt man in unter 1 Minuten auf die Ab- und Auffahrt Ohorn, welche sich lediglich ca. 500 m vom Gelände entfernt befindet.

Die wichtigstens Entfernungen im Überblick:
- Abfahrt Flughafen Dresden: ca. 16 Minuten | 25 Km
- Abfahrt Dresden-Hellerau: ca. 18 Minuten | 28 Km
- Abfahrt Dresden-Neustadt: ca. 19 Minuten | 31 Km
- Abfahrt Dresden-Altstadt: ca. 22 Minuten | 35 Km
- Dresden Zentrum: 32 Minuten | 35 Km
- Mit dem ÖPNV/S-Bahn/ Bus: ca. 1h 15 Min.

Ohorn liegt im Landkreis Bautzen im Bundesland Sachsen, im östlichen Teil Deutschlands. Die Gemeinde befindet sich etwa 30 Kilometer nordwestlich von Dresden, der Landeshauptstadt von Sachsen.

Sonstiges

Hinweis: Fehlende Angaben zum Energieausweis gemäß Energiesparverordnung 2014 ( EnEV ) begründen sich durch Nichtangabepflicht bei Denkmalschutzobjekten, Grundstücken, nichtbeheizbaren Immobilien oder wurden bisher trotz Aufforderung gegenüber dem Auftraggeber nicht zur Verfügung gestellt.

Haftungsausschluss: Trotz sorgfältiger Bearbeitung von Daten, Bildern und Informationen übernehmen wir keine Haftung für die Richtigkeit der Angaben, ebenso wenig für die Lieferfähigkeit des Angebotes bei Vermietung bzw. Verkauf. Bitte beachten Sie hierzu unsere allgemeinen Geschäftsbedingungen die Sie unter www.der-immo-tip.de einsehen können.

Beschreibung

Zur Vermietung steht eine ca. 707 m² große Gewerbefläche, nutzbar für Lager, Werkstatt und Büro, die sich auf einem ca. 28.000 m² großes Gewerbegrundstück befinden. Das Areal besteht aus ca. 13.000 m² Lager- und Produktionsgebäude .

Die Mietfläche erstreckt sich über Erdgeschoss mit ca. 29 m² und dem Obergeschoss mit ca. 707 m².

Der Mietzins ist abhängig von dem Renovierungsbedarf und beträgt zwischen 4,00 und 8,50 €/m².

Neben der o.g. Gewerbefläche gibt es noch folgende vakante Mietflächen, die bei Interesse zusätzlich angemietet werden können:

Gebäude A - Verwaltungsgebäude - ca. 505 m²
Gebäude B - Lager/Werkstatt mit Büro - ca. 1.095 m²
Gebäide F - Halle für Produktion, Lager, Werkstatt - ca. 1.427 m² (mit Brückenkran)
Gebäude G - Halle für Produktion, Lager, Werkstatt - ca. 600 m²
Gebäude H - Halle für Produktion, Lager, Werkstatt - ca. 225 m²
Gebäude O - Werkstatt, Büro, Lager - ca. 1.414 m²
Gebäude S - Lagerhalle - ca. 310 m²

Es stehen Freiflächen mit bis zu ca. 20.000 m² auf dem Areal zur Anmietung zur Verfügung.

Bei Interesse erhalten Sie gern weiterführende Informationen bzw. stimmen wir einen gemeinsamen Besichtigungstermin ab.

Ausstattungsbeschreibung

* Elektrik, Heizung, Wasser, WC, Waschbecken, Dusche

Kontakt

Robert Haupt
Semperstraße 1
01069 Dresden

Telefon:0049351433130

Objekt anfragen

Gebäudeansicht - Immobilienmakler Dresden, Chemnitz, Leipzig
Büro
Impressionen
Impressionen
Freifläch
Umgebungsplan
Übersichtskarte
Grundriss
Grundriss