Moderner Gewerbekomplex unweit der City und Autobahn in Dresden zum Kauf!

Rückansicht Halle - Immobilienmakler Dresden, Chemnitz, Leipzig

Eckdaten

Objekt-ID:58631
Lage:01189 Dresden
Immobilienart:Halle
Grundstücksfläche: ca. 3.530 m²
Bürofläche: ca. 353 m²
Gesamtfläche: ca. 1.742 m²
Baujahr:2002
Bezugstermin:ab sofort
Kaufpreis:3.350.000,00 €
Kaufpreis/m²:1.923,08 €
Käuferprovision:7,14 % inkl. MwSt.
Sonstige Stellplätze:14

Lage

Die Liegenschaft befindet sich im Zentrums- und Autobahnnahen Gewerbegebiet Coschütz/Gittersee.

Namenhafte Großfirmen wie z.B. Robotron, igefa, Dr. Quendt sind hier angesiedelt. Die Nähe zur Autobahnauffahrt A17 Prag/ Chemnitz/ Leizpzig sowie zur Innenstadt spricht für sich:

Entfernung Zentrum Dresden: 6 Kilometer/ 5-10 minuten
Entfernung A17: 6 Kilometer/ 10 Minuten

Sonstiges

Haftungsausschluss: Trotz sorgfältiger Bearbeitung von Daten, Bildern und Informationen übernehmen wir keine Haftung für die Richtigkeit der Angaben, ebenso wenig für die Lieferfähigkeit des Angebotes bei Vermietung bzw. Verkauf. Bitte beachten Sie hierzu unsere allgemeinen Geschäftsbedingungen die Sie unter www.der-immo-tip.de einsehen können.

Beschreibung

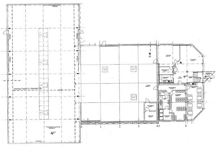
Zum Verkauf steht eine Lager-/ Produktionshalle mit ca. 1.389 m² sowie ein zweistöckiger Kopfbau mit Büros mit einer Fläche von ca. 353 m². Die Betriebsstätte befindet sich auf einem ca. 3.530 m² großen Gewerbegrundstück. Errichtet wurde der erste Gebäudeteil in 1996. In 2002 fand die Erweiterung der Produktionshalle sowie des Bürogebäudes statt.

Ausstattungsbeschreibung

- Kranbahn (2t, Hackenhöhe 5 m)
- Ebenerdig befahrbar
- Sektionaltore (4m 4,20 m)
- Beheizbar
- Teilweise klimatisiert
- Deckenheizung + Heizgebläse
- Büroflächen im Kopfbau
- Oberlicht
- Parkplatz vor und hinter dem Gebäude

Kontakt

Robert Haupt
Semperstraße 1
01069 Dresden

Telefon:0049351433130

Objekt anfragen

Rückansicht Halle - Immobilienmakler Dresden, Chemnitz, Leipzig
Innenansicht
Innenansicht
Anlieferung
Seitenansicht Halle
Grundriss EG
Flurplan