FREIFLÄCHE von ca. 10.000 m² im Dresdner OSTEN zur MIETE

Vogelperspektive Freifläche - Immobilienmakler Dresden, Chemnitz, Leipzig

Eckdaten

Objekt-ID:52196_06
Lage:01259 Dresden
Immobilienart:Gewerbe
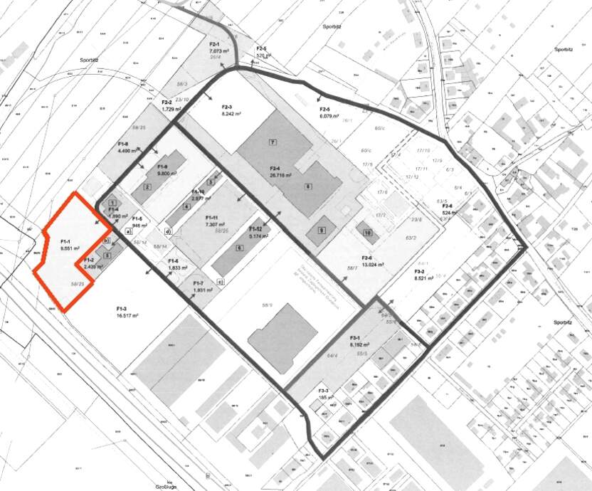
Grundstücksfläche: ca. 9.551 m²
Gesamtfläche: ca. 9.551 m²
Bezugstermin:ab sofort

Lage

Das Gewerbeanwesen befindet sich in Dresden Sporbitz, nur ca. 5 Autominuten von der Autobahn A 17 entfernt.

Der Stadtteil liegt im Südosten der sächsischen Landeshauptstadt Dresden, ca. 10 Kilometer des Dresdner Stadtzentrums entfernt. Benachbarte Gemarkungen sind Meußlitz im Nordosten, Großzschachwitz im Norden und Großluga im Westen. Im Südwesten und Südosten grenzen entlang der Stadtaußengrenze Dresdens die Heidenauer Stadtteile Gommern und Mögeln an.

Sonstiges

Haftungsausschluss: Trotz sorgfältiger Bearbeitung von Daten, Bildern und Informationen übernehmen wir keine Haftung für die Richtigkeit der Angaben, ebenso wenig für die Lieferfähigkeit des Angebotes bei Vermietung bzw. Verkauf. Bitte beachten Sie hierzu unsere allgemeinen Geschäftsbedingungen die Sie unter www.der-immo-tip.de einsehen können.

Beschreibung

Zur Vermietung steht eine ca. 9.551 m² große Freifläche, die sich innerhalb eines Gewerbeareals befindet.

Auf dem Gelände befinden sich eine Vielzahl von Hallenflächen zur gewerblichen Nutzung und großflächige versiegenlten Freiflächen.

Aktuell können Freiflächen zwischen ca. 1.000 m² und 16.500 m² angemietet werden und Hallenflächen zwischen 500 m² und 10.000 m².

Bei Interesse erhalten Sie gern weiterführende Informationen.

Kontakt

Robert Haupt
Semperstraße 1
01069 Dresden

Telefon:0049351433130

Objekt anfragen

Vogelperspektive Freifläche - Immobilienmakler Dresden, Chemnitz, Leipzig
Lageplan Freifläche