Micropolis | ca. 400 m² Bürofläche im Dresnder Norden zur Miete
Eckdaten
Objekt-ID:
16775_04
Lage:
01109 Dresden
Immobilienart:
Bürofläche
Etage:
1
Bürofläche:
ca. 339 m²
Gesamtfläche:
ca. 399 m²
Bezugstermin:
in Abstimmung
Nettokaltmiete/m²/Monat:
13,50 €
Nebenkosten/m²/Monat:
1.596,00 €
Lage
Die Immobilie befindet sich in Dresden Klotzsche
Klotzsche ist ein Stadtteil von Dresden im gleichnamigen Ortsamtsbereich und liegt etwa sieben Kilometer nördlich der Innenstadt am Rande der Dresdner Heide.
In Klotzsche befindet sich der Flughafen Dresden mit Anschluss an die Autobahnen A 4 und A 13. Die größten Industrieansiedlungen sind die Halbleiterwerke von Infineon, ZMD und die Elbe Flugzeugwerke der Airbus Group am Flughafen.
Wichtigste Verkehrsader des Ortes ist traditionell die heute Königsbrücker Landstraße genannte Verbindungsstraße nach Osten.
Auf dem Areal stehen PKW-Stellplätze zur Verfügung.
Verkehsanbindung:
Flughafen Dresden - ca. 4 Autominute
Haltepunkt ÖPNV - ca. 100 m
Autobahn - ca. 3,8 km.
Sonstiges
Haftungsausschluss: Trotz sorgfältiger Bearbeitung von Daten, Bildern und Informationen übernehmen wir keine Haftung für die Richtigkeit der Angaben, ebenso wenig für die Lieferfähigkeit des Angebotes bei Vermietung bzw. Verkauf. Bitte beachten Sie hierzu unsere allgemeinen Geschäftsbedingungen die Sie unter www.der-immo-tip.de einsehen können.
Beschreibung
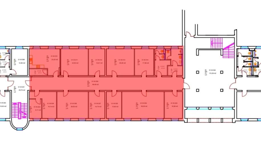
Zur Vermietung steht eine ca. 400 m²große Bürofläche, die sich im Obergeschoss eines Bürohauses innerhalb des MicroPolis Business Park Dresden befindet. Das Areal erstreckt sich über ca. 190.000 m² und bietet einen vielseitigen Mix aus Gewerbeimmobilien. Das Ensemble besteht aus sanierten Altbauten sowie Neubauimmobilien.
Die Aufteilung der Mietfläche von ca. 400 m² ist wie folgt:
ca. 339 m² HNF
ca. 60 m² Gemeinschaftsflächen (Treppenhaus, Foyer)
Bei Interesse erhalten Sie gern weiterführende Informationen/ Unterlagen.
Patrick Pflügner Semperstraße 1 01069 Dresden E-Mail:pfluegner@der-immo-tip.de Telefon:0049351433130
Objekt anfragen
Diese Webseite verwendet Cookies. Mit der Nutzung unserer Dienste erklären Sie sich mit der Verwendung von Cookies einverstanden. Weitere Informationen.