Bürofläche - ca. 73 m² - in Dresden Loschwitz zur Miete!

Innenansicht - Immobilienmakler Dresden, Chemnitz, Leipzig

Eckdaten

Objekt-ID:12425_01
Lage:01324 Dresden
Immobilienart:Bürofläche
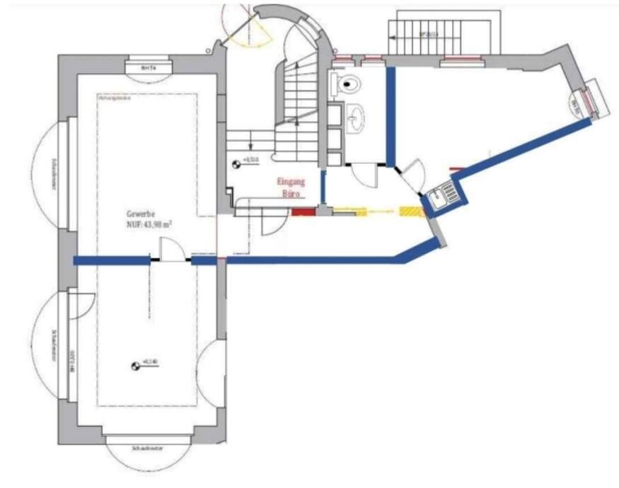
Bürofläche: ca. 73 m²
Gesamtfläche: ca. 73 m²
Bezugstermin:in Abstimmung
Nettokaltmiete/m²/Monat:12,00 €
Nebenkosten/m²/Monat:4,00 €

Lage

Die Immobilie befindet sich in Dresden Loschwitz an der Stadtteilgrenze zum Weißen Hirsch, direkt an einer frequentierten Ein- und Ausfallstraße.

Loschwitz liegt im Nordosten der Stadt Dresden und ist einer der Dresdner Villenstadtteile, der sich entlang des rechten, nordöstlichen Ufers der Elbe erstreckt. Angrenzende Stadtteile sind die Radeberger Vorstadt, der Weiße Hirsch, Bühlau, Rochwitz, Wachwitz sowie die Dresdner Heide. Auf der gegenüberliegenden Elbseite liegt Blasewitz, mit dem Loschwitz durch die Loschwitzer Brücke, das Blaue Wunder, verbunden ist.

In Loschwitz befinden sich die Dresdner Bergbahnen, zum einen die Schwebebahn, die älteste Bergschwebebahn der Welt und die Standseilbahn, an deren Bergstation sich der Aussichtspunkt Luisenhof befindet.

Der Körnerplatz wird von den Linien 83 und 61 bedient. Über das Blaue Wunder, nur eine Haltestelle weiter, sind Sie schnell am Verkehrsknotenpunkt Schillerplatz (Straßenbahnlinien 6 und 12, Buslinien 83, 61 und 85).

Sonstiges

Haftungsausschluss: Trotz sorgfältiger Bearbeitung von Daten, Bildern und Informationen übernehmen wir keine Haftung für die Richtigkeit der Angaben, ebenso wenig für die Lieferfähigkeit des Angebotes bei Vermietung bzw. Verkauf. Bitte beachten Sie hierzu unsere allgemeinen Geschäftsbedingungen die Sie unter www.der-immo-tip.de einsehen können.

Beschreibung

Zur Vermietung steht eine vielflältig nutzbare Gewerbefläche von ca. 73 m² im Erdgeschoss einer repräsentativen und modernisierten Villa im Stadtteil Dresden Weißer Hirsch. Die Fläche bietet sich für vielfältige Nutzungen an, wie beispielsweise als Büro, Ladenfläche oder für Dienstleistungen.

Eine auffällige Außenwerbung ist nicht gewünscht.

Bei Interesse vereinbaren wir gerne einen Besichtigungstermin mit Ihnen.

Ausstattungsbeschreibung

* markante Ecklage
* große Schaufensterfront (keine Außenwerbung möglich)
* Sanitärbereich
* Internetanschluss für 30 €/ Monat ( über Vermieter)
* helles Raumklima
* Fliesenbelag
* moderne Ausstattung

Kontakt

Patrick Pflügner
Semperstraße 1
01069 Dresden

Telefon:0049351433130

Objekt anfragen

Innenansicht - Immobilienmakler Dresden, Chemnitz, Leipzig
Innenansicht
Innenansicht
Innenansicht
Innenansicht
Sanitärbereich
Innenansicht
Treppenhaus
Außenansicht
Außenansicht
Außenansicht
Grundriss