Top Anbindung | ca. 1.000 m² Lager mit Büro in Autobahnnähe in Dresden zur Miete

Innenansicht - Immobilienmakler Dresden, Chemnitz, Leipzig
Rampe Freiparkplatz

Eckdaten

Objekt-ID:100147
Lage:01139 Dresden
Immobilienart:Lagerflaechen
Lagerfläche: ca. 828 m²
Bürofläche: ca. 183 m²
Gesamtfläche: ca. 1.011 m²
Baujahr:1953
Bezugstermin:in Abstimmung
Nettokaltmiete/m²/Monat:4,50 €
Freiplätze:10
Stellplatzmiete:25 €

Lage

* befindet sich im Stadtteil Dresden Übigau
* sehr gute Anbindung an ÖPNV
* sehr gute Verkehrsanbindung (Autobahnnah, Flughafen, innerhalb weniger Autominuten im Stadtzentrum,..)
* Anmietung eines PKW-Stellplatzes möglich
* Einkaufsmöglichkeiten nur wenige Autominuten entfernt
* weitere Gewerbe im direkten Umfeld angesiedelt
* öffentliche Kantine im direkten Umfeld

Sonstiges

Hinweis: Fehlende Angaben zum Energieausweis gemäß Energiesparverordnung 2014 ( EnEV ) begründen sich durch Nichtangabepflicht bei Denkmalschutzobjekten, Grundstücken, nichtbeheizbaren Immobilien oder wurden bisher trotz Aufforderung gegenüber dem Auftraggeber nicht zur Verfügung gestellt.

Haftungsausschluss: Trotz sorgfältiger Bearbeitung von Daten, Bildern und Informationen übernehmen wir keine Haftung für die Richtigkeit der Angaben, ebenso wenig für die Lieferfähigkeit des Angebotes bei Vermietung bzw. Verkauf. Bitte beachten Sie hierzu unsere allgemeinen Geschäftsbedingungen die Sie unter www.der-immo-tip.de einsehen können.

Beschreibung

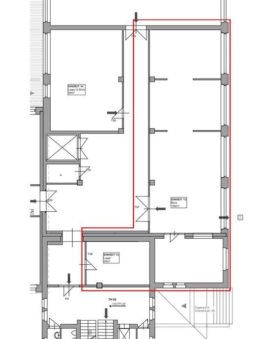
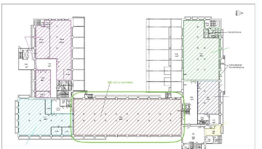
Zur Vermietung stehen ca. 828 m² Lagerfläche sowie ca. 183 m² Bürofläche, die sich innerhalb eines bekannten Gewerbeareals befinden.

Die Flächenaufteilung ist wie folgt:

ca. 800 m² Lager im EG
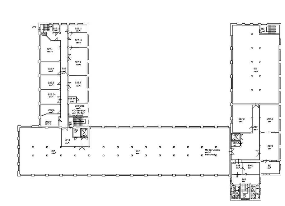
ca. 183 m² Büro und ca. 28 m² im 1.OG

Im Innenhof gibt es 2 Laderampen für die Anlieferung mittels LKW.

Der Kaltmietzins für die Lagerfläche im EG beträgt 4,50 €/m², für das Büro 10,50 €/m² und das Lager im 1.OG 6,50 €/m².

Es stehen bis zu 10 PKW Stellpätze á 25 €/ Stellplatz im Monat zur Verfügung.

Bei Interesse stimmen wir gern einen Besichtigungstermin ab.

Ausstattungsbeschreibung

- Lager im EG -

* elektrisches Tor
* LKW Laderampe vorhanden
* Stahlbetonfußboden
* Beleuchtung
* Elektrik & Steckdosen
* Heizung
* Sanitärräume vorhanden
* Bodenbelastung 800 kg/m²
* 4 m Geschosshöhe
* Traglast Lastenaufzug 2.000 kg

- Büro im 1.OG -

* Industrieboden
* teilweise Akustikelemente
* teilweise LED-Beleuchtung
* Brüstungskanäle für Medienversorgung
* Cat7 Datenverkabelung
* Glasfaseranschluss
* innenliegender Blendschutz
* große Fenster zur Nordseite
* dreifach verglaste Fenster
* hochwertige Einbauküche (Übernahme vom Vormieter möglich)
* Personenaufzug
* Wachschutz
* Möglichkeit zur Außenwerbung
* Ausreichend Parkplätze

Die angegebenen Nebenkosten enthalten bereits den Strom.

Kontakt

Patrick Pflügner
Semperstraße 1
01069 Dresden

Telefon:0049351433130

Objekt anfragen

Innenansicht - Immobilienmakler Dresden, Chemnitz, Leipzig
Innenansicht
Impression
überdachter Anlieferungsbereich
Innenansicht Büro
Büro
Büro
Büro
_Büro
Impressionen
Lager 1.OG
Grundriss EG
Grundriss 1.OG
Etagengrundriss 1.OG
Büro
Anlieferung
Außenansicht