Zentrale Lage in Dresden ++ 2.985 m² Bürofläche in Innenstadtnähe mieten ++
Eckdaten
| Objekt-ID: | 64596 |
| Lage: | 01159 Dresden |
| Immobilienart: | Bürofläche |
| Bürofläche: | ca. 2.985 m² |
| Gesamtfläche: | ca. 2.985 m² |
| Bezugstermin: | in Abstimmung |
| Nettokaltmiete/m²/Monat: | 16,00 € |
| Sonstige Stellplätze: | 20 |
Beschreibung
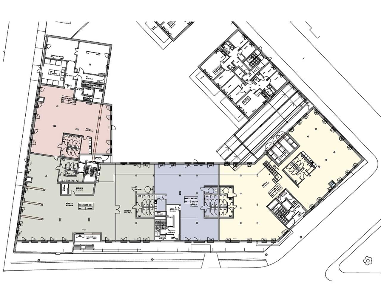
Zur Vermietung stehen bis zu 2.985 m² Bürofläche, die sich innerhalb eines sechsgeschossigen Neubauprojektes befinden werden. In dem modernen Wohnquartier werden neben Wohnungen auch flexible Büro- und Gewerbeflächen entstehen. Die Fertigstellung ist im 1. Quartal 2025 vorgesehen.
Die Aufteilung wird wie folgt sein:
Erdgeschoss mit ca. 1.805 m²
1.Obergeschoss mit ca. 1.180 m²
Die verschiedenen Gebäudeteile werden unterirdisch durch eine gemeinsame Tiefgarage verbunden sein. Oberirdisch wird ein begrünter und attraktiv gestalteter Innenhof für eine besondere Aufenthaltsqualität sorgen.
Der Nettomietzins beträgt mindestens 16 €/m² und ist abhängig von den individuellen Ausbauwünschen.
Die Aufteilung wird wie folgt sein:
Erdgeschoss mit ca. 1.805 m²
1.Obergeschoss mit ca. 1.180 m²
Die verschiedenen Gebäudeteile werden unterirdisch durch eine gemeinsame Tiefgarage verbunden sein. Oberirdisch wird ein begrünter und attraktiv gestalteter Innenhof für eine besondere Aufenthaltsqualität sorgen.
Der Nettomietzins beträgt mindestens 16 €/m² und ist abhängig von den individuellen Ausbauwünschen.
Lage
Die Immobilie ensteht in Löbtau-Nord am Anfang der belebten Kesselsdorfer Straße. Die südliche Grundstücksgrenze bildet die Löbtauer Straße, welche die Stadtteile Friedrichstadt und Löbtau verbindet. Darüber hinaus wird das Grundstück von den drei Seitenstraßen Lübecker Straße,
Eichendorffstraße und Columbusstraße begrenzt. Das Quartier grenzt mit der Eichendorffstraße an ein attraktives Wohngebiet, welches vorrangig durch sanierte Altbauten bestimmt ist. In südwestlicher Richtung befindet sich direkt gegenüber dem Löbtauer Tor der Gewerbekomplex "Drei-Kaiser-Hof" und dem gegenüber wiederum die Löbtau Passage. Etwa 50 m vom Grundstück entfernt befindet sich die Haltestelle "Tharandter Straße". Hier verkehren in regelmäßigen Abständen drei Straßenbahnlinien sowie fünf Buslinien und sorgen für eine optimale Anbindung
des Standortes an das gesamte Dresdner Stadtgebiet. Der Stadtteil gehört zum Dresdner Stadtbezirk Cotta und ist linksseitig der Elbe gelegen. Aufgrund der Nähe zur Technischen Universität und der günstigen Verkehrsanbindung geniest Löbtau aber auch bei Studenten zunehmende Beliebtheit. Der Stadtteil ist über den öffentlichen Personenverkehr optimal an das gesamte Stadtgebiet angebunden. Sechs Straßenbahnlinien sowie fünf Buslinien verkehren in regelmäßigen Abständen.
Die sächsische Landeshauptstadt Dresden ist mit mehr als 570.000 Einwohnern die zweitgrößte Stadt des Freistaat Sachsen und flächenmäßig die viertgrößte Stadt Deutschlands. Sie beeindruckt nicht nur durch ihre über die Landesgrenzen hinaus bekannte barocke Architektur und vielfältige Kulturlandschaft, sondern auch durch die sich dynamisch entwickelnde Wirtschaftsstruktur. Die an der Elbe gelegene Stadt ist Verkehrsknotenpunkt und wirtschaftliches Zentrum des Ballungsraumes Dresden. Sie zählt außerdem zu den wirtschaftlich stärksten Regionen Deutschlands und gilt als bedeutender Universitätsstandort.
Eichendorffstraße und Columbusstraße begrenzt. Das Quartier grenzt mit der Eichendorffstraße an ein attraktives Wohngebiet, welches vorrangig durch sanierte Altbauten bestimmt ist. In südwestlicher Richtung befindet sich direkt gegenüber dem Löbtauer Tor der Gewerbekomplex "Drei-Kaiser-Hof" und dem gegenüber wiederum die Löbtau Passage. Etwa 50 m vom Grundstück entfernt befindet sich die Haltestelle "Tharandter Straße". Hier verkehren in regelmäßigen Abständen drei Straßenbahnlinien sowie fünf Buslinien und sorgen für eine optimale Anbindung
des Standortes an das gesamte Dresdner Stadtgebiet. Der Stadtteil gehört zum Dresdner Stadtbezirk Cotta und ist linksseitig der Elbe gelegen. Aufgrund der Nähe zur Technischen Universität und der günstigen Verkehrsanbindung geniest Löbtau aber auch bei Studenten zunehmende Beliebtheit. Der Stadtteil ist über den öffentlichen Personenverkehr optimal an das gesamte Stadtgebiet angebunden. Sechs Straßenbahnlinien sowie fünf Buslinien verkehren in regelmäßigen Abständen.
Die sächsische Landeshauptstadt Dresden ist mit mehr als 570.000 Einwohnern die zweitgrößte Stadt des Freistaat Sachsen und flächenmäßig die viertgrößte Stadt Deutschlands. Sie beeindruckt nicht nur durch ihre über die Landesgrenzen hinaus bekannte barocke Architektur und vielfältige Kulturlandschaft, sondern auch durch die sich dynamisch entwickelnde Wirtschaftsstruktur. Die an der Elbe gelegene Stadt ist Verkehrsknotenpunkt und wirtschaftliches Zentrum des Ballungsraumes Dresden. Sie zählt außerdem zu den wirtschaftlich stärksten Regionen Deutschlands und gilt als bedeutender Universitätsstandort.
Ausstattungsbeschreibung
* gute Werbemöglichkeiten und Sichtbarkeit
* teilbare Flächen
* Ausstattung nach Mieterwunsch
* Personenaufzug
* bodentiefe Fenster
* Fertigstellung I.Quartal 2025
* 20 Stellplätze in Tiefgarage
* teilbare Flächen
* Ausstattung nach Mieterwunsch
* Personenaufzug
* bodentiefe Fenster
* Fertigstellung I.Quartal 2025
* 20 Stellplätze in Tiefgarage
Sonstiges
Hinweis: Fehlende Angaben zum Energieausweis gemäß Energiesparverordnung 2014 ( EnEV ) begründen sich durch Nichtangabepflicht bei Denkmalschutzobjekten, Grundstücken, nichtbeheizbaren Immobilien oder wurden bisher trotz Aufforderung gegenüber dem Auftraggeber nicht zur Verfügung gestellt.
Haftungsausschluss: Trotz sorgfältiger Bearbeitung von Daten, Bildern und Informationen übernehmen wir keine Haftung für die Richtigkeit der Angaben, ebenso wenig für die Lieferfähigkeit des Angebotes bei Vermietung bzw. Verkauf. Bitte beachten Sie hierzu unsere allgemeinen Geschäftsbedingungen die Sie unter www.der-immo-tip.de einsehen können.
Haftungsausschluss: Trotz sorgfältiger Bearbeitung von Daten, Bildern und Informationen übernehmen wir keine Haftung für die Richtigkeit der Angaben, ebenso wenig für die Lieferfähigkeit des Angebotes bei Vermietung bzw. Verkauf. Bitte beachten Sie hierzu unsere allgemeinen Geschäftsbedingungen die Sie unter www.der-immo-tip.de einsehen können.
Kontakt

Objekt anfragen
while(allpics.length > 0){
allpics.pop();
}
var objnummer ="64596";var pic0 = new Image();pic0.src = 'uploads/pics/immo/1/_processed_/c/a/csm_c386046a-d49f-49b4-9fc7-460ccff4fd3f_bc5e70068a.jpg';
allpics.push('uploads/pics/immo/1/_processed_/c/a/csm_c386046a-d49f-49b4-9fc7-460ccff4fd3f_bc5e70068a.jpg');
var pic1 = new Image();pic1.src = 'uploads/pics/immo/1/_processed_/1/2/csm_9c3bac67-d220-4d90-8076-bafa391f2a40_3fae108237.jpg';
allpics.push('uploads/pics/immo/1/_processed_/1/2/csm_9c3bac67-d220-4d90-8076-bafa391f2a40_3fae108237.jpg');
var pic2 = new Image();pic2.src = 'uploads/pics/immo/1/_processed_/0/7/csm_88c93f7d-63f2-4516-848f-37132963e19c_5f4d1a53ec.jpg';
allpics.push('uploads/pics/immo/1/_processed_/0/7/csm_88c93f7d-63f2-4516-848f-37132963e19c_5f4d1a53ec.jpg');
var pic3 = new Image();pic3.src = 'uploads/pics/immo/1/_processed_/8/f/csm_644d6bb5-5cf6-49dd-ab0c-832c47d6b30b_6cd518a641.jpg';
allpics.push('uploads/pics/immo/1/_processed_/8/f/csm_644d6bb5-5cf6-49dd-ab0c-832c47d6b30b_6cd518a641.jpg');
var pic4 = new Image();pic4.src = 'uploads/pics/immo/1/_processed_/3/1/csm_f5650e0d-da8a-421f-814c-87ecbd4c93ba_291938dcee.jpg';
allpics.push('uploads/pics/immo/1/_processed_/3/1/csm_f5650e0d-da8a-421f-814c-87ecbd4c93ba_291938dcee.jpg');
Weitere Objekte zu Ihrer Suche
Kontakt
Telefonkontakt
| Immobilienmakler | |
| Dresden: | 0351 433 130 |
| Leipzig: | 0341 600 539 90 |
| Chemnitz: | 0371 238 710 600 |
| Hausverwaltung | |
| Dresden: | 0351 213 914 60 |
| Mietersprechzeiten | |
| Montag: | 09:00 - 12:00 Uhr 13:00 - 17:00 Uhr |
| Mittwoch: | 09:00 - 12:00 Uhr |
| Donnerstag: | 09:00 - 12:00 Uhr 13:00 - 15:30 Uhr |















































































































































































































































































































































































































































































