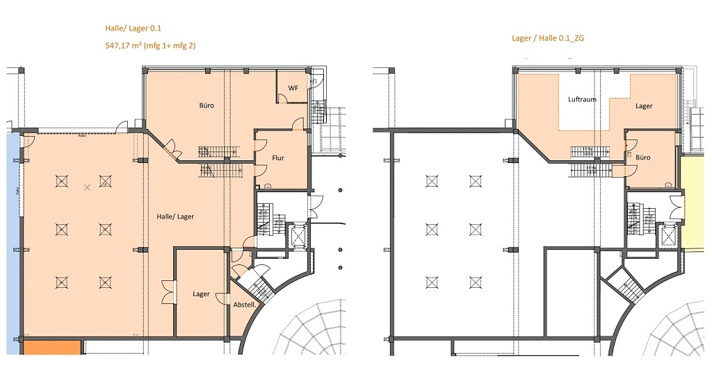
Vielseitige Hallenfläche - ca. 547 m² - in Kesselsdorf zur Miete!
Eckdaten
| Objekt-ID: | 17624_12 |
| Lage: | 01723 Kesselsdorf |
| Immobilienart: | Lagerflaechen |
| Lagerfläche: | ca. 547 m² |
| Gesamtfläche: | ca. 547 m² |
| Baujahr: | 1993 |
| Bezugstermin: | in Abstimmung |
| Nettokaltmiete/m²/Monat: | 6,00 € |
| Nebenkosten/m²/Monat: | 1.750,40 € |
| Sonstige Stellplätze: | 10 |
Beschreibung
Zur Vermietung steht eine ca. 547 m² Lagerfläche, die sich im Erdgeschoss eines Bürohauses befindet.
Im Haus stehen weitere Büro -und Lagerflächen zur Vermietung.
Die monatliche Nettokaltmiete beträgt für die Lagerfläche 6€/m² und für die Bürofläche 8,50 €/m²
Bei Interesse erhalten Sie gern weiterführende Informationen.
Im Haus stehen weitere Büro -und Lagerflächen zur Vermietung.
Die monatliche Nettokaltmiete beträgt für die Lagerfläche 6€/m² und für die Bürofläche 8,50 €/m²
Bei Interesse erhalten Sie gern weiterführende Informationen.
Lage
Die Immobilie befindet sich in Kesselsdorf innerhalb eines Gewerbegebietes.
Kesselsdorf ist ein Stadtteil von Wilsdruff und befindet sich im Landkreis Sächsische Schweiz-Osterzgebirge direkt an der Stadtgrenze zur sächsischen Landeshauptstadt Dresden. Es befindet sich rund zehn Kilometer westlich des Zentrums von Dresden und etwa vier Kilometer südöstlich von der Kernstadt Wilsdruff im Osten des Stadtgebietes.
Kesselsdorf ist sehr gut angebunden an die Autobahnen A 4 und A 17 und dem Zubringer B 173 zur Dresdner Innenstadt.
Kesselsdorf ist ein Stadtteil von Wilsdruff und befindet sich im Landkreis Sächsische Schweiz-Osterzgebirge direkt an der Stadtgrenze zur sächsischen Landeshauptstadt Dresden. Es befindet sich rund zehn Kilometer westlich des Zentrums von Dresden und etwa vier Kilometer südöstlich von der Kernstadt Wilsdruff im Osten des Stadtgebietes.
Kesselsdorf ist sehr gut angebunden an die Autobahnen A 4 und A 17 und dem Zubringer B 173 zur Dresdner Innenstadt.
Ausstattungsbeschreibung
* Rolltor
* befahrbar
* Wasseranschluß
* auf zwei Ebenen
* mit Büroraum
* beheizbar
* erweiterbar
* befahrbar
* Wasseranschluß
* auf zwei Ebenen
* mit Büroraum
* beheizbar
* erweiterbar
Sonstiges
Hinweis: Fehlende Angaben zum Energieausweis gemäß Energiesparverordnung 2014 ( EnEV ) begründen sich durch Nichtangabepflicht bei Denkmalschutzobjekten, Grundstücken, nichtbeheizbaren Immobilien oder wurden bisher trotz Aufforderung gegenüber dem Auftraggeber nicht zur Verfügung gestellt.
Haftungsausschluss: Trotz sorgfältiger Bearbeitung von Daten, Bildern und Informationen übernehmen wir keine Haftung für die Richtigkeit der Angaben, ebenso wenig für die Lieferfähigkeit des Angebotes bei Vermietung bzw. Verkauf. Bitte beachten Sie hierzu unsere allgemeinen Geschäftsbedingungen die Sie unter www.der-immo-tip.de einsehen können.
Haftungsausschluss: Trotz sorgfältiger Bearbeitung von Daten, Bildern und Informationen übernehmen wir keine Haftung für die Richtigkeit der Angaben, ebenso wenig für die Lieferfähigkeit des Angebotes bei Vermietung bzw. Verkauf. Bitte beachten Sie hierzu unsere allgemeinen Geschäftsbedingungen die Sie unter www.der-immo-tip.de einsehen können.
Energieeffizienz
| Energieausweistyp: | Verbrauchsausweis |
| Denkmalschutz: | Nein |
Kontakt

Objekt anfragen
while(allpics.length > 0){
allpics.pop();
}
var objnummer ="17624_12";var pic0 = new Image();pic0.src = 'uploads/pics/immo/1/_496953.jpg';
allpics.push('uploads/pics/immo/1/_496953.jpg');
var pic1 = new Image();pic1.src = 'uploads/pics/immo/1/_496955.jpg';
allpics.push('uploads/pics/immo/1/_496955.jpg');
var pic2 = new Image();pic2.src = 'uploads/pics/immo/1/_496957.jpg';
allpics.push('uploads/pics/immo/1/_496957.jpg');
var pic3 = new Image();pic3.src = 'uploads/pics/immo/1/_496959.jpg';
allpics.push('uploads/pics/immo/1/_496959.jpg');
var pic4 = new Image();pic4.src = 'uploads/pics/immo/1/_496961.jpg';
allpics.push('uploads/pics/immo/1/_496961.jpg');
var pic5 = new Image();pic5.src = 'uploads/pics/immo/1/_496963.jpg';
allpics.push('uploads/pics/immo/1/_496963.jpg');
var pic6 = new Image();pic6.src = 'uploads/pics/immo/1/_496965.jpg';
allpics.push('uploads/pics/immo/1/_496965.jpg');
var pic7 = new Image();pic7.src = 'uploads/pics/immo/1/_496967.jpg';
allpics.push('uploads/pics/immo/1/_496967.jpg');
Weitere Objekte zu Ihrer Suche
Lager- und Produktionsflächen direkt an der S177 und S81 - unweit der Halbleiterindustrie - zum Kauf!
Zwei Sanierungsobjekte in ruhiger Lage von Dresden zum Kauf | Denkmalgeschützter Bauernhof + ehem. Gasthof
Erbbaurecht | 7.440 m² Lager-& Produktionsfläche mit Gleisanbindung und im Hafen in Dresden Friedrichstadt
Zur Vermietung oder Selbstnutzung - Immobilienpaket nahe Dresden | 14 Gewerbeeinheiten & 21 TG Stellplätze in Coswig zum Kauf
Lager- und Produktionsflächen direkt an der S177 und S81 - unweit der Halbleiterindustrie - zum Kauf!
Helle 2-Zimmer-Wohnung in Kleinschachwitz | Eigennutzung oder Kapitalanlage | Balkon & TG-Stellplatz
Zur Vermietung oder Selbstnutzung - Immobilienpaket nahe Dresden | 14 Gewerbeeinheiten & 21 TG Stellplätze in Coswig zum Kauf
Kontakt
Telefonkontakt
| Immobilienmakler | |
| Dresden: | 0351 433 130 |
| Leipzig: | 0341 600 539 90 |
| Chemnitz: | 0371 238 710 600 |
| Hausverwaltung | |
| Dresden: | 0351 213 914 60 |
| Mietersprechzeiten | |
| Montag: | 09:00 - 12:00 Uhr 13:00 - 17:00 Uhr |
| Mittwoch: | 09:00 - 12:00 Uhr |
| Donnerstag: | 09:00 - 12:00 Uhr 13:00 - 15:30 Uhr |






















































































































































































































































































































































































































































































































































































































































































