Vielseitig nutzbar | Rund 1.000 m² Gewerbefläche in Lengenfeld zur Miete
Eckdaten
| Objekt-ID: | 65422 |
| Lage: | 08485 Lengenfeld |
| Immobilienart: | Prod./ Lager / Gewerbehallen |
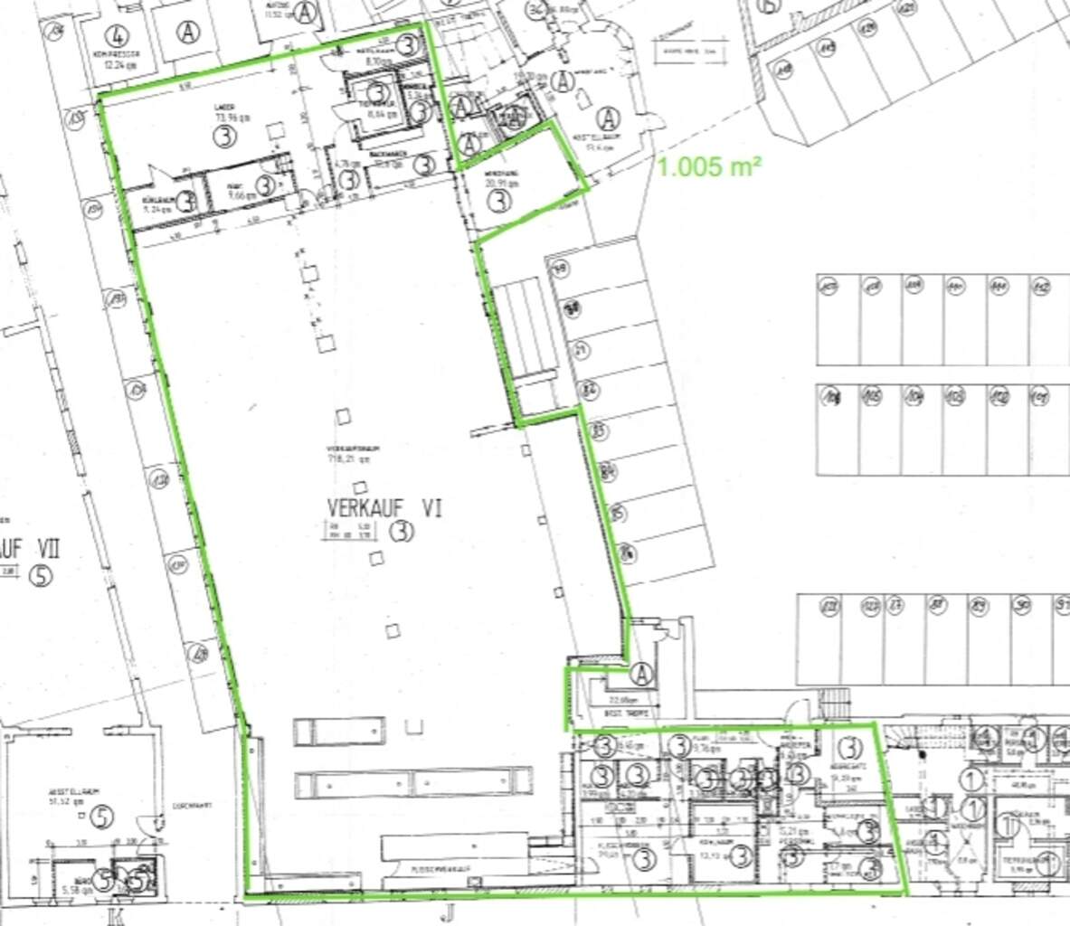
| Gesamtfläche: | ca. 1.005 m² |
| Bezugstermin: | ab sofort |
| Nettokaltmiete/m²/Monat: | 4,50 € |
| Nebenkosten/m²/Monat: | 2,50 € |
Beschreibung
Zur Vermietung steht eine ca. 1.005 m² große Gewerbefläche, die sich im Erdgeschoss eines Geschäftshauses befindet. Die Mietfläche bietet sich für verschiedene Nutzungen, wie bspw. Einzelhandel, Lager, Dienstleistung, Tanzstudio, etc. an.
Der Mietzins ist abhängig von der Mietvertragslaufzeit und möglichen Umbaumaßnahmen.
Es gibt einen objekteigen Kundenparkplatz.
Bei Interesse stimmen wir gern einen Besichtigungstermin ab.
Der Mietzins ist abhängig von der Mietvertragslaufzeit und möglichen Umbaumaßnahmen.
Es gibt einen objekteigen Kundenparkplatz.
Bei Interesse stimmen wir gern einen Besichtigungstermin ab.
Lage
Die Immobilie befindet sich in Lengenfeld.
Lengenfeld ist eine Kleinstadt im sächsischen Vogtlandkreis und liegt knapp 20 km südwestlich von Zwickau und 20 km nordöstlich von Plauen.
Die Autobahn A 72 verläuft im Nordosten des Gemeindegebietes. Die Stadt Lengenfeld liegt an der Bundesstraße 94, nördlich des Ortsteils Schönbrunn mündet diese an der Anschlussstelle 9 (Reichenbach) in die A 72.
Lengenfeld ist eine Kleinstadt im sächsischen Vogtlandkreis und liegt knapp 20 km südwestlich von Zwickau und 20 km nordöstlich von Plauen.
Die Autobahn A 72 verläuft im Nordosten des Gemeindegebietes. Die Stadt Lengenfeld liegt an der Bundesstraße 94, nördlich des Ortsteils Schönbrunn mündet diese an der Anschlussstelle 9 (Reichenbach) in die A 72.
Ausstattungsbeschreibung
* Fliesenbelag
* automatisch öffnende Eingangstür
* abgehangene Decke inkl. Beleuchtung
* Nebenflächen sind Lager, Sanitär, Büro
* Übergabe im Istzustand
* automatisch öffnende Eingangstür
* abgehangene Decke inkl. Beleuchtung
* Nebenflächen sind Lager, Sanitär, Büro
* Übergabe im Istzustand
Sonstiges
Hinweis: Fehlende Angaben zum Energieausweis gemäß Energiesparverordnung 2014 ( EnEV ) begründen sich durch Nichtangabepflicht bei Denkmalschutzobjekten, Grundstücken, nichtbeheizbaren Immobilien oder wurden bisher trotz Aufforderung gegenüber dem Auftraggeber nicht zur Verfügung gestellt.
Haftungsausschluss: Trotz sorgfältiger Bearbeitung von Daten, Bildern und Informationen übernehmen wir keine Haftung für die Richtigkeit der Angaben, ebenso wenig für die Lieferfähigkeit des Angebotes bei Vermietung bzw. Verkauf. Bitte beachten Sie hierzu unsere allgemeinen Geschäftsbedingungen die Sie unter www.der-immo-tip.de einsehen können.
Haftungsausschluss: Trotz sorgfältiger Bearbeitung von Daten, Bildern und Informationen übernehmen wir keine Haftung für die Richtigkeit der Angaben, ebenso wenig für die Lieferfähigkeit des Angebotes bei Vermietung bzw. Verkauf. Bitte beachten Sie hierzu unsere allgemeinen Geschäftsbedingungen die Sie unter www.der-immo-tip.de einsehen können.
Kontakt
Patrick Pflügner
Semperstraße 1
01069 Dresden
E-Mail:pfluegner@der-immo-tip.de
Telefon:0351433130
Telefax:0351 433 13 18
Semperstraße 1
01069 Dresden
E-Mail:pfluegner@der-immo-tip.de
Telefon:0351433130
Telefax:0351 433 13 18

Objekt anfragen
while(allpics.length > 0){
allpics.pop();
}
var objnummer ="65422";var pic0 = new Image();pic0.src = 'uploads/pics/immo/1/_processed_/5/5/csm_65422-a_gebaeudeareal_2291449b75.jpg';
allpics.push('uploads/pics/immo/1/_processed_/5/5/csm_65422-a_gebaeudeareal_2291449b75.jpg');
var pic1 = new Image();pic1.src = 'uploads/pics/immo/1/_processed_/d/a/csm_65422-b2_hofansicht_mit_parkplatz_49636145d7.jpg';
allpics.push('uploads/pics/immo/1/_processed_/d/a/csm_65422-b2_hofansicht_mit_parkplatz_49636145d7.jpg');
var pic2 = new Image();pic2.src = 'uploads/pics/immo/1/_processed_/5/c/csm_65422-b3_aussenansicht_90790134bb.jpg';
allpics.push('uploads/pics/immo/1/_processed_/5/c/csm_65422-b3_aussenansicht_90790134bb.jpg');
var pic3 = new Image();pic3.src = 'uploads/pics/immo/1/_processed_/8/a/csm_65422-b4_impressionen_fee98e6b22.jpg';
allpics.push('uploads/pics/immo/1/_processed_/8/a/csm_65422-b4_impressionen_fee98e6b22.jpg');
var pic4 = new Image();pic4.src = 'uploads/pics/immo/1/_processed_/5/4/csm_65422-b5_eingangsbereich_e5d9597f24.jpg';
allpics.push('uploads/pics/immo/1/_processed_/5/4/csm_65422-b5_eingangsbereich_e5d9597f24.jpg');
var pic5 = new Image();pic5.src = 'uploads/pics/immo/1/_processed_/1/b/csm_65422-b6_innenansicht_9c76340218.jpg';
allpics.push('uploads/pics/immo/1/_processed_/1/b/csm_65422-b6_innenansicht_9c76340218.jpg');
var pic6 = new Image();pic6.src = 'uploads/pics/immo/1/_processed_/e/5/csm_65422-b7_innenansicht_ae83a64250.jpg';
allpics.push('uploads/pics/immo/1/_processed_/e/5/csm_65422-b7_innenansicht_ae83a64250.jpg');
var pic7 = new Image();pic7.src = 'uploads/pics/immo/1/_processed_/2/6/csm_65422-b8_innenansicht_2ddceea68d.jpg';
allpics.push('uploads/pics/immo/1/_processed_/2/6/csm_65422-b8_innenansicht_2ddceea68d.jpg');
var pic8 = new Image();pic8.src = 'uploads/pics/immo/1/_processed_/4/a/csm_65422-b9_grundriss_ed6120f18f.jpg';
allpics.push('uploads/pics/immo/1/_processed_/4/a/csm_65422-b9_grundriss_ed6120f18f.jpg');
Weitere Objekte zu Ihrer Suche
Kontakt
Telefonkontakt
| Immobilienmakler | |
| Dresden: | 0351 433 130 |
| Leipzig: | 0341 600 539 90 |
| Chemnitz: | 0371 238 710 600 |
| Rostock: | 0381 128 736 10 |
| Hausverwaltung | |
| Dresden: | 0351 213 914 60 |
| Mietersprechzeiten | |
| Montag: | 09:00 - 12:00 Uhr 13:00 - 17:00 Uhr |
| Mittwoch: | 09:00 - 12:00 Uhr |
| Donnerstag: | 09:00 - 12:00 Uhr 13:00 - 15:30 Uhr |






















