Top Anbindung | ca. 1.000 m² Lager mit Büro in Autobahnnähe in Dresden zur Miete
Eckdaten
| Objekt-ID: | 100147 |
| Lage: | 01139 Dresden |
| Immobilienart: | Lagerflaechen |
| Lagerfläche: | ca. 828 m² |
| Bürofläche: | ca. 183 m² |
| Gesamtfläche: | ca. 1.011 m² |
| Baujahr: | 1953 |
| Bezugstermin: | in Abstimmung |
| Nettokaltmiete/m²/Monat: | 4,50 € |
| Freiplätze: | 10 |
| Stellplatzmiete: | 25 € |
Beschreibung
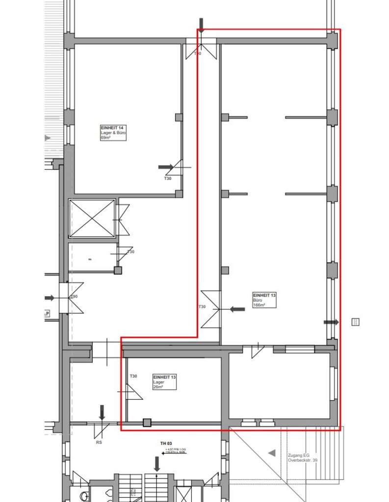
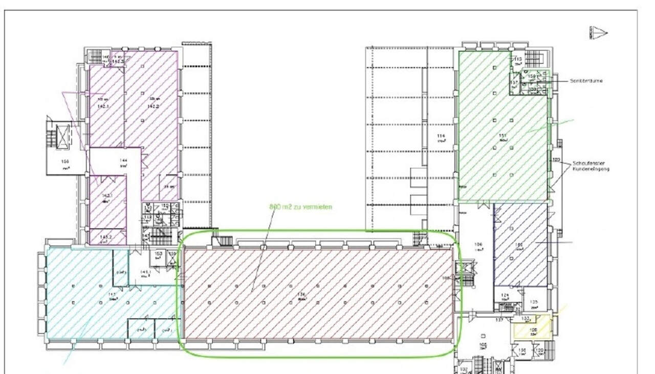
Zur Vermietung stehen ca. 828 m² Lagerfläche sowie ca. 183 m² Bürofläche, die sich innerhalb eines bekannten Gewerbeareals befinden.
Die Flächenaufteilung ist wie folgt:
ca. 800 m² Lager im EG
ca. 183 m² Büro und ca. 28 m² im 1.OG
Im Innenhof gibt es 2 Laderampen für die Anlieferung mittels LKW.
Der Kaltmietzins für die Lagerfläche im EG beträgt 4,50 €/m², für das Büro 10,50 €/m² und das Lager im 1.OG 6,50 €/m².
Es stehen bis zu 10 PKW Stellpätze á 25 €/ Stellplatz im Monat zur Verfügung.
Bei Interesse stimmen wir gern einen Besichtigungstermin ab.
Die Flächenaufteilung ist wie folgt:
ca. 800 m² Lager im EG
ca. 183 m² Büro und ca. 28 m² im 1.OG
Im Innenhof gibt es 2 Laderampen für die Anlieferung mittels LKW.
Der Kaltmietzins für die Lagerfläche im EG beträgt 4,50 €/m², für das Büro 10,50 €/m² und das Lager im 1.OG 6,50 €/m².
Es stehen bis zu 10 PKW Stellpätze á 25 €/ Stellplatz im Monat zur Verfügung.
Bei Interesse stimmen wir gern einen Besichtigungstermin ab.
Lage
* befindet sich im Stadtteil Dresden Übigau
* sehr gute Anbindung an ÖPNV
* sehr gute Verkehrsanbindung (Autobahnnah, Flughafen, innerhalb weniger Autominuten im Stadtzentrum,..)
* Anmietung eines PKW-Stellplatzes möglich
* Einkaufsmöglichkeiten nur wenige Autominuten entfernt
* weitere Gewerbe im direkten Umfeld angesiedelt
* öffentliche Kantine im direkten Umfeld
* sehr gute Anbindung an ÖPNV
* sehr gute Verkehrsanbindung (Autobahnnah, Flughafen, innerhalb weniger Autominuten im Stadtzentrum,..)
* Anmietung eines PKW-Stellplatzes möglich
* Einkaufsmöglichkeiten nur wenige Autominuten entfernt
* weitere Gewerbe im direkten Umfeld angesiedelt
* öffentliche Kantine im direkten Umfeld
Ausstattungsbeschreibung
- Lager im EG -
* elektrisches Tor
* LKW Laderampe vorhanden
* Stahlbetonfußboden
* Beleuchtung
* Elektrik & Steckdosen
* Heizung
* Sanitärräume vorhanden
* Bodenbelastung 800 kg/m²
* 4 m Geschosshöhe
* Traglast Lastenaufzug 2.000 kg
- Büro im 1.OG -
* Industrieboden
* teilweise Akustikelemente
* teilweise LED-Beleuchtung
* Brüstungskanäle für Medienversorgung
* Cat7 Datenverkabelung
* Glasfaseranschluss
* innenliegender Blendschutz
* große Fenster zur Nordseite
* dreifach verglaste Fenster
* hochwertige Einbauküche (Übernahme vom Vormieter möglich)
* Personenaufzug
* Wachschutz
* Möglichkeit zur Außenwerbung
* Ausreichend Parkplätze
Die angegebenen Nebenkosten enthalten bereits den Strom.
* elektrisches Tor
* LKW Laderampe vorhanden
* Stahlbetonfußboden
* Beleuchtung
* Elektrik & Steckdosen
* Heizung
* Sanitärräume vorhanden
* Bodenbelastung 800 kg/m²
* 4 m Geschosshöhe
* Traglast Lastenaufzug 2.000 kg
- Büro im 1.OG -
* Industrieboden
* teilweise Akustikelemente
* teilweise LED-Beleuchtung
* Brüstungskanäle für Medienversorgung
* Cat7 Datenverkabelung
* Glasfaseranschluss
* innenliegender Blendschutz
* große Fenster zur Nordseite
* dreifach verglaste Fenster
* hochwertige Einbauküche (Übernahme vom Vormieter möglich)
* Personenaufzug
* Wachschutz
* Möglichkeit zur Außenwerbung
* Ausreichend Parkplätze
Die angegebenen Nebenkosten enthalten bereits den Strom.
Sonstiges
Hinweis: Fehlende Angaben zum Energieausweis gemäß Energiesparverordnung 2014 ( EnEV ) begründen sich durch Nichtangabepflicht bei Denkmalschutzobjekten, Grundstücken, nichtbeheizbaren Immobilien oder wurden bisher trotz Aufforderung gegenüber dem Auftraggeber nicht zur Verfügung gestellt.
Haftungsausschluss: Trotz sorgfältiger Bearbeitung von Daten, Bildern und Informationen übernehmen wir keine Haftung für die Richtigkeit der Angaben, ebenso wenig für die Lieferfähigkeit des Angebotes bei Vermietung bzw. Verkauf. Bitte beachten Sie hierzu unsere allgemeinen Geschäftsbedingungen die Sie unter www.der-immo-tip.de einsehen können.
Haftungsausschluss: Trotz sorgfältiger Bearbeitung von Daten, Bildern und Informationen übernehmen wir keine Haftung für die Richtigkeit der Angaben, ebenso wenig für die Lieferfähigkeit des Angebotes bei Vermietung bzw. Verkauf. Bitte beachten Sie hierzu unsere allgemeinen Geschäftsbedingungen die Sie unter www.der-immo-tip.de einsehen können.
Kontakt

Objekt anfragen
while(allpics.length > 0){
allpics.pop();
}
var objnummer ="100147";var pic0 = new Image();pic0.src = 'uploads/pics/immo/1/_processed_/f/0/csm__484783_56e88ffb86.jpg';
allpics.push('uploads/pics/immo/1/_processed_/f/0/csm__484783_56e88ffb86.jpg');
var pic1 = new Image();pic1.src = 'uploads/pics/immo/1/_processed_/1/7/csm__484781_3c8686d221.jpg';
allpics.push('uploads/pics/immo/1/_processed_/1/7/csm__484781_3c8686d221.jpg');
var pic2 = new Image();pic2.src = 'uploads/pics/immo/1/_processed_/f/1/csm__484785_20f1562cda.jpg';
allpics.push('uploads/pics/immo/1/_processed_/f/1/csm__484785_20f1562cda.jpg');
var pic3 = new Image();pic3.src = 'uploads/pics/immo/1/_processed_/6/b/csm__484789_d3e6934bb6.jpg';
allpics.push('uploads/pics/immo/1/_processed_/6/b/csm__484789_d3e6934bb6.jpg');
var pic4 = new Image();pic4.src = 'uploads/pics/immo/1/_processed_/1/7/csm_e796539d-15b6-4aec-bf78-ecc2e5463b48_17acc310ed.jpg';
allpics.push('uploads/pics/immo/1/_processed_/1/7/csm_e796539d-15b6-4aec-bf78-ecc2e5463b48_17acc310ed.jpg');
var pic5 = new Image();pic5.src = 'uploads/pics/immo/1/_processed_/5/d/csm_539d9e15-e2ab-4c49-a238-942ab4f806c0_7ada2f5a7c.jpg';
allpics.push('uploads/pics/immo/1/_processed_/5/d/csm_539d9e15-e2ab-4c49-a238-942ab4f806c0_7ada2f5a7c.jpg');
var pic6 = new Image();pic6.src = 'uploads/pics/immo/1/_processed_/c/0/csm_46663910-0fe3-4d42-8ccc-dfa39aabbcff_77804f7eba.jpg';
allpics.push('uploads/pics/immo/1/_processed_/c/0/csm_46663910-0fe3-4d42-8ccc-dfa39aabbcff_77804f7eba.jpg');
var pic7 = new Image();pic7.src = 'uploads/pics/immo/1/_processed_/0/c/csm_926a6307-de12-46da-8b18-0b1491b1db26_c3a379f5a2.jpg';
allpics.push('uploads/pics/immo/1/_processed_/0/c/csm_926a6307-de12-46da-8b18-0b1491b1db26_c3a379f5a2.jpg');
var pic8 = new Image();pic8.src = 'uploads/pics/immo/1/_processed_/d/d/csm_037a82bd-02c3-48e7-9392-838d88330ea4_124419af3e.jpg';
allpics.push('uploads/pics/immo/1/_processed_/d/d/csm_037a82bd-02c3-48e7-9392-838d88330ea4_124419af3e.jpg');
var pic9 = new Image();pic9.src = 'uploads/pics/immo/1/_processed_/0/d/csm_04dd274f-e345-4da4-b7c8-b9f57e063aad_812396ddc5.jpg';
allpics.push('uploads/pics/immo/1/_processed_/0/d/csm_04dd274f-e345-4da4-b7c8-b9f57e063aad_812396ddc5.jpg');
var pic10 = new Image();pic10.src = 'uploads/pics/immo/1/_processed_/b/2/csm_43cca692-f3bc-4a93-b553-8e8cce7deba1_081d51bf2a.jpg';
allpics.push('uploads/pics/immo/1/_processed_/b/2/csm_43cca692-f3bc-4a93-b553-8e8cce7deba1_081d51bf2a.jpg');
var pic11 = new Image();pic11.src = 'uploads/pics/immo/1/_processed_/0/3/csm__484793_dbbbacfd55.jpg';
allpics.push('uploads/pics/immo/1/_processed_/0/3/csm__484793_dbbbacfd55.jpg');
var pic12 = new Image();pic12.src = 'uploads/pics/immo/1/_processed_/a/e/csm_eddb907f-4ccd-421f-bc5f-40fea84b2a23_acff11b22e.jpg';
allpics.push('uploads/pics/immo/1/_processed_/a/e/csm_eddb907f-4ccd-421f-bc5f-40fea84b2a23_acff11b22e.jpg');
var pic13 = new Image();pic13.src = 'uploads/pics/immo/1/_processed_/f/f/csm_7e2fa67f-2c9f-48ce-bb3d-1bc53b2ee7e5_96c029b2cc.jpg';
allpics.push('uploads/pics/immo/1/_processed_/f/f/csm_7e2fa67f-2c9f-48ce-bb3d-1bc53b2ee7e5_96c029b2cc.jpg');
var pic14 = new Image();pic14.src = 'uploads/pics/immo/1/_processed_/4/4/csm_e668a39d-5860-4a88-8826-e5f46db040e3_c7cce9ec53.jpg';
allpics.push('uploads/pics/immo/1/_processed_/4/4/csm_e668a39d-5860-4a88-8826-e5f46db040e3_c7cce9ec53.jpg');
var pic15 = new Image();pic15.src = 'uploads/pics/immo/1/_processed_/1/4/csm__484787_972bb57e00.jpg';
allpics.push('uploads/pics/immo/1/_processed_/1/4/csm__484787_972bb57e00.jpg');
var pic16 = new Image();pic16.src = 'uploads/pics/immo/1/_processed_/3/2/csm__484791_a89468cc60.jpg';
allpics.push('uploads/pics/immo/1/_processed_/3/2/csm__484791_a89468cc60.jpg');
Weitere Objekte zu Ihrer Suche
Kontakt
Telefonkontakt
| Immobilienmakler | |
| Dresden: | 0351 433 130 |
| Leipzig: | 0341 600 539 90 |
| Chemnitz: | 0371 238 710 600 |
| Hausverwaltung | |
| Dresden: | 0351 213 914 60 |
| Mietersprechzeiten | |
| Montag: | 09:00 - 12:00 Uhr 13:00 - 17:00 Uhr |
| Mittwoch: | 09:00 - 12:00 Uhr |
| Donnerstag: | 09:00 - 12:00 Uhr 13:00 - 15:30 Uhr |





































































































































































































































































































































































































































































