Saniertes & vollvermietetes MFH im Zentrum von Lengefeld (Erzgebirge)!
Eckdaten
| Objekt-ID: | 66947 |
| Lage: | 09514 Lengefeld |
| Straße: | Markt |
| Immobilienart: | Mehrfamilienhaus (Invest.) |
| Zimmer: | 18 |
| Grundstücksfläche: | ca. 2.170 m² |
| Gesamtfläche: | ca. 508 m² |
| Baujahr: | 2006 |
| Kaufpreis: | 390.000,00 € |
| Kaufpreis/m²: | 767,72 € |
| Käuferprovision: | 3,57 % |
| Mieteinnahmen (Ist): | 27.516,00 € |
Beschreibung
Zum Verkauf steht ein Mehrfamilienhaus im Zentrum von Lengefeld im Erzgebirge mit insgesamt 6 Wohneinheiten verteilt auf ca. 503 m² Wohnfläche. Die Immobilie befindet sich auf einem 2.710 m² großen Grundstück.
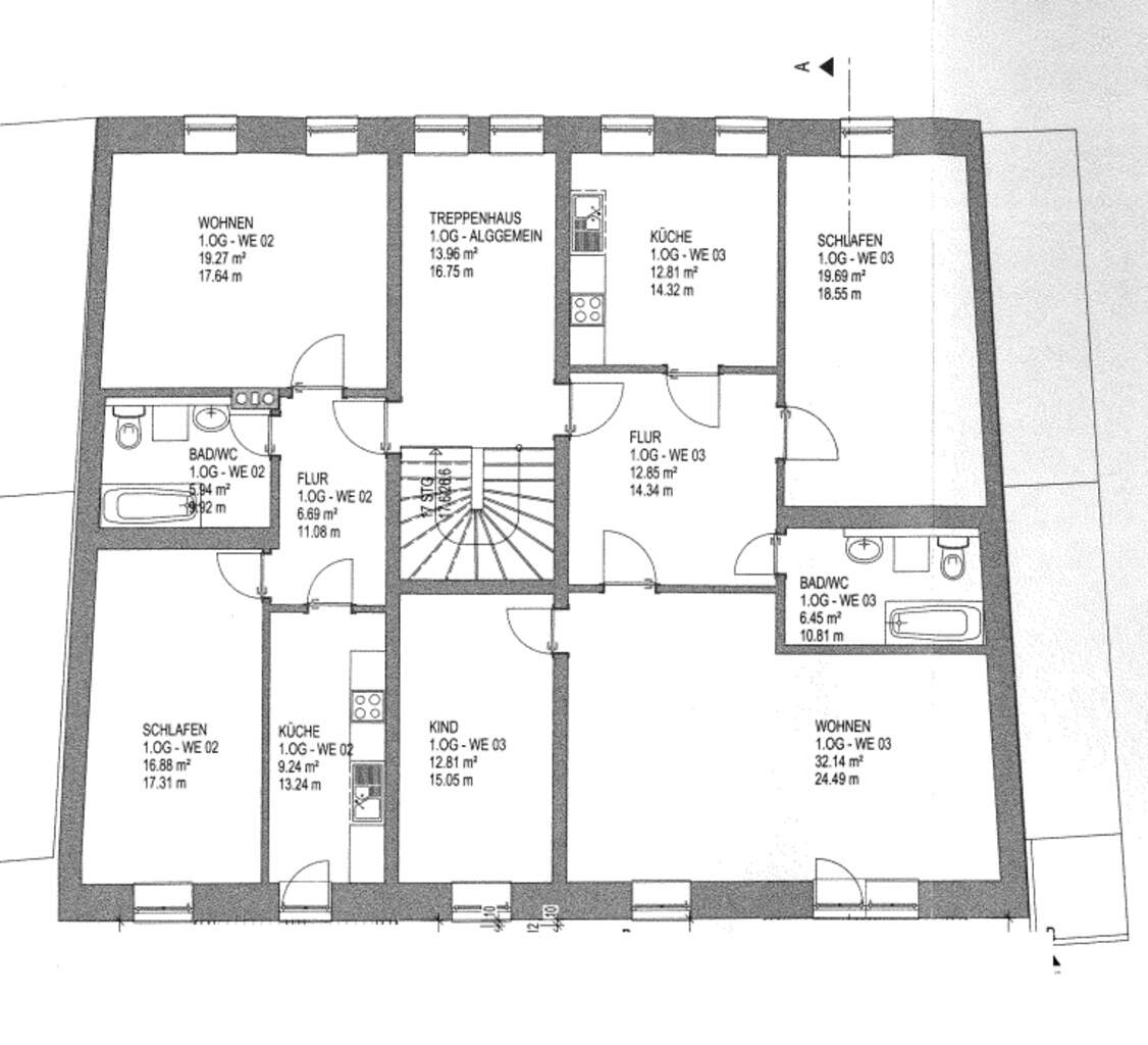
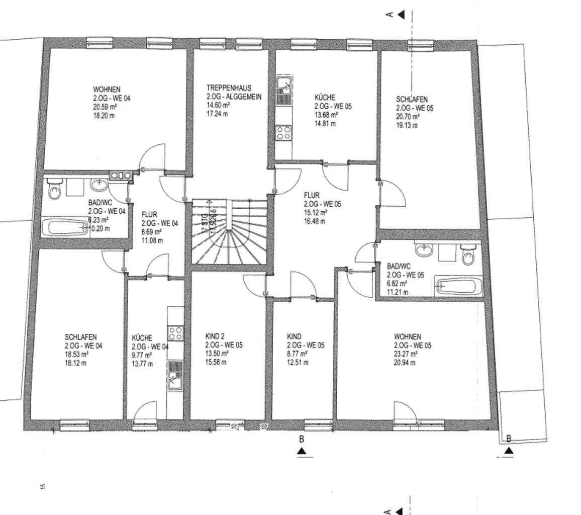
Auf 4 Etagen befinden sich insgesamt 2 x 2-Raum- 2 x 3-Raum- und 2 x 4-Raumwohnungen mit Wohnflächen zwischen ca. 56 und 120 m².
Im Erdgeschoss befindet sich der Heizungsraum in dem eine neue Gastherme 2022 eingebaut wurde.
Die aktuelle Jahresnettokaltmiete beträgt 27.516.00 €. Es besteht hierbei noch Entwicklungspotential bei den Mieteinnahmen durch den rückseitigen Anbau von Balkonen und der Schaffung von Mietergärten auf dem großzügigen Grundstück.
Weitere interessante Angebote können Sie unter www.der-immo-tip.de anschauen.
Auf 4 Etagen befinden sich insgesamt 2 x 2-Raum- 2 x 3-Raum- und 2 x 4-Raumwohnungen mit Wohnflächen zwischen ca. 56 und 120 m².
Im Erdgeschoss befindet sich der Heizungsraum in dem eine neue Gastherme 2022 eingebaut wurde.
Die aktuelle Jahresnettokaltmiete beträgt 27.516.00 €. Es besteht hierbei noch Entwicklungspotential bei den Mieteinnahmen durch den rückseitigen Anbau von Balkonen und der Schaffung von Mietergärten auf dem großzügigen Grundstück.
Weitere interessante Angebote können Sie unter www.der-immo-tip.de anschauen.
Lage
Lengefeld ist eine idyllische Kleinstadt im Erzgebirge, die sich durch ihre ruhige, naturnahe Lage und eine gute Infrastruktur auszeichnet. Die Stadt bietet eine gelungene Mischung aus ländlichem Charme und städtischen Annehmlichkeiten. Malerische Landschaften, weitläufige Wälder und zahlreiche Wandermöglichkeiten prägen das Umfeld und machen Lengefeld zu einem attraktiven Wohnort für Familien, Naturliebhaber und Ruhesuchende.
In der Nähe liegen größere Städte wie Zschopau und Chemnitz, die durch gute Verkehrsanbindungen schnell erreichbar sind. Vor Ort finden sich alle wichtigen Einrichtungen des täglichen Bedarfs – von Einkaufsmöglichkeiten über Schulen und Kindergärten bis hin zu medizinischer Versorgung. Darüber hinaus laden regionale Sehenswürdigkeiten, Museen und das nahegelegene Freizeitbad zum Entdecken und Verweilen ein.
Lengefeld verbindet Tradition und moderne Lebensqualität im Herzen des Erzgebirges.
In der Nähe liegen größere Städte wie Zschopau und Chemnitz, die durch gute Verkehrsanbindungen schnell erreichbar sind. Vor Ort finden sich alle wichtigen Einrichtungen des täglichen Bedarfs – von Einkaufsmöglichkeiten über Schulen und Kindergärten bis hin zu medizinischer Versorgung. Darüber hinaus laden regionale Sehenswürdigkeiten, Museen und das nahegelegene Freizeitbad zum Entdecken und Verweilen ein.
Lengefeld verbindet Tradition und moderne Lebensqualität im Herzen des Erzgebirges.
Sonstiges
Hinweis: Fehlende Angaben zum Energieausweis gemäß Energiesparverordnung 2014 ( EnEV ) begründen sich durch Nichtangabepflicht bei Denkmalschutzobjekten, Grundstücken, nichtbeheizbaren Immobilien oder wurden bisher trotz Aufforderung gegenüber dem Auftraggeber nicht zur Verfügung gestellt.
Haftungsausschluss: Trotz sorgfältiger Bearbeitung von Daten, Bildern und Informationen übernehmen wir keine Haftung für die Richtigkeit der Angaben, ebenso wenig für die Lieferfähigkeit des Angebotes bei Vermietung bzw. Verkauf. Bitte beachten Sie hierzu unsere allgemeinen Geschäftsbedingungen die Sie unter www.der-immo-tip.de einsehen können.
Haftungsausschluss: Trotz sorgfältiger Bearbeitung von Daten, Bildern und Informationen übernehmen wir keine Haftung für die Richtigkeit der Angaben, ebenso wenig für die Lieferfähigkeit des Angebotes bei Vermietung bzw. Verkauf. Bitte beachten Sie hierzu unsere allgemeinen Geschäftsbedingungen die Sie unter www.der-immo-tip.de einsehen können.
Energieeffizienz
| Energieausweistyp: | Verbrauchsausweis |
| Heizungsart: | Zentralheizung |
| Befeuerungsart: | Erdgas leicht |
| Energieeffizienzklasse: | C |
| Energiekennwert: | 79 kWh/(m² a) |
| Denkmalschutz: | Nein |
Kontakt
DER IMMO TIP
Semperstraße 1
01069 Dresden
E-Mail:info@der-immo-tip.de
Telefon:0351 433 13 0
Telefax:0351 433 13 18
Semperstraße 1
01069 Dresden
E-Mail:info@der-immo-tip.de
Telefon:0351 433 13 0
Telefax:0351 433 13 18
Objekt anfragen
while(allpics.length > 0){
allpics.pop();
}
var objnummer ="66947";var pic0 = new Image();pic0.src = 'uploads/pics/immo/1/_processed_/d/a/csm_66947-a_mehrfamilienhaus_87b5fa86db.jpg';
allpics.push('uploads/pics/immo/1/_processed_/d/a/csm_66947-a_mehrfamilienhaus_87b5fa86db.jpg');
var pic1 = new Image();pic1.src = 'uploads/pics/immo/1/_processed_/3/c/csm_66947-b1_rueckwaertige_hausansicht_5a84ffdc7e.jpg';
allpics.push('uploads/pics/immo/1/_processed_/3/c/csm_66947-b1_rueckwaertige_hausansicht_5a84ffdc7e.jpg');
var pic2 = new Image();pic2.src = 'uploads/pics/immo/1/_processed_/3/2/csm_66947-b2_grosses_grundstueck_a99b6a3513.jpg';
allpics.push('uploads/pics/immo/1/_processed_/3/2/csm_66947-b2_grosses_grundstueck_a99b6a3513.jpg');
var pic3 = new Image();pic3.src = 'uploads/pics/immo/1/_processed_/e/9/csm_66947-b3_hauseingangstuer_3eb0c82f6e.jpg';
allpics.push('uploads/pics/immo/1/_processed_/e/9/csm_66947-b3_hauseingangstuer_3eb0c82f6e.jpg');
var pic4 = new Image();pic4.src = 'uploads/pics/immo/1/_processed_/4/d/csm_66947-b4_wohnungstuer_bfc75e110c.jpg';
allpics.push('uploads/pics/immo/1/_processed_/4/d/csm_66947-b4_wohnungstuer_bfc75e110c.jpg');
var pic5 = new Image();pic5.src = 'uploads/pics/immo/1/_processed_/8/f/csm_66947-b5_treppenhaus_7a3cf606fb.jpg';
allpics.push('uploads/pics/immo/1/_processed_/8/f/csm_66947-b5_treppenhaus_7a3cf606fb.jpg');
var pic6 = new Image();pic6.src = 'uploads/pics/immo/1/_processed_/e/4/csm_66947-b6_kueche_1_og_li_1884d6d2e8.jpg';
allpics.push('uploads/pics/immo/1/_processed_/e/4/csm_66947-b6_kueche_1_og_li_1884d6d2e8.jpg');
var pic7 = new Image();pic7.src = 'uploads/pics/immo/1/_processed_/1/e/csm_66947-b7_wohnbereich_1_og_li_e3cada4eb5.jpg';
allpics.push('uploads/pics/immo/1/_processed_/1/e/csm_66947-b7_wohnbereich_1_og_li_e3cada4eb5.jpg');
var pic8 = new Image();pic8.src = 'uploads/pics/immo/1/_processed_/1/4/csm_66947-b8_zimmer_1_og_li_deecbac0c6.jpg';
allpics.push('uploads/pics/immo/1/_processed_/1/4/csm_66947-b8_zimmer_1_og_li_deecbac0c6.jpg');
var pic9 = new Image();pic9.src = 'uploads/pics/immo/1/_processed_/d/f/csm_66947-b9_grundriss_erdgeschoss_82762ed252.jpg';
allpics.push('uploads/pics/immo/1/_processed_/d/f/csm_66947-b9_grundriss_erdgeschoss_82762ed252.jpg');
var pic10 = new Image();pic10.src = 'uploads/pics/immo/1/_processed_/f/6/csm_66947-b10_grundriss_1._obergeschoss_02cd5a7af2.jpg';
allpics.push('uploads/pics/immo/1/_processed_/f/6/csm_66947-b10_grundriss_1._obergeschoss_02cd5a7af2.jpg');
var pic11 = new Image();pic11.src = 'uploads/pics/immo/1/_processed_/6/7/csm_66947-b11_grundriss_2_obergeschoss_54b644114a.jpg';
allpics.push('uploads/pics/immo/1/_processed_/6/7/csm_66947-b11_grundriss_2_obergeschoss_54b644114a.jpg');
Weitere Objekte zu Ihrer Suche
Kontakt
Telefonkontakt
| Immobilienmakler | |
| Dresden: | 0351 433 130 |
| Leipzig: | 0341 600 539 90 |
| Chemnitz: | 0371 238 710 600 |
| Rostock: | 0381 128 736 10 |
| Hausverwaltung | |
| Dresden: | 0351 213 914 60 |
| Mietersprechzeiten | |
| Montag: | 09:00 - 12:00 Uhr 13:00 - 17:00 Uhr |
| Mittwoch: | 09:00 - 12:00 Uhr |
| Donnerstag: | 09:00 - 12:00 Uhr 13:00 - 15:30 Uhr |

























































































































