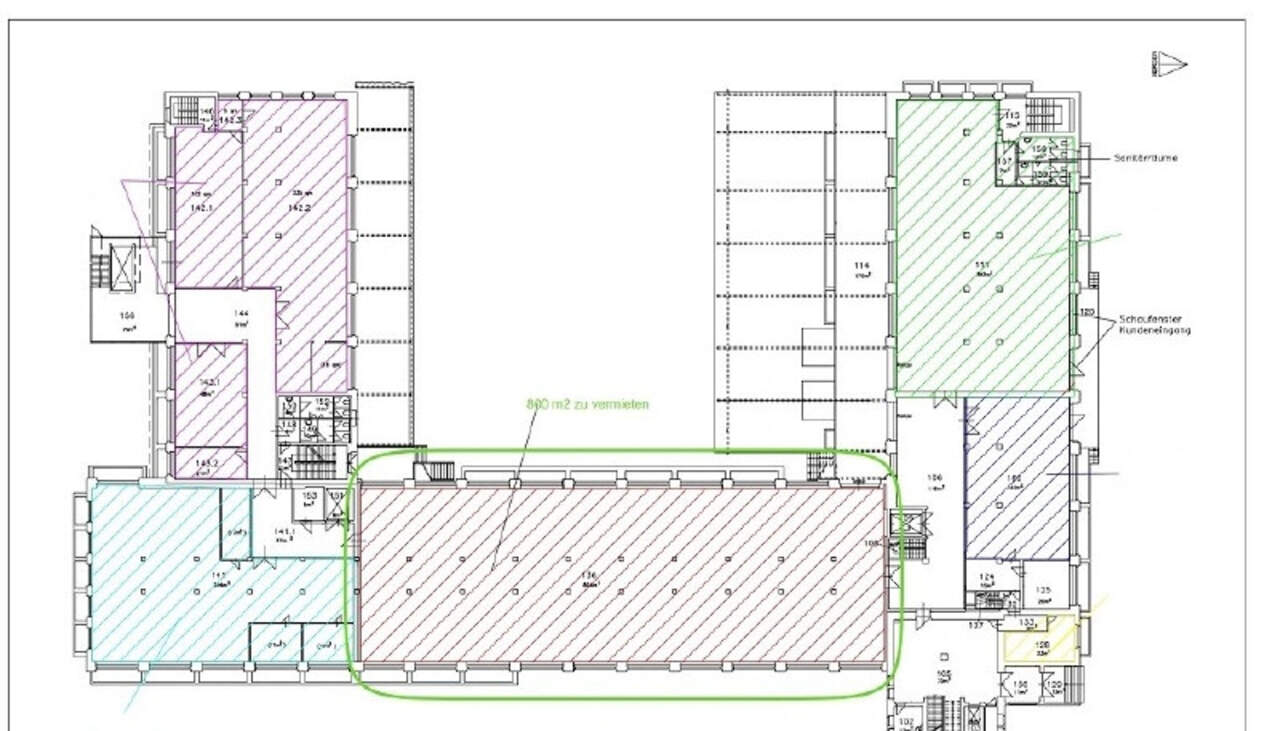
Rund 800 m² Lagerfläche mit TOP-Autobahnanbindung in Dresden zur Miete!
Eckdaten
| Objekt-ID: | 100161 |
| Lage: | 01139 Dresden |
| Immobilienart: | Halle |
| Lagerfläche: | ca. 800 m² |
| Gesamtfläche: | ca. 800 m² |
| Baujahr: | 1953 |
| Bezugstermin: | ab sofort |
| Nettokaltmiete/m²/Monat: | 4,50 € |
| Nebenkosten/m²/Monat: | 2.000,00 € |
| Freiplätze: | 10 |
| Stellplatzmiete: | 25 € |
Beschreibung
Zur Vermietung stehen ca. 800 m² Gewerbefläche, die sich im Erdgeschoss eines bekannten Gewerbeareals befindet.
Es stehen bis zu 10 PKW Stellpätze á 25 €/ Stellplatz im Monat zur Verfügung.
Im Innenhof gibt es 2 Laderampen für die Anlieferung mittels LKW.
Die Immobilie beherbergt neben Büroflächen, auch Lagerflächen, Handels- und Dienstleistungsflächen sowie im Außenbereich einen großen Parkplatz.
Es stehen bis zu 10 PKW Stellpätze á 25 €/ Stellplatz im Monat zur Verfügung.
Im Innenhof gibt es 2 Laderampen für die Anlieferung mittels LKW.
Die Immobilie beherbergt neben Büroflächen, auch Lagerflächen, Handels- und Dienstleistungsflächen sowie im Außenbereich einen großen Parkplatz.
Lage
* befindet sich im Stadtteil Dresden Übigau
* sehr gute Anbindung an ÖPNV
* sehr gute Verkehrsanbindung (Autobahnnah, Flughafen, innerhalb weniger Autominuten im Stadtzentrum,..)
* Anmietung eines PKW-Stellplatzes möglich
* Einkaufsmöglichkeiten nur wenige Autominuten entfernt
* weitere Gewerbe im direkten Umfeld angesiedelt
* öffentliche Kantine im direkten Umfeld
* sehr gute Anbindung an ÖPNV
* sehr gute Verkehrsanbindung (Autobahnnah, Flughafen, innerhalb weniger Autominuten im Stadtzentrum,..)
* Anmietung eines PKW-Stellplatzes möglich
* Einkaufsmöglichkeiten nur wenige Autominuten entfernt
* weitere Gewerbe im direkten Umfeld angesiedelt
* öffentliche Kantine im direkten Umfeld
Ausstattungsbeschreibung
* elektrisches Tor
* LKW Laderampe vorhanden
* Stahlbetonfußboden
* Beleuchtung
* Elektrik & Steckdosen
* Heizung
* Sanitärräume vorhanden
* Bodenbelastung 800 kg/m²
* 4 m Geschosshöhe
* Traglast Lastenaufzug 2.000 kg
* LKW Laderampe vorhanden
* Stahlbetonfußboden
* Beleuchtung
* Elektrik & Steckdosen
* Heizung
* Sanitärräume vorhanden
* Bodenbelastung 800 kg/m²
* 4 m Geschosshöhe
* Traglast Lastenaufzug 2.000 kg
Sonstiges
Hinweis: Fehlende Angaben zum Energieausweis gemäß Energiesparverordnung 2014 ( EnEV ) begründen sich durch Nichtangabepflicht bei Denkmalschutzobjekten, Grundstücken, nichtbeheizbaren Immobilien oder wurden bisher trotz Aufforderung gegenüber dem Auftraggeber nicht zur Verfügung gestellt.
Haftungsausschluss: Trotz sorgfältiger Bearbeitung von Daten, Bildern und Informationen übernehmen wir keine Haftung für die Richtigkeit der Angaben, ebenso wenig für die Lieferfähigkeit des Angebotes bei Vermietung bzw. Verkauf. Bitte beachten Sie hierzu unsere allgemeinen Geschäftsbedingungen die Sie unter www.der-immo-tip.de einsehen können.
Haftungsausschluss: Trotz sorgfältiger Bearbeitung von Daten, Bildern und Informationen übernehmen wir keine Haftung für die Richtigkeit der Angaben, ebenso wenig für die Lieferfähigkeit des Angebotes bei Vermietung bzw. Verkauf. Bitte beachten Sie hierzu unsere allgemeinen Geschäftsbedingungen die Sie unter www.der-immo-tip.de einsehen können.
Kontakt

Objekt anfragen
while(allpics.length > 0){
allpics.pop();
}
var objnummer ="100161";var pic0 = new Image();pic0.src = 'uploads/pics/immo/1/_processed_/2/a/csm__485775_49b1c5cc85.jpg';
allpics.push('uploads/pics/immo/1/_processed_/2/a/csm__485775_49b1c5cc85.jpg');
var pic1 = new Image();pic1.src = 'uploads/pics/immo/1/_processed_/7/b/csm__485765_9a96ab1cec.jpg';
allpics.push('uploads/pics/immo/1/_processed_/7/b/csm__485765_9a96ab1cec.jpg');
var pic2 = new Image();pic2.src = 'uploads/pics/immo/1/_processed_/4/3/csm__485767_5e6093d635.jpg';
allpics.push('uploads/pics/immo/1/_processed_/4/3/csm__485767_5e6093d635.jpg');
var pic3 = new Image();pic3.src = 'uploads/pics/immo/1/_processed_/e/b/csm__485769_4535fba380.jpg';
allpics.push('uploads/pics/immo/1/_processed_/e/b/csm__485769_4535fba380.jpg');
var pic4 = new Image();pic4.src = 'uploads/pics/immo/1/_processed_/4/5/csm__485771_c9f01e9bae.jpg';
allpics.push('uploads/pics/immo/1/_processed_/4/5/csm__485771_c9f01e9bae.jpg');
var pic5 = new Image();pic5.src = 'uploads/pics/immo/1/_processed_/2/6/csm__485773_8f57726e90.jpg';
allpics.push('uploads/pics/immo/1/_processed_/2/6/csm__485773_8f57726e90.jpg');
var pic6 = new Image();pic6.src = 'uploads/pics/immo/1/_processed_/d/0/csm__485777_e99dd72a98.jpg';
allpics.push('uploads/pics/immo/1/_processed_/d/0/csm__485777_e99dd72a98.jpg');
Weitere Objekte zu Ihrer Suche
Erbbaurecht | 7.440 m² Lager-& Produktionsfläche mit Gleisanbindung und im Hafen in Dresden Friedrichstadt
Direkt an der A4 nahe Dresden-Flughafen | Halle mit ca. 1.150 m² & Freifläche ca. 4.400 m² zum Kauf!
Lager- und Produktionsflächen direkt an der S177 und S81 - unweit der Halbleiterindustrie - zum Kauf!
Lager- und Produktionsflächen direkt an der S177 und S81 - unweit der Halbleiterindustrie - zum Kauf!
Zur Vermietung oder Selbstnutzung - Immobilienpaket nahe Dresden | 14 Gewerbeeinheiten & 21 TG Stellplätze in Coswig zum Kauf
Zur Vermietung oder Selbstnutzung - Immobilienpaket nahe Dresden | 14 Gewerbeeinheiten & 21 TG Stellplätze in Coswig zum Kauf
Kontakt
Telefonkontakt
| Immobilienmakler | |
| Dresden: | 0351 433 130 |
| Leipzig: | 0341 600 539 90 |
| Chemnitz: | 0371 238 710 600 |
| Hausverwaltung | |
| Dresden: | 0351 213 914 60 |
| Mietersprechzeiten | |
| Montag: | 09:00 - 12:00 Uhr 13:00 - 17:00 Uhr |
| Mittwoch: | 09:00 - 12:00 Uhr |
| Donnerstag: | 09:00 - 12:00 Uhr 13:00 - 15:30 Uhr |



















































































































































































































































































































































































































































