Rund 750 m² Halle & Laborfläche in Dresden Niedersedlitz zur Miete
Eckdaten
| Objekt-ID: | 31496_04 |
| Lage: | 01257 Dresden |
| Immobilienart: | Halle |
| Gesamtfläche: | ca. 751 m² |
| Baujahr: | 1978 |
| Bezugstermin: | ab sofort |
| Nettokaltmiete/m²/Monat: | 9,50 € |
| Nebenkosten/m²/Monat: | 1.877,50 € |
| Mieterprovision: | 2,38 Nettokaltmieten inkl. MwSt. |
Beschreibung
Zur Vermietung steht eine ca. 751 m² große Gewerbefläche, die sich innerhalb eines 200.000 m² großen Gewerbeareals befindet. Innerhalb des Areals befinden sich Lager-und Logistikflächen, Produktionsstätten und Bürobereiche. Es sind Unternehmen aus Wissenschaft, Forschung, der Logistikbranche, aber auch Start-ups Mieter.
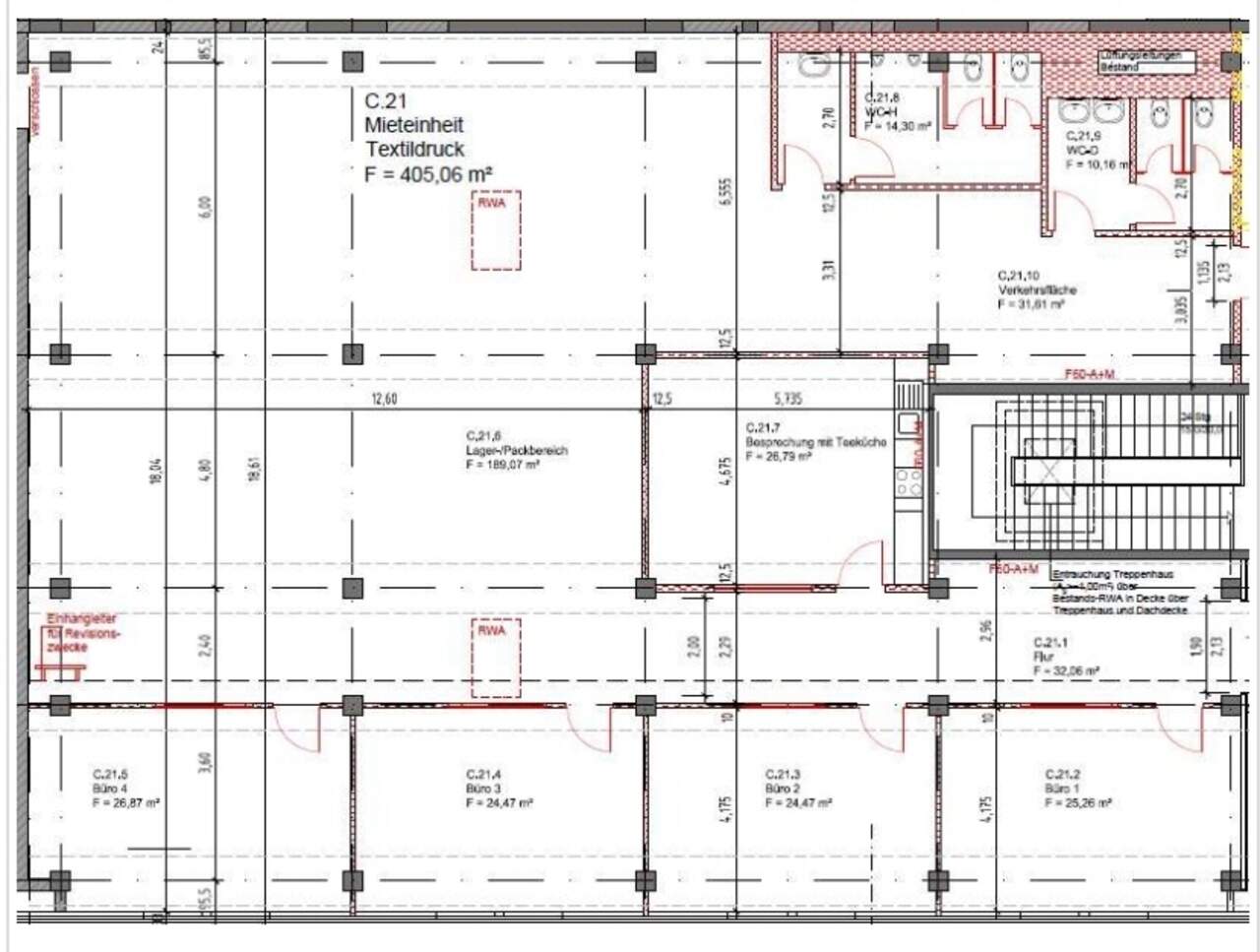
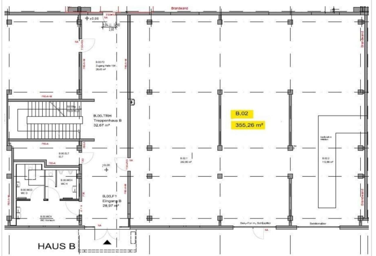
Die Mietfläche teilt sich in zwei Teilbereiche auf:
EG mit ca. 351 m² Hallenfläche mit Sektionaltor
2.OG mit ca. 400 m² (ideal für Labor, Werkstatt, Büro)
Der Mietzins für die Erdgeschossfläche beträgt 9,50 €/m² zzgl. NK und Mwst. und die Kaltmiete für das 2.Obergeschoss 7,00 €/m².
Es ist auch eine Teilflächenanmietung, mit minimaler Teilung pro Etage, möglich.
Bei Interesse stimmen wir gern einen Besichtigungstermin ab.
Die Mietfläche teilt sich in zwei Teilbereiche auf:
EG mit ca. 351 m² Hallenfläche mit Sektionaltor
2.OG mit ca. 400 m² (ideal für Labor, Werkstatt, Büro)
Der Mietzins für die Erdgeschossfläche beträgt 9,50 €/m² zzgl. NK und Mwst. und die Kaltmiete für das 2.Obergeschoss 7,00 €/m².
Es ist auch eine Teilflächenanmietung, mit minimaler Teilung pro Etage, möglich.
Bei Interesse stimmen wir gern einen Besichtigungstermin ab.
Lage
Die Immobilie befindet sich in Dresden Niedersedlitz, innerhalb eines Gewerbeareals.
Das Gewerbezentrum ist in unmittelbarer Nähe der Autobahnabfahrt Dresden Prohlis gelegen. Auf schnellem Wege gelangt man demzufolge von der A17 auf die A4, welche weiter zur A13 und zur A14 führt. Unweit vom Gewerbegebiet befinden sich zudem die Europastraße E55 und die Bundesstraße B172. Das Grundstücksareal liegt inmitten eines sich stark entwickelten Gewerbegebiets der Stadt Dresden und ist somit insbesondere für Logistik- und lagerintensive Unternehmen interessant.
Das Gewerbezentrum ist in unmittelbarer Nähe der Autobahnabfahrt Dresden Prohlis gelegen. Auf schnellem Wege gelangt man demzufolge von der A17 auf die A4, welche weiter zur A13 und zur A14 führt. Unweit vom Gewerbegebiet befinden sich zudem die Europastraße E55 und die Bundesstraße B172. Das Grundstücksareal liegt inmitten eines sich stark entwickelten Gewerbegebiets der Stadt Dresden und ist somit insbesondere für Logistik- und lagerintensive Unternehmen interessant.
Ausstattungsbeschreibung
- Halle -
* Sektionaltor
* Sanitäranlagen
* Starkstrom
* ebenerdig befahrbar
- Büro -
* getrennte Sanitäranlage
* Aufzug
* 4 Büroräume
* repräsentativer Eingangsbereich
- Allgemein -
* Autobahnnah
* Umzäuntes Gewerbegrundstück
* Sektionaltor
* Sanitäranlagen
* Starkstrom
* ebenerdig befahrbar
- Büro -
* getrennte Sanitäranlage
* Aufzug
* 4 Büroräume
* repräsentativer Eingangsbereich
- Allgemein -
* Autobahnnah
* Umzäuntes Gewerbegrundstück
Sonstiges
Haftungsausschluss: Trotz sorgfältiger Bearbeitung von Daten, Bildern und Informationen übernehmen wir keine Haftung für die Richtigkeit der Angaben, ebenso wenig für die Lieferfähigkeit des Angebotes bei Vermietung bzw. Verkauf. Bitte beachten Sie hierzu unsere allgemeinen Geschäftsbedingungen die Sie unter www.der-immo-tip.de einsehen können.
Energieeffizienz
| Energieausweistyp: | Bedarfsausweis |
| Denkmalschutz: | Nein |
Kontakt

Objekt anfragen
while(allpics.length > 0){
allpics.pop();
}
var objnummer ="31496_04";var pic0 = new Image();pic0.src = 'uploads/pics/immo/1/_processed_/0/5/csm__473603_cba9b275d1.jpg';
allpics.push('uploads/pics/immo/1/_processed_/0/5/csm__473603_cba9b275d1.jpg');
var pic1 = new Image();pic1.src = 'uploads/pics/immo/1/_processed_/b/1/csm__473605_3e281838d7.jpg';
allpics.push('uploads/pics/immo/1/_processed_/b/1/csm__473605_3e281838d7.jpg');
var pic2 = new Image();pic2.src = 'uploads/pics/immo/1/_processed_/5/7/csm__473607_41ec9fabc1.jpg';
allpics.push('uploads/pics/immo/1/_processed_/5/7/csm__473607_41ec9fabc1.jpg');
var pic3 = new Image();pic3.src = 'uploads/pics/immo/1/_processed_/b/d/csm__473609_8018b058bb.jpg';
allpics.push('uploads/pics/immo/1/_processed_/b/d/csm__473609_8018b058bb.jpg');
Weitere Objekte zu Ihrer Suche
Direkt an der A4 nahe Dresden-Flughafen | Halle mit ca. 1.150 m² & Freifläche ca. 4.400 m² zum Kauf!
Lager- und Produktionsflächen direkt an der S177 und S81 - unweit der Halbleiterindustrie - zum Kauf!
Erbbaurecht | 7.440 m² Lager-& Produktionsfläche mit Gleisanbindung und im Hafen in Dresden Friedrichstadt
Zur Vermietung oder Selbstnutzung - Immobilienpaket nahe Dresden | 14 Gewerbeeinheiten & 21 TG Stellplätze in Coswig zum Kauf
Helle 2-Zimmer-Wohnung in Kleinschachwitz | Eigennutzung oder Kapitalanlage | Balkon & TG-Stellplatz
Lager- und Produktionsflächen direkt an der S177 und S81 - unweit der Halbleiterindustrie - zum Kauf!
Helle 2-Zimmer-Wohnung in Kleinschachwitz | Eigennutzung oder Kapitalanlage | Balkon & TG-Stellplatz
Zur Vermietung oder Selbstnutzung - Immobilienpaket nahe Dresden | 14 Gewerbeeinheiten & 21 TG Stellplätze in Coswig zum Kauf
Kontakt
Telefonkontakt
| Immobilienmakler | |
| Dresden: | 0351 433 130 |
| Leipzig: | 0341 600 539 90 |
| Chemnitz: | 0371 238 710 600 |
| Hausverwaltung | |
| Dresden: | 0351 213 914 60 |
| Mietersprechzeiten | |
| Montag: | 09:00 - 12:00 Uhr 13:00 - 17:00 Uhr |
| Mittwoch: | 09:00 - 12:00 Uhr |
| Donnerstag: | 09:00 - 12:00 Uhr 13:00 - 15:30 Uhr |

















































































































































































































































































































































































































































