Rund 7.000 m² Freifläche im Südosten von Dresden zur MIETE
Eckdaten
| Objekt-ID: | 52546 |
| Lage: | 01259 Dresden |
| Immobilienart: | Gewerbe |
| Grundstücksfläche: | ca. 7.000 m² |
| Gesamtfläche: | ca. 7.000 m² |
| Nettokaltmiete/m²: | 1,25 € |
Beschreibung
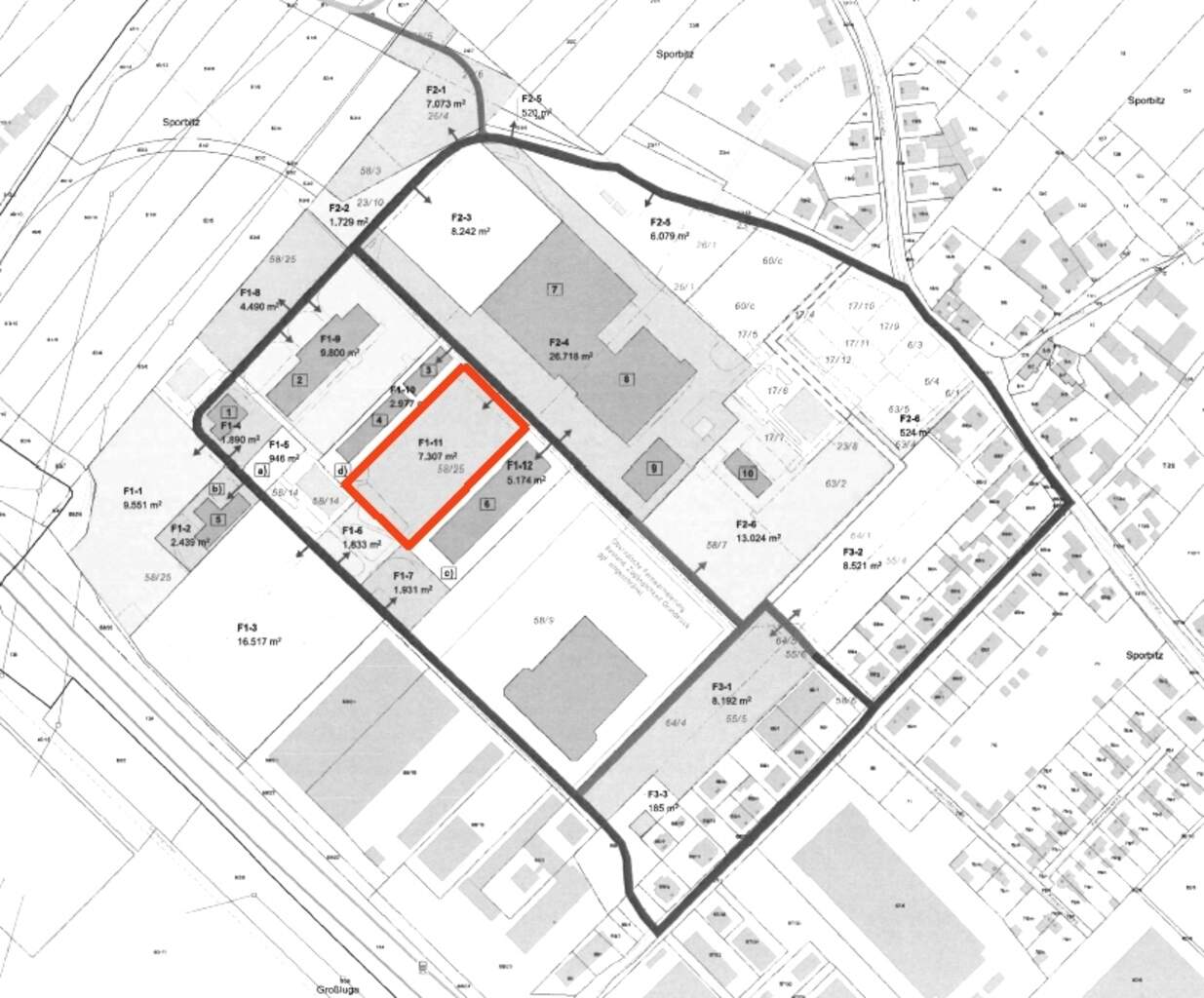
Zur Vermietung steht eine ca. 7.307 m² große Freifläche, die sich innerhalb eines Gewerbeareals befindet.
Auf dem Gelände befinden sich eine Vielzahl von Hallenflächen zur gewerblichen Nutzung und großflächige versiegenlten Freiflächen.
Aktuell können Freiflächen zwischen ca. 1.000 m² und 16.500 m² angemietet werden und Hallenflächen zwischen 500 m² und 10.000 m².
Bei Interesse erhalten Sie gern weiterführende Informationen.
Auf dem Gelände befinden sich eine Vielzahl von Hallenflächen zur gewerblichen Nutzung und großflächige versiegenlten Freiflächen.
Aktuell können Freiflächen zwischen ca. 1.000 m² und 16.500 m² angemietet werden und Hallenflächen zwischen 500 m² und 10.000 m².
Bei Interesse erhalten Sie gern weiterführende Informationen.
Lage
Das Gewerbeanwesen befindet sich in Dresden Sporbitz, nur ca. 5 Autominuten von der Autobahn A 17 entfernt.
Der Stadtteil liegt im Südosten der sächsischen Landeshauptstadt Dresden, ca. 10 Kilometer des Dresdner Stadtzentrums entfernt. Benachbarte Gemarkungen sind Meußlitz im Nordosten, Großzschachwitz im Norden und Großluga im Westen. Im Südwesten und Südosten grenzen entlang der Stadtaußengrenze Dresdens die Heidenauer Stadtteile Gommern und Mögeln an.
Der Stadtteil liegt im Südosten der sächsischen Landeshauptstadt Dresden, ca. 10 Kilometer des Dresdner Stadtzentrums entfernt. Benachbarte Gemarkungen sind Meußlitz im Nordosten, Großzschachwitz im Norden und Großluga im Westen. Im Südwesten und Südosten grenzen entlang der Stadtaußengrenze Dresdens die Heidenauer Stadtteile Gommern und Mögeln an.
Sonstiges
Haftungsausschluss: Trotz sorgfältiger Bearbeitung von Daten, Bildern und Informationen übernehmen wir keine Haftung für die Richtigkeit der Angaben, ebenso wenig für die Lieferfähigkeit des Angebotes bei Vermietung bzw. Verkauf. Bitte beachten Sie hierzu unsere allgemeinen Geschäftsbedingungen die Sie unter www.der-immo-tip.de einsehen können.
Kontakt

Objekt anfragen
while(allpics.length > 0){
allpics.pop();
}
var objnummer ="52546";var pic0 = new Image();pic0.src = 'uploads/pics/immo/1/_processed_/7/a/csm_cfd88b2f-c844-4d0a-89b2-c320e8ddc3d8_18ca9fe595.jpg';
allpics.push('uploads/pics/immo/1/_processed_/7/a/csm_cfd88b2f-c844-4d0a-89b2-c320e8ddc3d8_18ca9fe595.jpg');
var pic1 = new Image();pic1.src = 'uploads/pics/immo/1/_processed_/e/5/csm_bf3a8c9a-1f0f-4784-872d-9aa96871137c_9dae07dcd6.jpg';
allpics.push('uploads/pics/immo/1/_processed_/e/5/csm_bf3a8c9a-1f0f-4784-872d-9aa96871137c_9dae07dcd6.jpg');
var pic2 = new Image();pic2.src = 'uploads/pics/immo/1/_processed_/0/6/csm_f3f4144b-3ff8-45fe-9416-4fbddf44dc36_09ae0de31b.jpg';
allpics.push('uploads/pics/immo/1/_processed_/0/6/csm_f3f4144b-3ff8-45fe-9416-4fbddf44dc36_09ae0de31b.jpg');
Weitere Objekte zu Ihrer Suche
Lager- und Produktionsflächen direkt an der S177 und S81 - unweit der Halbleiterindustrie - zum Kauf!
Lager- und Produktionsflächen direkt an der S177 und S81 - unweit der Halbleiterindustrie - zum Kauf!
Kontakt
Telefonkontakt
| Immobilienmakler | |
| Dresden: | 0351 433 130 |
| Leipzig: | 0341 600 539 90 |
| Chemnitz: | 0371 238 710 600 |
| Hausverwaltung | |
| Dresden: | 0351 213 914 60 |
| Mietersprechzeiten | |
| Montag: | 09:00 - 12:00 Uhr 13:00 - 17:00 Uhr |
| Mittwoch: | 09:00 - 12:00 Uhr |
| Donnerstag: | 09:00 - 12:00 Uhr 13:00 - 15:30 Uhr |







































































































































































































































































































































































































































































