Rund 670 m² Bürofläche nahe der Innenstadt | Beste Verkehrsanbindung
Eckdaten
| Objekt-ID: | 4429_02 |
| Lage: | 01067 Dresden |
| Immobilienart: | Bürofläche |
| Etage: | 6 |
| Bürofläche: | ca. 663 m² |
| Gesamtfläche: | ca. 663 m² |
| Baujahr: | 1998 |
| Bezugstermin: | kurzfristig |
| Nettokaltmiete/m²: | 12,50 € |
| Nebenkosten: | 4,50 € |
Beschreibung
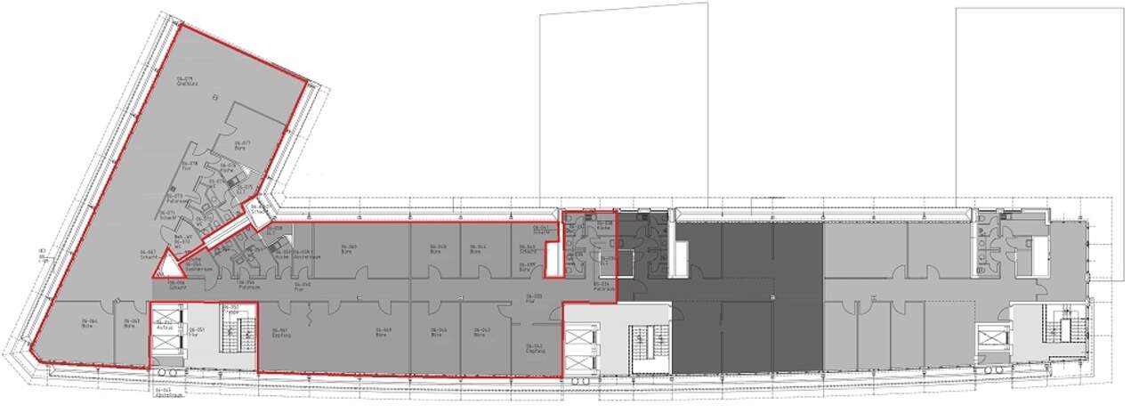
Zur Vermietung steht eine ca. 663 m² große Bürofläche, die sich im 6. Obergeschoss eines siebengeschossigen Büro- und Geschäftshauses (Baujahr 1998) befindet.
Die zugehörige Tiefgarage verfügt über ein Doppelparkersystem für über 80 Stellplätze.
Bei Interesse stimmen wir gern einen Besichtigungstermin ab.
Die zugehörige Tiefgarage verfügt über ein Doppelparkersystem für über 80 Stellplätze.
Bei Interesse stimmen wir gern einen Besichtigungstermin ab.
Lage
* Wilsdruffer Vorstadt in Dresden
* dirket am Verkehrsknotenpunkt: "Bahnhof Dresden-Mitte"
* an stark frequentierter Straße
* öffentliche Verkehrsmittel in unmittelbarer Umgebung
* geringe Entfernung zum Stadtzentrum
* Hauptbahnhof in 5 Autominuten zu erreichen
* Autobahn A 4 in 10 Autominuten zu erreichen
* Flughafen Dresden in 15 Autominuten zu erreichen
Die Immobilie liegt im Ortsamtsbereich Altstadt zu dem die Stadtteile Innere Altstadt, Wilsdruffer Vorstadt, Seevorstadt, Pirnaische Vorstadt, Johannstadt, Friedrichstadt und Südvorstadt gehören. Das Stadtzentrum besticht neben dem historisch repräsentativen Stadtkern vor allem durch die sehr gute Anbindung zum ÖPNV, die Nähe zum Hauptbahnhof und den vielen Einkaufsmöglichkeiten sowie allen oberzentralen Funktionen der Landeshauptstadt. Damit ist Dresden-City einer der bedeutendsten Geschäftsstandorte in Ostdeutschland.
Büro 3.7
* dirket am Verkehrsknotenpunkt: "Bahnhof Dresden-Mitte"
* an stark frequentierter Straße
* öffentliche Verkehrsmittel in unmittelbarer Umgebung
* geringe Entfernung zum Stadtzentrum
* Hauptbahnhof in 5 Autominuten zu erreichen
* Autobahn A 4 in 10 Autominuten zu erreichen
* Flughafen Dresden in 15 Autominuten zu erreichen
Die Immobilie liegt im Ortsamtsbereich Altstadt zu dem die Stadtteile Innere Altstadt, Wilsdruffer Vorstadt, Seevorstadt, Pirnaische Vorstadt, Johannstadt, Friedrichstadt und Südvorstadt gehören. Das Stadtzentrum besticht neben dem historisch repräsentativen Stadtkern vor allem durch die sehr gute Anbindung zum ÖPNV, die Nähe zum Hauptbahnhof und den vielen Einkaufsmöglichkeiten sowie allen oberzentralen Funktionen der Landeshauptstadt. Damit ist Dresden-City einer der bedeutendsten Geschäftsstandorte in Ostdeutschland.
Büro 3.7
Ausstattungsbeschreibung
* Hausinterne BMA mit Aufschaltung zur Feuerwehr
* Zentrale Lüftung mit Konfektionierung
* voll ausgestattete Teeküche
* Ausstattung und Raumaufteilung nach Mieterwunsch
* EDV-Verkabelung
* Tiefgaragen-Stellplatz möglich
* Zentrale Lüftung mit Konfektionierung
* voll ausgestattete Teeküche
* Ausstattung und Raumaufteilung nach Mieterwunsch
* EDV-Verkabelung
* Tiefgaragen-Stellplatz möglich
Sonstiges
Haftungsausschluss: Trotz sorgfältiger Bearbeitung von Daten, Bildern und Informationen übernehmen wir keine Haftung für die Richtigkeit der Angaben, ebenso wenig für die Lieferfähigkeit des Angebotes bei Vermietung bzw. Verkauf. Bitte beachten Sie hierzu unsere allgemeinen Geschäftsbedingungen die Sie unter www.der-immo-tip.de einsehen können.
Energieeffizienz
| Energieausweistyp: | Verbrauchsausweis |
| Denkmalschutz: | Nein |
Kontakt

Objekt anfragen
while(allpics.length > 0){
allpics.pop();
}
var objnummer ="4429_02";var pic0 = new Image();pic0.src = 'uploads/pics/immo/1/_processed_/5/8/csm__465427_c58c73d5a0.jpg';
allpics.push('uploads/pics/immo/1/_processed_/5/8/csm__465427_c58c73d5a0.jpg');
var pic1 = new Image();pic1.src = 'uploads/pics/immo/1/_processed_/1/6/csm__465431_0909308875.jpg';
allpics.push('uploads/pics/immo/1/_processed_/1/6/csm__465431_0909308875.jpg');
var pic2 = new Image();pic2.src = 'uploads/pics/immo/1/_processed_/9/5/csm__465433_717db45d32.jpg';
allpics.push('uploads/pics/immo/1/_processed_/9/5/csm__465433_717db45d32.jpg');
var pic3 = new Image();pic3.src = 'uploads/pics/immo/1/_processed_/5/f/csm__465435_a5c235c4a9.jpg';
allpics.push('uploads/pics/immo/1/_processed_/5/f/csm__465435_a5c235c4a9.jpg');
var pic4 = new Image();pic4.src = 'uploads/pics/immo/1/_processed_/b/9/csm__465437_3a25c8a52b.jpg';
allpics.push('uploads/pics/immo/1/_processed_/b/9/csm__465437_3a25c8a52b.jpg');
Weitere Objekte zu Ihrer Suche
Erbbaurecht | 7.440 m² Lager-& Produktionsfläche mit Gleisanbindung und im Hafen in Dresden Friedrichstadt
Lager- und Produktionsflächen direkt an der S177 und S81 - unweit der Halbleiterindustrie - zum Kauf!
Kontakt
Telefonkontakt
| Immobilienmakler | |
| Dresden: | 0351 433 130 |
| Leipzig: | 0341 600 539 90 |
| Chemnitz: | 0371 238 710 600 |
| Hausverwaltung | |
| Dresden: | 0351 213 914 60 |
| Mietersprechzeiten | |
| Montag: | 09:00 - 12:00 Uhr 13:00 - 17:00 Uhr |
| Mittwoch: | 09:00 - 12:00 Uhr |
| Donnerstag: | 09:00 - 12:00 Uhr 13:00 - 15:30 Uhr |











































































































































































































































































































































































































































































