Rund 406 m² Ladenbüro zur Miete | Leipzig City | Werden Sie Mieter im Lipanum
Eckdaten
| Objekt-ID: | 66042 |
| Lage: | 04109 Leipzig |
| Immobilienart: | Verbrauchermarkt |
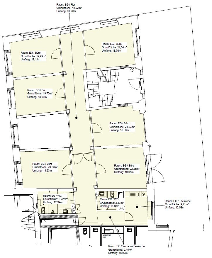
| Gesamtfläche: | ca. 406 m² |
| Nettokaltmiete/m²/Monat: | 12,50 € |
| Nebenkosten/m²/Monat: | 1.421,00 € |
| Sonstige Stellplätze: | 2 |
Beschreibung
Zur Vermietung steht ein ca. 406 m² großes Ladenbüro, welches sich im Erdgeschoss eines denkmalgeschützten Bürogebäudes befindet. Die Immobilie wurde 1996 aufwendig und detailgetreu saniert.
Im direkt hinter dem Gebäude gelegenen Parkhaus können 2 PKW Stellplätze á 80 € pro Stellplatz angemietet werden und zusätzlich Lagerfläche im Keller ab ca. 10 m² für 5€/m².
Bei Interesse stimmen wir gern einen Besichtigungstermin ab .
Im direkt hinter dem Gebäude gelegenen Parkhaus können 2 PKW Stellplätze á 80 € pro Stellplatz angemietet werden und zusätzlich Lagerfläche im Keller ab ca. 10 m² für 5€/m².
Bei Interesse stimmen wir gern einen Besichtigungstermin ab .
Lage
Die Immobilie befindet sich im Zentrum West von Leipzig.
Zwischen den Zentrumsvierteln Nordwest und Süd liegt auf der stadtzugewandten Seite des Elsterbeckens das Zentrum-West. Dieser Stadtteil bietet verschiedene Wohngegenden, eine abwechslungsreiche Gastronomieszene sowie viele universitäre und kulturelle Einrichtungen.
Am Westplatz, in der geografischen Mitte des Viertels, kreuzen sich die Tramlinien 2 und 8 sowie 1 und 14. Am nahe gelegenen Waldplatz verkehren zudem die Linien 3, 4, 7 und 15. Bus Nr. 89, aus der Innenstadt kommend, streift das Zentrum West ebenfalls.
Zwischen den Zentrumsvierteln Nordwest und Süd liegt auf der stadtzugewandten Seite des Elsterbeckens das Zentrum-West. Dieser Stadtteil bietet verschiedene Wohngegenden, eine abwechslungsreiche Gastronomieszene sowie viele universitäre und kulturelle Einrichtungen.
Am Westplatz, in der geografischen Mitte des Viertels, kreuzen sich die Tramlinien 2 und 8 sowie 1 und 14. Am nahe gelegenen Waldplatz verkehren zudem die Linien 3, 4, 7 und 15. Bus Nr. 89, aus der Innenstadt kommend, streift das Zentrum West ebenfalls.
Ausstattungsbeschreibung
* Denkmalschutz
* repräsentatives Foyer mit Naturstein
* zwei Hauseingänge
* Treppenhaus mit historischen Holztreppen
* Außenliegender Sonnenschutz
* hochwertige Sanitärräume
* Stellplätze Tiefgarage oder im benachbarten Parkhaus
* repräsentatives Foyer mit Naturstein
* zwei Hauseingänge
* Treppenhaus mit historischen Holztreppen
* Außenliegender Sonnenschutz
* hochwertige Sanitärräume
* Stellplätze Tiefgarage oder im benachbarten Parkhaus
Sonstiges
Haftungsausschluss: Trotz sorgfältiger Bearbeitung von Daten, Bildern und Informationen übernehmen wir keine Haftung für die Richtigkeit der Angaben, ebenso wenig für die Lieferfähigkeit des Angebotes bei Vermietung bzw. Verkauf. Bitte beachten Sie hierzu unsere allgemeinen Geschäftsbedingungen die Sie unter www.der-immo-tip.de einsehen können.
Kontakt

Objekt anfragen
while(allpics.length > 0){
allpics.pop();
}
var objnummer ="66042";var pic0 = new Image();pic0.src = 'uploads/pics/immo/1/2c44483e-f810-4f3c-a17d-704cb39991c8.jpg';
allpics.push('uploads/pics/immo/1/2c44483e-f810-4f3c-a17d-704cb39991c8.jpg');
var pic1 = new Image();pic1.src = 'uploads/pics/immo/1/622ed2f2-5929-458c-ac97-8f56823ad236.jpg';
allpics.push('uploads/pics/immo/1/622ed2f2-5929-458c-ac97-8f56823ad236.jpg');
var pic2 = new Image();pic2.src = 'uploads/pics/immo/1/403411a8-465c-4e61-9628-bd2dab06af0d.jpg';
allpics.push('uploads/pics/immo/1/403411a8-465c-4e61-9628-bd2dab06af0d.jpg');
var pic3 = new Image();pic3.src = 'uploads/pics/immo/1/8a48333f-592b-4eed-b07c-7472a825d906.jpg';
allpics.push('uploads/pics/immo/1/8a48333f-592b-4eed-b07c-7472a825d906.jpg');
var pic4 = new Image();pic4.src = 'uploads/pics/immo/1/dce3e98c-a4f8-4c17-846e-6e1253fe4a2a.jpg';
allpics.push('uploads/pics/immo/1/dce3e98c-a4f8-4c17-846e-6e1253fe4a2a.jpg');
var pic5 = new Image();pic5.src = 'uploads/pics/immo/1/6b6289ae-d2ff-4d81-a3b4-daadb9134c0e.jpg';
allpics.push('uploads/pics/immo/1/6b6289ae-d2ff-4d81-a3b4-daadb9134c0e.jpg');
var pic6 = new Image();pic6.src = 'uploads/pics/immo/1/4ecce250-a936-4dcb-ac17-a098ad8d762b.jpg';
allpics.push('uploads/pics/immo/1/4ecce250-a936-4dcb-ac17-a098ad8d762b.jpg');
Weitere Objekte zu Ihrer Suche
Kontakt
Telefonkontakt
| Immobilienmakler | |
| Dresden: | 0351 433 130 |
| Leipzig: | 0341 600 539 90 |
| Chemnitz: | 0371 238 710 600 |
| Hausverwaltung | |
| Dresden: | 0351 213 914 60 |
| Mietersprechzeiten | |
| Montag: | 09:00 - 12:00 Uhr 13:00 - 17:00 Uhr |
| Mittwoch: | 09:00 - 12:00 Uhr |
| Donnerstag: | 09:00 - 12:00 Uhr 13:00 - 15:30 Uhr |






















































































































