Projektiertes Gewerbegrundstück für Bürohaus in Dresden-Nord zum Kauf!
Eckdaten
| Objekt-ID: | 54687_01 |
| Lage: | 01099 Dresden |
| Immobilienart: | Bürohaus |
| Grundstücksfläche: | ca. 1.696 m² |
| Lagerfläche: | ca. 86 m² |
| Bürofläche: | ca. 1.785 m² |
| Gesamtfläche: | ca. 1.871 m² |
| Kaufpreis: | 450.000,00 € |
| Kaufpreis/m²: | 240,51 € |
| Sonstige Stellplätze: | 22 |
Beschreibung
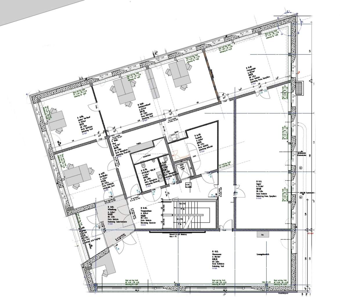
Zum Verkauf steht ein projektiertes Gewerbegrundstück mit (nunmehr ausgelaufener ) Baugenehmigung für ein ca. 1.871 m² (BGF) großes Bürohaus. Die Planung sah den Bau eines 3-geschossigen Bürohaus sowie Untergschoss mit Aufzug vor. Das 2.OG sah eine Loggia mit ca. 46 m² vor. Um zusätzlichen Bürobedarf abdecken zu können, sollte hier geprüft werden, inwieweit die Loggia weiteren Büroflächen weichen kann, bzw. sollte.
Gerne stellen wir Ihenn bei Bedarf alle weiteren Unterlagen zum Objekt/Neubauvorhaben, bzw. Grundstück zur Verfügung.
Gerne stellen wir Ihenn bei Bedarf alle weiteren Unterlagen zum Objekt/Neubauvorhaben, bzw. Grundstück zur Verfügung.
Lage
* befindet sich in Dresden Albertstadt
* innerhalb eines Industriegebiet
* Freifläche ist umgeben von gewachsenen Gewerbebetrieben
* sehr gute Verkehrsanbindung (innerhalb weniger Autominuten erreicht man den Flughafen und die Autobahn)
* ca. 3 km vom Stadtzentrum entfernt
* unweit der Königsbrücker Straße gelegen
* im Norden von Dresden
* innerhalb eines Industriegebiet
* Freifläche ist umgeben von gewachsenen Gewerbebetrieben
* sehr gute Verkehrsanbindung (innerhalb weniger Autominuten erreicht man den Flughafen und die Autobahn)
* ca. 3 km vom Stadtzentrum entfernt
* unweit der Königsbrücker Straße gelegen
* im Norden von Dresden
Sonstiges
Haftungsausschluss: Trotz sorgfältiger Bearbeitung von Daten, Bildern und Informationen übernehmen wir keine Haftung für die Richtigkeit der Angaben, ebenso wenig für die Lieferfähigkeit des Angebotes bei Vermietung bzw. Verkauf. Bitte beachten Sie hierzu unsere allgemeinen Geschäftsbedingungen die Sie unter www.der-immo-tip.de einsehen können.
Kontakt

Objekt anfragen
while(allpics.length > 0){
allpics.pop();
}
var objnummer ="54687_01";var pic0 = new Image();pic0.src = 'uploads/pics/immo/1/_processed_/f/7/csm__479439_d85f3e37b5.jpg';
allpics.push('uploads/pics/immo/1/_processed_/f/7/csm__479439_d85f3e37b5.jpg');
var pic1 = new Image();pic1.src = 'uploads/pics/immo/1/_processed_/5/7/csm__479441_d6fba32cfe.jpg';
allpics.push('uploads/pics/immo/1/_processed_/5/7/csm__479441_d6fba32cfe.jpg');
var pic2 = new Image();pic2.src = 'uploads/pics/immo/1/_processed_/a/a/csm__479443_8530c9640b.jpg';
allpics.push('uploads/pics/immo/1/_processed_/a/a/csm__479443_8530c9640b.jpg');
var pic3 = new Image();pic3.src = 'uploads/pics/immo/1/_processed_/7/7/csm__479445_729135eca9.jpg';
allpics.push('uploads/pics/immo/1/_processed_/7/7/csm__479445_729135eca9.jpg');
var pic4 = new Image();pic4.src = 'uploads/pics/immo/1/_processed_/3/f/csm__479447_4603f710fa.jpg';
allpics.push('uploads/pics/immo/1/_processed_/3/f/csm__479447_4603f710fa.jpg');
var pic5 = new Image();pic5.src = 'uploads/pics/immo/1/_processed_/7/9/csm__479449_57d9cd6c08.jpg';
allpics.push('uploads/pics/immo/1/_processed_/7/9/csm__479449_57d9cd6c08.jpg');
var pic6 = new Image();pic6.src = 'uploads/pics/immo/1/_processed_/3/3/csm__479451_c861e29126.jpg';
allpics.push('uploads/pics/immo/1/_processed_/3/3/csm__479451_c861e29126.jpg');
var pic7 = new Image();pic7.src = 'uploads/pics/immo/1/_processed_/0/6/csm__479453_27eca3a01e.jpg';
allpics.push('uploads/pics/immo/1/_processed_/0/6/csm__479453_27eca3a01e.jpg');
var pic8 = new Image();pic8.src = 'uploads/pics/immo/1/_processed_/9/4/csm__479455_363186fdc5.jpg';
allpics.push('uploads/pics/immo/1/_processed_/9/4/csm__479455_363186fdc5.jpg');
var pic9 = new Image();pic9.src = 'uploads/pics/immo/1/_processed_/4/8/csm__479457_4a52a5402f.jpg';
allpics.push('uploads/pics/immo/1/_processed_/4/8/csm__479457_4a52a5402f.jpg');
Weitere Objekte zu Ihrer Suche
Lager- und Produktionsflächen direkt an der S177 und S81 - unweit der Halbleiterindustrie - zum Kauf!
Erbbaurecht | 7.440 m² Lager-& Produktionsfläche mit Gleisanbindung und im Hafen in Dresden Friedrichstadt
Helle 2-Zimmer-Wohnung in Kleinschachwitz | Eigennutzung oder Kapitalanlage | Balkon & TG-Stellplatz
Lager- und Produktionsflächen direkt an der S177 und S81 - unweit der Halbleiterindustrie - zum Kauf!
Kontakt
Telefonkontakt
| Immobilienmakler | |
| Dresden: | 0351 433 130 |
| Leipzig: | 0341 600 539 90 |
| Chemnitz: | 0371 238 710 600 |
| Hausverwaltung | |
| Dresden: | 0351 213 914 60 |
| Mietersprechzeiten | |
| Montag: | 09:00 - 12:00 Uhr 13:00 - 17:00 Uhr |
| Mittwoch: | 09:00 - 12:00 Uhr |
| Donnerstag: | 09:00 - 12:00 Uhr 13:00 - 15:30 Uhr |



















































































































































































































































































































































































































































































































































































































































































