Neuwertige - ca. 1.600 m² große - Produktionsfläche mit Büro in Freiberg zur Miete!
Eckdaten
| Objekt-ID: | 63654 |
| Lage: | 09599 Freiberg |
| Immobilienart: | Prod./ Lager / Gewerbehallen |
| Gesamtfläche: | ca. 1.576 m² |
| Bezugstermin: | nach Absprache |
| Nettokaltmiete: | auf Anfrage |
Beschreibung
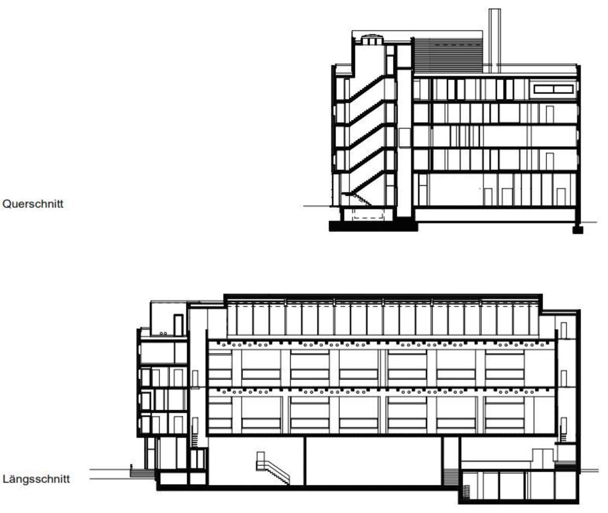
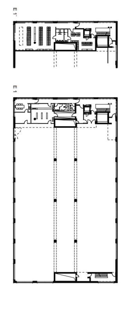
Zur Vermietung steht eine ca. 1.576 m² große Gewerbefläche, die sich im 1. Obergeschoss einer dreigeschossigen Gewerbeimmobilie (Baujahr 2002) befindet. Die Fläche bietet sich für Produktion, Forschung und Entwicklung an.
Die Immobilie wurde für die Produktion von Solarzellen unter Reinraumbedingungen ausgebaut und verfügt über drei Hauptgeschosse, ein Technikdachgeschoss und bereichsweise über ein Untergeschoss für Medienerschließung. Die Ebene E1 und E2 kann großflächig in Reinraumqualität belegt werden. Im Erdgeschoss sind Empfangs- oder Ausstellungsräume möglich und in den Zwischengeschossen sind Büros und Sozialräume vorhanden. Die Erschließung erfolgt über zwei Treppenhäuser. Das Tragwerk als Stahlbetonskelett erlaubt mit großen freien Spannweiten Belegungsfreiheit in den Produktionsflächen. 2006 wurde ein Entsorgungsgebäude ergänzt und so eingefügt, dass über der Halle im Erdgeschoss eine viergeschossige Aufstockung möglich ist.
Die Aufteilung der Nutzfläche ist wie folgt:
E 0 - ca. 1.154 m² (GH 6m/ 4,35m -Technik, Werkstätten, Anlieferung , Büros)
E 1 - ca. 1.430 m² (GH 5,80 m/ 2,90 m - Produktion, Büro) + ca. 146 m² (GH 2,90 m - Liftraum, Sozialräume)
E 2 - ca. 1.430 m² /GH 5,80m, 290 m - Produktion, Sozialräume) + ca. 146 m² (GH 2,90m - Luftraum, Büro)
E 3 - ca. 675 m² (GH 5,20 m - Lüftungszentrale, Photovoltaik, Rückkühlwerke)
E-1 - ca. 70 m² Kriechkeller + ca. 165 m² Abwasserbehandlung.
Gegenstand der Vermietung sind alle Räume mit den festeingebauten Einrichtungen, den technischen Installationen sowie die dem Gebäude zugeordneten Freiflächen (Ladebereiche, Parken, Freifläche Süd). Vermietung erfolgt auf Grundlage des Istzustandes.
Umbauten und Nutzungsänderungen erfordern eine Fortschreibung der Baugenehmigungen durch den Mieter in Abstimmung mit dem Eigentümer. Ausführungsplanungen zu Bestandsgebäude, Technik und Medienverteilung können bei den Planern erfragt werden.
Die Immobilie wird vierseitig von Schwerlastverkehr geeigneten Straßen erschlossen. Stellflächen für Anlieferung, KFZ-Parkplätze und für Feuerwehr sind nachgewiesen. Auf der Südseite ist eine Freifläche für die Aufstellung von Zusatzaggregaten vorgehalten.
Bei Interesse erhalten Sie gern weiterführende Information/ Unterlagen.
Die Immobilie wurde für die Produktion von Solarzellen unter Reinraumbedingungen ausgebaut und verfügt über drei Hauptgeschosse, ein Technikdachgeschoss und bereichsweise über ein Untergeschoss für Medienerschließung. Die Ebene E1 und E2 kann großflächig in Reinraumqualität belegt werden. Im Erdgeschoss sind Empfangs- oder Ausstellungsräume möglich und in den Zwischengeschossen sind Büros und Sozialräume vorhanden. Die Erschließung erfolgt über zwei Treppenhäuser. Das Tragwerk als Stahlbetonskelett erlaubt mit großen freien Spannweiten Belegungsfreiheit in den Produktionsflächen. 2006 wurde ein Entsorgungsgebäude ergänzt und so eingefügt, dass über der Halle im Erdgeschoss eine viergeschossige Aufstockung möglich ist.
Die Aufteilung der Nutzfläche ist wie folgt:
E 0 - ca. 1.154 m² (GH 6m/ 4,35m -Technik, Werkstätten, Anlieferung , Büros)
E 1 - ca. 1.430 m² (GH 5,80 m/ 2,90 m - Produktion, Büro) + ca. 146 m² (GH 2,90 m - Liftraum, Sozialräume)
E 2 - ca. 1.430 m² /GH 5,80m, 290 m - Produktion, Sozialräume) + ca. 146 m² (GH 2,90m - Luftraum, Büro)
E 3 - ca. 675 m² (GH 5,20 m - Lüftungszentrale, Photovoltaik, Rückkühlwerke)
E-1 - ca. 70 m² Kriechkeller + ca. 165 m² Abwasserbehandlung.
Gegenstand der Vermietung sind alle Räume mit den festeingebauten Einrichtungen, den technischen Installationen sowie die dem Gebäude zugeordneten Freiflächen (Ladebereiche, Parken, Freifläche Süd). Vermietung erfolgt auf Grundlage des Istzustandes.
Umbauten und Nutzungsänderungen erfordern eine Fortschreibung der Baugenehmigungen durch den Mieter in Abstimmung mit dem Eigentümer. Ausführungsplanungen zu Bestandsgebäude, Technik und Medienverteilung können bei den Planern erfragt werden.
Die Immobilie wird vierseitig von Schwerlastverkehr geeigneten Straßen erschlossen. Stellflächen für Anlieferung, KFZ-Parkplätze und für Feuerwehr sind nachgewiesen. Auf der Südseite ist eine Freifläche für die Aufstellung von Zusatzaggregaten vorgehalten.
Bei Interesse erhalten Sie gern weiterführende Information/ Unterlagen.
Lage
Die Immobilie befindet sich in Freiberg innerhalb eines Gewerbegebietes.
Freiberg ist an das Bundesbahnnetz angeschlossen, ein Autobahnanschluss ist ca. 15km, der Flughafen Dresden 45km und der Flughafen Leipzig 100 km entfernt. Über die Kreisstraße "Berthelsdorferstraße" ist das Gewerbegebiet Süd mit dem Stadtzentrum (ca. 2km) und mit Dresden verbunden. Das Baugebiet ist ringartig über die voll ausgebauten Straßen "Ferdinand-Reich-Str.", "Am Jungen Löwe Schacht" und am "Am St. Niklas Schacht" erschlossen. Diverse Unternehmen und Institute des Hochtechnologiesektors befinden sich in unmittelbarer Nachbarschaft.
Die Stadt Freiberg in Sachsen wurde im 12. Jhd. als Bergbaustadt gegründet. 2019 wurde mit ihrem bedeutungsvollen historischen Baubestand als UNESCO Weltkulturerbe gewürdigt. Freiberg ist heute eine unabhängige Kreisstadt und verfügt über alle Bildungseinrichtungen und eine umfassende institutionelle Infrastruktur. Im Besonderen hat die Technische Universität (ehem. Bergakademie) mit den Schwerpunkten
u.a. Geologie , Mineralogie und Metallurgie internationale Bedeutung.
Freiberg ist an das Bundesbahnnetz angeschlossen, ein Autobahnanschluss ist ca. 15km, der Flughafen Dresden 45km und der Flughafen Leipzig 100km entfernt. Über die Kreisstraße "Berthelsdorferstraße" ist das Gewerbegebiet Süd mit dem Stadtzentrum (ca. 2km) und mit Dresden verbunden. Das Baugebiet ist ringartig über die voll ausgebauten Straßen "Ferdinand-Reich-Str.", "Am Jungen Löwe Schacht" und am "Am St. Niklas Schacht" erschlossen. Diverse Unternehmen und Institute des Hochtechnologiesektors befinden sich in unmittelbarer Nachbarschaft.
Freiberg ist an das Bundesbahnnetz angeschlossen, ein Autobahnanschluss ist ca. 15km, der Flughafen Dresden 45km und der Flughafen Leipzig 100 km entfernt. Über die Kreisstraße "Berthelsdorferstraße" ist das Gewerbegebiet Süd mit dem Stadtzentrum (ca. 2km) und mit Dresden verbunden. Das Baugebiet ist ringartig über die voll ausgebauten Straßen "Ferdinand-Reich-Str.", "Am Jungen Löwe Schacht" und am "Am St. Niklas Schacht" erschlossen. Diverse Unternehmen und Institute des Hochtechnologiesektors befinden sich in unmittelbarer Nachbarschaft.
Die Stadt Freiberg in Sachsen wurde im 12. Jhd. als Bergbaustadt gegründet. 2019 wurde mit ihrem bedeutungsvollen historischen Baubestand als UNESCO Weltkulturerbe gewürdigt. Freiberg ist heute eine unabhängige Kreisstadt und verfügt über alle Bildungseinrichtungen und eine umfassende institutionelle Infrastruktur. Im Besonderen hat die Technische Universität (ehem. Bergakademie) mit den Schwerpunkten
u.a. Geologie , Mineralogie und Metallurgie internationale Bedeutung.
Freiberg ist an das Bundesbahnnetz angeschlossen, ein Autobahnanschluss ist ca. 15km, der Flughafen Dresden 45km und der Flughafen Leipzig 100km entfernt. Über die Kreisstraße "Berthelsdorferstraße" ist das Gewerbegebiet Süd mit dem Stadtzentrum (ca. 2km) und mit Dresden verbunden. Das Baugebiet ist ringartig über die voll ausgebauten Straßen "Ferdinand-Reich-Str.", "Am Jungen Löwe Schacht" und am "Am St. Niklas Schacht" erschlossen. Diverse Unternehmen und Institute des Hochtechnologiesektors befinden sich in unmittelbarer Nachbarschaft.
Ausstattungsbeschreibung
* Stahlbetonskelett
* Traglasten: Produktion 15 KN/m², Büro 5 KN/m² + 10KN/m²
* Materialschleuse 4,30 x 5m
* Montageplattform
* Fassadentore
* 2 Treppenhäuser
* Personenaufzug (ca. 1,10 mx ca.1,40m)
* Materiallift (ca. 2,20m x 3,00 m)
* Notstrom 450 KV
* Leitwarte mit Brandmelde- und Einbruchmeldeanlage
* Verteilungsnetze
- Außenanlagen -
* Planstraße A ca. 6m breit, 38 t
* Planstraße B ca. 6m breit, 38 t
* Planstraße C ca. 5m breit, 38t/ 12t
* 16 KFZ Stellplätze und 16 Fahrradstellplätze
* Chemikalienauffangwanne
* Ladeplätze
* Feuerwehraufstellflächen
* Traglasten: Produktion 15 KN/m², Büro 5 KN/m² + 10KN/m²
* Materialschleuse 4,30 x 5m
* Montageplattform
* Fassadentore
* 2 Treppenhäuser
* Personenaufzug (ca. 1,10 mx ca.1,40m)
* Materiallift (ca. 2,20m x 3,00 m)
* Notstrom 450 KV
* Leitwarte mit Brandmelde- und Einbruchmeldeanlage
* Verteilungsnetze
- Außenanlagen -
* Planstraße A ca. 6m breit, 38 t
* Planstraße B ca. 6m breit, 38 t
* Planstraße C ca. 5m breit, 38t/ 12t
* 16 KFZ Stellplätze und 16 Fahrradstellplätze
* Chemikalienauffangwanne
* Ladeplätze
* Feuerwehraufstellflächen
Erschließung
* Wasser/ Abwasser
* Gas
* Elektro
* Kommunikation
Sonstiges
Hinweis: Fehlende Angaben zum Energieausweis gemäß Energiesparverordnung 2014 ( EnEV ) begründen sich durch Nichtangabepflicht bei Denkmalschutzobjekten, Grundstücken, nichtbeheizbaren Immobilien oder wurden bisher trotz Aufforderung gegenüber dem Auftraggeber nicht zur Verfügung gestellt.
Haftungsausschluss: Trotz sorgfältiger Bearbeitung von Daten, Bildern und Informationen übernehmen wir keine Haftung für die Richtigkeit der Angaben, ebenso wenig für die Lieferfähigkeit des Angebotes bei Vermietung bzw. Verkauf. Bitte beachten Sie hierzu unsere allgemeinen Geschäftsbedingungen die Sie unter www.der-immo-tip.de einsehen können.
Haftungsausschluss: Trotz sorgfältiger Bearbeitung von Daten, Bildern und Informationen übernehmen wir keine Haftung für die Richtigkeit der Angaben, ebenso wenig für die Lieferfähigkeit des Angebotes bei Vermietung bzw. Verkauf. Bitte beachten Sie hierzu unsere allgemeinen Geschäftsbedingungen die Sie unter www.der-immo-tip.de einsehen können.
Kontakt
Uwe Schatz
Semperstraße 1
01069 Dresden
E-Mail:schatz@der-immo-tip.de
Telefon:0351 43 31 30
Telefax:0351 433 13 18
Semperstraße 1
01069 Dresden
E-Mail:schatz@der-immo-tip.de
Telefon:0351 43 31 30
Telefax:0351 433 13 18

Objekt anfragen
while(allpics.length > 0){
allpics.pop();
}
var objnummer ="63654";var pic0 = new Image();pic0.src = 'uploads/pics/immo/1/_processed_/1/0/csm_63654-a_innenansicht_b132bac45e.jpg';
allpics.push('uploads/pics/immo/1/_processed_/1/0/csm_63654-a_innenansicht_b132bac45e.jpg');
var pic1 = new Image();pic1.src = 'uploads/pics/immo/1/_processed_/9/8/csm_63654-b1_aussenansicht_99291d627d.jpg';
allpics.push('uploads/pics/immo/1/_processed_/9/8/csm_63654-b1_aussenansicht_99291d627d.jpg');
var pic2 = new Image();pic2.src = 'uploads/pics/immo/1/_processed_/9/9/csm_63654-b2_vogelperspektive_a7ddc6a77d.jpg';
allpics.push('uploads/pics/immo/1/_processed_/9/9/csm_63654-b2_vogelperspektive_a7ddc6a77d.jpg');
var pic3 = new Image();pic3.src = 'uploads/pics/immo/1/_processed_/8/0/csm_63531-b3_impression_bueroraeume_92e3b48d99.jpg';
allpics.push('uploads/pics/immo/1/_processed_/8/0/csm_63531-b3_impression_bueroraeume_92e3b48d99.jpg');
var pic4 = new Image();pic4.src = 'uploads/pics/immo/1/_processed_/e/7/csm_63531-b6_grundriss_e0_9342173f1f.jpg';
allpics.push('uploads/pics/immo/1/_processed_/e/7/csm_63531-b6_grundriss_e0_9342173f1f.jpg');
var pic5 = new Image();pic5.src = 'uploads/pics/immo/1/_processed_/c/7/csm_63654-b7_uebersicht_8820ebfc2c.jpg';
allpics.push('uploads/pics/immo/1/_processed_/c/7/csm_63654-b7_uebersicht_8820ebfc2c.jpg');
var pic6 = new Image();pic6.src = 'uploads/pics/immo/1/_processed_/0/6/csm_63654-b8_grundriss_e1_192dde0537.jpg';
allpics.push('uploads/pics/immo/1/_processed_/0/6/csm_63654-b8_grundriss_e1_192dde0537.jpg');
var pic7 = new Image();pic7.src = 'uploads/pics/immo/1/_processed_/2/d/csm_63654-b9_lageplan_7c50755559.jpg';
allpics.push('uploads/pics/immo/1/_processed_/2/d/csm_63654-b9_lageplan_7c50755559.jpg');
Weitere Objekte zu Ihrer Suche
Kontakt
Telefonkontakt
| Immobilienmakler | |
| Dresden: | 0351 433 130 |
| Leipzig: | 0341 600 539 90 |
| Chemnitz: | 0371 238 710 600 |
| Rostock: | 0381 128 736 10 |
| Hausverwaltung | |
| Dresden: | 0351 213 914 60 |
| Mietersprechzeiten | |
| Montag: | 09:00 - 12:00 Uhr 13:00 - 17:00 Uhr |
| Mittwoch: | 09:00 - 12:00 Uhr |
| Donnerstag: | 09:00 - 12:00 Uhr 13:00 - 15:30 Uhr |




















































































































