Neueröffnung | Moderne Ladenfläche direkt am Neumarkt in Dresden
Eckdaten
| Objekt-ID: | 61891_07 |
| Lage: | 01067 Dresden |
| Immobilienart: | Verbrauchermarkt |
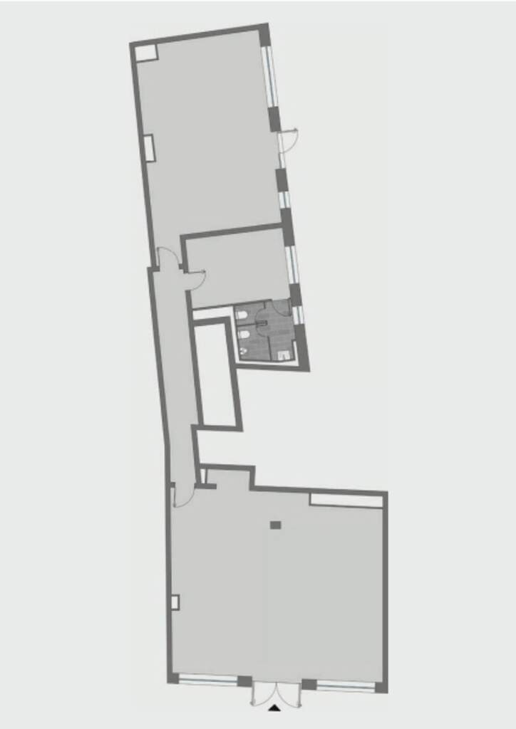
| Gesamtfläche: | ca. 201 m² |
| Bezugstermin: | in Abstimmung |
| Nettokaltmiete/m²/Monat: | 22,00 € |
| Nebenkosten/m²/Monat: | 834,15 € |
| Tiefgaragen: | 320 |
Beschreibung
Zur Vermietung steht eine ca. 201 m² große Ladenfläche, die im Erdgeschoss innerhalb eines Neubauprojektes am Neumarkt in Dresden entsteht. Die Quartiersbebauung bestehend aus fünf Bauteilen (teils Rekonstruktion) mit jeweils fünf Vollgeschossen und zwei Dachgeschossen, mit einer zweigeschossigen, unterlagerten Tiefgarage, wird im Rokoko-Stil unter dem Namen "Palais Hoym" errichtet. Es handelt sich hierbei um einen Adelspalast, der sich über mehrere Höfe erstreckte und der als Juwel der Dresdner Altstadt galt ( bis zu seiner vollständigen Zerstörung im Zweiten Weltkrieg).
Das an der weltbekannten Frauenkirche angrenzende Quartier Hoym wird zukünftig durch einen ausgewogenen Mix aus attraktiven Gewerbeflächen für Gastronomie, Einzelhandel und Büro im Erdgeschoss und 1. Obergeschoss sowie durch hochwertige Mietwohnungen (258 Einheiten) in den Obergeschossen bestechen. Die teilweise historischen aber auch zeitgemäßen Fassaden sowie die begrünten Innenhöfe und Durchwegungen lassen den charmanten Charakter der Dresdener Altstadt in das gesamte Quartier einfließen.
Neben der historischen Fassade vom Palais Hoym werden auch wesentliche architektonische Elemente wie der originale Brunnen und die Gewölbe im Inneren wiederhergestellt. So fügt sich das Gesamtensemble aus Rekonstruktion und Neubauten nahtlos in das berühmte Stadtbild ein.
Im Innenbereich des Quartiers werden die Gebäude separat gegliedert. Quer zur Straßenbebauung stehende Häuser schaffen differenzierte Innenhöfe, die miteinander verbunden sind und individuell gestaltet werden. Mehrere Durchwegungen zwischen Rampischer Straße und Landhausstraße verbinden die Innenhöfe miteinander und vernetzen das Quartier mit dem Neumarkt. Die Begrünung der Höfe und Durchgänge trägt zu einem einladenden Ambiente bei.
Sie haben Interesse an diesem Mietangebot? Dann freuen wir uns auf Ihren Kontakt.
Neueröffnung | Moderne Ladenfläche direkt am Neumarkt in Dresden
Das an der weltbekannten Frauenkirche angrenzende Quartier Hoym wird zukünftig durch einen ausgewogenen Mix aus attraktiven Gewerbeflächen für Gastronomie, Einzelhandel und Büro im Erdgeschoss und 1. Obergeschoss sowie durch hochwertige Mietwohnungen (258 Einheiten) in den Obergeschossen bestechen. Die teilweise historischen aber auch zeitgemäßen Fassaden sowie die begrünten Innenhöfe und Durchwegungen lassen den charmanten Charakter der Dresdener Altstadt in das gesamte Quartier einfließen.
Neben der historischen Fassade vom Palais Hoym werden auch wesentliche architektonische Elemente wie der originale Brunnen und die Gewölbe im Inneren wiederhergestellt. So fügt sich das Gesamtensemble aus Rekonstruktion und Neubauten nahtlos in das berühmte Stadtbild ein.
Im Innenbereich des Quartiers werden die Gebäude separat gegliedert. Quer zur Straßenbebauung stehende Häuser schaffen differenzierte Innenhöfe, die miteinander verbunden sind und individuell gestaltet werden. Mehrere Durchwegungen zwischen Rampischer Straße und Landhausstraße verbinden die Innenhöfe miteinander und vernetzen das Quartier mit dem Neumarkt. Die Begrünung der Höfe und Durchgänge trägt zu einem einladenden Ambiente bei.
Sie haben Interesse an diesem Mietangebot? Dann freuen wir uns auf Ihren Kontakt.
Neueröffnung | Moderne Ladenfläche direkt am Neumarkt in Dresden
Lage
Dieses Quartier befindet sich im Herzen von Dresden, in der historischen Altstadt direkt am Neumarkt und der Frauenkirche, unweit der Elbe.
Der Standort profitiert von der attraktiven Lage im Zentrum von Dresden und ist leicht zu Fuß, mit Pkw und öffentlichen Verkehrsmitteln zu erreichen. Die Dresdner Altstadt ist der Stadtkern der sächsischen Landeshauptstadt und bildet den Mittelpunkt für Kunst, Kultur und Architektur. Viele wichtige Sehenswürdigkeiten befinden sich hier, wie die Frauenkirche, der Zwinger oder die Semperoper, sowie jede Menge Kultureinrichtungen wie die Staatsoperette, der Kulturpalast oder die Gemäldegalerie Alte Meister. Bei Touristen und Dresdner Bürgern gleichermaßen beliebt sind neben den Einkaufscentern die unzähligen Bars und Restaurants rund um den Neumarkt, den Altmarkt
und die Münzgasse. Aufgrund der hervorragenden innerstädtischen Lage ist auch die Infrastruktur rund um das Quartier Hoym bestens: Verschiedene Knotenpunkte des öffentlichen Personennahverkehrs sind schnell erreichbar, Nah- und medizinische Versorger sowie Bildungseinrichtungen in Fußnähe. Zudem bieten sich hier ausreichend Möglichkeiten für eine vielfältige Naherholung
und Freizeitgestaltung.
Der Neumarkt liegt zentral in der Dresdner Altstadt und ist eingebettet in die Brühlschen Terrassen, das Residenzschloss, den Kulturpalast und die Elbe. Es ist die letzte große Fläche am Neumarkt, die damit geschlossen wird.
Der Standort profitiert von der attraktiven Lage im Zentrum von Dresden und ist leicht zu Fuß, mit Pkw und öffentlichen Verkehrsmitteln zu erreichen. Die Dresdner Altstadt ist der Stadtkern der sächsischen Landeshauptstadt und bildet den Mittelpunkt für Kunst, Kultur und Architektur. Viele wichtige Sehenswürdigkeiten befinden sich hier, wie die Frauenkirche, der Zwinger oder die Semperoper, sowie jede Menge Kultureinrichtungen wie die Staatsoperette, der Kulturpalast oder die Gemäldegalerie Alte Meister. Bei Touristen und Dresdner Bürgern gleichermaßen beliebt sind neben den Einkaufscentern die unzähligen Bars und Restaurants rund um den Neumarkt, den Altmarkt
und die Münzgasse. Aufgrund der hervorragenden innerstädtischen Lage ist auch die Infrastruktur rund um das Quartier Hoym bestens: Verschiedene Knotenpunkte des öffentlichen Personennahverkehrs sind schnell erreichbar, Nah- und medizinische Versorger sowie Bildungseinrichtungen in Fußnähe. Zudem bieten sich hier ausreichend Möglichkeiten für eine vielfältige Naherholung
und Freizeitgestaltung.
Der Neumarkt liegt zentral in der Dresdner Altstadt und ist eingebettet in die Brühlschen Terrassen, das Residenzschloss, den Kulturpalast und die Elbe. Es ist die letzte große Fläche am Neumarkt, die damit geschlossen wird.
Ausstattungsbeschreibung
* Erstbezug
* Treppenhäuser und Aufzüge
* Individuell gestaltetete und verbundene Hof- und Durchgangssituation
* Hervorragende Infrastruktur und Anbindung an den Individual- und öffentlichen Personennah- als auch Fernverkehr
* Moderne, variable Gewerbeflächen für Büro, Gastronomie und Einzelhandel im Erdgeschoss und 1. Obergeschoss
* Eigenausbau möglich
* Individuelle Mietangebote entsprechend Ihrer Wünsche:
* Individuelle Wandqualitäten und Bodenbeläge zur Auswahl
* Hochwertige Keramik auswählbar
* Elektrische, außenliegende Verschattungselemente
* Schallschutzfenster
* Kühlung durch Fernkälte
* Kontrollierte, mechanische Be- und Entlüftung für Gastronomie und Einzelhandel
* CAT-7-Verkabelung
* Treppenhäuser mit Aufzügen und hochwertigen Bodenbelägen
* Zweigeschossige, unterlagerte Tiefgarage mit Pkw-Stellplätzen
* Ausreichende Fahrradstellplätze vorhanden
* "Kunst am Bau" in Eingangsbereichen und Treppenhäusern
* Treppenhäuser und Aufzüge
* Individuell gestaltetete und verbundene Hof- und Durchgangssituation
* Hervorragende Infrastruktur und Anbindung an den Individual- und öffentlichen Personennah- als auch Fernverkehr
* Moderne, variable Gewerbeflächen für Büro, Gastronomie und Einzelhandel im Erdgeschoss und 1. Obergeschoss
* Eigenausbau möglich
* Individuelle Mietangebote entsprechend Ihrer Wünsche:
* Individuelle Wandqualitäten und Bodenbeläge zur Auswahl
* Hochwertige Keramik auswählbar
* Elektrische, außenliegende Verschattungselemente
* Schallschutzfenster
* Kühlung durch Fernkälte
* Kontrollierte, mechanische Be- und Entlüftung für Gastronomie und Einzelhandel
* CAT-7-Verkabelung
* Treppenhäuser mit Aufzügen und hochwertigen Bodenbelägen
* Zweigeschossige, unterlagerte Tiefgarage mit Pkw-Stellplätzen
* Ausreichende Fahrradstellplätze vorhanden
* "Kunst am Bau" in Eingangsbereichen und Treppenhäusern
Sonstiges
Hinweis: Fehlende Angaben zum Energieausweis gemäß Energiesparverordnung 2014 ( EnEV ) begründen sich durch Nichtangabepflicht bei Denkmalschutzobjekten, Grundstücken, nichtbeheizbaren Immobilien oder wurden bisher trotz Aufforderung gegenüber dem Auftraggeber nicht zur Verfügung gestellt.
Haftungsausschluss: Trotz sorgfältiger Bearbeitung von Daten, Bildern und Informationen übernehmen wir keine Haftung für die Richtigkeit der Angaben, ebenso wenig für die Lieferfähigkeit des Angebotes bei Vermietung bzw. Verkauf. Bitte beachten Sie hierzu unsere allgemeinen Geschäftsbedingungen die Sie unter www.der-immo-tip.de einsehen können.
Haftungsausschluss: Trotz sorgfältiger Bearbeitung von Daten, Bildern und Informationen übernehmen wir keine Haftung für die Richtigkeit der Angaben, ebenso wenig für die Lieferfähigkeit des Angebotes bei Vermietung bzw. Verkauf. Bitte beachten Sie hierzu unsere allgemeinen Geschäftsbedingungen die Sie unter www.der-immo-tip.de einsehen können.
Kontakt

Objekt anfragen
while(allpics.length > 0){
allpics.pop();
}
var objnummer ="61891_07";var pic0 = new Image();pic0.src = 'uploads/pics/immo/1/_processed_/6/4/csm__473169_0d808261aa.jpg';
allpics.push('uploads/pics/immo/1/_processed_/6/4/csm__473169_0d808261aa.jpg');
var pic1 = new Image();pic1.src = 'uploads/pics/immo/1/_processed_/a/6/csm__473171_d46028dc7a.jpg';
allpics.push('uploads/pics/immo/1/_processed_/a/6/csm__473171_d46028dc7a.jpg');
var pic2 = new Image();pic2.src = 'uploads/pics/immo/1/_processed_/1/d/csm__473173_2f919f1066.jpg';
allpics.push('uploads/pics/immo/1/_processed_/1/d/csm__473173_2f919f1066.jpg');
var pic3 = new Image();pic3.src = 'uploads/pics/immo/1/_processed_/b/f/csm__473175_2ebb78197d.jpg';
allpics.push('uploads/pics/immo/1/_processed_/b/f/csm__473175_2ebb78197d.jpg');
var pic4 = new Image();pic4.src = 'uploads/pics/immo/1/_processed_/f/a/csm__473177_7e8da69afb.jpg';
allpics.push('uploads/pics/immo/1/_processed_/f/a/csm__473177_7e8da69afb.jpg');
var pic5 = new Image();pic5.src = 'uploads/pics/immo/1/_processed_/7/a/csm__473179_4dee8a3cac.jpg';
allpics.push('uploads/pics/immo/1/_processed_/7/a/csm__473179_4dee8a3cac.jpg');
var pic6 = new Image();pic6.src = 'uploads/pics/immo/1/_processed_/8/0/csm__473181_63f4cf2bc0.jpg';
allpics.push('uploads/pics/immo/1/_processed_/8/0/csm__473181_63f4cf2bc0.jpg');
var pic7 = new Image();pic7.src = 'uploads/pics/immo/1/_processed_/5/a/csm__473183_016f0ca532.jpg';
allpics.push('uploads/pics/immo/1/_processed_/5/a/csm__473183_016f0ca532.jpg');
Weitere Objekte zu Ihrer Suche
Kontakt
Telefonkontakt
| Immobilienmakler | |
| Dresden: | 0351 433 130 |
| Leipzig: | 0341 600 539 90 |
| Chemnitz: | 0371 238 710 600 |
| Hausverwaltung | |
| Dresden: | 0351 213 914 60 |
| Mietersprechzeiten | |
| Montag: | 09:00 - 12:00 Uhr 13:00 - 17:00 Uhr |
| Mittwoch: | 09:00 - 12:00 Uhr |
| Donnerstag: | 09:00 - 12:00 Uhr 13:00 - 15:30 Uhr |




















































































































































































































































































































































































































































































