NEUE Konditionen | Dresden Plauen | ca. 264 m² Bürofläche in Uninähe zur Miete
Eckdaten
| Objekt-ID: | 1107_03 |
| Lage: | 01187 Dresden |
| Immobilienart: | Bürofläche |
| Bürofläche: | ca. 264 m² |
| Gesamtfläche: | ca. 264 m² |
| Baujahr: | 1996 |
| Bezugstermin: | ab sofort |
| Nettokaltmiete/m²/Monat: | 9,47 € |
| Nebenkosten/m²/Monat: | 726,00 € |
| Tiefgaragen: | 5 |
Beschreibung
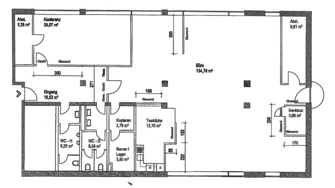
Zur Vermietung steht eine ca. 264 m² große Bürofläche, die sich im Erdgeschoss eines Geschäftshauses befindet.
Für diese Mietfläche stehen Stellplätze zur Verfügung, die auch verpflichtend angemietet werden müssen. Der Preis für einen Einzelstellplatz in der Tiefgarage liegt bei 60 €/Monat. Ein Duplexparker unten kostet 20 €/Monat und oben 30 €/Monat.
Bei Interesse stimmen wir gern einen Besichtigungstermin ab.
Für diese Mietfläche stehen Stellplätze zur Verfügung, die auch verpflichtend angemietet werden müssen. Der Preis für einen Einzelstellplatz in der Tiefgarage liegt bei 60 €/Monat. Ein Duplexparker unten kostet 20 €/Monat und oben 30 €/Monat.
Bei Interesse stimmen wir gern einen Besichtigungstermin ab.
Lage
Die Immobilie befindet sich in Dresden Plauen.
Die Autonbahn A 17 ist in wenigen Minuten über gut ausgebaute Zubringer erreichbar. Die Anbindung an Linien des öffentlichen Personenverkehrs ist wenige Meter Fußweg vom Objekt gegeben. Auch der Hauptbahnhof ist in kurzer Zeit ereichbar.
Im Umfeld der Immobilie befinden sich ein Hotel, Einzelhandel des täglichen Bedarfs und gastronomische Nutzungen.
Zum Ortsamtsbereich Plauen gehören die Stadtteile Südvorstadt, Räcknitz, Zschertnitz, Strehlen Südwest, Kleinpestitz, Mockritz, Kaitz, Gostritz, Coschütz, Gittersee sowie Plauen. Die südlichen Stadtteile Dresdens nehmen das Gebiet zwischen dem Plauenschen Grund, dem Kaitzbachtal und der Ortsgrenze von Leubnitz-Neuostra ein. Die Höhenlage des Stadtteils, die sehr gute Anbindung zu den öffentlichen Verkehrsmitteln, die Nähe zum Zentrum und zur Universität sind weitere nennenswerte Vorteile des Gewerbestandortes Plauen. Die Autobahnauffahrt der A17 (Anschlussstelle Dresden Südvorstadt) mit Anbindung an die A4 und A13 erreichen Sie ebenfalls innerhalb kürzester Zeit.
An der Stadtteilgrenze Dresden Südvorstadt/Plauen gelegen bietet der ruhige Standort eine gute Erreichbarkeit in die Innenstadt v
Die Autonbahn A 17 ist in wenigen Minuten über gut ausgebaute Zubringer erreichbar. Die Anbindung an Linien des öffentlichen Personenverkehrs ist wenige Meter Fußweg vom Objekt gegeben. Auch der Hauptbahnhof ist in kurzer Zeit ereichbar.
Im Umfeld der Immobilie befinden sich ein Hotel, Einzelhandel des täglichen Bedarfs und gastronomische Nutzungen.
Zum Ortsamtsbereich Plauen gehören die Stadtteile Südvorstadt, Räcknitz, Zschertnitz, Strehlen Südwest, Kleinpestitz, Mockritz, Kaitz, Gostritz, Coschütz, Gittersee sowie Plauen. Die südlichen Stadtteile Dresdens nehmen das Gebiet zwischen dem Plauenschen Grund, dem Kaitzbachtal und der Ortsgrenze von Leubnitz-Neuostra ein. Die Höhenlage des Stadtteils, die sehr gute Anbindung zu den öffentlichen Verkehrsmitteln, die Nähe zum Zentrum und zur Universität sind weitere nennenswerte Vorteile des Gewerbestandortes Plauen. Die Autobahnauffahrt der A17 (Anschlussstelle Dresden Südvorstadt) mit Anbindung an die A4 und A13 erreichen Sie ebenfalls innerhalb kürzester Zeit.
An der Stadtteilgrenze Dresden Südvorstadt/Plauen gelegen bietet der ruhige Standort eine gute Erreichbarkeit in die Innenstadt v
Ausstattungsbeschreibung
* Teeküche vorhanden
* getrennter Sanitärbereich
* Datenverkabelung wird in den Büros über Fensterbankkanäle realisiert
* DSL-Anbindung ist gegeben
* eine Kantine bietet Mittagsversorgung im Haus an
* der Grundriss der Mietflächen kann den Bedürfnissen des neuen Mieters entsprechend gestaltet werden
* Aufzug
* Barrierefreie Erreichbarkeit
* getrennter Sanitärbereich
* Datenverkabelung wird in den Büros über Fensterbankkanäle realisiert
* DSL-Anbindung ist gegeben
* eine Kantine bietet Mittagsversorgung im Haus an
* der Grundriss der Mietflächen kann den Bedürfnissen des neuen Mieters entsprechend gestaltet werden
* Aufzug
* Barrierefreie Erreichbarkeit
Sonstiges
Haftungsausschluss: Trotz sorgfältiger Bearbeitung von Daten, Bildern und Informationen übernehmen wir keine Haftung für die Richtigkeit der Angaben, ebenso wenig für die Lieferfähigkeit des Angebotes bei Vermietung bzw. Verkauf. Bitte beachten Sie hierzu unsere allgemeinen Geschäftsbedingungen die Sie unter www.der-immo-tip.de einsehen können.
Energieeffizienz
| Energieausweistyp: | Bedarfsausweis |
| Denkmalschutz: | Nein |
Kontakt

Objekt anfragen
while(allpics.length > 0){
allpics.pop();
}
var objnummer ="1107_03";var pic0 = new Image();pic0.src = 'uploads/pics/immo/1/_processed_/d/9/csm__475141_783a4eecc9.jpg';
allpics.push('uploads/pics/immo/1/_processed_/d/9/csm__475141_783a4eecc9.jpg');
var pic1 = new Image();pic1.src = 'uploads/pics/immo/1/_processed_/3/a/csm__475143_d48d2a2638.jpg';
allpics.push('uploads/pics/immo/1/_processed_/3/a/csm__475143_d48d2a2638.jpg');
var pic2 = new Image();pic2.src = 'uploads/pics/immo/1/_processed_/8/3/csm__475145_458ca55f26.jpg';
allpics.push('uploads/pics/immo/1/_processed_/8/3/csm__475145_458ca55f26.jpg');
var pic3 = new Image();pic3.src = 'uploads/pics/immo/1/_processed_/7/4/csm__475147_3ef999fea7.jpg';
allpics.push('uploads/pics/immo/1/_processed_/7/4/csm__475147_3ef999fea7.jpg');
var pic4 = new Image();pic4.src = 'uploads/pics/immo/1/_processed_/4/e/csm__475149_d8052dc553.jpg';
allpics.push('uploads/pics/immo/1/_processed_/4/e/csm__475149_d8052dc553.jpg');
var pic5 = new Image();pic5.src = 'uploads/pics/immo/1/_processed_/2/3/csm__475151_9b47c30e6d.jpg';
allpics.push('uploads/pics/immo/1/_processed_/2/3/csm__475151_9b47c30e6d.jpg');
var pic6 = new Image();pic6.src = 'uploads/pics/immo/1/_processed_/8/9/csm__475153_842642612b.jpg';
allpics.push('uploads/pics/immo/1/_processed_/8/9/csm__475153_842642612b.jpg');
var pic7 = new Image();pic7.src = 'uploads/pics/immo/1/_processed_/6/0/csm__475155_6b9f1928c0.jpg';
allpics.push('uploads/pics/immo/1/_processed_/6/0/csm__475155_6b9f1928c0.jpg');
var pic8 = new Image();pic8.src = 'uploads/pics/immo/1/_processed_/b/e/csm__475157_8868094546.jpg';
allpics.push('uploads/pics/immo/1/_processed_/b/e/csm__475157_8868094546.jpg');
var pic9 = new Image();pic9.src = 'uploads/pics/immo/1/_processed_/1/d/csm__475159_f477ee9ca2.jpg';
allpics.push('uploads/pics/immo/1/_processed_/1/d/csm__475159_f477ee9ca2.jpg');
var pic10 = new Image();pic10.src = 'uploads/pics/immo/1/_processed_/d/a/csm__475161_31d525c4a6.jpg';
allpics.push('uploads/pics/immo/1/_processed_/d/a/csm__475161_31d525c4a6.jpg');
var pic11 = new Image();pic11.src = 'uploads/pics/immo/1/_processed_/3/5/csm__475163_255e4f4db7.jpg';
allpics.push('uploads/pics/immo/1/_processed_/3/5/csm__475163_255e4f4db7.jpg');
var pic12 = new Image();pic12.src = 'uploads/pics/immo/1/_processed_/1/5/csm__475165_50893ab96c.jpg';
allpics.push('uploads/pics/immo/1/_processed_/1/5/csm__475165_50893ab96c.jpg');
var pic13 = new Image();pic13.src = 'uploads/pics/immo/1/_processed_/6/3/csm__475167_598c6a8fa3.jpg';
allpics.push('uploads/pics/immo/1/_processed_/6/3/csm__475167_598c6a8fa3.jpg');
Weitere Objekte zu Ihrer Suche
Kontakt
Telefonkontakt
| Immobilienmakler | |
| Dresden: | 0351 433 130 |
| Leipzig: | 0341 600 539 90 |
| Chemnitz: | 0371 238 710 600 |
| Hausverwaltung | |
| Dresden: | 0351 213 914 60 |
| Mietersprechzeiten | |
| Montag: | 09:00 - 12:00 Uhr 13:00 - 17:00 Uhr |
| Mittwoch: | 09:00 - 12:00 Uhr |
| Donnerstag: | 09:00 - 12:00 Uhr 13:00 - 15:30 Uhr |





































































































































































































































































































































































































































































