Modernes Gewerbeareal mit 2 Hallen, Büro - und Crossdockflächen zur Miete
Eckdaten
| Objekt-ID: | 65949 |
| Lage: | 01774 Höckendorf |
| Immobilienart: | Lager |
| Grundstücksfläche: | ca. 8.654 m² |
| Lagerfläche: | ca. 6.860 m² |
| Bürofläche: | ca. 1.000 m² |
| Gesamtfläche: | ca. 6.860 m² |
| Bezugstermin: | in Abstimmung |
| Nettokaltmiete/m²: | 6,50 € |
Beschreibung
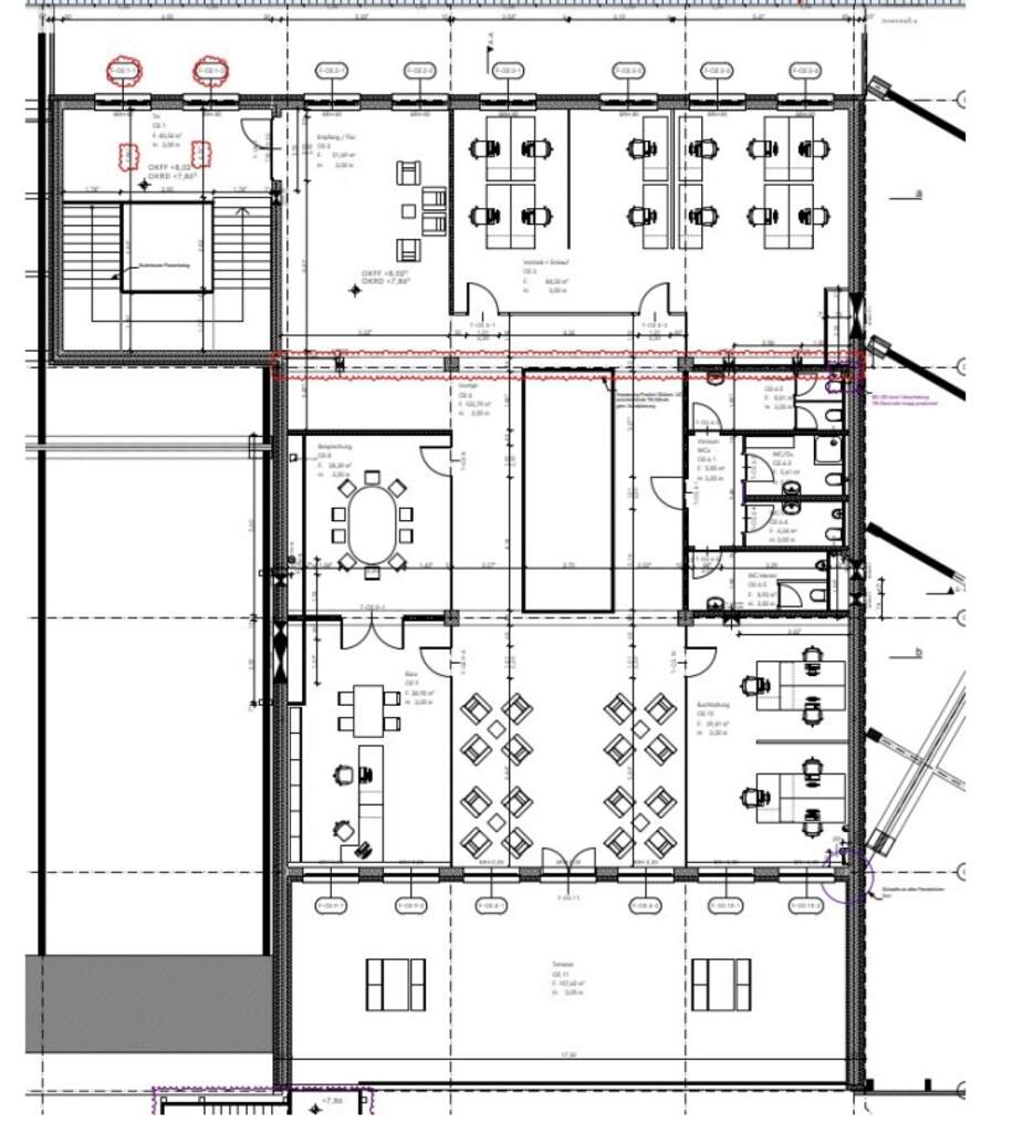
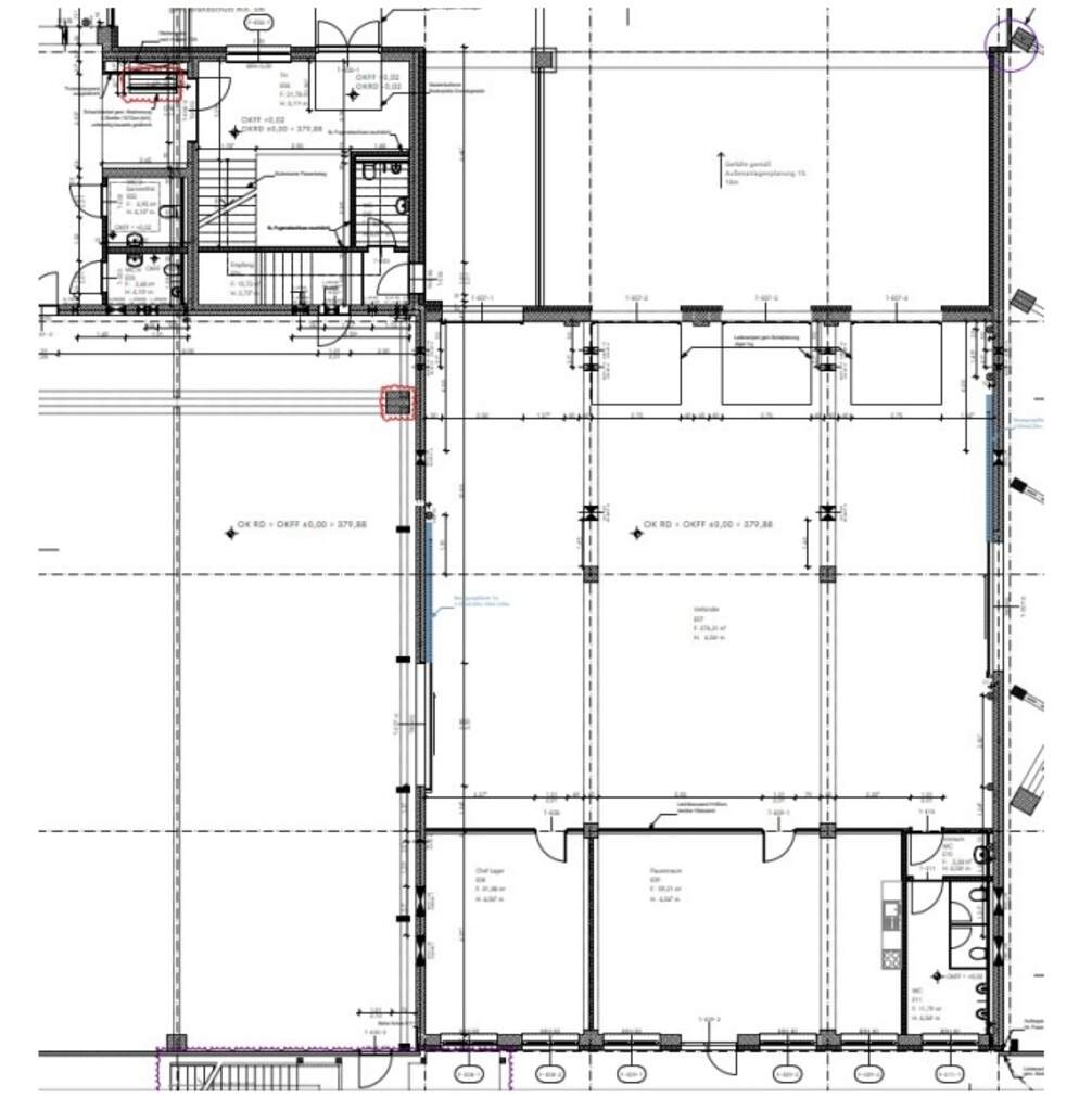
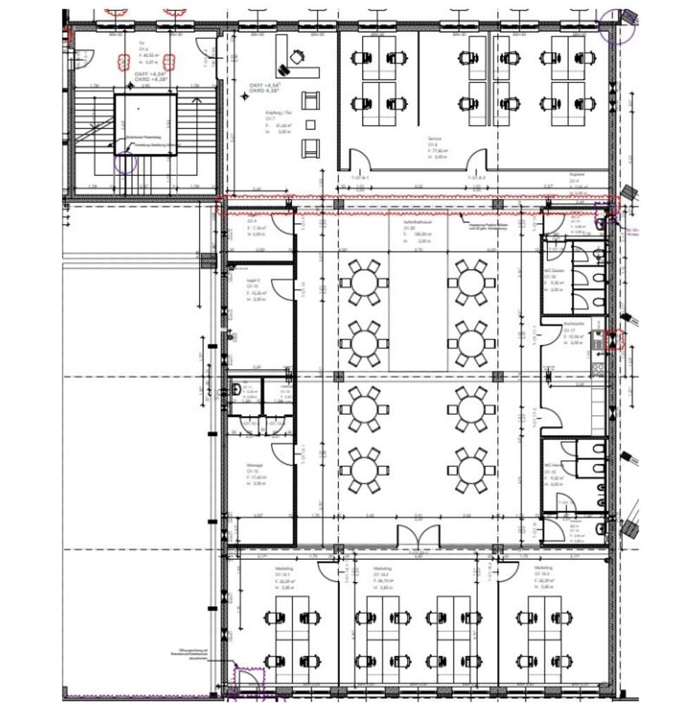
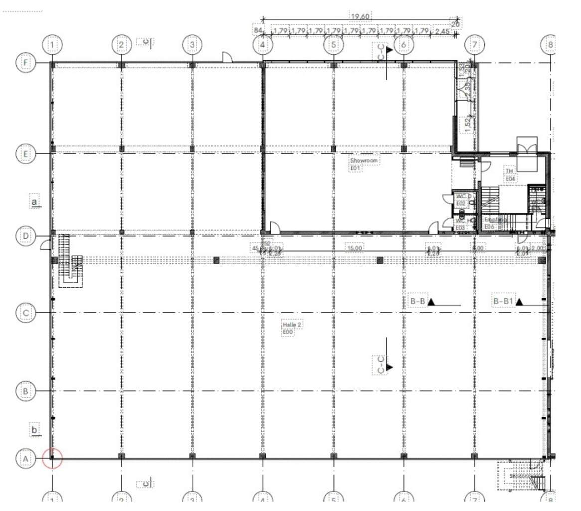
Zur Vermietung steht ein ca. 8.654 m² großes Gewerbeareal, welches mit einem neu errichteten, modernen Hallen- und Bürokomplex bebaut ist. Die beiden Hallenflächen mit ca. 2.500 m² bzw. ca. 2.600 m², die durch ein zentrales Verwaltungsgebäude miteinander verbunden sind. Dieses erstreckt sich über über 3 Ebenen: Im ersten Obergeschoss stehen ca. 550 m² individuell nutzbare Gewerbefläche (Büro, Ausstellung, Labor… ) zur Verfügung, im zweiten Obergeschoss weitere ca. 450 m² individuell nutzbare Gewerbefläche sowie eine großzügige Terrasse mit ca. 100 m². Im Erdgeschoss befindet sich ein ca. 400 m² großes Crossdock (Logistik Anschluss an beide Hallen , Sektionen mit Überladebrücken) Bei Bedarf können noch zusätzlich ca. 360 m² Ausstellungsfläche dargestellt werden. Die Fertigstellung ist für Mai 2025 geplant.
Der Mietzins ist abhängig von der Mietvertragslaufzeit und Um-bzw. Ausbaumaßnahmen.
Bei Interesse kann auch eine Teilfläche ab ca. 2.500 m² angmietet werden.
Auf dem Grundstück gibt es zusätzlich PKW- und LKW Stellplätze.
Bei Interesse stimmen wir gern einen Besichtungstermin ab.
Der Mietzins ist abhängig von der Mietvertragslaufzeit und Um-bzw. Ausbaumaßnahmen.
Bei Interesse kann auch eine Teilfläche ab ca. 2.500 m² angmietet werden.
Auf dem Grundstück gibt es zusätzlich PKW- und LKW Stellplätze.
Bei Interesse stimmen wir gern einen Besichtungstermin ab.
Lage
Die Immobilie befindet sich innerhalb eines Gewerbeareals in Klingenberg, im Ortsteil Höckendorf.
Höckendorf ist ein Ortsteil der sächsischen Gemeinde Klingenberg im Landkreis Sächsische Schweiz-Osterzgebirge. Höckendorf befindet sich etwa 20 km südwestlich der Landeshauptstadt Dresden und ca. 10 km nordwestlich der Stadt Dippoldiswalde, zwischen Tharandter Wald und Osterzgebirge. Die B 173 verläuft nördlich und die B 170 östlich des Ortes. Südwestlich von Höckendorf liegt die Talsperre Klingenberg.
- Entfernungen -
* Auffahrt Autobahn A17 ca. 18 km
* Auffahrt Autobahn A4 ca. 18 km
* Hauptbahnhof Dresden ca. 22 km
* Freiberg ca. 18 km
* Tschechien ca. 34 km
Höckendorf ist ein Ortsteil der sächsischen Gemeinde Klingenberg im Landkreis Sächsische Schweiz-Osterzgebirge. Höckendorf befindet sich etwa 20 km südwestlich der Landeshauptstadt Dresden und ca. 10 km nordwestlich der Stadt Dippoldiswalde, zwischen Tharandter Wald und Osterzgebirge. Die B 173 verläuft nördlich und die B 170 östlich des Ortes. Südwestlich von Höckendorf liegt die Talsperre Klingenberg.
- Entfernungen -
* Auffahrt Autobahn A17 ca. 18 km
* Auffahrt Autobahn A4 ca. 18 km
* Hauptbahnhof Dresden ca. 22 km
* Freiberg ca. 18 km
* Tschechien ca. 34 km
Ausstattungsbeschreibung
- Logistik -
* 3x Rampen Sektionaltore mit Vorschubüberladebrücken
* 3 x ebenerdige Sektionaltor
* Beheizte Anliefer-Rampe
* Hallenhöhe 9 m nutzbar (Traufe UK Binder)
* LED Beleuchtung
* Komplett beheizt mit Fußbodenheizung
* Lichtkuppeln und Lichtbänder für Tageslicht
* Brandmeldeanlage
* Sozialräume
* WC-Anlangen und Duschen
* ca. 650 m² Lagerbühne in Halle 2 mit Zugang zum 1. OG
* ca. 400 m² Crossdockfläche unter dem 1. OG
* Netzwerktechnik bis zum Serverraum / Übergabepunkt
- Verwaltungstrakt -
* Notstromversorgung in den Büros
* Netzwerktechnik bis zum Serverraum
* Syncrone Glasfaser Anbindung bis 1000 Mbit
* Wärmerückgewinnung in Büro´s und Ausstellungsfläche
* Lichtkuppeln als Lichthof bis ins 1. Obergeschoss
* Offene Küche im Cafeteria Style mitten im Lichthof
* hochwertiger Fliesenboden im 1. OG, 2. OG sowie im Treppenhaus
* Große Fensterflächen
* moderne Sichtbetonoptik
* Terrasse im Erdgeschoss sowie im 2. Obergeschoss
* WC-Anlangen und Duschen
- Sonstiges -
* 2 x Wärmepumpe (Weißhaupt)
* 1 x Gasspitzenlastkessel
* 2x 115 KW PV Anlange auf dem Dach
* 80 KW Batteriespeicher (erweiterbar)
* Notstromversorgung der Büros
* Fußbodenheizung in allen Bereichen (auch Logistik)
* Wärmerückgewinnung mit Lüftungsanlage
* 120 mm Sandwitchpanele an Wand und Dach
* Rampenheizung
* Intelligente Steuerung der Haustechnik
* 3x Rampen Sektionaltore mit Vorschubüberladebrücken
* 3 x ebenerdige Sektionaltor
* Beheizte Anliefer-Rampe
* Hallenhöhe 9 m nutzbar (Traufe UK Binder)
* LED Beleuchtung
* Komplett beheizt mit Fußbodenheizung
* Lichtkuppeln und Lichtbänder für Tageslicht
* Brandmeldeanlage
* Sozialräume
* WC-Anlangen und Duschen
* ca. 650 m² Lagerbühne in Halle 2 mit Zugang zum 1. OG
* ca. 400 m² Crossdockfläche unter dem 1. OG
* Netzwerktechnik bis zum Serverraum / Übergabepunkt
- Verwaltungstrakt -
* Notstromversorgung in den Büros
* Netzwerktechnik bis zum Serverraum
* Syncrone Glasfaser Anbindung bis 1000 Mbit
* Wärmerückgewinnung in Büro´s und Ausstellungsfläche
* Lichtkuppeln als Lichthof bis ins 1. Obergeschoss
* Offene Küche im Cafeteria Style mitten im Lichthof
* hochwertiger Fliesenboden im 1. OG, 2. OG sowie im Treppenhaus
* Große Fensterflächen
* moderne Sichtbetonoptik
* Terrasse im Erdgeschoss sowie im 2. Obergeschoss
* WC-Anlangen und Duschen
- Sonstiges -
* 2 x Wärmepumpe (Weißhaupt)
* 1 x Gasspitzenlastkessel
* 2x 115 KW PV Anlange auf dem Dach
* 80 KW Batteriespeicher (erweiterbar)
* Notstromversorgung der Büros
* Fußbodenheizung in allen Bereichen (auch Logistik)
* Wärmerückgewinnung mit Lüftungsanlage
* 120 mm Sandwitchpanele an Wand und Dach
* Rampenheizung
* Intelligente Steuerung der Haustechnik
Sonstiges
Hinweis: Fehlende Angaben zum Energieausweis gemäß Energiesparverordnung 2014 ( EnEV ) begründen sich durch Nichtangabepflicht bei Denkmalschutzobjekten, Grundstücken, nichtbeheizbaren Immobilien oder wurden bisher trotz Aufforderung gegenüber dem Auftraggeber nicht zur Verfügung gestellt.
Haftungsausschluss: Trotz sorgfältiger Bearbeitung von Daten, Bildern und Informationen übernehmen wir keine Haftung für die Richtigkeit der Angaben, ebenso wenig für die Lieferfähigkeit des Angebotes bei Vermietung bzw. Verkauf. Bitte beachten Sie hierzu unsere allgemeinen Geschäftsbedingungen die Sie unter www.der-immo-tip.de einsehen können.
Haftungsausschluss: Trotz sorgfältiger Bearbeitung von Daten, Bildern und Informationen übernehmen wir keine Haftung für die Richtigkeit der Angaben, ebenso wenig für die Lieferfähigkeit des Angebotes bei Vermietung bzw. Verkauf. Bitte beachten Sie hierzu unsere allgemeinen Geschäftsbedingungen die Sie unter www.der-immo-tip.de einsehen können.
Kontakt

Objekt anfragen
while(allpics.length > 0){
allpics.pop();
}
var objnummer ="65949";var pic0 = new Image();pic0.src = 'uploads/pics/immo/1/_processed_/1/6/csm_275fffa7-4543-44f9-b246-026b4464b376_9242c8861a.jpg';
allpics.push('uploads/pics/immo/1/_processed_/1/6/csm_275fffa7-4543-44f9-b246-026b4464b376_9242c8861a.jpg');
var pic1 = new Image();pic1.src = 'uploads/pics/immo/1/_processed_/f/4/csm_54d169ae-f949-41fe-8d3c-b38e4104019f_5382b12670.jpg';
allpics.push('uploads/pics/immo/1/_processed_/f/4/csm_54d169ae-f949-41fe-8d3c-b38e4104019f_5382b12670.jpg');
var pic2 = new Image();pic2.src = 'uploads/pics/immo/1/_processed_/8/e/csm_4b377dc7-9b3b-450d-9642-48c09786b77a_0da81e2cd4.jpg';
allpics.push('uploads/pics/immo/1/_processed_/8/e/csm_4b377dc7-9b3b-450d-9642-48c09786b77a_0da81e2cd4.jpg');
var pic3 = new Image();pic3.src = 'uploads/pics/immo/1/_processed_/3/b/csm_7df0c170-d057-487a-875c-7b5c2265a19f_9f8cb197e4.jpg';
allpics.push('uploads/pics/immo/1/_processed_/3/b/csm_7df0c170-d057-487a-875c-7b5c2265a19f_9f8cb197e4.jpg');
var pic4 = new Image();pic4.src = 'uploads/pics/immo/1/_processed_/d/d/csm_53a2d4f1-75ec-4277-ba39-019bf18fc0cc_0b04ca4ae2.jpg';
allpics.push('uploads/pics/immo/1/_processed_/d/d/csm_53a2d4f1-75ec-4277-ba39-019bf18fc0cc_0b04ca4ae2.jpg');
var pic5 = new Image();pic5.src = 'uploads/pics/immo/1/_processed_/a/a/csm_612aa909-4d55-40f7-bdd6-370902f82da5_afa97f5d45.jpg';
allpics.push('uploads/pics/immo/1/_processed_/a/a/csm_612aa909-4d55-40f7-bdd6-370902f82da5_afa97f5d45.jpg');
var pic6 = new Image();pic6.src = 'uploads/pics/immo/1/_processed_/4/1/csm_6d9d0ee4-f64a-401c-aee8-31886dad6da7_83c8d4d012.jpg';
allpics.push('uploads/pics/immo/1/_processed_/4/1/csm_6d9d0ee4-f64a-401c-aee8-31886dad6da7_83c8d4d012.jpg');
var pic7 = new Image();pic7.src = 'uploads/pics/immo/1/_processed_/c/3/csm_13e32552-81d4-4251-865c-621e2e95e6b4_70fc8dd751.jpg';
allpics.push('uploads/pics/immo/1/_processed_/c/3/csm_13e32552-81d4-4251-865c-621e2e95e6b4_70fc8dd751.jpg');
var pic8 = new Image();pic8.src = 'uploads/pics/immo/1/_processed_/b/e/csm_c9fad73f-f37c-4d41-a710-d5c6be01a6d5_7f049a8f7e.jpg';
allpics.push('uploads/pics/immo/1/_processed_/b/e/csm_c9fad73f-f37c-4d41-a710-d5c6be01a6d5_7f049a8f7e.jpg');
var pic9 = new Image();pic9.src = 'uploads/pics/immo/1/_processed_/8/1/csm_a320a7cb-83c0-41c0-b7e4-ec3a9c4c1bc1_bf59a29683.jpg';
allpics.push('uploads/pics/immo/1/_processed_/8/1/csm_a320a7cb-83c0-41c0-b7e4-ec3a9c4c1bc1_bf59a29683.jpg');
var pic10 = new Image();pic10.src = 'uploads/pics/immo/1/_processed_/8/1/csm_e2a22b80-4ad9-444c-817f-59bb01fcbdb4_50914aee00.jpg';
allpics.push('uploads/pics/immo/1/_processed_/8/1/csm_e2a22b80-4ad9-444c-817f-59bb01fcbdb4_50914aee00.jpg');
var pic11 = new Image();pic11.src = 'uploads/pics/immo/1/_processed_/1/a/csm_70f91a56-273e-4465-adbe-fecf291514f0_f7de803c24.jpg';
allpics.push('uploads/pics/immo/1/_processed_/1/a/csm_70f91a56-273e-4465-adbe-fecf291514f0_f7de803c24.jpg');
var pic12 = new Image();pic12.src = 'uploads/pics/immo/1/_processed_/6/b/csm_f8839b48-443f-4526-9de9-44dffc5d696f_81536cc62f.jpg';
allpics.push('uploads/pics/immo/1/_processed_/6/b/csm_f8839b48-443f-4526-9de9-44dffc5d696f_81536cc62f.jpg');
var pic13 = new Image();pic13.src = 'uploads/pics/immo/1/_processed_/9/4/csm_f22b8474-1602-4d77-b584-30ce06f8a57f_0ad0544d63.jpg';
allpics.push('uploads/pics/immo/1/_processed_/9/4/csm_f22b8474-1602-4d77-b584-30ce06f8a57f_0ad0544d63.jpg');
var pic14 = new Image();pic14.src = 'uploads/pics/immo/1/_processed_/f/4/csm_2591408e-d5c7-4916-b2d2-3e87c4afed6c_37e42e6d97.jpg';
allpics.push('uploads/pics/immo/1/_processed_/f/4/csm_2591408e-d5c7-4916-b2d2-3e87c4afed6c_37e42e6d97.jpg');
var pic15 = new Image();pic15.src = 'uploads/pics/immo/1/_processed_/1/a/csm_477a1187-d458-4f38-b2ae-95ec3ae3c376_5dacd389a9.jpg';
allpics.push('uploads/pics/immo/1/_processed_/1/a/csm_477a1187-d458-4f38-b2ae-95ec3ae3c376_5dacd389a9.jpg');
var pic16 = new Image();pic16.src = 'uploads/pics/immo/1/_processed_/d/7/csm_292b4fc9-0acc-4b9f-8920-530d840ec9de_31cc7ac0fc.jpg';
allpics.push('uploads/pics/immo/1/_processed_/d/7/csm_292b4fc9-0acc-4b9f-8920-530d840ec9de_31cc7ac0fc.jpg');
var pic17 = new Image();pic17.src = 'uploads/pics/immo/1/_processed_/4/7/csm_79fd0a57-1a65-4bba-bbe6-479bff29aeed_a2d9bf33e0.jpg';
allpics.push('uploads/pics/immo/1/_processed_/4/7/csm_79fd0a57-1a65-4bba-bbe6-479bff29aeed_a2d9bf33e0.jpg');
var pic18 = new Image();pic18.src = 'uploads/pics/immo/1/_processed_/e/7/csm_29ad9f1b-c92f-422f-8edc-723e30faedc3_be638f8d23.jpg';
allpics.push('uploads/pics/immo/1/_processed_/e/7/csm_29ad9f1b-c92f-422f-8edc-723e30faedc3_be638f8d23.jpg');
var pic19 = new Image();pic19.src = 'uploads/pics/immo/1/_processed_/f/b/csm_6ae750c9-60cb-41c5-b8eb-460eac7d1fe9_c31d99142f.jpg';
allpics.push('uploads/pics/immo/1/_processed_/f/b/csm_6ae750c9-60cb-41c5-b8eb-460eac7d1fe9_c31d99142f.jpg');
var pic20 = new Image();pic20.src = 'uploads/pics/immo/1/_processed_/e/2/csm_192d6355-81d6-4306-b588-5cb1783425a4_9a0658a762.jpg';
allpics.push('uploads/pics/immo/1/_processed_/e/2/csm_192d6355-81d6-4306-b588-5cb1783425a4_9a0658a762.jpg');
Weitere Objekte zu Ihrer Suche
Kontakt
Telefonkontakt
| Immobilienmakler | |
| Dresden: | 0351 433 130 |
| Leipzig: | 0341 600 539 90 |
| Chemnitz: | 0371 238 710 600 |
| Hausverwaltung | |
| Dresden: | 0351 213 914 60 |
| Mietersprechzeiten | |
| Montag: | 09:00 - 12:00 Uhr 13:00 - 17:00 Uhr |
| Mittwoch: | 09:00 - 12:00 Uhr |
| Donnerstag: | 09:00 - 12:00 Uhr 13:00 - 15:30 Uhr |
































































































































































































































































































































































































































































































































































































































































































