Moderne Bürofläche in Dresden Striesen |ca. 180 m² im Erstbezug zur Miete!
Eckdaten
| Objekt-ID: | 63626_04 |
| Lage: | 01277 Dresden |
| Immobilienart: | Bürofläche |
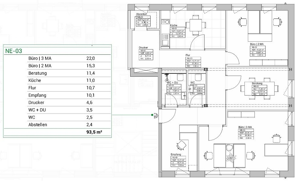
| Bürofläche: | ca. 181 m² |
| Gesamtfläche: | ca. 181 m² |
| Baujahr: | 2025 |
| Bezugstermin: | in Abstimmung |
| Nettokaltmiete/m²/Monat: | 16,00 € |
| Nebenkosten/m²/Monat: | 362,00 € |
Beschreibung
Zur Vermietung steht eine ca. 181 m² große, moderne Büroeinheit im 1. Obergeschoss eines attraktiven Büroneubaus. Die Fläche ist flexibel nutzbar und in zwei separate Bereiche unterteilt: Eine Anmietung ist bereits ab ca. 87 m² möglich. Besonders hervorzuheben ist, dass der linke Bereich barrierefrei sowie rollstuhlgeeignet ausgeführt ist und somit höchsten Ansprüchen an Komfort und Zugänglichkeit genügt.
Das Objekt erfüllt höchste Nachhaltigkeitsstandards mit einer DGNB Gold Zertifizierung sowie dem effizienten EG40-Standard, was äußerst geringe Energiekosten garantiert. Die passive Kühlung im Sommer und die angenehme Fußbodenheizung im Winter werden jeweils über eine nachhaltige Erdwärmeanlage betrieben und durch eine PV-Anlage unterstützt.
Die Büroeinheit ist bestens vorbereitet: Elektroinstallationen sind mit Bodentanks vorinstalliert, die Beleuchtung ist modern und effizient. Eine Einbauküche kann auf Wunsch integriert werden. Die Sanitärbereiche sind barrierefrei gestaltet und verfügen über Dusche und WC.
Weitere Annehmlichkeiten runden das Angebot ab: Ein großzügiger, gemeinschaftlich nutzbarer Garten, ein abschließbarer und überdachter Fahrradunterstand sowie Car-Sharing-Angebote direkt am Haus. Für Besucher und Mitarbeiter stehen zudem kostenfreie Parkplätze im öffentlichen Raum zur Verfügung.
Das Objekt erfüllt höchste Nachhaltigkeitsstandards mit einer DGNB Gold Zertifizierung sowie dem effizienten EG40-Standard, was äußerst geringe Energiekosten garantiert. Die passive Kühlung im Sommer und die angenehme Fußbodenheizung im Winter werden jeweils über eine nachhaltige Erdwärmeanlage betrieben und durch eine PV-Anlage unterstützt.
Die Büroeinheit ist bestens vorbereitet: Elektroinstallationen sind mit Bodentanks vorinstalliert, die Beleuchtung ist modern und effizient. Eine Einbauküche kann auf Wunsch integriert werden. Die Sanitärbereiche sind barrierefrei gestaltet und verfügen über Dusche und WC.
Weitere Annehmlichkeiten runden das Angebot ab: Ein großzügiger, gemeinschaftlich nutzbarer Garten, ein abschließbarer und überdachter Fahrradunterstand sowie Car-Sharing-Angebote direkt am Haus. Für Besucher und Mitarbeiter stehen zudem kostenfreie Parkplätze im öffentlichen Raum zur Verfügung.
Lage
Die Immobilie befindet sich in Dresden Striesen, nahe des Altenberger Platzes.
Der Standort überzeugt durch seine zentrale Lage und eine sehr gute Verkehrsanbindung. Haltestellen des öffentlichen Nahverkehrs sind in wenigen Gehminuten erreichbar – mit dem Auto benötigt man nur wenige Minuten ins Dresdner Stadtzentrum. Zahlreiche Einkaufsmöglichkeiten, wie beispielsweise am Altenberger Platz oder im nahegelegenen Seidnitz Center, befinden sich im direkten Umfeld und bieten eine komfortable Nahversorgung.
Der Stadtteil kann mit seinem unverwechselbaren Stadtbild als eines der attraktivsten Viertel Dresdens bezeichnet werden. Man lebt in unmittelbarer Nähe zur Elbe und dem "Großen Garten", der schönsten und größten Parkanlage Dresdens. Neben Blasewitz, Loschwitz und dem Weißen Hirsch besitzt Striesen die meisten und wohl auch qualitativ wertvollsten und besterhaltensten Stadtvillen aus der Gründerzeit und dem Jugendstil. Alter Baumbestand und üppige Alleen sorgen für eine reiche Durchgrünung des Stadtteils.
Der Standort überzeugt durch seine zentrale Lage und eine sehr gute Verkehrsanbindung. Haltestellen des öffentlichen Nahverkehrs sind in wenigen Gehminuten erreichbar – mit dem Auto benötigt man nur wenige Minuten ins Dresdner Stadtzentrum. Zahlreiche Einkaufsmöglichkeiten, wie beispielsweise am Altenberger Platz oder im nahegelegenen Seidnitz Center, befinden sich im direkten Umfeld und bieten eine komfortable Nahversorgung.
Der Stadtteil kann mit seinem unverwechselbaren Stadtbild als eines der attraktivsten Viertel Dresdens bezeichnet werden. Man lebt in unmittelbarer Nähe zur Elbe und dem "Großen Garten", der schönsten und größten Parkanlage Dresdens. Neben Blasewitz, Loschwitz und dem Weißen Hirsch besitzt Striesen die meisten und wohl auch qualitativ wertvollsten und besterhaltensten Stadtvillen aus der Gründerzeit und dem Jugendstil. Alter Baumbestand und üppige Alleen sorgen für eine reiche Durchgrünung des Stadtteils.
Ausstattungsbeschreibung
* Barrierefreiheit
* Einbauküche möglich
* Zertifizierung DGNB (gold) / EG40 Standard (geringe Energiekosten)
* Passive Kühlung im Sommer (Erdwärme) mit Nutzung PV
* Fußbodenheizung mit Erdwärme
* Vorinstallation Elektro mit Bodentanks und Beleuchtungen
* Barrierefreie Bäder mit Dusche & WC
* Aufzug
* Gemeinsame Gartennutzung
* Fahrradunterstand überdacht und abschließbar
* Car-Sharing direkt am Haus
* kostenfreie Parkplätze im öffentlichen Raum
* Einbauküche möglich
* Zertifizierung DGNB (gold) / EG40 Standard (geringe Energiekosten)
* Passive Kühlung im Sommer (Erdwärme) mit Nutzung PV
* Fußbodenheizung mit Erdwärme
* Vorinstallation Elektro mit Bodentanks und Beleuchtungen
* Barrierefreie Bäder mit Dusche & WC
* Aufzug
* Gemeinsame Gartennutzung
* Fahrradunterstand überdacht und abschließbar
* Car-Sharing direkt am Haus
* kostenfreie Parkplätze im öffentlichen Raum
Sonstiges
Haftungsausschluss: Trotz sorgfältiger Bearbeitung von Daten, Bildern und Informationen übernehmen wir keine Haftung für die Richtigkeit der Angaben, ebenso wenig für die Lieferfähigkeit des Angebotes bei Vermietung bzw. Verkauf. Bitte beachten Sie hierzu unsere allgemeinen Geschäftsbedingungen die Sie unter www.der-immo-tip.de einsehen können.
Energieeffizienz
| Energieausweistyp: | Bedarfsausweis |
| Denkmalschutz: | Nein |
Kontakt

Objekt anfragen
while(allpics.length > 0){
allpics.pop();
}
var objnummer ="63626_04";var pic0 = new Image();pic0.src = 'uploads/pics/immo/1/_490717.jpg';
allpics.push('uploads/pics/immo/1/_490717.jpg');
var pic1 = new Image();pic1.src = 'uploads/pics/immo/1/_490715.jpg';
allpics.push('uploads/pics/immo/1/_490715.jpg');
var pic2 = new Image();pic2.src = 'uploads/pics/immo/1/_490705.jpg';
allpics.push('uploads/pics/immo/1/_490705.jpg');
var pic3 = new Image();pic3.src = 'uploads/pics/immo/1/_490721.jpg';
allpics.push('uploads/pics/immo/1/_490721.jpg');
var pic4 = new Image();pic4.src = 'uploads/pics/immo/1/_490723.jpg';
allpics.push('uploads/pics/immo/1/_490723.jpg');
Weitere Objekte zu Ihrer Suche
Zwei Sanierungsobjekte in ruhiger Lage von Dresden zum Kauf | Denkmalgeschützter Bauernhof + ehem. Gasthof
Zur Vermietung oder Selbstnutzung - Immobilienpaket nahe Dresden | 14 Gewerbeeinheiten & 21 TG Stellplätze in Coswig zum Kauf
Zur Vermietung oder Selbstnutzung - Immobilienpaket nahe Dresden | 14 Gewerbeeinheiten & 21 TG Stellplätze in Coswig zum Kauf
Lager- und Produktionsflächen direkt an der S177 und S81 - unweit der Halbleiterindustrie - zum Kauf!
Erbbaurecht | 7.440 m² Lager-& Produktionsfläche mit Gleisanbindung und im Hafen in Dresden Friedrichstadt
Helle 2-Zimmer-Wohnung in Kleinschachwitz | Eigennutzung oder Kapitalanlage | Balkon & TG-Stellplatz
Lager- und Produktionsflächen direkt an der S177 und S81 - unweit der Halbleiterindustrie - zum Kauf!
Kontakt
Telefonkontakt
| Immobilienmakler | |
| Dresden: | 0351 433 130 |
| Leipzig: | 0341 600 539 90 |
| Chemnitz: | 0371 238 710 600 |
| Hausverwaltung | |
| Dresden: | 0351 213 914 60 |
| Mietersprechzeiten | |
| Montag: | 09:00 - 12:00 Uhr 13:00 - 17:00 Uhr |
| Mittwoch: | 09:00 - 12:00 Uhr |
| Donnerstag: | 09:00 - 12:00 Uhr 13:00 - 15:30 Uhr |






















































































































































































































































































































































































































































































































































































































































































