Moderne Bürofläche im Erstbezug ++ 1.180 m² Bürofläche in Innenstadtnähe zur Miete
Eckdaten
| Objekt-ID: | 64594 |
| Lage: | 01159 Dresden |
| Immobilienart: | Bürofläche |
| Bürofläche: | ca. 1.180 m² |
| Gesamtfläche: | ca. 1.180 m² |
| Bezugstermin: | in Abstimmung |
| Nettokaltmiete/m²: | 16,00 € |
| Sonstige Stellplätze: | 20 |
Beschreibung
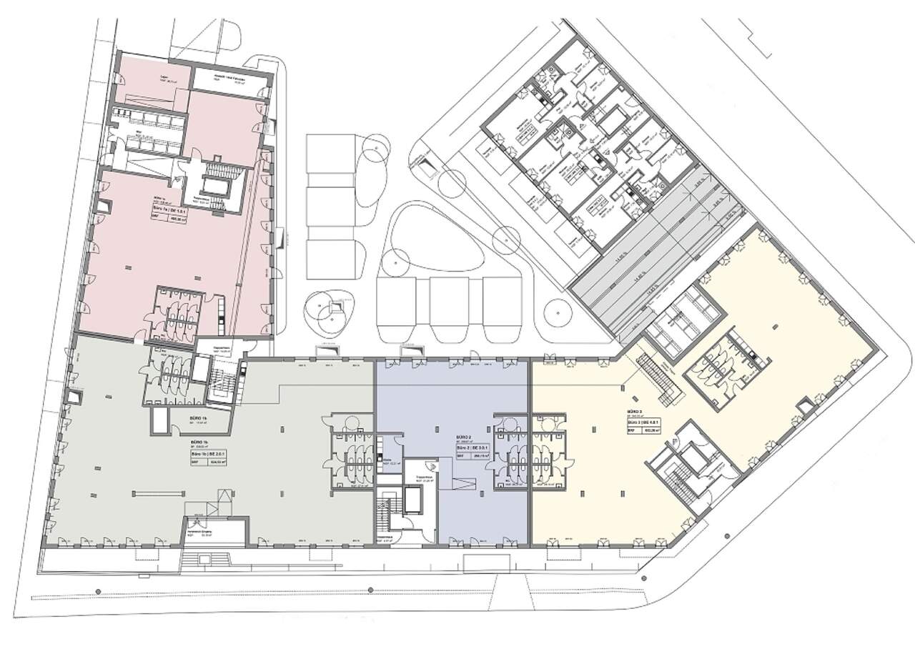
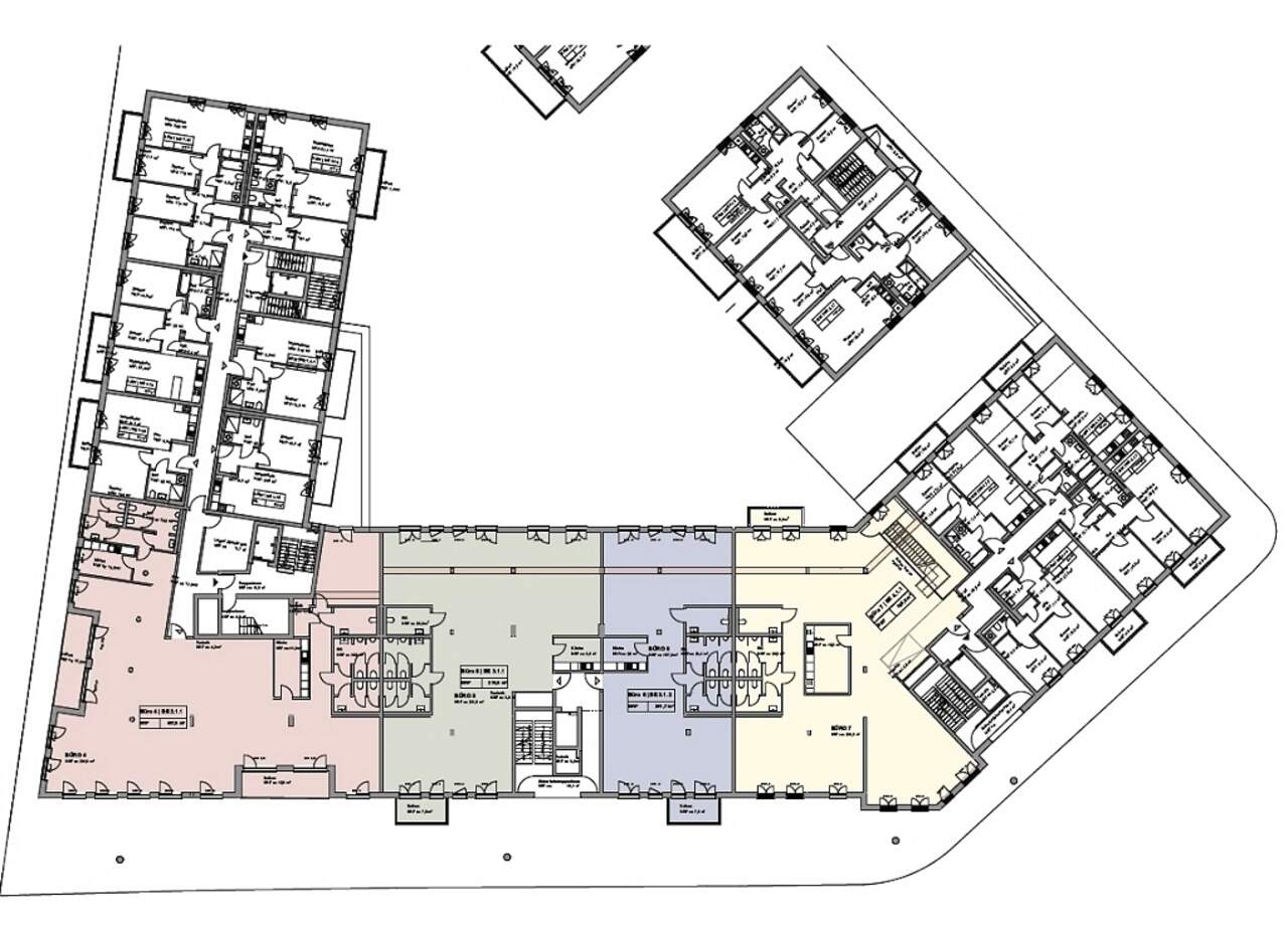
Zur Vermietung steht eine ca. 1.180 m² Bürofläche, die sich im 1. Obergeschoss eines sechsgeschossigen Neubauprojektes befinden wird. In dem modernen Wohnquartier werden neben Wohnungen auch flexible Büro- und Gewerbeflächen entstehen. Die Fertigstellung ist im 1. Quartal 2025 vorgesehen.
Die verschiedenen Gebäudeteile werden unterirdisch durch eine gemeinsame Tiefgarage verbunden sein. Oberirdisch wird ein begrünter und attraktiv gestalteter Innenhof für eine besondere Aufenthaltsqualität sorgen.
Der Nettomietzins beträgt mindestens 16 €/m² und ist abhängig von den individuellen Ausbauwünschen.
Die verschiedenen Gebäudeteile werden unterirdisch durch eine gemeinsame Tiefgarage verbunden sein. Oberirdisch wird ein begrünter und attraktiv gestalteter Innenhof für eine besondere Aufenthaltsqualität sorgen.
Der Nettomietzins beträgt mindestens 16 €/m² und ist abhängig von den individuellen Ausbauwünschen.
Lage
Die Immobilie ensteht in Löbtau-Nord am Anfang der belebten Kesselsdorfer Straße. Die südliche Grundstücksgrenze bildet die LöbtauerStraße, welche die Stadtteile Friedrichstadt und Löbtau verbindet. Darüber hinaus wird das Grundstück von den drei Seitenstraßen Lübecker Straße,
Eichendorffstraße und Columbusstraße begrenzt. In südwestlicher Richtung befindet sich direkt gegenüber dem Löbtauer Tor der Gewerbekomplex "Drei-Kaiser-Hof" und dem gegenüber wiederum die Löbtau Passage. Etwa 50 m vom Grundstück entfernt befindet sich die Haltestelle "Tharandter Straße". Hier verkehren in regelmäßigen Abständen drei Straßenbahnlinien sowie fünf Buslinien und sorgen für eine optimale Anbindung
des Standortes an das gesamte Dresdner Stadtgebiet.
Der Stadtteil gehört zum Dresdner Stadtbezirk Cotta und ist linksseitig der Elbe gelegen. Durch die Kesselsdorfer Straße wird der Stadtteil in Löbtau– Süd und Löbtau-Nord unterteilt. Mehrere Schulen und Kindertagesstätten machen den Stadtteil insbesondere für junge Familien
attraktiv. Aufgrund der Nähe zur Technischen Universität und der günstigen Verkehrsanbindung geniest Löbtau aber auch bei Studenten zunehmende Beliebtheit. Der Stadtteil ist über den öffentlichen Personenverkehr optimal an das gesamte Stadtgebiet angebunden. Sechs Straßenbahnlinien sowie fünf Buslinien verkehren in regelmäßigen Abständen.
Die sächsische Landeshauptstadt Dresden ist mit mehr als 570.000 Einwohnern die zweitgrößte Stadt des Freistaat Sachsen und flächenmäßig die viertgrößte Stadt Deutschlands. Sie beeindruckt nicht nur durch ihre über die Landesgrenzen hinaus bekannte barocke Architektur und vielfältige Kulturlandschaft, sondern auch durch die sich dynamisch entwickelnde Wirtschaftsstruktur. Die an der Elbe gelegene Stadt ist Verkehrsknotenpunkt und wirtschaftliches Zentrum des Ballungsraumes Dresden. Sie zählt außerdem zu den wirtschaftlich stärksten Regionen Deutschlands und gilt als bedeutender Universitätsstandort.
Eichendorffstraße und Columbusstraße begrenzt. In südwestlicher Richtung befindet sich direkt gegenüber dem Löbtauer Tor der Gewerbekomplex "Drei-Kaiser-Hof" und dem gegenüber wiederum die Löbtau Passage. Etwa 50 m vom Grundstück entfernt befindet sich die Haltestelle "Tharandter Straße". Hier verkehren in regelmäßigen Abständen drei Straßenbahnlinien sowie fünf Buslinien und sorgen für eine optimale Anbindung
des Standortes an das gesamte Dresdner Stadtgebiet.
Der Stadtteil gehört zum Dresdner Stadtbezirk Cotta und ist linksseitig der Elbe gelegen. Durch die Kesselsdorfer Straße wird der Stadtteil in Löbtau– Süd und Löbtau-Nord unterteilt. Mehrere Schulen und Kindertagesstätten machen den Stadtteil insbesondere für junge Familien
attraktiv. Aufgrund der Nähe zur Technischen Universität und der günstigen Verkehrsanbindung geniest Löbtau aber auch bei Studenten zunehmende Beliebtheit. Der Stadtteil ist über den öffentlichen Personenverkehr optimal an das gesamte Stadtgebiet angebunden. Sechs Straßenbahnlinien sowie fünf Buslinien verkehren in regelmäßigen Abständen.
Die sächsische Landeshauptstadt Dresden ist mit mehr als 570.000 Einwohnern die zweitgrößte Stadt des Freistaat Sachsen und flächenmäßig die viertgrößte Stadt Deutschlands. Sie beeindruckt nicht nur durch ihre über die Landesgrenzen hinaus bekannte barocke Architektur und vielfältige Kulturlandschaft, sondern auch durch die sich dynamisch entwickelnde Wirtschaftsstruktur. Die an der Elbe gelegene Stadt ist Verkehrsknotenpunkt und wirtschaftliches Zentrum des Ballungsraumes Dresden. Sie zählt außerdem zu den wirtschaftlich stärksten Regionen Deutschlands und gilt als bedeutender Universitätsstandort.
Ausstattungsbeschreibung
* gute Werbemöglichkeiten und Sichtbarkeit
* teilbare Flächen
* Ausstattung nach Mieterwunsch
* Personenaufzug
* bodentiefe Fenster
* 20 Stellplätze in Tiefgarage
* Fertigstellung I.Quartal 2025
* teilbare Flächen
* Ausstattung nach Mieterwunsch
* Personenaufzug
* bodentiefe Fenster
* 20 Stellplätze in Tiefgarage
* Fertigstellung I.Quartal 2025
Sonstiges
Hinweis: Fehlende Angaben zum Energieausweis gemäß Energiesparverordnung 2014 ( EnEV ) begründen sich durch Nichtangabepflicht bei Denkmalschutzobjekten, Grundstücken, nichtbeheizbaren Immobilien oder wurden bisher trotz Aufforderung gegenüber dem Auftraggeber nicht zur Verfügung gestellt.
Haftungsausschluss: Trotz sorgfältiger Bearbeitung von Daten, Bildern und Informationen übernehmen wir keine Haftung für die Richtigkeit der Angaben, ebenso wenig für die Lieferfähigkeit des Angebotes bei Vermietung bzw. Verkauf. Bitte beachten Sie hierzu unsere allgemeinen Geschäftsbedingungen die Sie unter www.der-immo-tip.de einsehen können.
Haftungsausschluss: Trotz sorgfältiger Bearbeitung von Daten, Bildern und Informationen übernehmen wir keine Haftung für die Richtigkeit der Angaben, ebenso wenig für die Lieferfähigkeit des Angebotes bei Vermietung bzw. Verkauf. Bitte beachten Sie hierzu unsere allgemeinen Geschäftsbedingungen die Sie unter www.der-immo-tip.de einsehen können.
Kontakt

Objekt anfragen
while(allpics.length > 0){
allpics.pop();
}
var objnummer ="64594";var pic0 = new Image();pic0.src = 'uploads/pics/immo/1/_processed_/b/4/csm_1b6fe90b-4a2a-4085-ab73-fde2cf27e67a_e9879af714.jpg';
allpics.push('uploads/pics/immo/1/_processed_/b/4/csm_1b6fe90b-4a2a-4085-ab73-fde2cf27e67a_e9879af714.jpg');
var pic1 = new Image();pic1.src = 'uploads/pics/immo/1/_processed_/a/b/csm_2d2951fc-6ae7-4fff-8a85-9de1d51dd7b0_bad797c174.jpg';
allpics.push('uploads/pics/immo/1/_processed_/a/b/csm_2d2951fc-6ae7-4fff-8a85-9de1d51dd7b0_bad797c174.jpg');
Weitere Objekte zu Ihrer Suche
Erbbaurecht | 7.440 m² Lager-& Produktionsfläche mit Gleisanbindung und im Hafen in Dresden Friedrichstadt
Lager- und Produktionsflächen direkt an der S177 und S81 - unweit der Halbleiterindustrie - zum Kauf!
Kontakt
Telefonkontakt
| Immobilienmakler | |
| Dresden: | 0351 433 130 |
| Leipzig: | 0341 600 539 90 |
| Chemnitz: | 0371 238 710 600 |
| Hausverwaltung | |
| Dresden: | 0351 213 914 60 |
| Mietersprechzeiten | |
| Montag: | 09:00 - 12:00 Uhr 13:00 - 17:00 Uhr |
| Mittwoch: | 09:00 - 12:00 Uhr |
| Donnerstag: | 09:00 - 12:00 Uhr 13:00 - 15:30 Uhr |



































































































































































































































































































































































































































































































































































































































