Micropolis | ca. 400 m² Bürofläche im Dresnder Norden zur Miete
Eckdaten
| Objekt-ID: | 16775_04 |
| Lage: | 01109 Dresden |
| Immobilienart: | Bürofläche |
| Etage: | 1 |
| Bürofläche: | ca. 339 m² |
| Gesamtfläche: | ca. 399 m² |
| Bezugstermin: | in Abstimmung |
| Nettokaltmiete/m²/Monat: | 13,50 € |
| Nebenkosten/m²/Monat: | 1.596,00 € |
Beschreibung
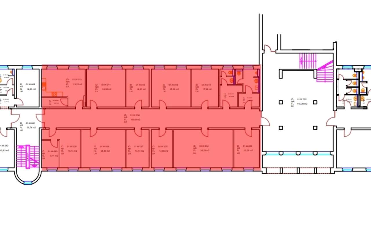
Zur Vermietung steht eine ca. 400 m²große Bürofläche, die sich im Obergeschoss eines Bürohauses innerhalb des MicroPolis Business Park Dresden befindet. Das Areal erstreckt sich über ca. 190.000 m² und bietet einen vielseitigen Mix aus Gewerbeimmobilien. Das Ensemble besteht aus sanierten Altbauten sowie Neubauimmobilien.
Die Aufteilung der Mietfläche von ca. 400 m² ist wie folgt:
ca. 339 m² HNF
ca. 60 m² Gemeinschaftsflächen (Treppenhaus, Foyer)
Bei Interesse erhalten Sie gern weiterführende Informationen/ Unterlagen.
Die Aufteilung der Mietfläche von ca. 400 m² ist wie folgt:
ca. 339 m² HNF
ca. 60 m² Gemeinschaftsflächen (Treppenhaus, Foyer)
Bei Interesse erhalten Sie gern weiterführende Informationen/ Unterlagen.
Lage
Die Immobilie befindet sich in Dresden Klotzsche
Klotzsche ist ein Stadtteil von Dresden im gleichnamigen Ortsamtsbereich und liegt etwa sieben Kilometer nördlich der Innenstadt am Rande der Dresdner Heide.
In Klotzsche befindet sich der Flughafen Dresden mit Anschluss an die Autobahnen A 4 und A 13. Die größten Industrieansiedlungen sind die Halbleiterwerke von Infineon, ZMD und die Elbe Flugzeugwerke der Airbus Group am Flughafen.
Wichtigste Verkehrsader des Ortes ist traditionell die heute Königsbrücker Landstraße genannte Verbindungsstraße nach Osten.
Auf dem Areal stehen PKW-Stellplätze zur Verfügung.
Verkehsanbindung:
Flughafen Dresden - ca. 4 Autominute
Haltepunkt ÖPNV - ca. 100 m
Autobahn - ca. 3,8 km.
Klotzsche ist ein Stadtteil von Dresden im gleichnamigen Ortsamtsbereich und liegt etwa sieben Kilometer nördlich der Innenstadt am Rande der Dresdner Heide.
In Klotzsche befindet sich der Flughafen Dresden mit Anschluss an die Autobahnen A 4 und A 13. Die größten Industrieansiedlungen sind die Halbleiterwerke von Infineon, ZMD und die Elbe Flugzeugwerke der Airbus Group am Flughafen.
Wichtigste Verkehrsader des Ortes ist traditionell die heute Königsbrücker Landstraße genannte Verbindungsstraße nach Osten.
Auf dem Areal stehen PKW-Stellplätze zur Verfügung.
Verkehsanbindung:
Flughafen Dresden - ca. 4 Autominute
Haltepunkt ÖPNV - ca. 100 m
Autobahn - ca. 3,8 km.
Ausstattungsbeschreibung
* klimatisiert
• Behindertengerecht
• Kartenzugangskontrolle
• Personenaufzug
• Datenverkabelung (CAT); DSL
• Zentralheizung
• Teppichboden/ Nadelfilz Räume
• veränderbar/ flexibel
• exklusiv nutzbare Teeküche
• exklusiv nutzbare WC‘s
• saniert/renoviert
• Behindertengerecht
• Kartenzugangskontrolle
• Personenaufzug
• Datenverkabelung (CAT); DSL
• Zentralheizung
• Teppichboden/ Nadelfilz Räume
• veränderbar/ flexibel
• exklusiv nutzbare Teeküche
• exklusiv nutzbare WC‘s
• saniert/renoviert
Sonstiges
Haftungsausschluss: Trotz sorgfältiger Bearbeitung von Daten, Bildern und Informationen übernehmen wir keine Haftung für die Richtigkeit der Angaben, ebenso wenig für die Lieferfähigkeit des Angebotes bei Vermietung bzw. Verkauf. Bitte beachten Sie hierzu unsere allgemeinen Geschäftsbedingungen die Sie unter www.der-immo-tip.de einsehen können.
Kontakt

Objekt anfragen
while(allpics.length > 0){
allpics.pop();
}
var objnummer ="16775_04";var pic0 = new Image();pic0.src = 'uploads/pics/immo/1/_processed_/3/2/csm__472759_3d9a6f5cc9.jpg';
allpics.push('uploads/pics/immo/1/_processed_/3/2/csm__472759_3d9a6f5cc9.jpg');
var pic1 = new Image();pic1.src = 'uploads/pics/immo/1/_processed_/e/e/csm__472761_5cef3020f8.jpg';
allpics.push('uploads/pics/immo/1/_processed_/e/e/csm__472761_5cef3020f8.jpg');
var pic2 = new Image();pic2.src = 'uploads/pics/immo/1/_processed_/9/a/csm__472763_de49832d4b.jpg';
allpics.push('uploads/pics/immo/1/_processed_/9/a/csm__472763_de49832d4b.jpg');
var pic3 = new Image();pic3.src = 'uploads/pics/immo/1/_processed_/e/2/csm__472765_e325b2c8c6.jpg';
allpics.push('uploads/pics/immo/1/_processed_/e/2/csm__472765_e325b2c8c6.jpg');
var pic4 = new Image();pic4.src = 'uploads/pics/immo/1/_processed_/9/3/csm__472767_824a3d6478.jpg';
allpics.push('uploads/pics/immo/1/_processed_/9/3/csm__472767_824a3d6478.jpg');
var pic5 = new Image();pic5.src = 'uploads/pics/immo/1/_processed_/d/f/csm__472769_32501bc1e3.jpg';
allpics.push('uploads/pics/immo/1/_processed_/d/f/csm__472769_32501bc1e3.jpg');
Weitere Objekte zu Ihrer Suche
Helle 2-Zimmer-Wohnung in Kleinschachwitz | Eigennutzung oder Kapitalanlage | Balkon & TG-Stellplatz
Helle 2-Zimmer-Wohnung in Kleinschachwitz | Eigennutzung oder Kapitalanlage | Balkon & TG-Stellplatz
Lager- und Produktionsflächen direkt an der S177 und S81 - unweit der Halbleiterindustrie - zum Kauf!
Erbbaurecht | 7.440 m² Lager-& Produktionsfläche mit Gleisanbindung und im Hafen in Dresden Friedrichstadt
Zur Vermietung oder Selbstnutzung - Immobilienpaket nahe Dresden | 14 Gewerbeeinheiten & 21 TG Stellplätze in Coswig zum Kauf
Zwei Sanierungsobjekte in ruhiger Lage von Dresden zum Kauf | Denkmalgeschützter Bauernhof + ehem. Gasthof
Zur Vermietung oder Selbstnutzung - Immobilienpaket nahe Dresden | 14 Gewerbeeinheiten & 21 TG Stellplätze in Coswig zum Kauf
Lager- und Produktionsflächen direkt an der S177 und S81 - unweit der Halbleiterindustrie - zum Kauf!
Kontakt
Telefonkontakt
| Immobilienmakler | |
| Dresden: | 0351 433 130 |
| Leipzig: | 0341 600 539 90 |
| Chemnitz: | 0371 238 710 600 |
| Hausverwaltung | |
| Dresden: | 0351 213 914 60 |
| Mietersprechzeiten | |
| Montag: | 09:00 - 12:00 Uhr 13:00 - 17:00 Uhr |
| Mittwoch: | 09:00 - 12:00 Uhr |
| Donnerstag: | 09:00 - 12:00 Uhr 13:00 - 15:30 Uhr |










































































































































































































































































































































































































































































