Lager/ Werkstatt in Dresden Löbtau | ca. 336 m² ab sofort zur Miete
Eckdaten
| Objekt-ID: | 66750 |
| Lage: | 01159 Dresden |
| Immobilienart: | Produktion |
| Gesamtfläche: | ca. 336 m² |
| Baujahr: | 1980 |
| Bezugstermin: | ab sofort |
Beschreibung
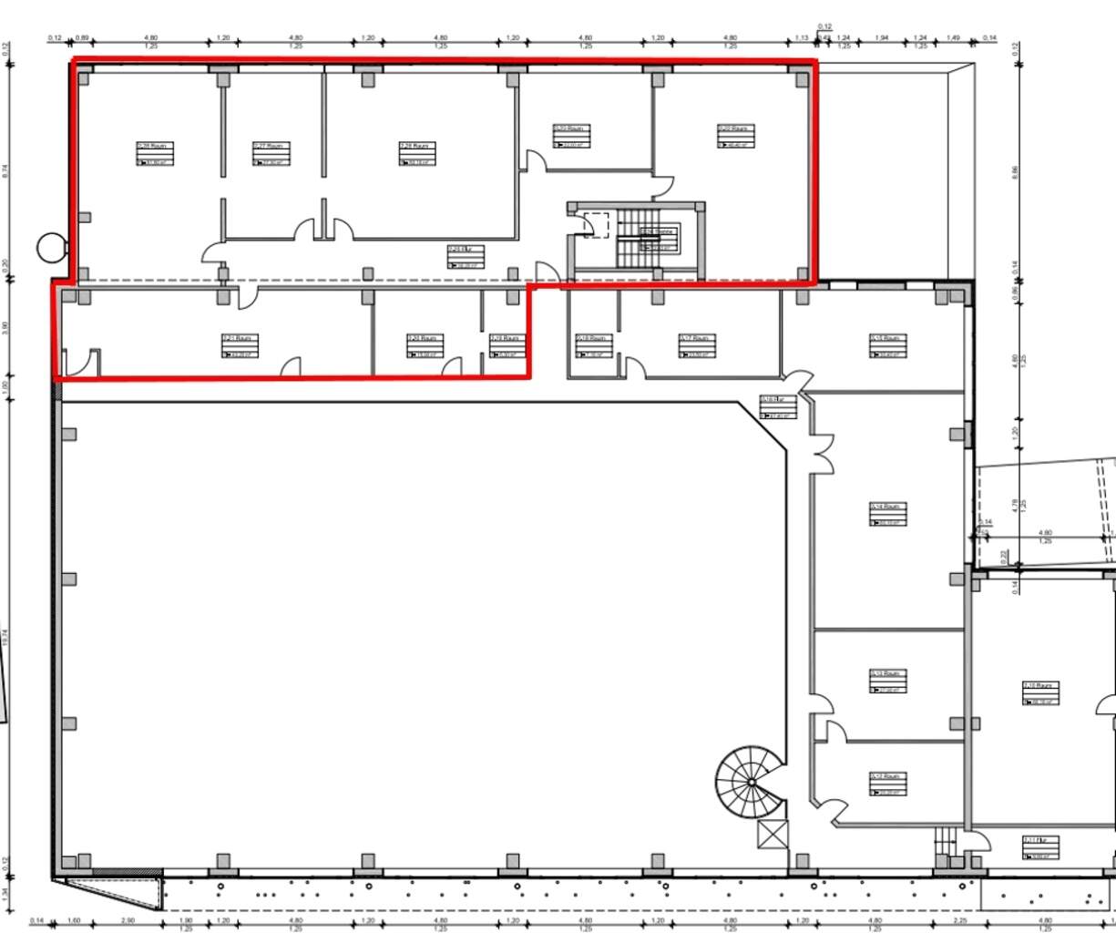
Zur Vermietung steht eine ca. 336 m² große Gewerbefläche, die sich im 1. Obergeschoss einer Lager- und Produktionshalle mit einer Gesamtfläche von ca. 2.050 m² befindet. Die Mietfläche bietet sich für verschiedenen Nutzungen an (Werkstatt, Lager,....)
Bei Interesse stimmen wir gern einen Besichtigungstermin ab.
Bei Interesse stimmen wir gern einen Besichtigungstermin ab.
Lage
Die Immobilie befindet sich in Dresden Löbtau.
Löbtau-Süd befindet sich südöstlich des Stadtzentrums von Dresden. Es wird im Norden von Löbtau-Nord, im Süden vom Stadtteil Nausslitz und im Osten vom Fluss Weißeritz begrenzt. Die Trennung zwischen Löbtau-Nord und Löbtau-Süd verläuft entlang der Kesselsdorfer Straße, welche zugleich die wichtigste Einkaufs- und Geschäftsstraße beider Stadtteile ist.
Mit zwei Straßenbahn- und 14 Bushaltestellen ist Löbtau-Süd gut an das öffentliche Verkehrsnetz angebunden. Drei Kindertagesstätten und Horteinrichtungen sowie jeweils eine Grund-, Mittel- und Berufsschule stehen als Bildungseinrichtungen direkt vor Ort zur Verfügung. Zur Freizeitgestaltung bieten sich Möglichkeiten in den zahlreichen Parkanlagen, im Kino, im Fitnessstudio an der Kesselsdorfer Straße und drei anderen Sporthallen.
Löbtau-Süd befindet sich südöstlich des Stadtzentrums von Dresden. Es wird im Norden von Löbtau-Nord, im Süden vom Stadtteil Nausslitz und im Osten vom Fluss Weißeritz begrenzt. Die Trennung zwischen Löbtau-Nord und Löbtau-Süd verläuft entlang der Kesselsdorfer Straße, welche zugleich die wichtigste Einkaufs- und Geschäftsstraße beider Stadtteile ist.
Mit zwei Straßenbahn- und 14 Bushaltestellen ist Löbtau-Süd gut an das öffentliche Verkehrsnetz angebunden. Drei Kindertagesstätten und Horteinrichtungen sowie jeweils eine Grund-, Mittel- und Berufsschule stehen als Bildungseinrichtungen direkt vor Ort zur Verfügung. Zur Freizeitgestaltung bieten sich Möglichkeiten in den zahlreichen Parkanlagen, im Kino, im Fitnessstudio an der Kesselsdorfer Straße und drei anderen Sporthallen.
Ausstattungsbeschreibung
* Duschen
* Sanitärbereich wird noch nachträglich eingebaut
* Glasfaser im Gebäude anliegend
* großes Faltfenster für Anlieferung
* Sanitärbereich wird noch nachträglich eingebaut
* Glasfaser im Gebäude anliegend
* großes Faltfenster für Anlieferung
Sonstiges
Haftungsausschluss: Trotz sorgfältiger Bearbeitung von Daten, Bildern und Informationen übernehmen wir keine Haftung für die Richtigkeit der Angaben, ebenso wenig für die Lieferfähigkeit des Angebotes bei Vermietung bzw. Verkauf. Bitte beachten Sie hierzu unsere allgemeinen Geschäftsbedingungen die Sie unter www.der-immo-tip.de einsehen können.
Energieeffizienz
| Energieausweistyp: | Bedarfsausweis |
| Denkmalschutz: | Nein |
Kontakt

Objekt anfragen
while(allpics.length > 0){
allpics.pop();
}
var objnummer ="66750";var pic0 = new Image();pic0.src = 'uploads/pics/immo/1/_processed_/7/e/csm_1357d93f-b198-4529-a07b-0744aeb9bc34_3630a76ab5.jpg';
allpics.push('uploads/pics/immo/1/_processed_/7/e/csm_1357d93f-b198-4529-a07b-0744aeb9bc34_3630a76ab5.jpg');
var pic1 = new Image();pic1.src = 'uploads/pics/immo/1/_processed_/b/9/csm_a3612714-f9fd-40d2-a9dc-1d5713530288_6515c619a7.jpg';
allpics.push('uploads/pics/immo/1/_processed_/b/9/csm_a3612714-f9fd-40d2-a9dc-1d5713530288_6515c619a7.jpg');
var pic2 = new Image();pic2.src = 'uploads/pics/immo/1/_processed_/2/3/csm_a5fc8b25-05ae-4c3d-b0d2-8d1051a86e2f_20fae4acfa.jpg';
allpics.push('uploads/pics/immo/1/_processed_/2/3/csm_a5fc8b25-05ae-4c3d-b0d2-8d1051a86e2f_20fae4acfa.jpg');
var pic3 = new Image();pic3.src = 'uploads/pics/immo/1/_processed_/f/b/csm_565b8c39-cd1d-4ef3-9b39-1933a6efe1a4_a259b09f1a.jpg';
allpics.push('uploads/pics/immo/1/_processed_/f/b/csm_565b8c39-cd1d-4ef3-9b39-1933a6efe1a4_a259b09f1a.jpg');
var pic4 = new Image();pic4.src = 'uploads/pics/immo/1/_processed_/1/7/csm_a4a9675f-cdfd-49b7-b150-97ee9378d26e_2c752d3fce.jpg';
allpics.push('uploads/pics/immo/1/_processed_/1/7/csm_a4a9675f-cdfd-49b7-b150-97ee9378d26e_2c752d3fce.jpg');
Weitere Objekte zu Ihrer Suche
Erbbaurecht | 7.440 m² Lager-& Produktionsfläche mit Gleisanbindung und im Hafen in Dresden Friedrichstadt
Lager- und Produktionsflächen direkt an der S177 und S81 - unweit der Halbleiterindustrie - zum Kauf!
Zwei Sanierungsobjekte in ruhiger Lage von Dresden zum Kauf | Denkmalgeschützter Bauernhof + ehem. Gasthof
Zur Vermietung oder Selbstnutzung - Immobilienpaket nahe Dresden | 14 Gewerbeeinheiten & 21 TG Stellplätze in Coswig zum Kauf
Helle 2-Zimmer-Wohnung in Kleinschachwitz | Eigennutzung oder Kapitalanlage | Balkon & TG-Stellplatz
Helle 2-Zimmer-Wohnung in Kleinschachwitz | Eigennutzung oder Kapitalanlage | Balkon & TG-Stellplatz
Zur Vermietung oder Selbstnutzung - Immobilienpaket nahe Dresden | 14 Gewerbeeinheiten & 21 TG Stellplätze in Coswig zum Kauf
Lager- und Produktionsflächen direkt an der S177 und S81 - unweit der Halbleiterindustrie - zum Kauf!
Kontakt
Telefonkontakt
| Immobilienmakler | |
| Dresden: | 0351 433 130 |
| Leipzig: | 0341 600 539 90 |
| Chemnitz: | 0371 238 710 600 |
| Hausverwaltung | |
| Dresden: | 0351 213 914 60 |
| Mietersprechzeiten | |
| Montag: | 09:00 - 12:00 Uhr 13:00 - 17:00 Uhr |
| Mittwoch: | 09:00 - 12:00 Uhr |
| Donnerstag: | 09:00 - 12:00 Uhr 13:00 - 15:30 Uhr |







































































































































































































































































































































































































































































