Ladenfläche mit Charme und großer Schaufensterfront am Weißen Hirsch zur Miete!
Eckdaten
| Objekt-ID: | 13629_11 |
| Lage: | 01324 Dresden |
| Immobilienart: | Verkaufsflaeche |
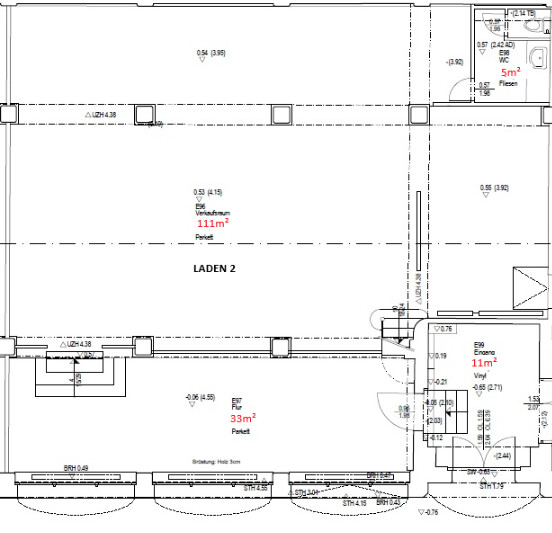
| Gesamtfläche: | ca. 145 m² |
| Bezugstermin: | in Abstimmung |
| Nettokaltmiete/m²/Monat: | 12,00 € |
Beschreibung
Zur Vermietung steht eine moderne Bürofläche mit etwa 145 m² im Erdgeschoss eines aufwendig sanierten und denkmalgeschützten Gebäudekomplexes, der in Dresden einen hohen Bekanntheitsgrad hat.
Die Miethöhe richtet sich nach der vereinbarten Mietvertragslaufzeit sowie nach individuellen Umbau- und Ausbauwünschen. Die Fensterfront wird demnächst noch erneuert.
Wenn Sie Interesse haben, vereinbaren wir gern einen Besichtigungstermin mit Ihnen oder stellen Ihnen weiterführende Informationen und Unterlagen zur Verfügung.
Die Miethöhe richtet sich nach der vereinbarten Mietvertragslaufzeit sowie nach individuellen Umbau- und Ausbauwünschen. Die Fensterfront wird demnächst noch erneuert.
Wenn Sie Interesse haben, vereinbaren wir gern einen Besichtigungstermin mit Ihnen oder stellen Ihnen weiterführende Informationen und Unterlagen zur Verfügung.
Lage
Die Immobilie befindet sich im Dresdner Stadtteil Weißer Hirsch. Dieser gehört zusammen mit Bühlau, Rochwitz und Loschwitz-Nordost zum statistischen Stadtteil Bühlau/Weißer Hirsch im Stadtbezirk Loschwitz. Das Gebiet liegt östlich des Dresdner Stadtzentrums auf der Neustädter Seite der Elbe.
Bühlau/Weißer Hirsch grenzt im Norden an die Dresdner Heide, im Osten an Weißig, im Südosten an Gönnsdorf/Pappritz und im Südwesten sowie Westen an Loschwitz/Wachwitz.
Zu den wichtigsten Verkehrsachsen des Stadtteils zählen die Bautzner Landstraße, die sowohl von der Bundesstraße 6 als auch von der Straßenbahnlinie 11 befahren wird, die Grundstraße (Staatsstraße 167), welche zum Blauen Wunder führt, sowie die Ullersdorfer Landstraße (Staatsstraße 181) in Richtung Radeberg. Darüber hinaus wird der Stadtteil von mehreren Stadtbus- und Überlandbuslinien bedient. Im Westen des Stadtteils befindet sich zudem die Bergstation der Standseilbahn nach Loschwitz.
Bühlau/Weißer Hirsch grenzt im Norden an die Dresdner Heide, im Osten an Weißig, im Südosten an Gönnsdorf/Pappritz und im Südwesten sowie Westen an Loschwitz/Wachwitz.
Zu den wichtigsten Verkehrsachsen des Stadtteils zählen die Bautzner Landstraße, die sowohl von der Bundesstraße 6 als auch von der Straßenbahnlinie 11 befahren wird, die Grundstraße (Staatsstraße 167), welche zum Blauen Wunder führt, sowie die Ullersdorfer Landstraße (Staatsstraße 181) in Richtung Radeberg. Darüber hinaus wird der Stadtteil von mehreren Stadtbus- und Überlandbuslinien bedient. Im Westen des Stadtteils befindet sich zudem die Bergstation der Standseilbahn nach Loschwitz.
Ausstattungsbeschreibung
* Parkettboden
* große Schaufensterfront
* separate Bürofläche
* Beleuchtung
* Unisex-WC
* große Schaufensterfront
* separate Bürofläche
* Beleuchtung
* Unisex-WC
Kontakt

Objekt anfragen
while(allpics.length > 0){
allpics.pop();
}
var objnummer ="13629_11";var pic0 = new Image();pic0.src = 'uploads/pics/immo/1/_496355.jpg';
allpics.push('uploads/pics/immo/1/_496355.jpg');
var pic1 = new Image();pic1.src = 'uploads/pics/immo/1/_496357.jpg';
allpics.push('uploads/pics/immo/1/_496357.jpg');
var pic2 = new Image();pic2.src = 'uploads/pics/immo/1/_496359.jpg';
allpics.push('uploads/pics/immo/1/_496359.jpg');
var pic3 = new Image();pic3.src = 'uploads/pics/immo/1/_496361.jpg';
allpics.push('uploads/pics/immo/1/_496361.jpg');
var pic4 = new Image();pic4.src = 'uploads/pics/immo/1/_496363.jpg';
allpics.push('uploads/pics/immo/1/_496363.jpg');
var pic5 = new Image();pic5.src = 'uploads/pics/immo/1/_496365.jpg';
allpics.push('uploads/pics/immo/1/_496365.jpg');
var pic6 = new Image();pic6.src = 'uploads/pics/immo/1/_496369.jpg';
allpics.push('uploads/pics/immo/1/_496369.jpg');
var pic7 = new Image();pic7.src = 'uploads/pics/immo/1/_496371.jpg';
allpics.push('uploads/pics/immo/1/_496371.jpg');
Weitere Objekte zu Ihrer Suche
Zur Vermietung oder Selbstnutzung - Immobilienpaket nahe Dresden | 14 Gewerbeeinheiten & 21 TG Stellplätze in Coswig zum Kauf
Lager- und Produktionsflächen direkt an der S177 und S81 - unweit der Halbleiterindustrie - zum Kauf!
Zur Vermietung oder Selbstnutzung - Immobilienpaket nahe Dresden | 14 Gewerbeeinheiten & 21 TG Stellplätze in Coswig zum Kauf
Zwei Sanierungsobjekte in ruhiger Lage von Dresden zum Kauf | Denkmalgeschützter Bauernhof + ehem. Gasthof
Erbbaurecht | 7.440 m² Lager-& Produktionsfläche mit Gleisanbindung und im Hafen in Dresden Friedrichstadt
Helle 2-Zimmer-Wohnung in Kleinschachwitz | Eigennutzung oder Kapitalanlage | Balkon & TG-Stellplatz
Lager- und Produktionsflächen direkt an der S177 und S81 - unweit der Halbleiterindustrie - zum Kauf!
Kontakt
Telefonkontakt
| Immobilienmakler | |
| Dresden: | 0351 433 130 |
| Leipzig: | 0341 600 539 90 |
| Chemnitz: | 0371 238 710 600 |
| Hausverwaltung | |
| Dresden: | 0351 213 914 60 |
| Mietersprechzeiten | |
| Montag: | 09:00 - 12:00 Uhr 13:00 - 17:00 Uhr |
| Mittwoch: | 09:00 - 12:00 Uhr |
| Donnerstag: | 09:00 - 12:00 Uhr 13:00 - 15:30 Uhr |






















































































































































































































































































































































































































































































































































































































































































