Laden oder Büro nahe Innenstadt von Dresden mieten!
Eckdaten
| Objekt-ID: | 3041_05 |
| Lage: | 01159 Dresden |
| Immobilienart: | Bürofläche |
| Bürofläche: | ca. 208 m² |
| Gesamtfläche: | ca. 208 m² |
| Baujahr: | 1996 |
| Bezugstermin: | ab sofort |
| Nettokaltmiete/m²/Monat: | 8,50 € |
| Nebenkosten/m²/Monat: | 790,40 € |
Beschreibung
Zur Vermietung steht eine ca. 208 m² große Laden-/ Bürofläche, die sich im Erdgeschoss eines Bürohauses namens Kontorhaus unweit des S-Bahn-Haltepunkt "Freiberger Straße" befindet.
Das Kontorhaus ist ein voll vermietetes Geschäftshaus, wo u.a. IT-Unternehmen, Ingenieurbüros, Bildungsträger, Dienstleister und ein Sportstudio zu langjährigen Mietern zählen.
Die Fläche ist aktuell noch vermietet, der Mieter sucht jedoch einen Nachmieter.
Das Kontorhaus ist ein voll vermietetes Geschäftshaus, wo u.a. IT-Unternehmen, Ingenieurbüros, Bildungsträger, Dienstleister und ein Sportstudio zu langjährigen Mietern zählen.
Die Fläche ist aktuell noch vermietet, der Mieter sucht jedoch einen Nachmieter.
Lage
* befindet sich im Stadtteil Dresden Südvorstadt
* Zentrumsnah gelegen
* World Trade Center nur wenige Meter entfernt
* verkehrsgünstig gelegen (Bahn, Bus und Bahnhof)
* weitere Gewerbetreibende im Objekt
* wenige Fahrminuten zur Autobahnauffahrt A4 und 17
* Einkaufsmöglichkeiten nur 5 Minuten entfernt
* Tiefgaragenstellplätze vorhanden
Im Dresdner Zentrum gelegen.
* Zentrumsnah gelegen
* World Trade Center nur wenige Meter entfernt
* verkehrsgünstig gelegen (Bahn, Bus und Bahnhof)
* weitere Gewerbetreibende im Objekt
* wenige Fahrminuten zur Autobahnauffahrt A4 und 17
* Einkaufsmöglichkeiten nur 5 Minuten entfernt
* Tiefgaragenstellplätze vorhanden
Im Dresdner Zentrum gelegen.
Ausstattungsbeschreibung
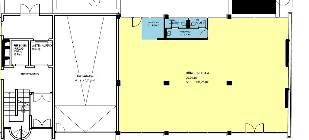
* Barrierefreier Zugang
* Anschlüsse für eine Teeküche
* Getrennte WC-Anlage
* Flexible Raumstruktur durch Trockenbau
* Personen- und Lastenaufzug im VH (bis 1600 kg Tragkraft) vorhanden
* Tiefgarage
* Linoleumfußboden
* LED Deckenbeleuchtung
* offenes Raumkonzept mit zwei abgetrennten Büros
Umbauten nach Mieterwünschen können in Abstimmung mit dem Vermieter erfolgen.
* Anschlüsse für eine Teeküche
* Getrennte WC-Anlage
* Flexible Raumstruktur durch Trockenbau
* Personen- und Lastenaufzug im VH (bis 1600 kg Tragkraft) vorhanden
* Tiefgarage
* Linoleumfußboden
* LED Deckenbeleuchtung
* offenes Raumkonzept mit zwei abgetrennten Büros
Umbauten nach Mieterwünschen können in Abstimmung mit dem Vermieter erfolgen.
Sonstiges
Haftungsausschluss: Trotz sorgfältiger Bearbeitung von Daten, Bildern und Informationen übernehmen wir keine Haftung für die Richtigkeit der Angaben, ebenso wenig für die Lieferfähigkeit des Angebotes bei Vermietung bzw. Verkauf. Bitte beachten Sie hierzu unsere allgemeinen Geschäftsbedingungen die Sie unter www.der-immo-tip.de einsehen können.
Energieeffizienz
| Energieausweistyp: | Verbrauchsausweis |
| Denkmalschutz: | Nein |
Kontakt

Objekt anfragen
while(allpics.length > 0){
allpics.pop();
}
var objnummer ="3041_05";var pic0 = new Image();pic0.src = 'uploads/pics/immo/1/_494399.jpg';
allpics.push('uploads/pics/immo/1/_494399.jpg');
var pic1 = new Image();pic1.src = 'uploads/pics/immo/1/_494395.jpg';
allpics.push('uploads/pics/immo/1/_494395.jpg');
var pic2 = new Image();pic2.src = 'uploads/pics/immo/1/_494397.jpg';
allpics.push('uploads/pics/immo/1/_494397.jpg');
var pic3 = new Image();pic3.src = 'uploads/pics/immo/1/_494401.jpg';
allpics.push('uploads/pics/immo/1/_494401.jpg');
var pic4 = new Image();pic4.src = 'uploads/pics/immo/1/_494403.jpg';
allpics.push('uploads/pics/immo/1/_494403.jpg');
Weitere Objekte zu Ihrer Suche
Zwei Sanierungsobjekte in ruhiger Lage von Dresden zum Kauf | Denkmalgeschützter Bauernhof + ehem. Gasthof
Zur Vermietung oder Selbstnutzung - Immobilienpaket nahe Dresden | 14 Gewerbeeinheiten & 21 TG Stellplätze in Coswig zum Kauf
Lager- und Produktionsflächen direkt an der S177 und S81 - unweit der Halbleiterindustrie - zum Kauf!
Lager- und Produktionsflächen direkt an der S177 und S81 - unweit der Halbleiterindustrie - zum Kauf!
Helle 2-Zimmer-Wohnung in Kleinschachwitz | Eigennutzung oder Kapitalanlage | Balkon & TG-Stellplatz
Helle 2-Zimmer-Wohnung in Kleinschachwitz | Eigennutzung oder Kapitalanlage | Balkon & TG-Stellplatz
Erbbaurecht | 7.440 m² Lager-& Produktionsfläche mit Gleisanbindung und im Hafen in Dresden Friedrichstadt
Kontakt
Telefonkontakt
| Immobilienmakler | |
| Dresden: | 0351 433 130 |
| Leipzig: | 0341 600 539 90 |
| Chemnitz: | 0371 238 710 600 |
| Hausverwaltung | |
| Dresden: | 0351 213 914 60 |
| Mietersprechzeiten | |
| Montag: | 09:00 - 12:00 Uhr 13:00 - 17:00 Uhr |
| Mittwoch: | 09:00 - 12:00 Uhr |
| Donnerstag: | 09:00 - 12:00 Uhr 13:00 - 15:30 Uhr |






















































































































































































































































































































































































































































































































































































































































































