Laden - Entwicklungsfläche am Einkaufszentrum langfristig in Berliner Randlage mieten
Eckdaten
| Objekt-ID: | 60673 |
| Lage: | 15537 Gosen-Neu Zittau |
| Immobilienart: | Läden/SB-Märkte |
| Etage: | 1 |
| Grundstücksfläche: | ca. 3.327 m² |
| Ladenfläche: | ca. 2.700 m² |
| Gewerbefläche: | ca. 2.700,00 m² |
| Gesamtfläche: | ca. 3.000 m² |
| Baujahr: | 2000 |
| Bezugstermin: | nach Vereinbarung |
| Nettokaltmiete/Monat: | 27.000,00 € |
| Nettokaltmiete/m²/Monat: | 10,00 € |
| Nebenkosten/m²/Monat: | 3,00 € |
| Anzahl Parkflächen: | 30 |
Beschreibung
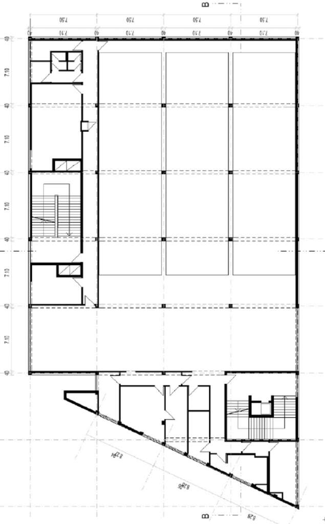
Die Laden - Entwicklungsflächen im EG ca. 700m², 1. und 2. OG (ca. 2000) stehen ab 2026 zur Anmietung zur Verfügung. Die Flächen im 1.OG und 2. OG haben ein Raumhöhe von ca. 4 Meter und befinden sich im Rohbauzustand und können mit dem EG verbunden werden.
Erschlossen sind diese Flächen durch zwei Treppenhäuser sowie einen Aufzug. Diese Flächen werden nutzergerecht ausgebaut und langfristig vermietet. Die aktuelle Miete ist als Bestandsmiete inkl. Investitionen gemäß Vereinbarung anzusehen. Je nach Anteil des Mieters an den Investitionen kann die Miete auch geringer ausfallen.
Erschlossen sind diese Flächen durch zwei Treppenhäuser sowie einen Aufzug. Diese Flächen werden nutzergerecht ausgebaut und langfristig vermietet. Die aktuelle Miete ist als Bestandsmiete inkl. Investitionen gemäß Vereinbarung anzusehen. Je nach Anteil des Mieters an den Investitionen kann die Miete auch geringer ausfallen.
Lage
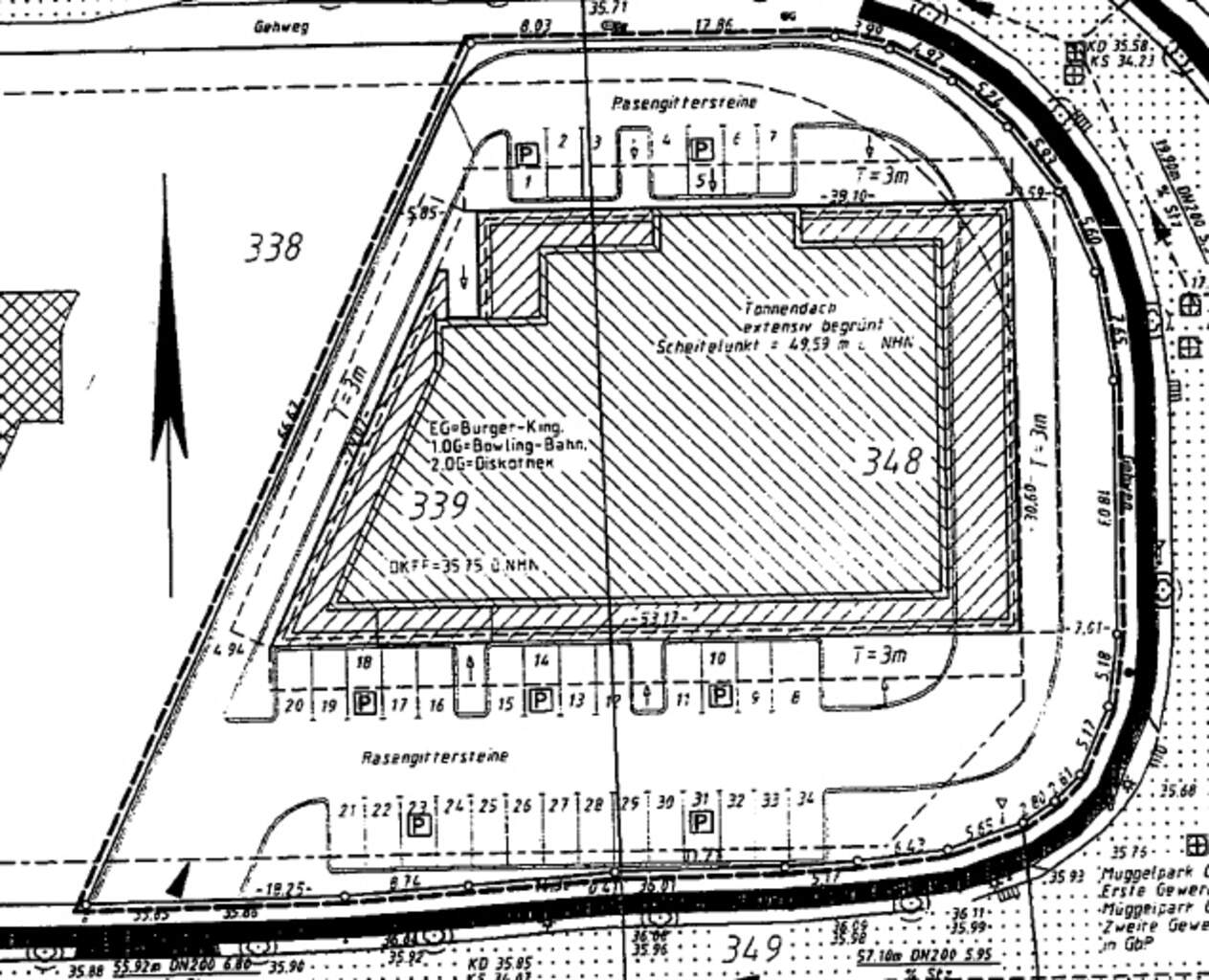
Das Objekt liegt in einem Gewerbegebiet / Einkaufszentrum in direkter Randlage zu Berlin.
Sonstiges
Hinweis: Fehlende Angaben zum Energieausweis gemäß Energiesparverordnung 2014 ( EnEV ) begründen sich durch Nichtangabepflicht bei Denkmalschutzobjekten, Grundstücken, nichtbeheizbaren Immobilien oder wurden bisher trotz Aufforderung gegenüber dem Auftraggeber nicht zur Verfügung gestellt.
Haftungsausschluss: Trotz sorgfältiger Bearbeitung von Daten, Bildern und Informationen übernehmen wir keine Haftung für die Richtigkeit der Angaben, ebenso wenig für die Lieferfähigkeit des Angebotes bei Vermietung bzw. Verkauf. Bitte beachten Sie hierzu unsere allgemeinen Geschäftsbedingungen die Sie unter www.der-immo-tip.de einsehen können.
Haftungsausschluss: Trotz sorgfältiger Bearbeitung von Daten, Bildern und Informationen übernehmen wir keine Haftung für die Richtigkeit der Angaben, ebenso wenig für die Lieferfähigkeit des Angebotes bei Vermietung bzw. Verkauf. Bitte beachten Sie hierzu unsere allgemeinen Geschäftsbedingungen die Sie unter www.der-immo-tip.de einsehen können.
Energieeffizienz
| Energieausweistyp: | Verbrauchsausweis |
| Heizungsart: | Zentralheizung |
| Befeuerungsart: | Erdgas schwer |
| Energieeffizienzklasse: | B |
| Energiekennwert: | 71 kWh/(m² a) |
| Denkmalschutz: | Nein |
Kontakt
Michael Hoffmann
Jakobikirchplatz 2
01069 Dresden
E-Mail:hoffmann@der-immo-tip.de
Telefon:037123871060
Telefax:0351 433 13 18
Jakobikirchplatz 2
01069 Dresden
E-Mail:hoffmann@der-immo-tip.de
Telefon:037123871060
Telefax:0351 433 13 18

Objekt anfragen
while(allpics.length > 0){
allpics.pop();
}
var objnummer ="60673";var pic0 = new Image();pic0.src = 'uploads/pics/immo/1/_processed_/e/d/csm_60673-a_ansicht_49f93d6691.jpg';
allpics.push('uploads/pics/immo/1/_processed_/e/d/csm_60673-a_ansicht_49f93d6691.jpg');
var pic1 = new Image();pic1.src = 'uploads/pics/immo/1/_processed_/9/f/csm_60673-b1_ansicht_b3231d2f81.jpg';
allpics.push('uploads/pics/immo/1/_processed_/9/f/csm_60673-b1_ansicht_b3231d2f81.jpg');
var pic2 = new Image();pic2.src = 'uploads/pics/immo/1/_processed_/6/2/csm_60673-b2_ansicht_b287ace582.jpg';
allpics.push('uploads/pics/immo/1/_processed_/6/2/csm_60673-b2_ansicht_b287ace582.jpg');
var pic3 = new Image();pic3.src = 'uploads/pics/immo/1/_processed_/d/8/csm_60673-b3_ansicht_750fcf16c3.jpg';
allpics.push('uploads/pics/immo/1/_processed_/d/8/csm_60673-b3_ansicht_750fcf16c3.jpg');
var pic4 = new Image();pic4.src = 'uploads/pics/immo/1/_processed_/5/5/csm_60673-b4_innen_7fed788621.jpg';
allpics.push('uploads/pics/immo/1/_processed_/5/5/csm_60673-b4_innen_7fed788621.jpg');
var pic5 = new Image();pic5.src = 'uploads/pics/immo/1/_processed_/f/b/csm_60673-b5_innen_18b03857d5.jpg';
allpics.push('uploads/pics/immo/1/_processed_/f/b/csm_60673-b5_innen_18b03857d5.jpg');
var pic6 = new Image();pic6.src = 'uploads/pics/immo/1/_processed_/9/d/csm_60673-b7_grundriss_1og_bcb921ea30.jpg';
allpics.push('uploads/pics/immo/1/_processed_/9/d/csm_60673-b7_grundriss_1og_bcb921ea30.jpg');
var pic7 = new Image();pic7.src = 'uploads/pics/immo/1/_processed_/f/1/csm_60673-b8_grundriss_dg_7b9d0c8a93.jpg';
allpics.push('uploads/pics/immo/1/_processed_/f/1/csm_60673-b8_grundriss_dg_7b9d0c8a93.jpg');
var pic8 = new Image();pic8.src = 'uploads/pics/immo/1/_processed_/1/d/csm_60673-b9_grundriss_eg_210cd5b5d4.jpg';
allpics.push('uploads/pics/immo/1/_processed_/1/d/csm_60673-b9_grundriss_eg_210cd5b5d4.jpg');
var pic9 = new Image();pic9.src = 'uploads/pics/immo/1/_processed_/8/3/csm_60673-b10_lageplan_eg_35ed6443f3.jpg';
allpics.push('uploads/pics/immo/1/_processed_/8/3/csm_60673-b10_lageplan_eg_35ed6443f3.jpg');
Weitere Objekte zu Ihrer Suche
Kontakt
Telefonkontakt
| Immobilienmakler | |
| Dresden: | 0351 433 130 |
| Leipzig: | 0341 600 539 90 |
| Chemnitz: | 0371 238 710 600 |
| Rostock: | 0381 128 736 10 |
| Hausverwaltung | |
| Dresden: | 0351 213 914 60 |
| Mietersprechzeiten | |
| Montag: | 09:00 - 12:00 Uhr 13:00 - 17:00 Uhr |
| Mittwoch: | 09:00 - 12:00 Uhr |
| Donnerstag: | 09:00 - 12:00 Uhr 13:00 - 15:30 Uhr |












