Klimafreundliche & hochwertige 6-Raum Wohnung mit 2 Balkonen u.v.m.
Eckdaten
| Objekt-ID: | 64484_22 |
| Lage: | 01157 Dresden |
| Immobilienart: | Etagenwohnung |
| Zimmer: | 6 |
| Etage: | 2 |
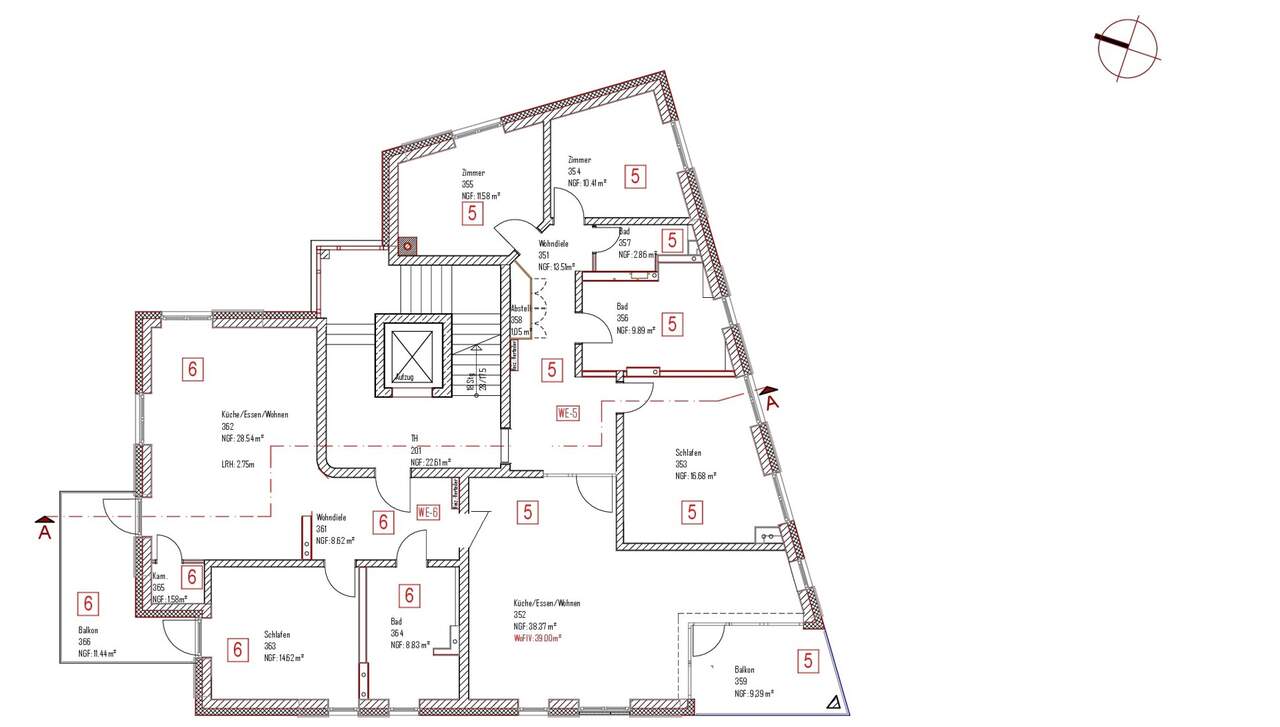
| Wohnfläche: | ca. 178 m² |
| Gesamtfläche: | ca. 178 m² |
| Baujahr: | 2026 |
| Kaufpreis: | 884.500,00 € |
| Kaufpreis/m²: | 4.979,45 € |
| Freiplätze: | 2 |
| Kaufpreis Stellplatz: | 18.000 € |
| Sonstige Stellplätze: | 4 |
Beschreibung
Zum Verkauf steht eine moderne ca. 178 m² große Sechszimmerwohnung mit 2 Balkonen im gesamten 2. Obergeschoss eines geplanten dreigeschossigen Mehrfamilienhauses mit insgesamt sechs Wohneinheiten. Das Neubauprojekt entsteht auf einem ca. 980 m² großen Grundstück.
Das Gebäude wird so gebaut, dass die Bundesförderung für effiziente Gebäude „Klimafreundlicher Neubau – Wohngebäude“ (KFW-Förderung) in Anspruch genommen werden kann.
Alle Wohnungen verfügen über einen Balkon oder eine Terrasse mit einem Grünflächenanteil.
Zusätzlich sollen zwei PKW Stellplätze (á 18.000 €) und vier Fahrrasstellplätze (je 3.000 €) erworben werden.
Der Verkäufer hat keine Vermietungskalkulation vorgenommen, da es dem Erwerber obliegt, zu welchen Kondition er die Wohnungen vermietet. Wir gehen davon aus, dass eine Kaltmiete von 14 €/m² und 50 €/Monat für einen Außenstellplatz erzielt werden können.
Bei Interesse erhalten Sie gern weiterführende Informationen.
Weitere interessante Liegenschaften können Sie gern unter www.der-immo-tip.de anschauen.
Das Gebäude wird so gebaut, dass die Bundesförderung für effiziente Gebäude „Klimafreundlicher Neubau – Wohngebäude“ (KFW-Förderung) in Anspruch genommen werden kann.
Alle Wohnungen verfügen über einen Balkon oder eine Terrasse mit einem Grünflächenanteil.
Zusätzlich sollen zwei PKW Stellplätze (á 18.000 €) und vier Fahrrasstellplätze (je 3.000 €) erworben werden.
Der Verkäufer hat keine Vermietungskalkulation vorgenommen, da es dem Erwerber obliegt, zu welchen Kondition er die Wohnungen vermietet. Wir gehen davon aus, dass eine Kaltmiete von 14 €/m² und 50 €/Monat für einen Außenstellplatz erzielt werden können.
Bei Interesse erhalten Sie gern weiterführende Informationen.
Weitere interessante Liegenschaften können Sie gern unter www.der-immo-tip.de anschauen.
Lage
Das Grundstück befindet sich in Dresden Omsewitz, nahe des Landschaftsschutzgebietes Zschonergrund mit dem Zschonergrundbad und der Zschonermühle.
Omsewitz ist ein idyllischer Stadtteil im Westen von Dresden, der durch seine ruhige und naturnahe Atmosphäre besticht. Der Stadtteil ist geprägt von einer Mischung aus alten Bauernhäusern, Fachwerkgebäudenund modernen Ein- und Mehrfamilienhäuser, was ihm einen einzigartigen Charme verleiht.
Omsewitz liegt etwa sieben Kilometer westlich des Dresdner Stadtzentrums und ist gut an das Verkehrsnetz angebunden. Die Bundesstraße B173 verläuft in unmittelbarer Nähe, und durch den öffentlichen Nahverkehr ist Omsewitz mit mehreren Bus- und Straßenbahnlinien leicht zu erreichen. Die Nähe zur Autobahn A4 bietet zudem eine schnelle Verbindung. Der Stadtteil wird im Linienverkehr regelmäßig über drei Straßenbahnenlinien erschlossen. Die Dresdner Innenstadt ist so mit öffentlichen Verkehrsmitteln bequem in 20 Minuten erreichbar. Außerdem tangieren Busse im Stadt- und Regionalverkehr dieses Wohnviertel und auch die Autobahnanschlussstelle der A 17 befindet sich in unmittelbarer Nähe.
Die Nähe zum Landschaftsschutzgebiet Zschonergrund, bietet zahlreiche Möglichkeiten für Freizeitaktivitäten. Der Zschonergrundbad ist ein beliebtes Ausflugsziel für Familien und Naturliebhaber. Darüber hinaus gibt es in der Umgebung mehrere Spielplätze und Grünflächen, die zu erholsamen Spaziergängen und sportlichen Aktivitäten einladen.
Im Stadtteil selbst gibt es einige kleinere Geschäfte und Supermärkte, die den täglichen Bedarf decken. Für größere Einkäufe und eine breitere Auswahl an Geschäften bietet sich das nahegelegene Einkaufszentrum in Gorbitz an. In Omsewitz gibt es zudem mehrere Restaurants und Cafés.
In dem Stadtteil befindet sich eine Grundschule. Weiterführende Schulen und Bildungseinrichtungen sind in den benachbarten Stadtteilen leicht zu erreichen.
Omsewitz ist ein idyllischer Stadtteil im Westen von Dresden, der durch seine ruhige und naturnahe Atmosphäre besticht. Der Stadtteil ist geprägt von einer Mischung aus alten Bauernhäusern, Fachwerkgebäudenund modernen Ein- und Mehrfamilienhäuser, was ihm einen einzigartigen Charme verleiht.
Omsewitz liegt etwa sieben Kilometer westlich des Dresdner Stadtzentrums und ist gut an das Verkehrsnetz angebunden. Die Bundesstraße B173 verläuft in unmittelbarer Nähe, und durch den öffentlichen Nahverkehr ist Omsewitz mit mehreren Bus- und Straßenbahnlinien leicht zu erreichen. Die Nähe zur Autobahn A4 bietet zudem eine schnelle Verbindung. Der Stadtteil wird im Linienverkehr regelmäßig über drei Straßenbahnenlinien erschlossen. Die Dresdner Innenstadt ist so mit öffentlichen Verkehrsmitteln bequem in 20 Minuten erreichbar. Außerdem tangieren Busse im Stadt- und Regionalverkehr dieses Wohnviertel und auch die Autobahnanschlussstelle der A 17 befindet sich in unmittelbarer Nähe.
Die Nähe zum Landschaftsschutzgebiet Zschonergrund, bietet zahlreiche Möglichkeiten für Freizeitaktivitäten. Der Zschonergrundbad ist ein beliebtes Ausflugsziel für Familien und Naturliebhaber. Darüber hinaus gibt es in der Umgebung mehrere Spielplätze und Grünflächen, die zu erholsamen Spaziergängen und sportlichen Aktivitäten einladen.
Im Stadtteil selbst gibt es einige kleinere Geschäfte und Supermärkte, die den täglichen Bedarf decken. Für größere Einkäufe und eine breitere Auswahl an Geschäften bietet sich das nahegelegene Einkaufszentrum in Gorbitz an. In Omsewitz gibt es zudem mehrere Restaurants und Cafés.
In dem Stadtteil befindet sich eine Grundschule. Weiterführende Schulen und Bildungseinrichtungen sind in den benachbarten Stadtteilen leicht zu erreichen.
Ausstattungsbeschreibung
* Fertigstellung voraussichtlich Mitte 2027
* Beheizung des Gebäudes über 2 Luftwärmepumpen
* jede Wohnung verfügt über einen Balkon oder Terrasse (teilweise mit eigener Grünfläche)
* Personenaufzug in alle Etagen
* Tageslichtbäder mit Wanne und Dusche
* Abstellraum für jede Wohnung im Dachgeschoss
* Wäschetrockenraum im Dachgeschoss
* Fahrradabstellhaus und Sitzecke auf dem Grundstück
* Beheizung des Gebäudes über 2 Luftwärmepumpen
* jede Wohnung verfügt über einen Balkon oder Terrasse (teilweise mit eigener Grünfläche)
* Personenaufzug in alle Etagen
* Tageslichtbäder mit Wanne und Dusche
* Abstellraum für jede Wohnung im Dachgeschoss
* Wäschetrockenraum im Dachgeschoss
* Fahrradabstellhaus und Sitzecke auf dem Grundstück
Sonstiges
Hinweis: Fehlende Angaben zum Energieausweis gemäß Energiesparverordnung 2014 ( EnEV ) begründen sich durch Nichtangabepflicht bei Denkmalschutzobjekten, Grundstücken, nichtbeheizbaren Immobilien oder wurden bisher trotz Aufforderung gegenüber dem Auftraggeber nicht zur Verfügung gestellt.
Haftungsausschluss: Trotz sorgfältiger Bearbeitung von Daten, Bildern und Informationen übernehmen wir keine Haftung für die Richtigkeit der Angaben, ebenso wenig für die Lieferfähigkeit des Angebotes bei Vermietung bzw. Verkauf. Bitte beachten Sie hierzu unsere allgemeinen Geschäftsbedingungen die Sie unter www.der-immo-tip.de einsehen können.
Haftungsausschluss: Trotz sorgfältiger Bearbeitung von Daten, Bildern und Informationen übernehmen wir keine Haftung für die Richtigkeit der Angaben, ebenso wenig für die Lieferfähigkeit des Angebotes bei Vermietung bzw. Verkauf. Bitte beachten Sie hierzu unsere allgemeinen Geschäftsbedingungen die Sie unter www.der-immo-tip.de einsehen können.
Energieeffizienz
| Energieausweistyp: | Bedarfsausweis |
| Denkmalschutz: | Nein |
Kontakt

Objekt anfragen
while(allpics.length > 0){
allpics.pop();
}
var objnummer ="64484_22";var pic0 = new Image();pic0.src = 'uploads/pics/immo/1/_processed_/d/a/csm_342199da-02c0-49ac-9d63-b06b39fca396_b7cc89c9b2.jpg';
allpics.push('uploads/pics/immo/1/_processed_/d/a/csm_342199da-02c0-49ac-9d63-b06b39fca396_b7cc89c9b2.jpg');
var pic1 = new Image();pic1.src = 'uploads/pics/immo/1/_processed_/0/3/csm_22efd2d3-aeb7-4810-b4da-b88c58bf846a_22ea7acb1e.jpg';
allpics.push('uploads/pics/immo/1/_processed_/0/3/csm_22efd2d3-aeb7-4810-b4da-b88c58bf846a_22ea7acb1e.jpg');
var pic2 = new Image();pic2.src = 'uploads/pics/immo/1/_processed_/3/d/csm__488171_cb4fc708ff.jpg';
allpics.push('uploads/pics/immo/1/_processed_/3/d/csm__488171_cb4fc708ff.jpg');
var pic3 = new Image();pic3.src = 'uploads/pics/immo/1/_processed_/4/6/csm_c094f479-7aa4-4ae3-9c80-637b65259a6f_445eefd041.jpg';
allpics.push('uploads/pics/immo/1/_processed_/4/6/csm_c094f479-7aa4-4ae3-9c80-637b65259a6f_445eefd041.jpg');
Weitere Objekte zu Ihrer Suche
Kontakt
Telefonkontakt
| Immobilienmakler | |
| Dresden: | 0351 433 130 |
| Leipzig: | 0341 600 539 90 |
| Chemnitz: | 0371 238 710 600 |
| Hausverwaltung | |
| Dresden: | 0351 213 914 60 |
| Mietersprechzeiten | |
| Montag: | 09:00 - 12:00 Uhr 13:00 - 17:00 Uhr |
| Mittwoch: | 09:00 - 12:00 Uhr |
| Donnerstag: | 09:00 - 12:00 Uhr 13:00 - 15:30 Uhr |
























































































































































































































































































































































































































































