Innenstadtnah | 580 m² Bürofläche in Dresden Friedrichstadt zur Miete
Eckdaten
| Objekt-ID: | 1097_02 |
| Lage: | 01159 Dresden |
| Immobilienart: | Bürofläche |
| Etage: | 3 |
| Bürofläche: | ca. 581 m² |
| Gesamtfläche: | ca. 581 m² |
| Baujahr: | 1996 |
| Nettokaltmiete/m²/Monat: | 10,00 € |
| Nebenkosten/m²/Monat: | 1.859,20 € |
Beschreibung
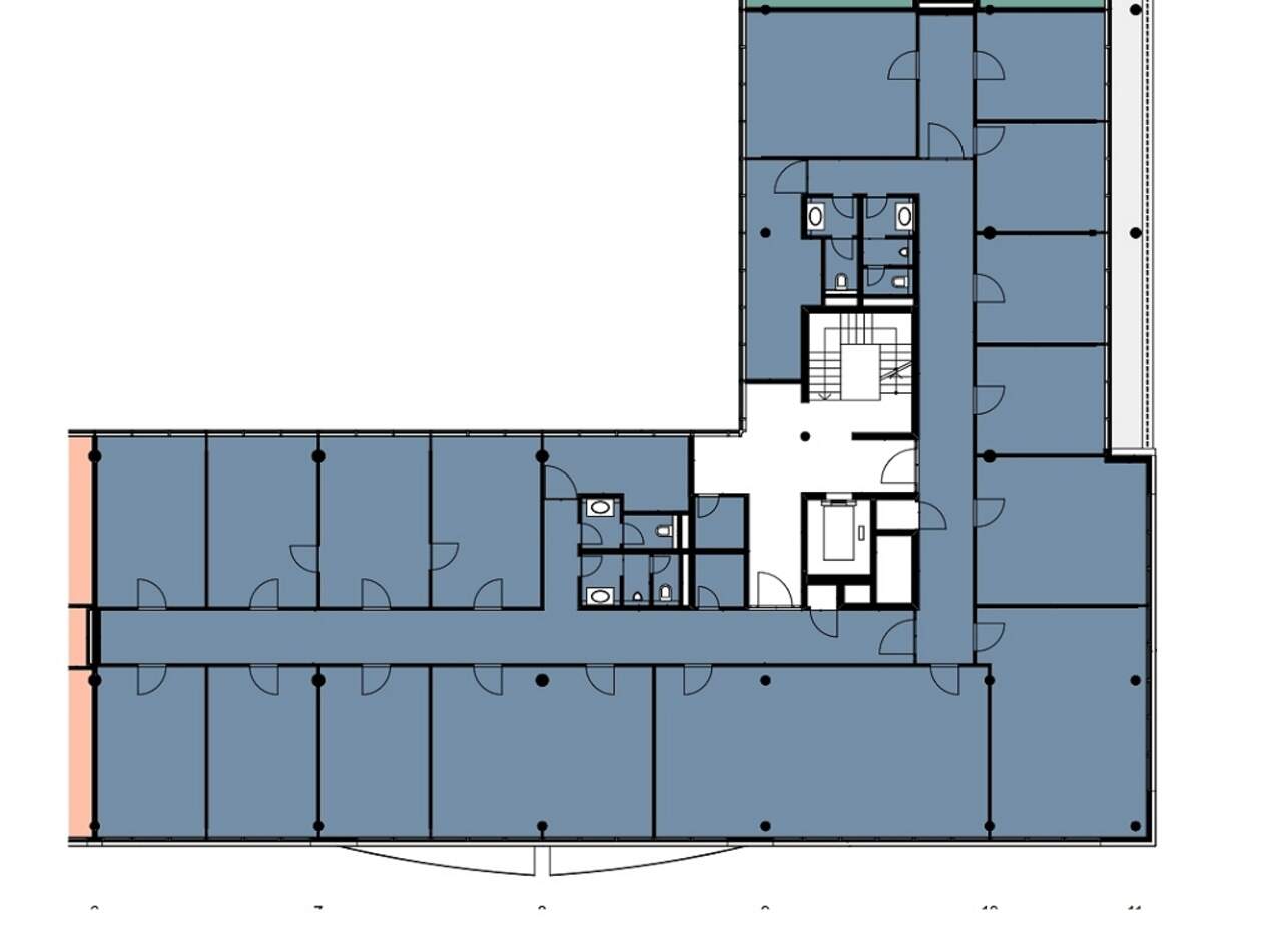
Zur Vermietung steht eine ca. 581 m² große Bürofläche, die sich im 3. Obergeschoss eines Bürohauses befindet. Die Fläche ist barrierfrei über den Aufzug erreichbar. Aktuell ist die Einheit mit Teppichbelag ausgestattet. Darüber hinaus verfügt die Einheit über eine Klimaanlage. Diese und die Alarmanlage können gegen eine Ablöse übernommen werden.
Bei Interesse erhalten Sie gern weiterführende Informationen/ Unterlagen.
Bei Interesse erhalten Sie gern weiterführende Informationen/ Unterlagen.
Lage
Die Immobilie befindet sich in Dresden Friedrichstadt mit bester Verkehrsanbindung.
Friedrichstadt ist ein linksseitig der Elbe gelegener Stadtteil Dresdens und grenzt nach Westen hin an die Dresdner Altstadt. Der Stadtteil wird über den Bahnhof Dresden-Mitte direkt mit dem Regionalverkehr in Richtung Görlitz, Hoyerswerda, Cottbus und Leipzig der Eisenbahn eingebunden. Durch die Friedrichstadt verkehren zudem zahlreiche Straßenbahnlinien und die Haltestelle "Bahnhof Mitte" ist ein übergeordneter Verkehrsknotenpunkt für Straßenbahn- und Buslinien mit Anschluss an die S-Bahn.
Nördlich der B6 findest du den Alberthafen mit der Dresdener Mühle, das Ostragehege sowie das Messegelände. Ergänzt wird das Stadttbild durch verschiedene Bürohäuser, u.a. dem Yenidze , dem Güterbahnhof, dem Hafen, der Freiberger Arena ( u. a. die Eissporthalle und die Eisschnelllaufbahn), dem Heinz-Steyer-Stadion und dem Friedrichstädter Krankenhaus.
- Entferungen -
* Haltepunkt ÖPNV direkt vorm Objekt
* ca. 5- 10 Autominuten bis Hauptbahnhof
* ca. 30 Autominuten bis Flughafen Dresden
* ca. 15 Autominuten bis Autobahn A4
Friedrichstadt ist ein linksseitig der Elbe gelegener Stadtteil Dresdens und grenzt nach Westen hin an die Dresdner Altstadt. Der Stadtteil wird über den Bahnhof Dresden-Mitte direkt mit dem Regionalverkehr in Richtung Görlitz, Hoyerswerda, Cottbus und Leipzig der Eisenbahn eingebunden. Durch die Friedrichstadt verkehren zudem zahlreiche Straßenbahnlinien und die Haltestelle "Bahnhof Mitte" ist ein übergeordneter Verkehrsknotenpunkt für Straßenbahn- und Buslinien mit Anschluss an die S-Bahn.
Nördlich der B6 findest du den Alberthafen mit der Dresdener Mühle, das Ostragehege sowie das Messegelände. Ergänzt wird das Stadttbild durch verschiedene Bürohäuser, u.a. dem Yenidze , dem Güterbahnhof, dem Hafen, der Freiberger Arena ( u. a. die Eissporthalle und die Eisschnelllaufbahn), dem Heinz-Steyer-Stadion und dem Friedrichstädter Krankenhaus.
- Entferungen -
* Haltepunkt ÖPNV direkt vorm Objekt
* ca. 5- 10 Autominuten bis Hauptbahnhof
* ca. 30 Autominuten bis Flughafen Dresden
* ca. 15 Autominuten bis Autobahn A4
Ausstattungsbeschreibung
* Aufzug
* helles Raumklima
* außenliegender Sonnenschutz
* felxible Raumaufteilung
* getrennter Sanitärbereich
* AC und Alarmanlage (gegen Ablöse)
* Einbauküche
* barrierefreier Zugang
* helles Raumklima
* außenliegender Sonnenschutz
* felxible Raumaufteilung
* getrennter Sanitärbereich
* AC und Alarmanlage (gegen Ablöse)
* Einbauküche
* barrierefreier Zugang
Sonstiges
Haftungsausschluss: Trotz sorgfältiger Bearbeitung von Daten, Bildern und Informationen übernehmen wir keine Haftung für die Richtigkeit der Angaben, ebenso wenig für die Lieferfähigkeit des Angebotes bei Vermietung bzw. Verkauf. Bitte beachten Sie hierzu unsere allgemeinen Geschäftsbedingungen die Sie unter www.der-immo-tip.de einsehen können.
Energieeffizienz
| Energieausweistyp: | Bedarfsausweis |
| Denkmalschutz: | Nein |
Kontakt

Objekt anfragen
while(allpics.length > 0){
allpics.pop();
}
var objnummer ="1097_02";var pic0 = new Image();pic0.src = 'uploads/pics/immo/1/_processed_/a/f/csm__482019_aa18f19af7.jpg';
allpics.push('uploads/pics/immo/1/_processed_/a/f/csm__482019_aa18f19af7.jpg');
var pic1 = new Image();pic1.src = 'uploads/pics/immo/1/_processed_/5/0/csm__482021_51158c9019.jpg';
allpics.push('uploads/pics/immo/1/_processed_/5/0/csm__482021_51158c9019.jpg');
var pic2 = new Image();pic2.src = 'uploads/pics/immo/1/_processed_/c/8/csm__482023_8cc8702b69.jpg';
allpics.push('uploads/pics/immo/1/_processed_/c/8/csm__482023_8cc8702b69.jpg');
var pic3 = new Image();pic3.src = 'uploads/pics/immo/1/_processed_/a/7/csm__482025_626863aa48.jpg';
allpics.push('uploads/pics/immo/1/_processed_/a/7/csm__482025_626863aa48.jpg');
Weitere Objekte zu Ihrer Suche
Lager- und Produktionsflächen direkt an der S177 und S81 - unweit der Halbleiterindustrie - zum Kauf!
Helle 2-Zimmer-Wohnung in Kleinschachwitz | Eigennutzung oder Kapitalanlage | Balkon & TG-Stellplatz
Zur Vermietung oder Selbstnutzung - Immobilienpaket nahe Dresden | 14 Gewerbeeinheiten & 21 TG Stellplätze in Coswig zum Kauf
Lager- und Produktionsflächen direkt an der S177 und S81 - unweit der Halbleiterindustrie - zum Kauf!
Zwei Sanierungsobjekte in ruhiger Lage von Dresden zum Kauf | Denkmalgeschützter Bauernhof + ehem. Gasthof
Erbbaurecht | 7.440 m² Lager-& Produktionsfläche mit Gleisanbindung und im Hafen in Dresden Friedrichstadt
Zur Vermietung oder Selbstnutzung - Immobilienpaket nahe Dresden | 14 Gewerbeeinheiten & 21 TG Stellplätze in Coswig zum Kauf
Direkt an der A4 nahe Dresden-Flughafen | Halle mit ca. 1.150 m² & Freifläche ca. 4.400 m² zum Kauf!
Kontakt
Telefonkontakt
| Immobilienmakler | |
| Dresden: | 0351 433 130 |
| Leipzig: | 0341 600 539 90 |
| Chemnitz: | 0371 238 710 600 |
| Hausverwaltung | |
| Dresden: | 0351 213 914 60 |
| Mietersprechzeiten | |
| Montag: | 09:00 - 12:00 Uhr 13:00 - 17:00 Uhr |
| Mittwoch: | 09:00 - 12:00 Uhr |
| Donnerstag: | 09:00 - 12:00 Uhr 13:00 - 15:30 Uhr |

















































































































































































































































































































































































































































