In Elbnhähe | Vermietete Bürofläche in Dresden Tolkewitz zum Kauf
Eckdaten
| Objekt-ID: | 13235_03 |
| Lage: | 01279 Dresden |
| Immobilienart: | Bürofläche |
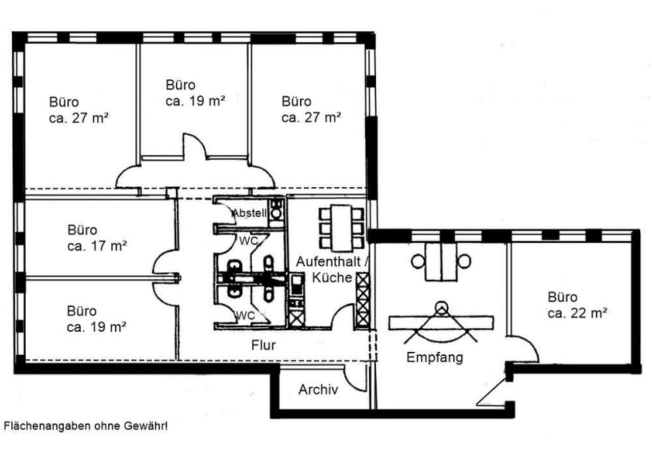
| Gesamtfläche: | ca. 217 m² |
| Baujahr: | 1992 |
| Kaufpreis: | 378.882,00 € |
| Kaufpreis/m²: | 1.746,00 € |
| Sonstige Stellplätze: | 1 |
| Faktor: | 19.10 |
| Mieteinnahmen (Ist): | 19.836,00 € |
Beschreibung
Zum Verkauf steht eine vermietete ca. 217 m² große Bürofläche, die sich im 2. Obergeschoss eines Bürohauses (Baujahr 1992) befindet. Bei Interesse können auch Tiefgaragenstellplätze mit erworben werden.
Die aktuelle Jahresnettomiete für die Gewerbefläche beträgt ca. 19.638 €.
Aktuell steht zusätzlich noch eine weitere vermietete Bürofläche mit ca. 350 m² zum Verkauf.
Bei Interesse erhalten Sie gern weiterführende Informationen/ Unterlagen.
Die aktuelle Jahresnettomiete für die Gewerbefläche beträgt ca. 19.638 €.
Aktuell steht zusätzlich noch eine weitere vermietete Bürofläche mit ca. 350 m² zum Verkauf.
Bei Interesse erhalten Sie gern weiterführende Informationen/ Unterlagen.
Lage
Die Immobilie befindet sich in Dresden Tolkewitz, direkt an einer Hauptstraße.
In fußläufiger Entfernung befinden sich Haltepunkte des ÖPNV, verschiedene Restaurants, Geschäfte des täglichen Bedarfs sowie die Elbwiesen.
Tolkewitz/Seidnitz-Nord ist ein statistischer Stadtteil im Dresdner Stadtbezirk Blasewitz. Er liegt südöstlich des Stadtzentrums auf der Altstädter Elbseite. Der statistische Stadtteil Tolkewitz/Seidnitz-Nord ist umgeben von Loschwitz/Wachwitz im Nordosten, Laubegast im Südosten, Seidnitz/Dobritz im Südwesten, Striesen-Ost im Westen und Blasewitz im Nordwesten.
Wichtigste Straßen des Stadtteils sind die in Richtung Südosten führenden Ein- und Ausfallstraßen Wehlener Straße und Tolkewitzer Straße sowie die Altenberger Straße/Enderstraße in Nord-Süd-Richtung. In Tolkewitz/Seidnitz-Nord verkehren mehrere Straßenbahn- und Stadtbuslinien . Der Stadtteil weist insgesamt sechs Straßenbahn- und 14 Bushaltestellen auf und ist damit sehr gut ins ÖPNV-Netz eingebunden.
In fußläufiger Entfernung befinden sich Haltepunkte des ÖPNV, verschiedene Restaurants, Geschäfte des täglichen Bedarfs sowie die Elbwiesen.
Tolkewitz/Seidnitz-Nord ist ein statistischer Stadtteil im Dresdner Stadtbezirk Blasewitz. Er liegt südöstlich des Stadtzentrums auf der Altstädter Elbseite. Der statistische Stadtteil Tolkewitz/Seidnitz-Nord ist umgeben von Loschwitz/Wachwitz im Nordosten, Laubegast im Südosten, Seidnitz/Dobritz im Südwesten, Striesen-Ost im Westen und Blasewitz im Nordwesten.
Wichtigste Straßen des Stadtteils sind die in Richtung Südosten führenden Ein- und Ausfallstraßen Wehlener Straße und Tolkewitzer Straße sowie die Altenberger Straße/Enderstraße in Nord-Süd-Richtung. In Tolkewitz/Seidnitz-Nord verkehren mehrere Straßenbahn- und Stadtbuslinien . Der Stadtteil weist insgesamt sechs Straßenbahn- und 14 Bushaltestellen auf und ist damit sehr gut ins ÖPNV-Netz eingebunden.
Ausstattungsbeschreibung
* Stellplätze
* Aufzug
* helles Raumklima
* Teppichbelage
* Kabelkanäle
* Aufzug
* helles Raumklima
* Teppichbelage
* Kabelkanäle
Sonstiges
Haftungsausschluss: Trotz sorgfältiger Bearbeitung von Daten, Bildern und Informationen übernehmen wir keine Haftung für die Richtigkeit der Angaben, ebenso wenig für die Lieferfähigkeit des Angebotes bei Vermietung bzw. Verkauf. Bitte beachten Sie hierzu unsere allgemeinen Geschäftsbedingungen die Sie unter www.der-immo-tip.de einsehen können.
Energieeffizienz
| Energieausweistyp: | Verbrauchsausweis |
| Denkmalschutz: | Nein |
Kontakt

Objekt anfragen
while(allpics.length > 0){
allpics.pop();
}
var objnummer ="13235_03";var pic0 = new Image();pic0.src = 'uploads/pics/immo/1/_processed_/3/4/csm__479627_14517ce842.jpg';
allpics.push('uploads/pics/immo/1/_processed_/3/4/csm__479627_14517ce842.jpg');
var pic1 = new Image();pic1.src = 'uploads/pics/immo/1/_processed_/0/7/csm__479629_1f61901a95.jpg';
allpics.push('uploads/pics/immo/1/_processed_/0/7/csm__479629_1f61901a95.jpg');
var pic2 = new Image();pic2.src = 'uploads/pics/immo/1/_processed_/8/a/csm__479631_cf61652b26.jpg';
allpics.push('uploads/pics/immo/1/_processed_/8/a/csm__479631_cf61652b26.jpg');
var pic3 = new Image();pic3.src = 'uploads/pics/immo/1/_processed_/1/9/csm__479633_332ca29086.jpg';
allpics.push('uploads/pics/immo/1/_processed_/1/9/csm__479633_332ca29086.jpg');
var pic4 = new Image();pic4.src = 'uploads/pics/immo/1/_processed_/8/6/csm__479635_197d4b292b.jpg';
allpics.push('uploads/pics/immo/1/_processed_/8/6/csm__479635_197d4b292b.jpg');
var pic5 = new Image();pic5.src = 'uploads/pics/immo/1/_processed_/b/b/csm__479637_b72198b78c.jpg';
allpics.push('uploads/pics/immo/1/_processed_/b/b/csm__479637_b72198b78c.jpg');
var pic6 = new Image();pic6.src = 'uploads/pics/immo/1/_processed_/3/a/csm__479639_d62ec88a6a.jpg';
allpics.push('uploads/pics/immo/1/_processed_/3/a/csm__479639_d62ec88a6a.jpg');
var pic7 = new Image();pic7.src = 'uploads/pics/immo/1/_processed_/5/a/csm__479641_681ac5e102.jpg';
allpics.push('uploads/pics/immo/1/_processed_/5/a/csm__479641_681ac5e102.jpg');
var pic8 = new Image();pic8.src = 'uploads/pics/immo/1/_processed_/9/8/csm__479643_a77b3eb46c.jpg';
allpics.push('uploads/pics/immo/1/_processed_/9/8/csm__479643_a77b3eb46c.jpg');
Weitere Objekte zu Ihrer Suche
Helle 2-Zimmer-Wohnung in Kleinschachwitz | Eigennutzung oder Kapitalanlage | Balkon & TG-Stellplatz
Helle 2-Zimmer-Wohnung in Kleinschachwitz | Eigennutzung oder Kapitalanlage | Balkon & TG-Stellplatz
Lager- und Produktionsflächen direkt an der S177 und S81 - unweit der Halbleiterindustrie - zum Kauf!
Lager- und Produktionsflächen direkt an der S177 und S81 - unweit der Halbleiterindustrie - zum Kauf!
Kontakt
Telefonkontakt
| Immobilienmakler | |
| Dresden: | 0351 433 130 |
| Leipzig: | 0341 600 539 90 |
| Chemnitz: | 0371 238 710 600 |
| Hausverwaltung | |
| Dresden: | 0351 213 914 60 |
| Mietersprechzeiten | |
| Montag: | 09:00 - 12:00 Uhr 13:00 - 17:00 Uhr |
| Mittwoch: | 09:00 - 12:00 Uhr |
| Donnerstag: | 09:00 - 12:00 Uhr 13:00 - 15:30 Uhr |

















































































































































































































































































































































































































































































































































































































































































