In Bahnhofsnähe | Gewerbefläche mit ca. 300 m² in Dresdner City zur Miete
Eckdaten
| Objekt-ID: | 66883 |
| Lage: | 01069 Dresden |
| Immobilienart: | Laden |
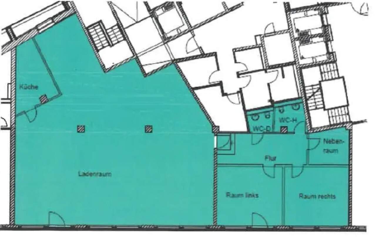
| Ladenfläche: | ca. 313 m² |
| Gesamtfläche: | ca. 313 m² |
| Baujahr: | 2004 |
| Bezugstermin: | ab sofort |
| Nettokaltmiete/m²/Monat: | 15,00 € |
| Nebenkosten/m²/Monat: | 4,00 € |
| Garagenmiete: | 100 € |
Beschreibung
Zur Vermietung steht eine ca. 313 m² große Gewerbefläche, welche sich im Erdgeschoss der Büroimmobilie "TRIGON" befindet und fußläufig vom Dresdner Hauptbahnhof entfernt ist.
Das TRIGON bietet im Untergeschoss Mietern Stellplätze zur Anmietung. Das Gebäude besticht durch dessen spitz zulaufende Gebäudestrktur und der Nähe zum Hauptbahnhog sowie einrichtungen des täglichen Bedarfs, Restaurants und Shoppingmöglichkeiten.
Der Mietzins ist abhängig von Mieterausbauwünschen und Vertragslaufzeit.
Das TRIGON bietet im Untergeschoss Mietern Stellplätze zur Anmietung. Das Gebäude besticht durch dessen spitz zulaufende Gebäudestrktur und der Nähe zum Hauptbahnhog sowie einrichtungen des täglichen Bedarfs, Restaurants und Shoppingmöglichkeiten.
Der Mietzins ist abhängig von Mieterausbauwünschen und Vertragslaufzeit.
Lage
* befindet sich in der Innenstadt von Dresden
* fußläufig vom Hauptbahnhof entfernt
* beste Verkehrsanbindung ( regionalen und überregional)
* Einkaufsmöglichkeiten fußläufig entfernt
* gastronomische Angebote im Umfeld vorhanden, sowie existiert eine hauseigene Kantine
Die Immobilie liegt im Ortsamtsbereich Altstadt zu dem die Stadtteile Innere Altstadt, Wilsdruffer Vorstadt, Seevorstadt, Pirnaische Vorstadt, Johannstadt, Friedrichstadt und Südvorstadt gehören. Das Stadtzentrum besticht neben dem historisch repräsentativen Stadtkern vor allem durch die sehr gute Anbindung zum ÖPNV, die Nähe zum Hauptbahnhof und den vielen Einkaufsmöglichkeiten sowie allen oberzentralen Funktionen der Landeshauptstadt. Damit ist Dresden-City einer der bedeutendsten Geschäftsstandorte in Ostdeutschland.
* fußläufig vom Hauptbahnhof entfernt
* beste Verkehrsanbindung ( regionalen und überregional)
* Einkaufsmöglichkeiten fußläufig entfernt
* gastronomische Angebote im Umfeld vorhanden, sowie existiert eine hauseigene Kantine
Die Immobilie liegt im Ortsamtsbereich Altstadt zu dem die Stadtteile Innere Altstadt, Wilsdruffer Vorstadt, Seevorstadt, Pirnaische Vorstadt, Johannstadt, Friedrichstadt und Südvorstadt gehören. Das Stadtzentrum besticht neben dem historisch repräsentativen Stadtkern vor allem durch die sehr gute Anbindung zum ÖPNV, die Nähe zum Hauptbahnhof und den vielen Einkaufsmöglichkeiten sowie allen oberzentralen Funktionen der Landeshauptstadt. Damit ist Dresden-City einer der bedeutendsten Geschäftsstandorte in Ostdeutschland.
Ausstattungsbeschreibung
* ebenerdiger Zugang
* große Schaufensterfront
* Werbemöglichkeiten vorhanden
* außenliegender Sonnenschutz
* Kantine im Haus
* Flexible Raumaufteilung
* CAT 5 verkabelung
* Datenverkabelung teilw. über Bodentanks
* große Schaufensterfront
* Werbemöglichkeiten vorhanden
* außenliegender Sonnenschutz
* Kantine im Haus
* Flexible Raumaufteilung
* CAT 5 verkabelung
* Datenverkabelung teilw. über Bodentanks
Sonstiges
Hinweis: Fehlende Angaben zum Energieausweis gemäß Energiesparverordnung 2014 ( EnEV ) begründen sich durch Nichtangabepflicht bei Denkmalschutzobjekten, Grundstücken, nichtbeheizbaren Immobilien oder wurden bisher trotz Aufforderung gegenüber dem Auftraggeber nicht zur Verfügung gestellt.
Haftungsausschluss: Trotz sorgfältiger Bearbeitung von Daten, Bildern und Informationen übernehmen wir keine Haftung für die Richtigkeit der Angaben, ebenso wenig für die Lieferfähigkeit des Angebotes bei Vermietung bzw. Verkauf. Bitte beachten Sie hierzu unsere allgemeinen Geschäftsbedingungen die Sie unter www.der-immo-tip.de einsehen können.
Haftungsausschluss: Trotz sorgfältiger Bearbeitung von Daten, Bildern und Informationen übernehmen wir keine Haftung für die Richtigkeit der Angaben, ebenso wenig für die Lieferfähigkeit des Angebotes bei Vermietung bzw. Verkauf. Bitte beachten Sie hierzu unsere allgemeinen Geschäftsbedingungen die Sie unter www.der-immo-tip.de einsehen können.
Energieeffizienz
| Energieausweistyp: | Verbrauchsausweis |
| Befeuerungsart: | Fernwärme |
| Stromwert: | 21.70 kWh/(m² a) |
| Wärmewert: | 71.90 kWh/(m² a) |
| Denkmalschutz: | Nein |
Kontakt
Robert Haupt
Semperstraße 1
01069 Dresden
E-Mail:haupt@der-immo-tip.de
Telefon:0351 433 13 0
Telefax:0351 433 13 18
Semperstraße 1
01069 Dresden
E-Mail:haupt@der-immo-tip.de
Telefon:0351 433 13 0
Telefax:0351 433 13 18

Objekt anfragen
while(allpics.length > 0){
allpics.pop();
}
var objnummer ="66883";var pic0 = new Image();pic0.src = 'uploads/pics/immo/1/_processed_/1/a/csm_66883-a_aussenansicht_gebaeude_f670bdbf82.jpg';
allpics.push('uploads/pics/immo/1/_processed_/1/a/csm_66883-a_aussenansicht_gebaeude_f670bdbf82.jpg');
var pic1 = new Image();pic1.src = 'uploads/pics/immo/1/_processed_/c/a/csm_66883-b1_aussenansicht_gebaeude_58c0c676cc.jpg';
allpics.push('uploads/pics/immo/1/_processed_/c/a/csm_66883-b1_aussenansicht_gebaeude_58c0c676cc.jpg');
var pic2 = new Image();pic2.src = 'uploads/pics/immo/1/_processed_/9/4/csm_66883-b2_aussenansicht_gebaeude_22b5113faa.jpg';
allpics.push('uploads/pics/immo/1/_processed_/9/4/csm_66883-b2_aussenansicht_gebaeude_22b5113faa.jpg');
var pic3 = new Image();pic3.src = 'uploads/pics/immo/1/_processed_/6/0/csm_66883-b3_aussenansicht_gebaeude_b6afdd9d7f.jpg';
allpics.push('uploads/pics/immo/1/_processed_/6/0/csm_66883-b3_aussenansicht_gebaeude_b6afdd9d7f.jpg');
var pic4 = new Image();pic4.src = 'uploads/pics/immo/1/_processed_/b/c/csm_66883-b9_grundriss_ddce12260f.jpg';
allpics.push('uploads/pics/immo/1/_processed_/b/c/csm_66883-b9_grundriss_ddce12260f.jpg');
Weitere Objekte zu Ihrer Suche
Kontakt
Telefonkontakt
| Immobilienmakler | |
| Dresden: | 0351 433 130 |
| Leipzig: | 0341 600 539 90 |
| Chemnitz: | 0371 238 710 600 |
| Rostock: | 0381 128 736 10 |
| Hausverwaltung | |
| Dresden: | 0351 213 914 60 |
| Mietersprechzeiten | |
| Montag: | 09:00 - 12:00 Uhr 13:00 - 17:00 Uhr |
| Mittwoch: | 09:00 - 12:00 Uhr |
| Donnerstag: | 09:00 - 12:00 Uhr 13:00 - 15:30 Uhr |

























