In Autobahnnähe | ca. 211 m² Bürofläche nahe Elbepark Dresden zur Miete
Eckdaten
| Objekt-ID: | 100144 |
| Lage: | 01139 Dresden |
| Immobilienart: | Bürofläche |
| Etage: | 1 |
| Lagerfläche: | ca. 28 m² |
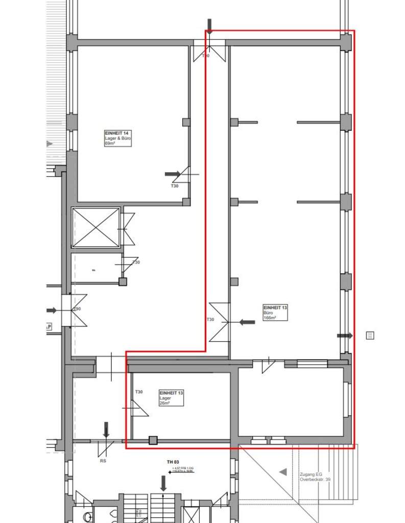
| Bürofläche: | ca. 183 m² |
| Gesamtfläche: | ca. 211 m² |
| Bezugstermin: | ab sofort |
| Nettokaltmiete/m²: | 10,50 € |
| Nebenkosten: | 949,50 € |
Beschreibung
Zur Vermietung steht eine ca. 183 m² große Bürofläche, die sich im 1. Obergeschoss einer verkehrsgünstig gelegenen Büro-/Gewerbeimmobilie befindet. Das Gebäudeensemble beherbergt neben Büroflächen, auch Lagerflächen, Handels- und Dienstleistungsflächen sowie im Außenbereich einen großen Parkplatz.
Es gibt zusätzlich in der gleichen Etage eine ca. 28 m² Lagerfläche, die aktuell als Serverraum genutzt wird. Der Kaltmietzins für diese Mietfläche beträgt 6,50 €/m².
Bei Interesse stimmen wir gern einen Besichtigungstermin ab.
Es gibt zusätzlich in der gleichen Etage eine ca. 28 m² Lagerfläche, die aktuell als Serverraum genutzt wird. Der Kaltmietzins für diese Mietfläche beträgt 6,50 €/m².
Bei Interesse stimmen wir gern einen Besichtigungstermin ab.
Lage
* befindet sich im Stadtteil Dresden Übigau
* sehr gute Anbindung an ÖPNV
* sehr gute Verkehrsanbindung (Autobahnnah, Flughafen, innerhalb weniger Autominuten im Stadtzentrum,..)
* Anmietung eines PKW-Stellplatzes möglich
* Einkaufsmöglichkeiten nur wenige Autominuten entfernt
* weitere Gewerbe im direkten Umfeld angesiedelt
* öffentliche Kantine im direkten Umfeld
* sehr gute Anbindung an ÖPNV
* sehr gute Verkehrsanbindung (Autobahnnah, Flughafen, innerhalb weniger Autominuten im Stadtzentrum,..)
* Anmietung eines PKW-Stellplatzes möglich
* Einkaufsmöglichkeiten nur wenige Autominuten entfernt
* weitere Gewerbe im direkten Umfeld angesiedelt
* öffentliche Kantine im direkten Umfeld
Ausstattungsbeschreibung
Industrieboden
teilweise Akustikelemente
teilweise LED-Beleuchtung
Brüstungskanäle für Medienversorgung
- Cat7 Datenverkabelung
- Glasfaseranschluss
- innenliegender Blendschutz
- große Fenster zur Nordseite
- dreifach verglaste Fenster
- hochwertige Einbauküche (Übernahme vom Vormieter möglich)
- Personenaufzug
- Wachschutz
- Möglichkeit zur Außenwerbung
- Ausreichend Parkplätze
Die angegebenen Nebenkosten enthalten bereits den Strom.
teilweise Akustikelemente
teilweise LED-Beleuchtung
Brüstungskanäle für Medienversorgung
- Cat7 Datenverkabelung
- Glasfaseranschluss
- innenliegender Blendschutz
- große Fenster zur Nordseite
- dreifach verglaste Fenster
- hochwertige Einbauküche (Übernahme vom Vormieter möglich)
- Personenaufzug
- Wachschutz
- Möglichkeit zur Außenwerbung
- Ausreichend Parkplätze
Die angegebenen Nebenkosten enthalten bereits den Strom.
Sonstiges
Haftungsausschluss: Trotz sorgfältiger Bearbeitung von Daten, Bildern und Informationen übernehmen wir keine Haftung für die Richtigkeit der Angaben, ebenso wenig für die Lieferfähigkeit des Angebotes bei Vermietung bzw. Verkauf. Bitte beachten Sie hierzu unsere allgemeinen Geschäftsbedingungen die Sie unter www.der-immo-tip.de einsehen können.
Kontakt

Objekt anfragen
while(allpics.length > 0){
allpics.pop();
}
var objnummer ="100144";var pic0 = new Image();pic0.src = 'uploads/pics/immo/1/_processed_/c/8/csm__484483_804b02c565.jpg';
allpics.push('uploads/pics/immo/1/_processed_/c/8/csm__484483_804b02c565.jpg');
var pic1 = new Image();pic1.src = 'uploads/pics/immo/1/_processed_/6/7/csm__484485_ba962e3016.jpg';
allpics.push('uploads/pics/immo/1/_processed_/6/7/csm__484485_ba962e3016.jpg');
var pic2 = new Image();pic2.src = 'uploads/pics/immo/1/_processed_/1/7/csm__484487_c21afa6efa.jpg';
allpics.push('uploads/pics/immo/1/_processed_/1/7/csm__484487_c21afa6efa.jpg');
var pic3 = new Image();pic3.src = 'uploads/pics/immo/1/_processed_/d/f/csm__484489_efac1dd038.jpg';
allpics.push('uploads/pics/immo/1/_processed_/d/f/csm__484489_efac1dd038.jpg');
var pic4 = new Image();pic4.src = 'uploads/pics/immo/1/_processed_/2/9/csm__484491_73e6705517.jpg';
allpics.push('uploads/pics/immo/1/_processed_/2/9/csm__484491_73e6705517.jpg');
var pic5 = new Image();pic5.src = 'uploads/pics/immo/1/_processed_/1/5/csm__484493_a4521ddfe0.jpg';
allpics.push('uploads/pics/immo/1/_processed_/1/5/csm__484493_a4521ddfe0.jpg');
var pic6 = new Image();pic6.src = 'uploads/pics/immo/1/_processed_/8/0/csm__484497_36d26f05dc.jpg';
allpics.push('uploads/pics/immo/1/_processed_/8/0/csm__484497_36d26f05dc.jpg');
var pic7 = new Image();pic7.src = 'uploads/pics/immo/1/_processed_/b/f/csm__484499_3c5bbadad1.jpg';
allpics.push('uploads/pics/immo/1/_processed_/b/f/csm__484499_3c5bbadad1.jpg');
var pic8 = new Image();pic8.src = 'uploads/pics/immo/1/_processed_/4/4/csm__484501_b207487883.jpg';
allpics.push('uploads/pics/immo/1/_processed_/4/4/csm__484501_b207487883.jpg');
var pic9 = new Image();pic9.src = 'uploads/pics/immo/1/_processed_/4/2/csm__484503_ef5c757013.jpg';
allpics.push('uploads/pics/immo/1/_processed_/4/2/csm__484503_ef5c757013.jpg');
var pic10 = new Image();pic10.src = 'uploads/pics/immo/1/_processed_/0/4/csm__484505_00bc89e9ec.jpg';
allpics.push('uploads/pics/immo/1/_processed_/0/4/csm__484505_00bc89e9ec.jpg');
var pic11 = new Image();pic11.src = 'uploads/pics/immo/1/_processed_/7/4/csm__484507_077b82b80c.jpg';
allpics.push('uploads/pics/immo/1/_processed_/7/4/csm__484507_077b82b80c.jpg');
var pic12 = new Image();pic12.src = 'uploads/pics/immo/1/_processed_/f/6/csm__484509_ad8b64c86d.jpg';
allpics.push('uploads/pics/immo/1/_processed_/f/6/csm__484509_ad8b64c86d.jpg');
Weitere Objekte zu Ihrer Suche
Helle 2-Zimmer-Wohnung in Kleinschachwitz | Eigennutzung oder Kapitalanlage | Balkon & TG-Stellplatz
Helle 2-Zimmer-Wohnung in Kleinschachwitz | Eigennutzung oder Kapitalanlage | Balkon & TG-Stellplatz
Erbbaurecht | 7.440 m² Lager-& Produktionsfläche mit Gleisanbindung und im Hafen in Dresden Friedrichstadt
Lager- und Produktionsflächen direkt an der S177 und S81 - unweit der Halbleiterindustrie - zum Kauf!
Kontakt
Telefonkontakt
| Immobilienmakler | |
| Dresden: | 0351 433 130 |
| Leipzig: | 0341 600 539 90 |
| Chemnitz: | 0371 238 710 600 |
| Hausverwaltung | |
| Dresden: | 0351 213 914 60 |
| Mietersprechzeiten | |
| Montag: | 09:00 - 12:00 Uhr 13:00 - 17:00 Uhr |
| Mittwoch: | 09:00 - 12:00 Uhr |
| Donnerstag: | 09:00 - 12:00 Uhr 13:00 - 15:30 Uhr |




















































































































































































































































































































































































































































































































































































































































































