Hier können Sie sich entfalten! Vielseitig nutzbare Hallenflächen zum Kauf in Coswig!
Eckdaten
| Objekt-ID: | 65437_13 |
| Lage: | 01640 Coswig |
| Immobilienart: | Halle |
| Grundstücksfläche: | ca. 6.500 m² |
| Lagerfläche: | ca. 343 m² |
| Gesamtfläche: | ca. 1.968 m² |
| Kaufpreis: | 650.000,00 € |
| Kaufpreis/m²: | 330,28 € |
| Käuferprovision: | 7,14 % inkl. MwSt. |
Beschreibung
Zum Verkauf steht ein (noch zu vermessendes) Gewerbegrundstück mit einer Gesamtfläche von ca. 6.500 m², welches Teil eines ehemaligen Produktionsbetriebes ist und nun separat/ einzeln zum Verkauf angeboten wird.
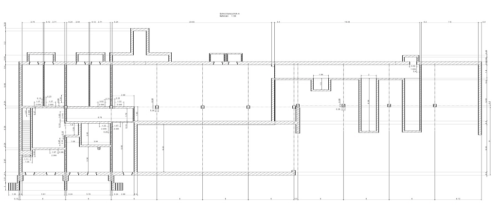
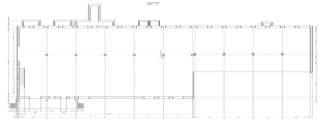
Das Grundstück ist mit einem ca. 1.986 m² großen Gebäude bebaut, welches vielfältige Nutzungen, wie wie z.B. Lager oder Produktion zulässt. Zuletzt wurde das Gebäude als Lager genutzt. Früher diente das Gebäude u.a. als Kantine samt Ballsaal.
Die Fläche teilt sich auf zwei Ebenen auf (ca. 1625 m² im EG & ca. 343 m² im KG).
Die Immobilie wurde in massiver Bauweise (Außenwände und Dach) errichtet.
Das Grundstück wird im Zuge des Verkaufs neu vermessen.
Nutzen Sie diese einmalige Gelegenheit und kontaktieren Sie uns telefonisch – wir freuen uns auf Ihre Anfrage!
Das Grundstück ist mit einem ca. 1.986 m² großen Gebäude bebaut, welches vielfältige Nutzungen, wie wie z.B. Lager oder Produktion zulässt. Zuletzt wurde das Gebäude als Lager genutzt. Früher diente das Gebäude u.a. als Kantine samt Ballsaal.
Die Fläche teilt sich auf zwei Ebenen auf (ca. 1625 m² im EG & ca. 343 m² im KG).
Die Immobilie wurde in massiver Bauweise (Außenwände und Dach) errichtet.
Das Grundstück wird im Zuge des Verkaufs neu vermessen.
Nutzen Sie diese einmalige Gelegenheit und kontaktieren Sie uns telefonisch – wir freuen uns auf Ihre Anfrage!
Lage
Dieses Gewerbeareal befindet sich in Coswig, im Ortsteil Neusörnewitz, innerhalb eines Gewerbegebietes.
Neusörnewitz befindet sich im nordwestlichen Teil des Elbtalkessels im Nordwesten des Coswiger Stadtgebiets. Der Ortsteil Neusörnewitz dehnt sich hierbei über den nordöstlichen Teil der Gemarkung Sörnewitz und den Norden der Gemarkung Brockwitz aus. Geprägt wird der Ortsteil durch ausgedehnte Industrieflächen und Gewerbegebiete und Wohnsiedlungen. Mit dem Haltepunkt Neusörnewitz besitzt der Ortsteil einen Anschluss an das Dresdner S-Bahn-Netz.
Coswig ist eine Große Kreisstadt im sächsischen Landkreis Meißen und liegt im dicht besiedelten Elbtal zwischen Meißen im Nordwesten und Radebeul bzw. Dresden im Südosten. Angrenzende Gemeinden im Landkreis Meißen sind Klipphausen, die Stadt Meißen, Moritzburg, die Stadt Radebeul und Weinböhla. Zu Coswig gehören neben der Kernstadt die Ortsteile Kötitz, Neucoswig, Brockwitz , Sörnewitz und Neusörnewitz.
Durch Coswig verläuft die Straßenbahnlinie 4 der Dresdner Verkehrsbetriebe, die sechs Haltestellen in der Stadt bedient. Die Fahrtzeit von Coswig ins Dresdner Stadtzentrum beträgt mit der Straßenbahn rund 45 Minuten.
Neusörnewitz befindet sich im nordwestlichen Teil des Elbtalkessels im Nordwesten des Coswiger Stadtgebiets. Der Ortsteil Neusörnewitz dehnt sich hierbei über den nordöstlichen Teil der Gemarkung Sörnewitz und den Norden der Gemarkung Brockwitz aus. Geprägt wird der Ortsteil durch ausgedehnte Industrieflächen und Gewerbegebiete und Wohnsiedlungen. Mit dem Haltepunkt Neusörnewitz besitzt der Ortsteil einen Anschluss an das Dresdner S-Bahn-Netz.
Coswig ist eine Große Kreisstadt im sächsischen Landkreis Meißen und liegt im dicht besiedelten Elbtal zwischen Meißen im Nordwesten und Radebeul bzw. Dresden im Südosten. Angrenzende Gemeinden im Landkreis Meißen sind Klipphausen, die Stadt Meißen, Moritzburg, die Stadt Radebeul und Weinböhla. Zu Coswig gehören neben der Kernstadt die Ortsteile Kötitz, Neucoswig, Brockwitz , Sörnewitz und Neusörnewitz.
Durch Coswig verläuft die Straßenbahnlinie 4 der Dresdner Verkehrsbetriebe, die sechs Haltestellen in der Stadt bedient. Die Fahrtzeit von Coswig ins Dresdner Stadtzentrum beträgt mit der Straßenbahn rund 45 Minuten.
Ausstattungsbeschreibung
* Außenwände massiv
* Dach: Beton
*Aktuell Kalthalle
* Anlieferung über Rampe und ebenerdig
* Rolltor
* ebenerdig befahrbar
* befestigte Außenflächen
* Dach: Beton
*Aktuell Kalthalle
* Anlieferung über Rampe und ebenerdig
* Rolltor
* ebenerdig befahrbar
* befestigte Außenflächen
Sonstiges
Hinweis: Fehlende Angaben zum Energieausweis gemäß Energiesparverordnung 2014 ( EnEV ) begründen sich durch Nichtangabepflicht bei Denkmalschutzobjekten, Grundstücken, nichtbeheizbaren Immobilien oder wurden bisher trotz Aufforderung gegenüber dem Auftraggeber nicht zur Verfügung gestellt.
Haftungsausschluss: Trotz sorgfältiger Bearbeitung von Daten, Bildern und Informationen übernehmen wir keine Haftung für die Richtigkeit der Angaben, ebenso wenig für die Lieferfähigkeit des Angebotes bei Vermietung bzw. Verkauf. Bitte beachten Sie hierzu unsere allgemeinen Geschäftsbedingungen die Sie unter www.der-immo-tip.de einsehen können.
Haftungsausschluss: Trotz sorgfältiger Bearbeitung von Daten, Bildern und Informationen übernehmen wir keine Haftung für die Richtigkeit der Angaben, ebenso wenig für die Lieferfähigkeit des Angebotes bei Vermietung bzw. Verkauf. Bitte beachten Sie hierzu unsere allgemeinen Geschäftsbedingungen die Sie unter www.der-immo-tip.de einsehen können.
Kontakt

Objekt anfragen
while(allpics.length > 0){
allpics.pop();
}
var objnummer ="65437_13";var pic0 = new Image();pic0.src = 'uploads/pics/immo/1/7ddbf11b-46f5-4abf-a719-b23e2b1a259b.jpg';
allpics.push('uploads/pics/immo/1/7ddbf11b-46f5-4abf-a719-b23e2b1a259b.jpg');
var pic1 = new Image();pic1.src = 'uploads/pics/immo/1/f2282ab8-5496-4f50-9393-246188ede30b.jpg';
allpics.push('uploads/pics/immo/1/f2282ab8-5496-4f50-9393-246188ede30b.jpg');
var pic2 = new Image();pic2.src = 'uploads/pics/immo/1/efe1e1db-0c24-4b2a-8da4-55ab95149411.jpg';
allpics.push('uploads/pics/immo/1/efe1e1db-0c24-4b2a-8da4-55ab95149411.jpg');
var pic3 = new Image();pic3.src = 'uploads/pics/immo/1/5421a04f-3749-49e1-b804-98a0ad602e1b.jpg';
allpics.push('uploads/pics/immo/1/5421a04f-3749-49e1-b804-98a0ad602e1b.jpg');
var pic4 = new Image();pic4.src = 'uploads/pics/immo/1/dd65593f-b86b-41fa-9a31-1492c7894e67.jpg';
allpics.push('uploads/pics/immo/1/dd65593f-b86b-41fa-9a31-1492c7894e67.jpg');
var pic5 = new Image();pic5.src = 'uploads/pics/immo/1/f0fd3212-5cfb-412d-877d-af99c285ace6.jpg';
allpics.push('uploads/pics/immo/1/f0fd3212-5cfb-412d-877d-af99c285ace6.jpg');
var pic6 = new Image();pic6.src = 'uploads/pics/immo/1/ffaed01f-f01a-4634-bd0f-5987c479f084.jpg';
allpics.push('uploads/pics/immo/1/ffaed01f-f01a-4634-bd0f-5987c479f084.jpg');
var pic7 = new Image();pic7.src = 'uploads/pics/immo/1/8176cd0a-a796-4ed9-86e9-d1064e407eaf.jpg';
allpics.push('uploads/pics/immo/1/8176cd0a-a796-4ed9-86e9-d1064e407eaf.jpg');
var pic8 = new Image();pic8.src = 'uploads/pics/immo/1/04685c1d-133b-4b64-82de-d60a9bb11b30.jpg';
allpics.push('uploads/pics/immo/1/04685c1d-133b-4b64-82de-d60a9bb11b30.jpg');
var pic9 = new Image();pic9.src = 'uploads/pics/immo/1/ca0aaafe-6526-411b-b874-cca98bd79ebd.jpg';
allpics.push('uploads/pics/immo/1/ca0aaafe-6526-411b-b874-cca98bd79ebd.jpg');
var pic10 = new Image();pic10.src = 'uploads/pics/immo/1/c1506baa-9ba2-4b0d-9812-5a9b3d9f03ae.jpg';
allpics.push('uploads/pics/immo/1/c1506baa-9ba2-4b0d-9812-5a9b3d9f03ae.jpg');
var pic11 = new Image();pic11.src = 'uploads/pics/immo/1/9f4be261-f11e-4eb9-b74a-ae1f95e8978c.jpg';
allpics.push('uploads/pics/immo/1/9f4be261-f11e-4eb9-b74a-ae1f95e8978c.jpg');
Weitere Objekte zu Ihrer Suche
Kontakt
Telefonkontakt
| Immobilienmakler | |
| Dresden: | 0351 433 130 |
| Leipzig: | 0341 600 539 90 |
| Chemnitz: | 0371 238 710 600 |
| Hausverwaltung | |
| Dresden: | 0351 213 914 60 |
| Mietersprechzeiten | |
| Montag: | 09:00 - 12:00 Uhr 13:00 - 17:00 Uhr |
| Mittwoch: | 09:00 - 12:00 Uhr |
| Donnerstag: | 09:00 - 12:00 Uhr 13:00 - 15:30 Uhr |
























































































































































































































































































































































































































































































