Falkenbrunnen | Rund 660 m² Bürofläche in Dresden zur Miete | Nahe Autobahn & Innenstadt
Eckdaten
| Objekt-ID: | 66259 |
| Lage: | 01187 Dresden |
| Immobilienart: | Bürofläche |
| Etage: | 1 |
| Bürofläche: | ca. 660 m² |
| Gesamtfläche: | ca. 660 m² |
| Baujahr: | 1995 |
| Bezugstermin: | nach Vereinbarung |
| Nebenkosten: | 2.970,00 € |
Beschreibung
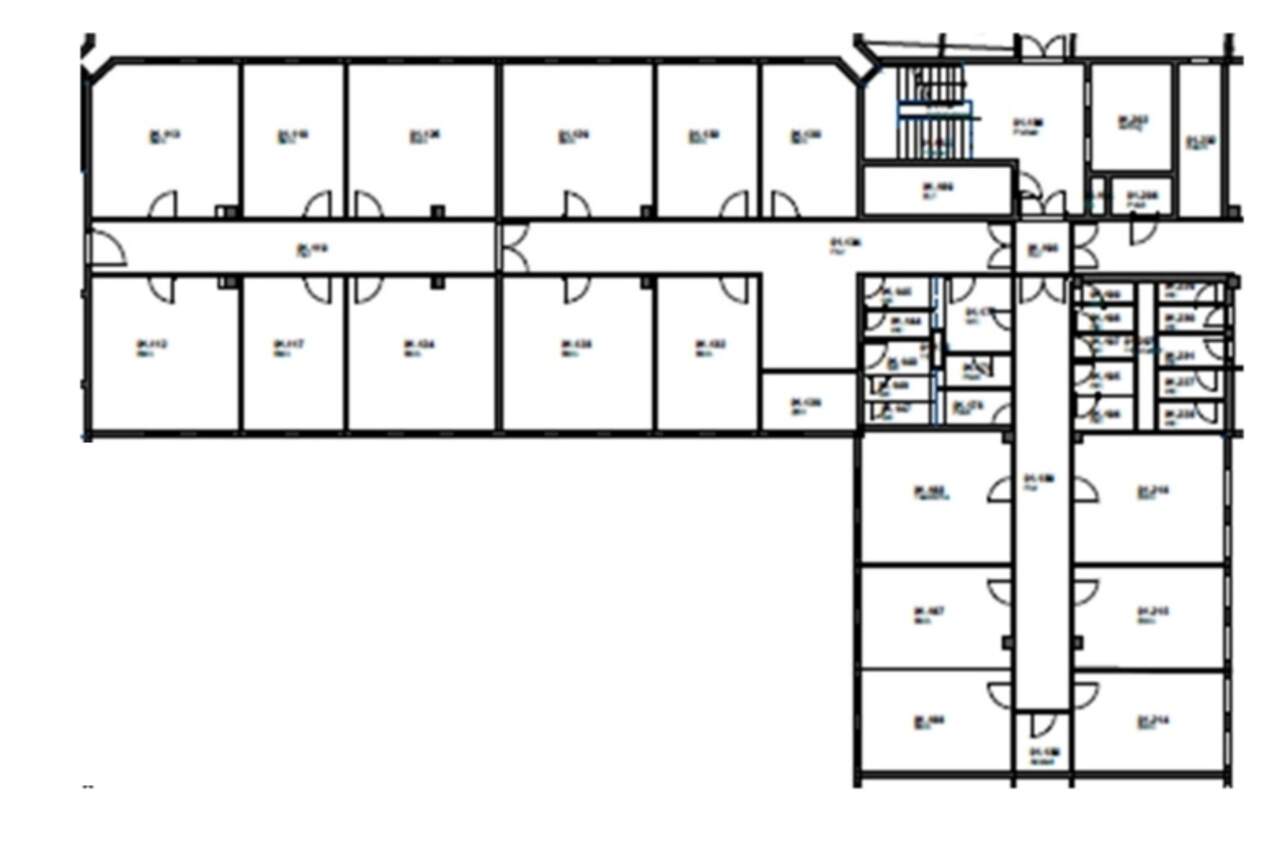
Zur Vermietung steht eine ca. 660 m² große Bürofläche, die sich im 1. Obergeschoss eines Bürokomplex befindet. Im Erdgeschoss befinden sich verschiedene Ladenflächen und in den oberen Etagen Büroflächen. Die Mietfläche setzt sich aus zwei miteinander verbundenen Bürofläche (ca. 212 m² & ca. 447 m²) zusammen.
Der Mietpreis ist abhängig von der Mietvertragslaufzeit und möglichen Umbaumaßnahmen.
Es befinden sich auf dem Grundstück ausreichend Stellplätze zur Vermietung.
Namhafte Mieter in der Liegenschaft sind u.a.:OTIS GmbH & Co. KG, 3B Dienstleistungs-GmbH, TU-Dresden,Universitätsklinikum Carl Gustav Carus Dresden, Dreßler Bau AG,Deutsche Bahn AG.
Bei Interesse stimmen wir gern einen Besichtigungstermin ab.
Der Mietpreis ist abhängig von der Mietvertragslaufzeit und möglichen Umbaumaßnahmen.
Es befinden sich auf dem Grundstück ausreichend Stellplätze zur Vermietung.
Namhafte Mieter in der Liegenschaft sind u.a.:OTIS GmbH & Co. KG, 3B Dienstleistungs-GmbH, TU-Dresden,Universitätsklinikum Carl Gustav Carus Dresden, Dreßler Bau AG,Deutsche Bahn AG.
Bei Interesse stimmen wir gern einen Besichtigungstermin ab.
Lage
Die Immobilie befindet sich in Dresden Plauen.
Die Autonbahn A 17 ist in wenigen Minuten über gut ausgebaute Zubringer erreichbar. Die Anbindung an Linien des öffentlichen Personenverkehrs ist direkt am Objekt und der Hauptbahnhof in kurzer Zeit ereichbar.
Im Umfeld der Immobilie befinden sich ein Hotel, Einzelhandel des täglichen Bedarfs und gastronomische Nutzungen.
Zum Ortsamtsbereich Plauen gehören die Stadtteile Südvorstadt, Räcknitz, Zschertnitz, Strehlen Südwest, Kleinpestitz, Mockritz, Kaitz, Gostritz, Coschütz, Gittersee sowie Plauen. Die südlichen Stadtteile Dresdens nehmen das Gebiet zwischen dem Plauenschen Grund, dem Kaitzbachtal und der Ortsgrenze von Leubnitz-Neuostra ein. Die Höhenlage des Stadtteils, die sehr gute Anbindung zu den öffentlichen Verkehrsmitteln, die Nähe zum Zentrum und zur Universität sind weitere nennenswerte Vorteile des Gewerbestandortes Plauen. Die Autobahnauffahrt der A17 (Anschlussstelle Dresden Südvorstadt) mit Anbindung an die A4 und A13 erreichen Sie ebenfalls innerhalb kürzester Zeit.
Die Autonbahn A 17 ist in wenigen Minuten über gut ausgebaute Zubringer erreichbar. Die Anbindung an Linien des öffentlichen Personenverkehrs ist direkt am Objekt und der Hauptbahnhof in kurzer Zeit ereichbar.
Im Umfeld der Immobilie befinden sich ein Hotel, Einzelhandel des täglichen Bedarfs und gastronomische Nutzungen.
Zum Ortsamtsbereich Plauen gehören die Stadtteile Südvorstadt, Räcknitz, Zschertnitz, Strehlen Südwest, Kleinpestitz, Mockritz, Kaitz, Gostritz, Coschütz, Gittersee sowie Plauen. Die südlichen Stadtteile Dresdens nehmen das Gebiet zwischen dem Plauenschen Grund, dem Kaitzbachtal und der Ortsgrenze von Leubnitz-Neuostra ein. Die Höhenlage des Stadtteils, die sehr gute Anbindung zu den öffentlichen Verkehrsmitteln, die Nähe zum Zentrum und zur Universität sind weitere nennenswerte Vorteile des Gewerbestandortes Plauen. Die Autobahnauffahrt der A17 (Anschlussstelle Dresden Südvorstadt) mit Anbindung an die A4 und A13 erreichen Sie ebenfalls innerhalb kürzester Zeit.
Ausstattungsbeschreibung
* Aufzug
* flexible Raumaufteilung
* hauseigene Tiefgarage und Außenstellplätze vorhanden
* helles Raumklima
* Hohlraumboden
* außenliegender Sonnenschutz* Bodentanks
* flexible Aufteilung im Raster von 1,5m
* in jedem der fünf Eingänge befinden sich zwei Aufzüge
* flexible Raumaufteilung
* hauseigene Tiefgarage und Außenstellplätze vorhanden
* helles Raumklima
* Hohlraumboden
* außenliegender Sonnenschutz* Bodentanks
* flexible Aufteilung im Raster von 1,5m
* in jedem der fünf Eingänge befinden sich zwei Aufzüge
Sonstiges
Hinweis: Fehlende Angaben zum Energieausweis gemäß Energiesparverordnung 2014 ( EnEV ) begründen sich durch Nichtangabepflicht bei Denkmalschutzobjekten, Grundstücken, nichtbeheizbaren Immobilien oder wurden bisher trotz Aufforderung gegenüber dem Auftraggeber nicht zur Verfügung gestellt.
Haftungsausschluss: Trotz sorgfältiger Bearbeitung von Daten, Bildern und Informationen übernehmen wir keine Haftung für die Richtigkeit der Angaben, ebenso wenig für die Lieferfähigkeit des Angebotes bei Vermietung bzw. Verkauf. Bitte beachten Sie hierzu unsere allgemeinen Geschäftsbedingungen die Sie unter www.der-immo-tip.de einsehen können.
Haftungsausschluss: Trotz sorgfältiger Bearbeitung von Daten, Bildern und Informationen übernehmen wir keine Haftung für die Richtigkeit der Angaben, ebenso wenig für die Lieferfähigkeit des Angebotes bei Vermietung bzw. Verkauf. Bitte beachten Sie hierzu unsere allgemeinen Geschäftsbedingungen die Sie unter www.der-immo-tip.de einsehen können.
Energieeffizienz
| Energieausweistyp: | Verbrauchsausweis |
| Denkmalschutz: | Nein |
Kontakt

Objekt anfragen
while(allpics.length > 0){
allpics.pop();
}
var objnummer ="66259";var pic0 = new Image();pic0.src = 'uploads/pics/immo/1/_processed_/8/2/csm_fe9a334a-8671-4641-9eb6-c3dc3cf6e1b5_5bf7ad7c24.jpg';
allpics.push('uploads/pics/immo/1/_processed_/8/2/csm_fe9a334a-8671-4641-9eb6-c3dc3cf6e1b5_5bf7ad7c24.jpg');
var pic1 = new Image();pic1.src = 'uploads/pics/immo/1/_processed_/c/2/csm_17b3b4b6-9cd6-4f65-91f6-490e09424578_6ba10c814b.jpg';
allpics.push('uploads/pics/immo/1/_processed_/c/2/csm_17b3b4b6-9cd6-4f65-91f6-490e09424578_6ba10c814b.jpg');
var pic2 = new Image();pic2.src = 'uploads/pics/immo/1/_processed_/6/b/csm_724f537a-052d-47e5-8c76-e702cb54f71d_68f729d659.jpg';
allpics.push('uploads/pics/immo/1/_processed_/6/b/csm_724f537a-052d-47e5-8c76-e702cb54f71d_68f729d659.jpg');
var pic3 = new Image();pic3.src = 'uploads/pics/immo/1/_processed_/a/e/csm_07b75b00-2a9f-4037-ab42-5d4fd4be89d4_d3f2b4df4e.jpg';
allpics.push('uploads/pics/immo/1/_processed_/a/e/csm_07b75b00-2a9f-4037-ab42-5d4fd4be89d4_d3f2b4df4e.jpg');
var pic4 = new Image();pic4.src = 'uploads/pics/immo/1/_processed_/f/6/csm_1510b997-37d0-4920-a670-3f001a5e3a54_b06a0c281a.jpg';
allpics.push('uploads/pics/immo/1/_processed_/f/6/csm_1510b997-37d0-4920-a670-3f001a5e3a54_b06a0c281a.jpg');
var pic5 = new Image();pic5.src = 'uploads/pics/immo/1/_processed_/3/b/csm_0a781545-5d76-43ea-915e-7277cd9ba485_aa0fb5fafd.jpg';
allpics.push('uploads/pics/immo/1/_processed_/3/b/csm_0a781545-5d76-43ea-915e-7277cd9ba485_aa0fb5fafd.jpg');
var pic6 = new Image();pic6.src = 'uploads/pics/immo/1/_processed_/0/4/csm_63e465d5-4bff-48dd-822f-ae79d9416e1f_b81ff37249.jpg';
allpics.push('uploads/pics/immo/1/_processed_/0/4/csm_63e465d5-4bff-48dd-822f-ae79d9416e1f_b81ff37249.jpg');
var pic7 = new Image();pic7.src = 'uploads/pics/immo/1/_processed_/a/0/csm_071629a3-67bb-46bc-be49-d0d4ad87b900_cb27be1fdd.jpg';
allpics.push('uploads/pics/immo/1/_processed_/a/0/csm_071629a3-67bb-46bc-be49-d0d4ad87b900_cb27be1fdd.jpg');
var pic8 = new Image();pic8.src = 'uploads/pics/immo/1/_processed_/4/2/csm_7e46046e-6bd7-4ad7-95ff-549e044438fb_c5932783ce.jpg';
allpics.push('uploads/pics/immo/1/_processed_/4/2/csm_7e46046e-6bd7-4ad7-95ff-549e044438fb_c5932783ce.jpg');
var pic9 = new Image();pic9.src = 'uploads/pics/immo/1/_processed_/d/b/csm_9bfc2277-dbcb-4a13-9899-a1b8fc783f5b_b0889e716f.jpg';
allpics.push('uploads/pics/immo/1/_processed_/d/b/csm_9bfc2277-dbcb-4a13-9899-a1b8fc783f5b_b0889e716f.jpg');
var pic10 = new Image();pic10.src = 'uploads/pics/immo/1/_processed_/9/e/csm_5ed90557-aa80-4e87-a995-5ff00d00e82e_5fd5032e2d.jpg';
allpics.push('uploads/pics/immo/1/_processed_/9/e/csm_5ed90557-aa80-4e87-a995-5ff00d00e82e_5fd5032e2d.jpg');
var pic11 = new Image();pic11.src = 'uploads/pics/immo/1/_processed_/9/2/csm_95bf163b-925a-4053-9cfd-511ae4730c94_b6aeb368c5.jpg';
allpics.push('uploads/pics/immo/1/_processed_/9/2/csm_95bf163b-925a-4053-9cfd-511ae4730c94_b6aeb368c5.jpg');
var pic12 = new Image();pic12.src = 'uploads/pics/immo/1/_processed_/8/5/csm_30c16060-ba3d-4559-adfb-a73e37eb6217_d80d416e5e.jpg';
allpics.push('uploads/pics/immo/1/_processed_/8/5/csm_30c16060-ba3d-4559-adfb-a73e37eb6217_d80d416e5e.jpg');
var pic13 = new Image();pic13.src = 'uploads/pics/immo/1/_processed_/8/4/csm_eb1e945a-ab86-4519-a9a7-8e27066aa228_4a3d3f2877.jpg';
allpics.push('uploads/pics/immo/1/_processed_/8/4/csm_eb1e945a-ab86-4519-a9a7-8e27066aa228_4a3d3f2877.jpg');
var pic14 = new Image();pic14.src = 'uploads/pics/immo/1/_processed_/f/e/csm_e22db496-4282-47e0-9d0a-b35b9671a809_d242fb0579.jpg';
allpics.push('uploads/pics/immo/1/_processed_/f/e/csm_e22db496-4282-47e0-9d0a-b35b9671a809_d242fb0579.jpg');
var pic15 = new Image();pic15.src = 'uploads/pics/immo/1/_processed_/b/c/csm_b7c73de7-e01f-46f0-850c-505a3f2f6a15_1266d566b3.jpg';
allpics.push('uploads/pics/immo/1/_processed_/b/c/csm_b7c73de7-e01f-46f0-850c-505a3f2f6a15_1266d566b3.jpg');
var pic16 = new Image();pic16.src = 'uploads/pics/immo/1/_processed_/b/3/csm_22d4b093-9306-47a8-a609-3f245eb706ce_ff8b9a4ad0.jpg';
allpics.push('uploads/pics/immo/1/_processed_/b/3/csm_22d4b093-9306-47a8-a609-3f245eb706ce_ff8b9a4ad0.jpg');
var pic17 = new Image();pic17.src = 'uploads/pics/immo/1/_processed_/a/f/csm_6b93d2f3-6375-48de-8101-a16e91017b3d_46b7fa987f.jpg';
allpics.push('uploads/pics/immo/1/_processed_/a/f/csm_6b93d2f3-6375-48de-8101-a16e91017b3d_46b7fa987f.jpg');
Weitere Objekte zu Ihrer Suche
Kontakt
Telefonkontakt
| Immobilienmakler | |
| Dresden: | 0351 433 130 |
| Leipzig: | 0341 600 539 90 |
| Chemnitz: | 0371 238 710 600 |
| Hausverwaltung | |
| Dresden: | 0351 213 914 60 |
| Mietersprechzeiten | |
| Montag: | 09:00 - 12:00 Uhr 13:00 - 17:00 Uhr |
| Mittwoch: | 09:00 - 12:00 Uhr |
| Donnerstag: | 09:00 - 12:00 Uhr 13:00 - 15:30 Uhr |





























































































































































































































































































































































































































































































































































































































































































