Exklusive Gewerbefläche in bester Lage | Direkt an frequentierter Hauptstraße
Eckdaten
| Objekt-ID: | 17969_04 |
| Lage: | 01099 Dresden |
| Immobilienart: | Bürofläche |
| Zimmer: | 2 |
| Etage: | 1 |
| Lagerfläche: | ca. 104 m² |
| Bürofläche: | ca. 601 m² |
| Gesamtfläche: | ca. 734 m² |
| Baujahr: | 1910 |
| Kaufpreis: | 2.000.000,00 € |
| Kaufpreis/m²: | 2.724,80 € |
| Mieteinnahmen (Soll): | 150.000,00 € |
Beschreibung
Zum Verkauf steht eine ca. 734 m² große Gewerbefläche, die sich innerhalb eines Wohn- und Geschäftshauses (Baujahr 1910) befindet. Ab Juni 2023 steht die Fläche zur freien Nutzung (Eigennutz oder Vermietung).
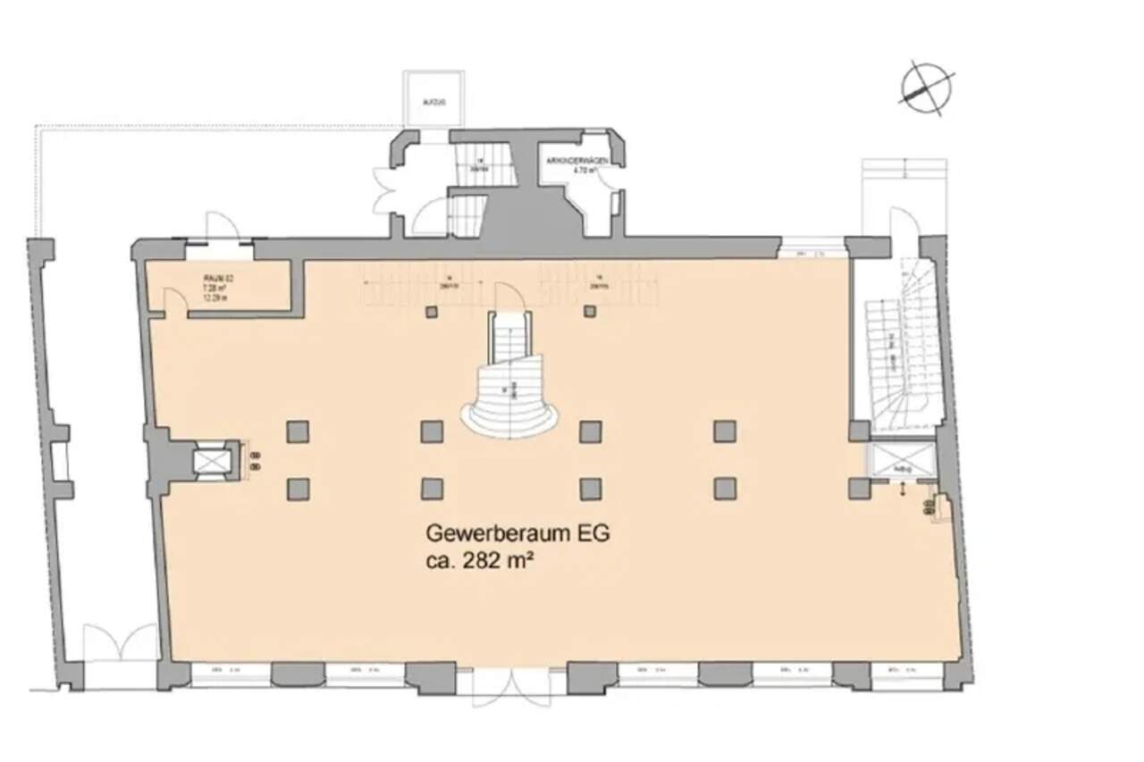
Die Gewerbefläche von ca. 601 m² erstreckt sich über das Erdgeschoss (ca. 282 m²) und das Obergeschoss (ca. 319 m²) und besticht durch seinen großzügigen Treppenaufgang und das helle Raumklima.
Ein Aufzug und ein Keller ist vorhanden, ebenso Nebenräume und ein Hofzugang für Warenanlieferung mit kleineren LKW´s.
Bei Interesse an diesem Immobilienangebot erhalten Sie gern weiterführende Informationen.
Die Gewerbefläche von ca. 601 m² erstreckt sich über das Erdgeschoss (ca. 282 m²) und das Obergeschoss (ca. 319 m²) und besticht durch seinen großzügigen Treppenaufgang und das helle Raumklima.
Ein Aufzug und ein Keller ist vorhanden, ebenso Nebenräume und ein Hofzugang für Warenanlieferung mit kleineren LKW´s.
Bei Interesse an diesem Immobilienangebot erhalten Sie gern weiterführende Informationen.
Lage
* im Stadtteil Dresden Neustadt
* direkt an sehr frequentierter Ausfallstraße
* verschiedenste Einzelhändler, kleine Café, Restaurants am Standort
* sehr gute Sichtbarkeit
* verkehrsgünstig sehr gut gelegen
* sehr gute Anbindung an ÖPNV
Die Immobilie liegt im Ortsamtsbereich Neustadt zu dem die Stadtteile Innere Neustadt, die Leipziger Vorstadt mit dem Hechtviertel, die Äußere Neustadt, bestehend aus Antonstadt und Radeberger Vorstadt sowie die Albertstadt gehören. Im östlichen Teil der Neustadt liegt das "Preußische Viertel", welches auf Grund seiner Villenbebauung zu einem repräsentativen Bürostandort gehört. Dieser Stadtteil überzeugt unter anderem durch die geringe Entfernung zum Stadtzentrum und der Nähe zur Bundesautobahn A4.
* direkt an sehr frequentierter Ausfallstraße
* verschiedenste Einzelhändler, kleine Café, Restaurants am Standort
* sehr gute Sichtbarkeit
* verkehrsgünstig sehr gut gelegen
* sehr gute Anbindung an ÖPNV
Die Immobilie liegt im Ortsamtsbereich Neustadt zu dem die Stadtteile Innere Neustadt, die Leipziger Vorstadt mit dem Hechtviertel, die Äußere Neustadt, bestehend aus Antonstadt und Radeberger Vorstadt sowie die Albertstadt gehören. Im östlichen Teil der Neustadt liegt das "Preußische Viertel", welches auf Grund seiner Villenbebauung zu einem repräsentativen Bürostandort gehört. Dieser Stadtteil überzeugt unter anderem durch die geringe Entfernung zum Stadtzentrum und der Nähe zur Bundesautobahn A4.
Ausstattungsbeschreibung
* große Schaufensterfront (ca. 18 Meter und 4 Meter Höhe)
* helles Raumklima
* hochwertige Ausstattung mit Parkett
* hohen Decken
* Jugenstil-Wendeltreppe
* erstreckt sich über drei Ebenen (Erdgeschoss ,Obergeschoss, Keller)
* Parkettboden
* Aufzug
* Keller
* Hofzugang für Warenlieferung
* Werbemöglichkeiten vorhanden
* helles Raumklima
* hochwertige Ausstattung mit Parkett
* hohen Decken
* Jugenstil-Wendeltreppe
* erstreckt sich über drei Ebenen (Erdgeschoss ,Obergeschoss, Keller)
* Parkettboden
* Aufzug
* Keller
* Hofzugang für Warenlieferung
* Werbemöglichkeiten vorhanden
Sonstiges
Hinweis: Fehlende Angaben zum Energieausweis gemäß Energiesparverordnung 2014 ( EnEV ) begründen sich durch Nichtangabepflicht bei Denkmalschutzobjekten, Grundstücken, nichtbeheizbaren Immobilien oder wurden bisher trotz Aufforderung gegenüber dem Auftraggeber nicht zur Verfügung gestellt.
Haftungsausschluss: Trotz sorgfältiger Bearbeitung von Daten, Bildern und Informationen übernehmen wir keine Haftung für die Richtigkeit der Angaben, ebenso wenig für die Lieferfähigkeit des Angebotes bei Vermietung bzw. Verkauf. Bitte beachten Sie hierzu unsere allgemeinen Geschäftsbedingungen die Sie unter www.der-immo-tip.de einsehen können.
Haftungsausschluss: Trotz sorgfältiger Bearbeitung von Daten, Bildern und Informationen übernehmen wir keine Haftung für die Richtigkeit der Angaben, ebenso wenig für die Lieferfähigkeit des Angebotes bei Vermietung bzw. Verkauf. Bitte beachten Sie hierzu unsere allgemeinen Geschäftsbedingungen die Sie unter www.der-immo-tip.de einsehen können.
Kontakt

Objekt anfragen
while(allpics.length > 0){
allpics.pop();
}
var objnummer ="17969_04";var pic0 = new Image();pic0.src = 'uploads/pics/immo/1/_processed_/9/3/csm__485109_4db66540fe.jpg';
allpics.push('uploads/pics/immo/1/_processed_/9/3/csm__485109_4db66540fe.jpg');
var pic1 = new Image();pic1.src = 'uploads/pics/immo/1/_processed_/e/b/csm__485113_ab5cfa0915.jpg';
allpics.push('uploads/pics/immo/1/_processed_/e/b/csm__485113_ab5cfa0915.jpg');
var pic2 = new Image();pic2.src = 'uploads/pics/immo/1/_processed_/e/3/csm__485115_2302520450.jpg';
allpics.push('uploads/pics/immo/1/_processed_/e/3/csm__485115_2302520450.jpg');
var pic3 = new Image();pic3.src = 'uploads/pics/immo/1/_processed_/a/d/csm__485117_ad649dc936.jpg';
allpics.push('uploads/pics/immo/1/_processed_/a/d/csm__485117_ad649dc936.jpg');
var pic4 = new Image();pic4.src = 'uploads/pics/immo/1/_processed_/c/7/csm__485119_857870bf76.jpg';
allpics.push('uploads/pics/immo/1/_processed_/c/7/csm__485119_857870bf76.jpg');
var pic5 = new Image();pic5.src = 'uploads/pics/immo/1/_processed_/2/d/csm__485121_714d6cd366.jpg';
allpics.push('uploads/pics/immo/1/_processed_/2/d/csm__485121_714d6cd366.jpg');
var pic6 = new Image();pic6.src = 'uploads/pics/immo/1/_processed_/5/f/csm__485123_3edb90390e.jpg';
allpics.push('uploads/pics/immo/1/_processed_/5/f/csm__485123_3edb90390e.jpg');
Weitere Objekte zu Ihrer Suche
Erbbaurecht | 7.440 m² Lager-& Produktionsfläche mit Gleisanbindung und im Hafen in Dresden Friedrichstadt
Helle 2-Zimmer-Wohnung in Kleinschachwitz | Eigennutzung oder Kapitalanlage | Balkon & TG-Stellplatz
Lager- und Produktionsflächen direkt an der S177 und S81 - unweit der Halbleiterindustrie - zum Kauf!
Helle 2-Zimmer-Wohnung in Kleinschachwitz | Eigennutzung oder Kapitalanlage | Balkon & TG-Stellplatz
Kontakt
Telefonkontakt
| Immobilienmakler | |
| Dresden: | 0351 433 130 |
| Leipzig: | 0341 600 539 90 |
| Chemnitz: | 0371 238 710 600 |
| Hausverwaltung | |
| Dresden: | 0351 213 914 60 |
| Mietersprechzeiten | |
| Montag: | 09:00 - 12:00 Uhr 13:00 - 17:00 Uhr |
| Mittwoch: | 09:00 - 12:00 Uhr |
| Donnerstag: | 09:00 - 12:00 Uhr 13:00 - 15:30 Uhr |














































































































































































































































































































































































































































































































































































































































































