Erstbezug | Moderner Büroneubau | ca. 87 m² Bürofläche zur Miete!
Eckdaten
| Objekt-ID: | 63626_05 |
| Lage: | 01277 Dresden |
| Immobilienart: | Bürofläche |
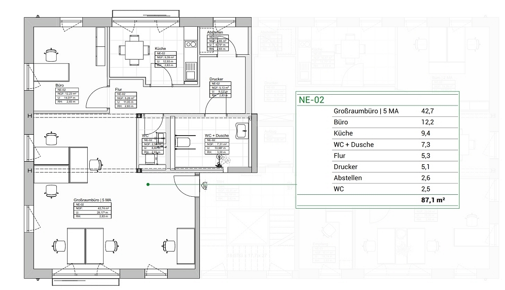
| Bürofläche: | ca. 87 m² |
| Gesamtfläche: | ca. 87 m² |
| Baujahr: | 2025 |
| Bezugstermin: | in Abstimmung |
| Nettokaltmiete/m²/Monat: | 16,00 € |
| Nebenkosten/m²/Monat: | 174,00 € |
Beschreibung
Zur Vermietung steht ein modern ausgestattetes Büro mit einer Fläche von ca. 87 m² im 1. Obergeschoss eines Büroneubaus. Das Gebäude überzeugt durch einen nachhaltigen Baustandard (DGNB Gold / EG40) und äußerst niedrige Energiekosten. Große, bodentiefe Fenster sorgen für helle, freundliche Arbeitsräume.
Die Ausstattung lässt keine Wünsche offen: Die Fläche ist barrierefrei gestaltet und verfügt über einen Aufzug. Eine Einbauküche kann auf Wunsch realisiert werden. Für ein angenehmes Arbeitsklima sorgen die passive Kühlung im Sommer sowie die effiziente Fußbodenheizung, beide über Erdwärme gespeist und unterstützt durch eine Photovoltaik-Anlage. Die Räume sind bereits mit Bodentanks für die Elektroinstallation und moderner Beleuchtung vorinstalliert.
Das Büro verfügt über ein barrierefreies Badezimmer mit Dusche und WC. Für entspannte Pausen oder kurze Erholung steht zur gemeinschaftlichen Nutzung ein großzügiger Garten zur Verfügung. Für Fahrradfahrer gibt es einen überdachten und abschließbaren Fahrradunterstand. Direkt am Haus befindet sich außerdem ein Car-Sharing-Angebot; zudem sind kostenlose Parkplätze im öffentlichen Raum vorhanden.
Bei Interesse stellen wir Ihnen gern weiterführende Unterlagen zur Verfügung.
Die Ausstattung lässt keine Wünsche offen: Die Fläche ist barrierefrei gestaltet und verfügt über einen Aufzug. Eine Einbauküche kann auf Wunsch realisiert werden. Für ein angenehmes Arbeitsklima sorgen die passive Kühlung im Sommer sowie die effiziente Fußbodenheizung, beide über Erdwärme gespeist und unterstützt durch eine Photovoltaik-Anlage. Die Räume sind bereits mit Bodentanks für die Elektroinstallation und moderner Beleuchtung vorinstalliert.
Das Büro verfügt über ein barrierefreies Badezimmer mit Dusche und WC. Für entspannte Pausen oder kurze Erholung steht zur gemeinschaftlichen Nutzung ein großzügiger Garten zur Verfügung. Für Fahrradfahrer gibt es einen überdachten und abschließbaren Fahrradunterstand. Direkt am Haus befindet sich außerdem ein Car-Sharing-Angebot; zudem sind kostenlose Parkplätze im öffentlichen Raum vorhanden.
Bei Interesse stellen wir Ihnen gern weiterführende Unterlagen zur Verfügung.
Lage
Die Immobilie befindet sich in Dresden Striesen, nahe des Altenberger Platzes.
Der Standort überzeugt durch seine zentrale Lage und eine sehr gute Verkehrsanbindung. Haltestellen des öffentlichen Nahverkehrs sind in wenigen Gehminuten erreichbar – mit dem Auto benötigt man nur wenige Minuten ins Dresdner Stadtzentrum. Zahlreiche Einkaufsmöglichkeiten, wie beispielsweise am Altenberger Platz oder im nahegelegenen Seidnitz Center, befinden sich im direkten Umfeld und bieten eine komfortable Nahversorgung.
Der Stadtteil kann mit seinem unverwechselbaren Stadtbild als eines der attraktivsten Viertel Dresdens bezeichnet werden. Man lebt in unmittelbarer Nähe zur Elbe und dem "Großen Garten", der schönsten und größten Parkanlage Dresdens. Neben Blasewitz, Loschwitz und dem Weißen Hirsch besitzt Striesen die meisten und wohl auch qualitativ wertvollsten und besterhaltensten Stadtvillen aus der Gründerzeit und dem Jugendstil. Alter Baumbestand und üppige Alleen sorgen für eine reiche Durchgrünung des Stadtteils.
Der Standort überzeugt durch seine zentrale Lage und eine sehr gute Verkehrsanbindung. Haltestellen des öffentlichen Nahverkehrs sind in wenigen Gehminuten erreichbar – mit dem Auto benötigt man nur wenige Minuten ins Dresdner Stadtzentrum. Zahlreiche Einkaufsmöglichkeiten, wie beispielsweise am Altenberger Platz oder im nahegelegenen Seidnitz Center, befinden sich im direkten Umfeld und bieten eine komfortable Nahversorgung.
Der Stadtteil kann mit seinem unverwechselbaren Stadtbild als eines der attraktivsten Viertel Dresdens bezeichnet werden. Man lebt in unmittelbarer Nähe zur Elbe und dem "Großen Garten", der schönsten und größten Parkanlage Dresdens. Neben Blasewitz, Loschwitz und dem Weißen Hirsch besitzt Striesen die meisten und wohl auch qualitativ wertvollsten und besterhaltensten Stadtvillen aus der Gründerzeit und dem Jugendstil. Alter Baumbestand und üppige Alleen sorgen für eine reiche Durchgrünung des Stadtteils.
Ausstattungsbeschreibung
* Barrierefreiheit
* Einbauküche möglich
* Aufzug
* Zertifizierung DGNB (gold) / EG40 Standard (geringe Energiekosten)
* Passive Kühlung im Sommer (Erdwärme) mit Nutzung PV
* Fußbodenheizung mit Erdwärme
* Vorinstallation Elektro mit Bodentanks und Beleuchtungen
* Barrierefreie Bäder mit Dusche & WC
* Gemeinsame Gartennutzung
* Fahrradunterstand überdacht und abschließbar
* Car-Sharing direkt am Haus
* kostenlose Parkplätze im öffentlichen Raum
* Einbauküche möglich
* Aufzug
* Zertifizierung DGNB (gold) / EG40 Standard (geringe Energiekosten)
* Passive Kühlung im Sommer (Erdwärme) mit Nutzung PV
* Fußbodenheizung mit Erdwärme
* Vorinstallation Elektro mit Bodentanks und Beleuchtungen
* Barrierefreie Bäder mit Dusche & WC
* Gemeinsame Gartennutzung
* Fahrradunterstand überdacht und abschließbar
* Car-Sharing direkt am Haus
* kostenlose Parkplätze im öffentlichen Raum
Sonstiges
Haftungsausschluss: Trotz sorgfältiger Bearbeitung von Daten, Bildern und Informationen übernehmen wir keine Haftung für die Richtigkeit der Angaben, ebenso wenig für die Lieferfähigkeit des Angebotes bei Vermietung bzw. Verkauf. Bitte beachten Sie hierzu unsere allgemeinen Geschäftsbedingungen die Sie unter www.der-immo-tip.de einsehen können.
Energieeffizienz
| Energieausweistyp: | Bedarfsausweis |
| Denkmalschutz: | Nein |
Kontakt

Objekt anfragen
while(allpics.length > 0){
allpics.pop();
}
var objnummer ="63626_05";var pic0 = new Image();pic0.src = 'uploads/pics/immo/1/_490737.jpg';
allpics.push('uploads/pics/immo/1/_490737.jpg');
var pic1 = new Image();pic1.src = 'uploads/pics/immo/1/_490739.jpg';
allpics.push('uploads/pics/immo/1/_490739.jpg');
var pic2 = new Image();pic2.src = 'uploads/pics/immo/1/_490741.jpg';
allpics.push('uploads/pics/immo/1/_490741.jpg');
var pic3 = new Image();pic3.src = 'uploads/pics/immo/1/_490743.jpg';
allpics.push('uploads/pics/immo/1/_490743.jpg');
var pic4 = new Image();pic4.src = 'uploads/pics/immo/1/_490749.jpg';
allpics.push('uploads/pics/immo/1/_490749.jpg');
var pic5 = new Image();pic5.src = 'uploads/pics/immo/1/_490751.jpg';
allpics.push('uploads/pics/immo/1/_490751.jpg');
Weitere Objekte zu Ihrer Suche
Zwei Sanierungsobjekte in ruhiger Lage von Dresden zum Kauf | Denkmalgeschützter Bauernhof + ehem. Gasthof
Erbbaurecht | 7.440 m² Lager-& Produktionsfläche mit Gleisanbindung und im Hafen in Dresden Friedrichstadt
Helle 2-Zimmer-Wohnung in Kleinschachwitz | Eigennutzung oder Kapitalanlage | Balkon & TG-Stellplatz
Helle 2-Zimmer-Wohnung in Kleinschachwitz | Eigennutzung oder Kapitalanlage | Balkon & TG-Stellplatz
Zur Vermietung oder Selbstnutzung - Immobilienpaket nahe Dresden | 14 Gewerbeeinheiten & 21 TG Stellplätze in Coswig zum Kauf
Lager- und Produktionsflächen direkt an der S177 und S81 - unweit der Halbleiterindustrie - zum Kauf!
Zur Vermietung oder Selbstnutzung - Immobilienpaket nahe Dresden | 14 Gewerbeeinheiten & 21 TG Stellplätze in Coswig zum Kauf
Kontakt
Telefonkontakt
| Immobilienmakler | |
| Dresden: | 0351 433 130 |
| Leipzig: | 0341 600 539 90 |
| Chemnitz: | 0371 238 710 600 |
| Hausverwaltung | |
| Dresden: | 0351 213 914 60 |
| Mietersprechzeiten | |
| Montag: | 09:00 - 12:00 Uhr 13:00 - 17:00 Uhr |
| Mittwoch: | 09:00 - 12:00 Uhr |
| Donnerstag: | 09:00 - 12:00 Uhr 13:00 - 15:30 Uhr |























































































































































































































































































































































































































































































































































































































































































