Entwicklungsobjekt im Gewerbepark, Einkaufszentrum in Berliner Vorort kaufen
Eckdaten
| Objekt-ID: | 59150 |
| Lage: | 15537 Gosen-Neu Zittau |
| Immobilienart: | Bürohaus |
| Grundstücksfläche: | ca. 3.327 m² |
| Nutzfläche: | ca. 2.966 m² |
| Gesamtfläche: | ca. 2.966 m² |
| Baujahr: | 2000 |
| Kaufpreis: | 1.890.000,00 € |
| Kaufpreis/m²: | 637,22 € |
| Käuferprovision: | 5,95 % inkl. MwSt. |
| Faktor: | 24.23 |
| Mieteinnahmen (Ist): | 78.000,00 € |
| Mieteinnahmen (Soll): | 288.000,00 € |
Beschreibung
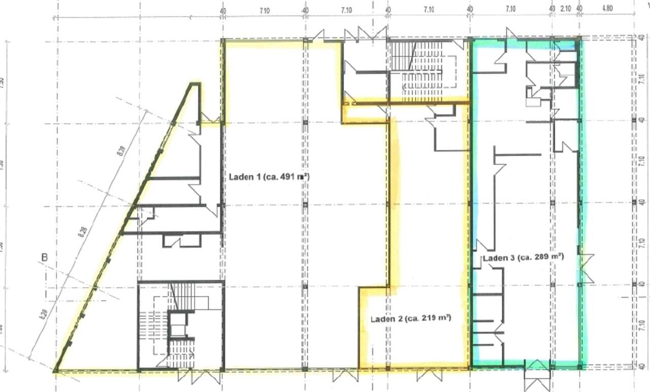
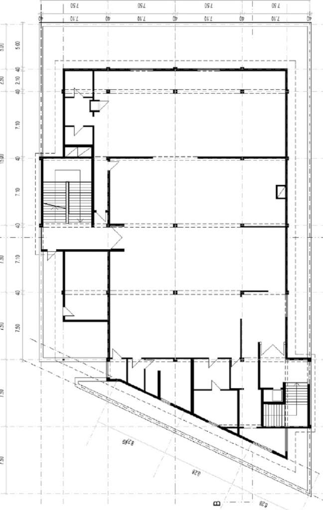
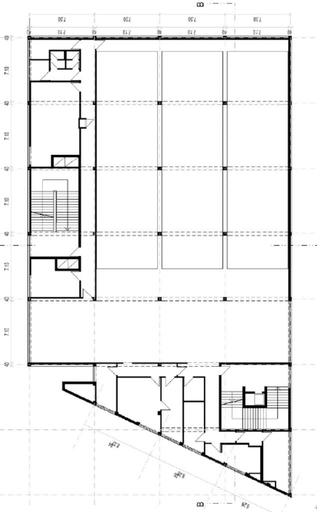
Das angebotsgegenständliche Entwicklungsobjekt über 3 Etagen wurde 2000 neu erbaut und ist aktuell teilvermietet. Es bietet sich hier eine Umstrukturierung zum Gewerbe - oder Eigennutzerobjekt an. Es stehen im EG ca. 700m² und im 1. und 2. OG ca. 2000m² zur Verfügung. Die Sollmiete wird nach der Investition bei € 10,00/m² eingeschätzt.
Lage
Das Objekt liegt in einem Gewerbegebiet / Einkaufszentrum in direkter Randlage zu Berlin.
Sonstiges
Haftungsausschluss: Trotz sorgfältiger Bearbeitung von Daten, Bildern und Informationen übernehmen wir keine Haftung für die Richtigkeit der Angaben, ebenso wenig für die Lieferfähigkeit des Angebotes bei Vermietung bzw. Verkauf. Bitte beachten Sie hierzu unsere allgemeinen Geschäftsbedingungen die Sie unter www.der-immo-tip.de einsehen können.
Energieeffizienz
| Energieausweistyp: | Verbrauchsausweis |
| Denkmalschutz: | Nein |
Kontakt
Michael Hoffmann
Jakobikirchplatz 2
01069 Dresden
E-Mail:hoffmann@der-immo-tip.de
Telefon:004937123871060
Jakobikirchplatz 2
01069 Dresden
E-Mail:hoffmann@der-immo-tip.de
Telefon:004937123871060

Objekt anfragen
while(allpics.length > 0){
allpics.pop();
}
var objnummer ="59150";var pic0 = new Image();pic0.src = 'uploads/pics/immo/1/4ffb098d-f141-4931-9a22-686ffa883371.jpg';
allpics.push('uploads/pics/immo/1/4ffb098d-f141-4931-9a22-686ffa883371.jpg');
var pic1 = new Image();pic1.src = 'uploads/pics/immo/1/e0c19482-67f1-4617-946b-e61c90847fac.jpg';
allpics.push('uploads/pics/immo/1/e0c19482-67f1-4617-946b-e61c90847fac.jpg');
var pic2 = new Image();pic2.src = 'uploads/pics/immo/1/67d4d19b-40e5-46ce-abff-ea3c99fe1fe2.jpg';
allpics.push('uploads/pics/immo/1/67d4d19b-40e5-46ce-abff-ea3c99fe1fe2.jpg');
var pic3 = new Image();pic3.src = 'uploads/pics/immo/1/6a5bc536-0d22-4cd0-9ef8-017fc01d1dcf.jpg';
allpics.push('uploads/pics/immo/1/6a5bc536-0d22-4cd0-9ef8-017fc01d1dcf.jpg');
var pic4 = new Image();pic4.src = 'uploads/pics/immo/1/34b0d4d4-8b05-47ba-8186-29a1be114379.jpg';
allpics.push('uploads/pics/immo/1/34b0d4d4-8b05-47ba-8186-29a1be114379.jpg');
var pic5 = new Image();pic5.src = 'uploads/pics/immo/1/bfb95b4f-a720-40b0-80a2-387c22f6fed1.jpg';
allpics.push('uploads/pics/immo/1/bfb95b4f-a720-40b0-80a2-387c22f6fed1.jpg');
var pic6 = new Image();pic6.src = 'uploads/pics/immo/1/49899d94-a0b8-4a01-b678-b4a729e2d970.jpg';
allpics.push('uploads/pics/immo/1/49899d94-a0b8-4a01-b678-b4a729e2d970.jpg');
var pic7 = new Image();pic7.src = 'uploads/pics/immo/1/2f89f7d4-a5b1-4927-9c45-d966d4802823.jpg';
allpics.push('uploads/pics/immo/1/2f89f7d4-a5b1-4927-9c45-d966d4802823.jpg');
var pic8 = new Image();pic8.src = 'uploads/pics/immo/1/92214a72-6884-41f8-9844-ccdbede9a0cd.jpg';
allpics.push('uploads/pics/immo/1/92214a72-6884-41f8-9844-ccdbede9a0cd.jpg');
var pic9 = new Image();pic9.src = 'uploads/pics/immo/1/89d68406-c803-47e0-bfdf-a063a06f6508.jpg';
allpics.push('uploads/pics/immo/1/89d68406-c803-47e0-bfdf-a063a06f6508.jpg');
var pic10 = new Image();pic10.src = 'uploads/pics/immo/1/98ce25ef-0505-4520-a8e7-9f69ce025377.jpg';
allpics.push('uploads/pics/immo/1/98ce25ef-0505-4520-a8e7-9f69ce025377.jpg');
Weitere Objekte zu Ihrer Suche
Kontakt
Telefonkontakt
| Immobilienmakler | |
| Dresden: | 0351 433 130 |
| Leipzig: | 0341 600 539 90 |
| Chemnitz: | 0371 238 710 600 |
| Hausverwaltung | |
| Dresden: | 0351 213 914 60 |
| Mietersprechzeiten | |
| Montag: | 09:00 - 12:00 Uhr 13:00 - 17:00 Uhr |
| Mittwoch: | 09:00 - 12:00 Uhr |
| Donnerstag: | 09:00 - 12:00 Uhr 13:00 - 15:30 Uhr |













