Einfamilienhaus im Bungalowstil in Ullersdorf zum Kauf | sanierungsbedürftig | mit Entwurfsplanung
Eckdaten
| Objekt-ID: | 66032 |
| Lage: | 01454 Radeberg / Ullersdorf bei Radeberg |
| Immobilienart: | Einfamilienhaus |
| Zimmer: | 6 |
| Grundstücksfläche: | ca. 540 m² |
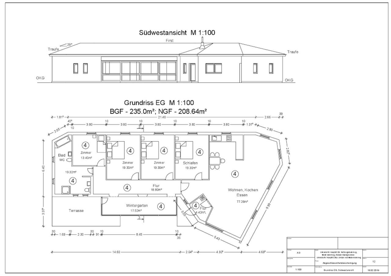
| Wohnfläche: | ca. 203 m² |
| Gesamtfläche: | ca. 203 m² |
| Kaufpreis: | 230.000,00 € |
| Käuferprovision: | 3,57 % inkl. MwSt. |
Beschreibung
Zum Verkauf steht ein aktuell sanierungsbedürftiges und vollständig entkerntes Einfamilienhaus im Bungaloswstil, mit einer Gesamtnutzfläche von ca. 203 m². Die Immobilie befindet sich auf einem noch unvermessenen Grundstücksanteil von ca. 540 m². Sie haben somit die Möglichkeit, sich nach Ihren Vorstellungen Ihre Traumimmobilie zu erschaffen und sich frei zu entfalten.
Seitens der Verkäuferseite liegen verschiedene Entwurfsplanungen vor. Bei Interesse kann die Immobilie auch vollständig saniert erworben werden - auch die Möglichkeit von 2 Eigentumswohnungen mit ca. 99 m² bzw. 87 m² ist vorhanden. Die Kaufpreise würden sich folgendermaßen gestalten:
- Einfamilienhaus mit ca. 203 m² - 726.500,00 € inkl. 2 Außenstellplätze
- Wohnung 1 mit ca. 87 m² - 350.000,00 € inkl. 1 Außenstellplatz
- Wohnung 2 mit ca. 99 m² - 392.630,00 € inkl. 1 Außenstellplatz
Bei Sonderwünschen kann sich der Kaufpreis entsprechend verändern.
Sie haben Interesse an diesem Immobilienangebot? Dann stimmen wir gern einen Besichtigungstermin ab.
Weitere interessante Angebote finden Sie unter www.der-immo-tip.de.
Seitens der Verkäuferseite liegen verschiedene Entwurfsplanungen vor. Bei Interesse kann die Immobilie auch vollständig saniert erworben werden - auch die Möglichkeit von 2 Eigentumswohnungen mit ca. 99 m² bzw. 87 m² ist vorhanden. Die Kaufpreise würden sich folgendermaßen gestalten:
- Einfamilienhaus mit ca. 203 m² - 726.500,00 € inkl. 2 Außenstellplätze
- Wohnung 1 mit ca. 87 m² - 350.000,00 € inkl. 1 Außenstellplatz
- Wohnung 2 mit ca. 99 m² - 392.630,00 € inkl. 1 Außenstellplatz
Bei Sonderwünschen kann sich der Kaufpreis entsprechend verändern.
Sie haben Interesse an diesem Immobilienangebot? Dann stimmen wir gern einen Besichtigungstermin ab.
Weitere interessante Angebote finden Sie unter www.der-immo-tip.de.
Lage
Die Immobilie befindet sich in Radeberg, im Ortsteil Ullersdorf, nahe der Dresdner Heide.
Ullersdorf ist ein malerischer Ortsteil von Radeberg und liegt in der reizvollen Umgebung südlich von Dresden. Diese Region besticht durch ihre naturnahe Lage mit Wäldern, Feldern und sanften Hügeln. Ullersdorf bietet eine erholsame und idyllische Atmosphäre und ist dennoch verkehrstechnisch gut angebunden an die nahe gelegene Stadt Dresden sowie die umliegenden Ortschaften.
Ullersdorf verfügt über eine gute Infrastruktur. Mit dem Auto erreicht man das Zentrum von Dresden in etwa 20 Minuten. Auch mit den öffentlichen Verkehrsmitteln ist Ullersdorf gut erreichbar. Busse verbinden den Ort mit Radeberg und Dresden. Die Autobahn A4 ist schnell erreichbar und bietet eine gute Anbindung an das regionale und überregionale Straßennetz.
Für Naturliebhaber und Aktivurlauber ist Ullersdorf ein attraktiver Wohnort. Die Umgebung lädt zu Spaziergängen, Wanderungen und Fahrradtouren ein. Der nahegelegene Radeberger Stadtwald und die umliegenden Naturparks bieten vielfältige Möglichkeiten zur Erholung und Entspannung im Grünen. In Radeberg gibt es zudem ein Freibad und andere Freizeiteinrichtungen.
Ullersdorf ist ein malerischer Ortsteil von Radeberg und liegt in der reizvollen Umgebung südlich von Dresden. Diese Region besticht durch ihre naturnahe Lage mit Wäldern, Feldern und sanften Hügeln. Ullersdorf bietet eine erholsame und idyllische Atmosphäre und ist dennoch verkehrstechnisch gut angebunden an die nahe gelegene Stadt Dresden sowie die umliegenden Ortschaften.
Ullersdorf verfügt über eine gute Infrastruktur. Mit dem Auto erreicht man das Zentrum von Dresden in etwa 20 Minuten. Auch mit den öffentlichen Verkehrsmitteln ist Ullersdorf gut erreichbar. Busse verbinden den Ort mit Radeberg und Dresden. Die Autobahn A4 ist schnell erreichbar und bietet eine gute Anbindung an das regionale und überregionale Straßennetz.
Für Naturliebhaber und Aktivurlauber ist Ullersdorf ein attraktiver Wohnort. Die Umgebung lädt zu Spaziergängen, Wanderungen und Fahrradtouren ein. Der nahegelegene Radeberger Stadtwald und die umliegenden Naturparks bieten vielfältige Möglichkeiten zur Erholung und Entspannung im Grünen. In Radeberg gibt es zudem ein Freibad und andere Freizeiteinrichtungen.
Ausstattungsbeschreibung
* sanierungsbedürftig
* Entwurfsplanung vorhanden
* eine Ebene
* Entwurfsplanung vorhanden
* eine Ebene
Sonstiges
Hinweis: Fehlende Angaben zum Energieausweis gemäß Energiesparverordnung 2014 ( EnEV ) begründen sich durch Nichtangabepflicht bei Denkmalschutzobjekten, Grundstücken, nichtbeheizbaren Immobilien oder wurden bisher trotz Aufforderung gegenüber dem Auftraggeber nicht zur Verfügung gestellt.
Haftungsausschluss: Trotz sorgfältiger Bearbeitung von Daten, Bildern und Informationen übernehmen wir keine Haftung für die Richtigkeit der Angaben, ebenso wenig für die Lieferfähigkeit des Angebotes bei Vermietung bzw. Verkauf. Bitte beachten Sie hierzu unsere allgemeinen Geschäftsbedingungen die Sie unter www.der-immo-tip.de einsehen können.
Haftungsausschluss: Trotz sorgfältiger Bearbeitung von Daten, Bildern und Informationen übernehmen wir keine Haftung für die Richtigkeit der Angaben, ebenso wenig für die Lieferfähigkeit des Angebotes bei Vermietung bzw. Verkauf. Bitte beachten Sie hierzu unsere allgemeinen Geschäftsbedingungen die Sie unter www.der-immo-tip.de einsehen können.
Energieeffizienz
| Heizungsart: | Heizungsart |
| Denkmalschutz: | Nein |
Kontakt

Objekt anfragen
while(allpics.length > 0){
allpics.pop();
}
var objnummer ="66032";var pic0 = new Image();pic0.src = 'uploads/pics/immo/1/_processed_/e/b/csm_254432bb-5c26-4310-a2ab-6e2baa28ddaf_a5341ea0a6.jpg';
allpics.push('uploads/pics/immo/1/_processed_/e/b/csm_254432bb-5c26-4310-a2ab-6e2baa28ddaf_a5341ea0a6.jpg');
var pic1 = new Image();pic1.src = 'uploads/pics/immo/1/_processed_/e/2/csm_9813a58f-3448-4eac-9b79-f5b287509405_0f5f0f387b.jpg';
allpics.push('uploads/pics/immo/1/_processed_/e/2/csm_9813a58f-3448-4eac-9b79-f5b287509405_0f5f0f387b.jpg');
var pic2 = new Image();pic2.src = 'uploads/pics/immo/1/_processed_/e/f/csm_b7ebb6bd-dfe2-4164-8a68-d827d5a7a266_53cc96067b.jpg';
allpics.push('uploads/pics/immo/1/_processed_/e/f/csm_b7ebb6bd-dfe2-4164-8a68-d827d5a7a266_53cc96067b.jpg');
var pic3 = new Image();pic3.src = 'uploads/pics/immo/1/_processed_/1/8/csm_61d5d8e2-007d-4308-92a8-c5962a020520_77e080b3ba.jpg';
allpics.push('uploads/pics/immo/1/_processed_/1/8/csm_61d5d8e2-007d-4308-92a8-c5962a020520_77e080b3ba.jpg');
var pic4 = new Image();pic4.src = 'uploads/pics/immo/1/_processed_/c/b/csm_930bac3d-050d-49ff-bfef-d9118432620a_a1e56779c9.jpg';
allpics.push('uploads/pics/immo/1/_processed_/c/b/csm_930bac3d-050d-49ff-bfef-d9118432620a_a1e56779c9.jpg');
Weitere Objekte zu Ihrer Suche
Zwei Sanierungsobjekte in ruhiger Lage von Dresden zum Kauf | Denkmalgeschützter Bauernhof + ehem. Gasthof
Helle 2-Zimmer-Wohnung in Kleinschachwitz | Eigennutzung oder Kapitalanlage | Balkon & TG-Stellplatz
Lager- und Produktionsflächen direkt an der S177 und S81 - unweit der Halbleiterindustrie - zum Kauf!
Zur Vermietung oder Selbstnutzung - Immobilienpaket nahe Dresden | 14 Gewerbeeinheiten & 21 TG Stellplätze in Coswig zum Kauf
Helle 2-Zimmer-Wohnung in Kleinschachwitz | Eigennutzung oder Kapitalanlage | Balkon & TG-Stellplatz
Erbbaurecht | 7.440 m² Lager-& Produktionsfläche mit Gleisanbindung und im Hafen in Dresden Friedrichstadt
Zur Vermietung oder Selbstnutzung - Immobilienpaket nahe Dresden | 14 Gewerbeeinheiten & 21 TG Stellplätze in Coswig zum Kauf
Kontakt
Telefonkontakt
| Immobilienmakler | |
| Dresden: | 0351 433 130 |
| Leipzig: | 0341 600 539 90 |
| Chemnitz: | 0371 238 710 600 |
| Hausverwaltung | |
| Dresden: | 0351 213 914 60 |
| Mietersprechzeiten | |
| Montag: | 09:00 - 12:00 Uhr 13:00 - 17:00 Uhr |
| Mittwoch: | 09:00 - 12:00 Uhr |
| Donnerstag: | 09:00 - 12:00 Uhr 13:00 - 15:30 Uhr |





















































































































































































































































































































































































































































































































































































































































































