Dresden Zentrum | Idealer Standort für Ihr neues Büro!
Eckdaten
| Objekt-ID: | 14582_04 |
| Lage: | 01067 Dresden |
| Immobilienart: | Bürofläche |
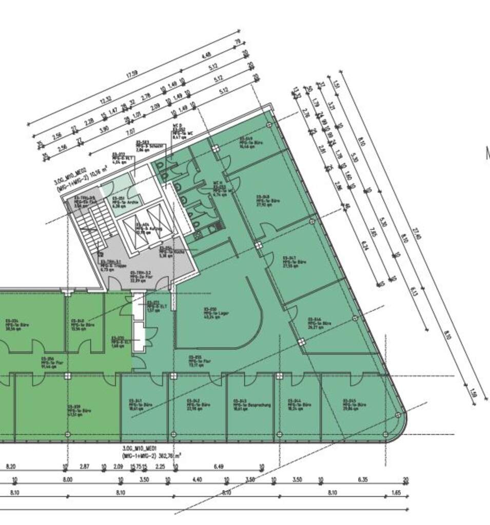
| Bürofläche: | ca. 341 m² |
| Gesamtfläche: | ca. 365 m² |
| Baujahr: | 1996 |
| Nettokaltmiete/m²/Monat: | 10,00 € |
| Nebenkosten/m²/Monat: | 1.276,49 € |
Beschreibung
Zur Vermietung steht eine ca. 340 m² große Bürofläche, die sich im 3. Obergeschoss eines Geschäftshauses befindet. Die Gesamtmietfläche inkl. Nebenflächen beträgt ca. 364 m².
Der Bürokomplex mit ca. 1.250 m² Ladenfläche und ca. 8.100 m² Bürofläche befindet sich nahe der Dresdner Innenstadt und den Elbwiesen. Ein Teil des Gebäudeareals wird als Hotel genutzt.
Bei Interesse erhalten Sie gern weiterführende Informationen/ Unterlagen.
Der Bürokomplex mit ca. 1.250 m² Ladenfläche und ca. 8.100 m² Bürofläche befindet sich nahe der Dresdner Innenstadt und den Elbwiesen. Ein Teil des Gebäudeareals wird als Hotel genutzt.
Bei Interesse erhalten Sie gern weiterführende Informationen/ Unterlagen.
Lage
* innerhalb des 26er Rings
* Stadtteil Dresden Wilsdruffer Vorstadt
* direkt an stark befahrener Hauptstraße
* gute Anbindung an ÖPNV & Nahverkehr
* nahe Bahnhof Mitte und Hauptbahnhof
* weitere Geschäfte im Umfeld
Die Immobilie liegt im Ortsamtsbereich Altstadt zu dem die Stadtteile Innere Altstadt, Wilsdruffer Vorstadt, Seevorstadt, Pirnaische Vorstadt, Johannstadt, Friedrichstadt und Südvorstadt gehören. Das Stadtzentrum besticht neben dem historisch repräsentativen Stadtkern vor allem durch die sehr gute Anbindung zum ÖPNV, die Nähe zum Hauptbahnhof und den vielen Einkaufsmöglichkeiten sowie allen oberzentralen Funktionen der Landeshauptstadt. Damit ist Dresden-City einer der bedeutendsten Geschäftsstandorte in Ostdeutschland.
* Stadtteil Dresden Wilsdruffer Vorstadt
* direkt an stark befahrener Hauptstraße
* gute Anbindung an ÖPNV & Nahverkehr
* nahe Bahnhof Mitte und Hauptbahnhof
* weitere Geschäfte im Umfeld
Die Immobilie liegt im Ortsamtsbereich Altstadt zu dem die Stadtteile Innere Altstadt, Wilsdruffer Vorstadt, Seevorstadt, Pirnaische Vorstadt, Johannstadt, Friedrichstadt und Südvorstadt gehören. Das Stadtzentrum besticht neben dem historisch repräsentativen Stadtkern vor allem durch die sehr gute Anbindung zum ÖPNV, die Nähe zum Hauptbahnhof und den vielen Einkaufsmöglichkeiten sowie allen oberzentralen Funktionen der Landeshauptstadt. Damit ist Dresden-City einer der bedeutendsten Geschäftsstandorte in Ostdeutschland.
Ausstattungsbeschreibung
* getrennter Sanitärbereich
* Teeküche
* außenliegender Sonnenschutz
* Aufzug
* helle Räume
* barrierefreier Zugang
* Stellplätze in der Tiefgarage
* Teeküche
* außenliegender Sonnenschutz
* Aufzug
* helle Räume
* barrierefreier Zugang
* Stellplätze in der Tiefgarage
Sonstiges
Haftungsausschluss: Trotz sorgfältiger Bearbeitung von Daten, Bildern und Informationen übernehmen wir keine Haftung für die Richtigkeit der Angaben, ebenso wenig für die Lieferfähigkeit des Angebotes bei Vermietung bzw. Verkauf. Bitte beachten Sie hierzu unsere allgemeinen Geschäftsbedingungen die Sie unter www.der-immo-tip.de einsehen können.
Energieeffizienz
| Energieausweistyp: | Verbrauchsausweis |
| Denkmalschutz: | Nein |
Kontakt

Objekt anfragen
while(allpics.length > 0){
allpics.pop();
}
var objnummer ="14582_04";var pic0 = new Image();pic0.src = 'uploads/pics/immo/1/_processed_/d/e/csm__487749_c4f2b9bfb5.jpg';
allpics.push('uploads/pics/immo/1/_processed_/d/e/csm__487749_c4f2b9bfb5.jpg');
var pic1 = new Image();pic1.src = 'uploads/pics/immo/1/_processed_/c/b/csm__487781_4ae86b27f1.jpg';
allpics.push('uploads/pics/immo/1/_processed_/c/b/csm__487781_4ae86b27f1.jpg');
var pic2 = new Image();pic2.src = 'uploads/pics/immo/1/_processed_/8/9/csm__487751_3ef14b0979.jpg';
allpics.push('uploads/pics/immo/1/_processed_/8/9/csm__487751_3ef14b0979.jpg');
var pic3 = new Image();pic3.src = 'uploads/pics/immo/1/_processed_/f/5/csm_d8d8f3ec-f92f-467c-82e0-23e0fdf04005_eb3973a301.jpg';
allpics.push('uploads/pics/immo/1/_processed_/f/5/csm_d8d8f3ec-f92f-467c-82e0-23e0fdf04005_eb3973a301.jpg');
Weitere Objekte zu Ihrer Suche
Lager- und Produktionsflächen direkt an der S177 und S81 - unweit der Halbleiterindustrie - zum Kauf!
Helle 2-Zimmer-Wohnung in Kleinschachwitz | Eigennutzung oder Kapitalanlage | Balkon & TG-Stellplatz
Erbbaurecht | 7.440 m² Lager-& Produktionsfläche mit Gleisanbindung und im Hafen in Dresden Friedrichstadt
Zur Vermietung oder Selbstnutzung - Immobilienpaket nahe Dresden | 14 Gewerbeeinheiten & 21 TG Stellplätze in Coswig zum Kauf
Helle 2-Zimmer-Wohnung in Kleinschachwitz | Eigennutzung oder Kapitalanlage | Balkon & TG-Stellplatz
Zur Vermietung oder Selbstnutzung - Immobilienpaket nahe Dresden | 14 Gewerbeeinheiten & 21 TG Stellplätze in Coswig zum Kauf
Zwei Sanierungsobjekte in ruhiger Lage von Dresden zum Kauf | Denkmalgeschützter Bauernhof + ehem. Gasthof
Kontakt
Telefonkontakt
| Immobilienmakler | |
| Dresden: | 0351 433 130 |
| Leipzig: | 0341 600 539 90 |
| Chemnitz: | 0371 238 710 600 |
| Hausverwaltung | |
| Dresden: | 0351 213 914 60 |
| Mietersprechzeiten | |
| Montag: | 09:00 - 12:00 Uhr 13:00 - 17:00 Uhr |
| Mittwoch: | 09:00 - 12:00 Uhr |
| Donnerstag: | 09:00 - 12:00 Uhr 13:00 - 15:30 Uhr |



















































































































































































































































































































































































































































































































































































































































































