Dresden Stadtzentrum | Zentrale Lage | Moderne Bürofläche zur Miete!
Eckdaten
| Objekt-ID: | 6560_06 |
| Lage: | 01067 Dresden |
| Immobilienart: | Bürofläche |
| Etage: | 3 |
| Bürofläche: | ca. 120 m² |
| Gesamtfläche: | ca. 120 m² |
| Baujahr: | 2003 |
| Bezugstermin: | nach Vereinbarung |
| Nettokaltmiete/m²/Monat: | 14,00 € |
| Nebenkosten/m²/Monat: | 420,00 € |
Beschreibung
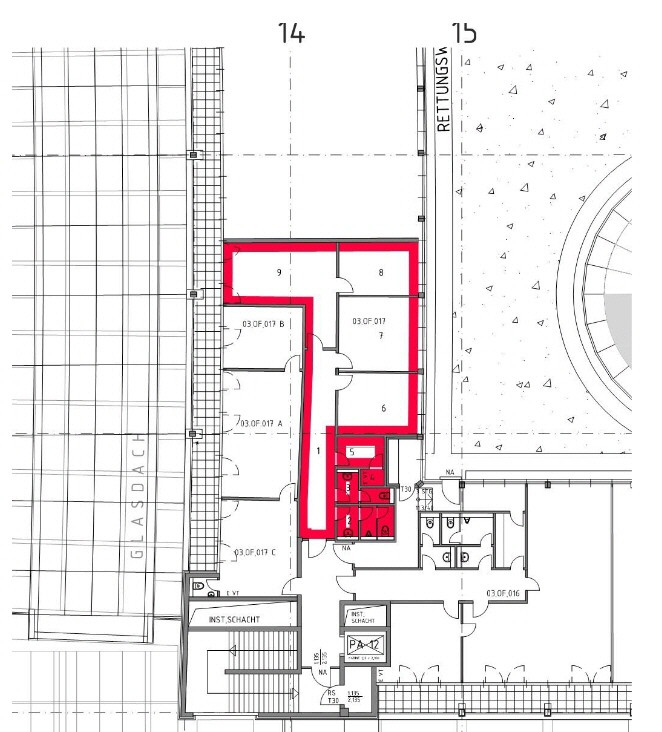
Zur Vermietung steht eine ca. 120 m² große Bürofläche, die sich im 3. Obergeschoss der Altmarkt-Galerie befindet. Die Altmarkt-Galerie ist eine der größten innerstädtischen Einkaufscenter Dresdens. In der hauseigenen Tiefgarage gibt es Parkmöglichkeiten
Die Mietfläche kann nach Mieterwunsch umgebaut werden. Der Mietzins passt sich dann entsprechend Umbauwünschen und Mietvertragslaufzeit an.
Bei Interesse stimmen wir gern einen Besichtigungstermin ab.
Die Mietfläche kann nach Mieterwunsch umgebaut werden. Der Mietzins passt sich dann entsprechend Umbauwünschen und Mietvertragslaufzeit an.
Bei Interesse stimmen wir gern einen Besichtigungstermin ab.
Lage
* befindet sich im Stadtzentrum von Dresden
* direkt am Altmarkt
* zahlreiche Einkaufsmöglichkeiten
* nahe historischen Sehenswürdigkeiten
* Haltepunkte des ÖPNV fußläufig
* ca. 7 Autominuten bis Hauptbahnhof
* ca. 14 Autominuten bis A4/ A17
* ca. 25 Autominuten zu Flughafen Dresden
* direkt am Altmarkt
* zahlreiche Einkaufsmöglichkeiten
* nahe historischen Sehenswürdigkeiten
* Haltepunkte des ÖPNV fußläufig
* ca. 7 Autominuten bis Hauptbahnhof
* ca. 14 Autominuten bis A4/ A17
* ca. 25 Autominuten zu Flughafen Dresden
Ausstattungsbeschreibung
* Aufzug
* getrennter Sanitärbereich
* helle Räume
* zentrale Be- und Entlüftungsanlage
* Tiefgarage
* getrennter Sanitärbereich
* helle Räume
* zentrale Be- und Entlüftungsanlage
* Tiefgarage
Sonstiges
Hinweis: Fehlende Angaben zum Energieausweis gemäß Energiesparverordnung 2014 ( EnEV ) begründen sich durch Nichtangabepflicht bei Denkmalschutzobjekten, Grundstücken, nichtbeheizbaren Immobilien oder wurden bisher trotz Aufforderung gegenüber dem Auftraggeber nicht zur Verfügung gestellt.
Haftungsausschluss: Trotz sorgfältiger Bearbeitung von Daten, Bildern und Informationen übernehmen wir keine Haftung für die Richtigkeit der Angaben, ebenso wenig für die Lieferfähigkeit des Angebotes bei Vermietung bzw. Verkauf. Bitte beachten Sie hierzu unsere allgemeinen Geschäftsbedingungen die Sie unter www.der-immo-tip.de einsehen können.
Haftungsausschluss: Trotz sorgfältiger Bearbeitung von Daten, Bildern und Informationen übernehmen wir keine Haftung für die Richtigkeit der Angaben, ebenso wenig für die Lieferfähigkeit des Angebotes bei Vermietung bzw. Verkauf. Bitte beachten Sie hierzu unsere allgemeinen Geschäftsbedingungen die Sie unter www.der-immo-tip.de einsehen können.
Kontakt

Objekt anfragen
while(allpics.length > 0){
allpics.pop();
}
var objnummer ="6560_06";var pic0 = new Image();pic0.src = 'uploads/pics/immo/1/_490769.jpg';
allpics.push('uploads/pics/immo/1/_490769.jpg');
var pic1 = new Image();pic1.src = 'uploads/pics/immo/1/_490771.jpg';
allpics.push('uploads/pics/immo/1/_490771.jpg');
var pic2 = new Image();pic2.src = 'uploads/pics/immo/1/_490773.jpg';
allpics.push('uploads/pics/immo/1/_490773.jpg');
var pic3 = new Image();pic3.src = 'uploads/pics/immo/1/_490775.jpg';
allpics.push('uploads/pics/immo/1/_490775.jpg');
Weitere Objekte zu Ihrer Suche
Lager- und Produktionsflächen direkt an der S177 und S81 - unweit der Halbleiterindustrie - zum Kauf!
Lager- und Produktionsflächen direkt an der S177 und S81 - unweit der Halbleiterindustrie - zum Kauf!
Zur Vermietung oder Selbstnutzung - Immobilienpaket nahe Dresden | 14 Gewerbeeinheiten & 21 TG Stellplätze in Coswig zum Kauf
Helle 2-Zimmer-Wohnung in Kleinschachwitz | Eigennutzung oder Kapitalanlage | Balkon & TG-Stellplatz
Helle 2-Zimmer-Wohnung in Kleinschachwitz | Eigennutzung oder Kapitalanlage | Balkon & TG-Stellplatz
Zwei Sanierungsobjekte in ruhiger Lage von Dresden zum Kauf | Denkmalgeschützter Bauernhof + ehem. Gasthof
Zur Vermietung oder Selbstnutzung - Immobilienpaket nahe Dresden | 14 Gewerbeeinheiten & 21 TG Stellplätze in Coswig zum Kauf
Kontakt
Telefonkontakt
| Immobilienmakler | |
| Dresden: | 0351 433 130 |
| Leipzig: | 0341 600 539 90 |
| Chemnitz: | 0371 238 710 600 |
| Hausverwaltung | |
| Dresden: | 0351 213 914 60 |
| Mietersprechzeiten | |
| Montag: | 09:00 - 12:00 Uhr 13:00 - 17:00 Uhr |
| Mittwoch: | 09:00 - 12:00 Uhr |
| Donnerstag: | 09:00 - 12:00 Uhr 13:00 - 15:30 Uhr |




















































































































































































































































































































































































































































































































































































































































































