Dresden Neustadt | Bis zu 9.120 m² Büro & Gewerbefläche in zentraler Lage mieten!
Eckdaten
| Objekt-ID: | 64591 |
| Lage: | 01097 Dresden |
| Immobilienart: | Bürofläche |
| Bürofläche: | ca. 9.120 m² |
| Gesamtfläche: | ca. 9.120 m² |
| Bezugstermin: | ab 2028 |
| Nettokaltmiete/m²: | 21,00 € |
| Nebenkosten: | 31.920,00 € |
| Sonstige Stellplätze: | 91 |
Beschreibung
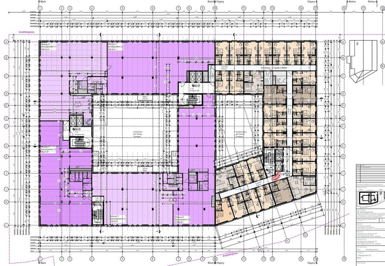
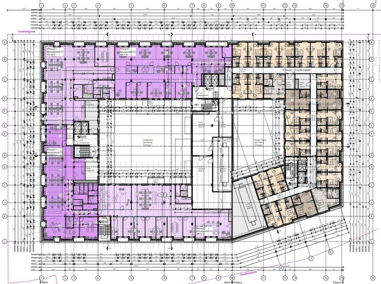
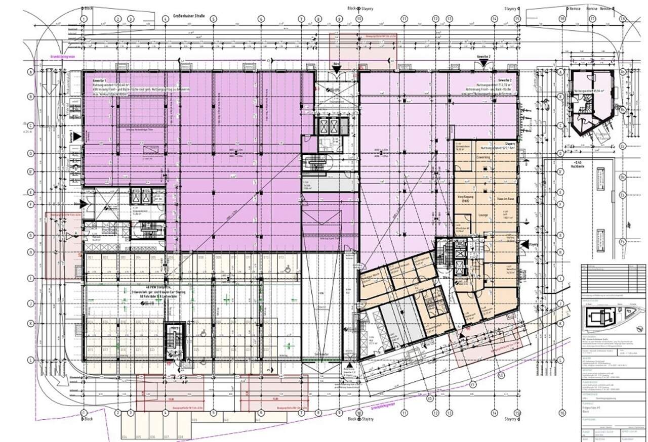
Zur Vermietung stehen bis zu 9.120 m² Büro- und Gewerbefläche verteilt auf 6 Vollgeschossen, die in einem neu errichteten Neubau "Neustädter Bogen", bestehend aus 2 Baukörpern entstehen. Die geplante Fertigstellung ist 2028 geplant. In der hauseigenen Tiefgarage werden 91 Tiefgaragenstellplätze realisiert und 7 oberirdische Car-Sharing - Stellplätze.
Im südlichen Grundstücksteil entsteht das Solitärgebäude mit ca. 3.380 m² Bürofläche, die bereits vermietet ist. Auf dem nördlichen Grundstücksteil entsteht ein Blockgebäude, das sich in die Nutzungsarten Serviced Apartments auf ca. 5.240 m² und Büro auf ca. 9.120 m² Mietfläche aufteilt. Im Erdgeschoss des Blockgebäudes befinden sich eine Handels- und eine Gewerbefläche mit zusammen ca. 1.890 m² Mietfläche. Die Fläche der Serviced Apartments sowie die Handelsfläche im Erdgeschoss sind bereits langfristig vermietet.
Der Kaltmietzins für die Gewerbeflächen beträgt ab 21,00 €/m² und für die Tiefgaragenstellplätze 100 € pro SP.
Es ist eine Mindestmietvertragslaufzeit von 15 Jahren gewünscht.
Bei Interesse stellen wir Ihnen gern weiterführende Unterlagen zur Verfügung.
Im südlichen Grundstücksteil entsteht das Solitärgebäude mit ca. 3.380 m² Bürofläche, die bereits vermietet ist. Auf dem nördlichen Grundstücksteil entsteht ein Blockgebäude, das sich in die Nutzungsarten Serviced Apartments auf ca. 5.240 m² und Büro auf ca. 9.120 m² Mietfläche aufteilt. Im Erdgeschoss des Blockgebäudes befinden sich eine Handels- und eine Gewerbefläche mit zusammen ca. 1.890 m² Mietfläche. Die Fläche der Serviced Apartments sowie die Handelsfläche im Erdgeschoss sind bereits langfristig vermietet.
Der Kaltmietzins für die Gewerbeflächen beträgt ab 21,00 €/m² und für die Tiefgaragenstellplätze 100 € pro SP.
Es ist eine Mindestmietvertragslaufzeit von 15 Jahren gewünscht.
Bei Interesse stellen wir Ihnen gern weiterführende Unterlagen zur Verfügung.
Lage
Der Neustädter Bogen besticht durch seine urbane Lage in der beliebten Dresdner Neustadt. Das Objekt entsteht direkt an einer frequentierten Ein- und Ausfallstraße, die die Dresdner Innenstadt mit der Bundesautobahn A4 verbindet. Die Lage an der hoch frequentierten Kreuzung überzeugt insbesondere durch die sehr gute Sichtbarkeit.
Die Nachbarschaft bietet ein breites Lebensmittel-, Gastronomie- und Freizeitangebot. Eine weitere Aufwertung des Standortes erfolgt durch die angrenzende Quartiersentwicklung Alter Bahnhof auf ca. 100.000 m². Die zentrale Lage überzeugt außerdem durch eine hervorragende Anbindung an den ÖPNV sowie an den überregionalen Bahnverkehr.
Dresden – die Landeshauptstadt Sachsens – ist mit mehr als 570.000 Einwohnern die zweitgrößte Stadt Sachsens sowie flächenmäßig die viertgrößte Stadt Deutschlands. Die sächsische Hauptstadt ist eine Kunst- und Kulturstadt von Weltrang und beeindruckt durch ihre über die Landesgrenzen hinaus bekannte barocke Architektur und vielfältige Kulturlandschaft. Sie zählt außerdem zu den wirtschaftlich stärksten Regionen Deutschlands und gilt als bedeutender Universitätsstandort. Aufgrund der überregionalen Bedeutung der Stadt ist Dresden ein hervorragender Investitionsstandort für viele in- und ausländische Unternehmen.
Optimale Infrastruktur: Anbindung an die Autobahnen A14 und A17 - ICE-Anbindung über gleich zwei Bahnhöfe
Attraktiver Investitionsstandort: Namhafte Unternehmen wie SAP, Bosch, Siemens AG, Elbe Flugzeugwerke und Volkswagen - Silicon Saxony - der Dresdner Norden wächst rasant, hier konzentrieren sich namhafte große Unternehmensansiedlungen wie Bosch, Samsung und Infineon
Keyfacts:
• Straßenbahnhaltestelle direkt vor dem Gebäude
• 4 Gehminuten zum Bahnhof Dresden-Neustadt – Anbindung an das überregionale ICE-Netz
• Direkte Anbindung an die Bundesautobahn A14
• 10 Fahrminuten bis zum Stadtzentrum
• 15 Gehminuten bis zum Regierungsviertel
Die Nachbarschaft bietet ein breites Lebensmittel-, Gastronomie- und Freizeitangebot. Eine weitere Aufwertung des Standortes erfolgt durch die angrenzende Quartiersentwicklung Alter Bahnhof auf ca. 100.000 m². Die zentrale Lage überzeugt außerdem durch eine hervorragende Anbindung an den ÖPNV sowie an den überregionalen Bahnverkehr.
Dresden – die Landeshauptstadt Sachsens – ist mit mehr als 570.000 Einwohnern die zweitgrößte Stadt Sachsens sowie flächenmäßig die viertgrößte Stadt Deutschlands. Die sächsische Hauptstadt ist eine Kunst- und Kulturstadt von Weltrang und beeindruckt durch ihre über die Landesgrenzen hinaus bekannte barocke Architektur und vielfältige Kulturlandschaft. Sie zählt außerdem zu den wirtschaftlich stärksten Regionen Deutschlands und gilt als bedeutender Universitätsstandort. Aufgrund der überregionalen Bedeutung der Stadt ist Dresden ein hervorragender Investitionsstandort für viele in- und ausländische Unternehmen.
Optimale Infrastruktur: Anbindung an die Autobahnen A14 und A17 - ICE-Anbindung über gleich zwei Bahnhöfe
Attraktiver Investitionsstandort: Namhafte Unternehmen wie SAP, Bosch, Siemens AG, Elbe Flugzeugwerke und Volkswagen - Silicon Saxony - der Dresdner Norden wächst rasant, hier konzentrieren sich namhafte große Unternehmensansiedlungen wie Bosch, Samsung und Infineon
Keyfacts:
• Straßenbahnhaltestelle direkt vor dem Gebäude
• 4 Gehminuten zum Bahnhof Dresden-Neustadt – Anbindung an das überregionale ICE-Netz
• Direkte Anbindung an die Bundesautobahn A14
• 10 Fahrminuten bis zum Stadtzentrum
• 15 Gehminuten bis zum Regierungsviertel
Ausstattungsbeschreibung
* DGNB Gold-Zertifizierung
* KfW 40-Standard
* Smart-Building-Konzept
* Begrünter Außenbereich
* Car-Sharing Station
* Barrierefreier Zugang zu allen Etagen
* Moderne Ausstattung und Smart-Building-Optionen
* 88 PKW-Stellplätze in der Tiefgarage mit Vorrüstung für E-Ladesäulen
* Car-Sharing-Stellplätze im Außenbereich
* Zahlreiche Fahrradstellplätze vorhanden
* Fernwärme, Wärmepumpe & Photovoltaikanlage
* Heizen & Kühlen über zentrale Lüftungsgeräte
* lichte Raumhöhe 3,10 m
* Bodenbeläge nach Mieterwunsch
* CAT 7 Verkabelung
* KfW 40-Standard
* Smart-Building-Konzept
* Begrünter Außenbereich
* Car-Sharing Station
* Barrierefreier Zugang zu allen Etagen
* Moderne Ausstattung und Smart-Building-Optionen
* 88 PKW-Stellplätze in der Tiefgarage mit Vorrüstung für E-Ladesäulen
* Car-Sharing-Stellplätze im Außenbereich
* Zahlreiche Fahrradstellplätze vorhanden
* Fernwärme, Wärmepumpe & Photovoltaikanlage
* Heizen & Kühlen über zentrale Lüftungsgeräte
* lichte Raumhöhe 3,10 m
* Bodenbeläge nach Mieterwunsch
* CAT 7 Verkabelung
Sonstiges
Haftungsausschluss: Trotz sorgfältiger Bearbeitung von Daten, Bildern und Informationen übernehmen wir keine Haftung für die Richtigkeit der Angaben, ebenso wenig für die Lieferfähigkeit des Angebotes bei Vermietung bzw. Verkauf. Bitte beachten Sie hierzu unsere allgemeinen Geschäftsbedingungen die Sie unter www.der-immo-tip.de einsehen können.
Energieeffizienz
| Energieausweistyp: | Bedarfsausweis |
| Denkmalschutz: | Nein |
Kontakt

Objekt anfragen
while(allpics.length > 0){
allpics.pop();
}
var objnummer ="64591";var pic0 = new Image();pic0.src = 'uploads/pics/immo/1/_processed_/b/f/csm_8643ff00-2efe-40cc-98b9-16479b1200fe_02c57fd3c3.jpg';
allpics.push('uploads/pics/immo/1/_processed_/b/f/csm_8643ff00-2efe-40cc-98b9-16479b1200fe_02c57fd3c3.jpg');
var pic1 = new Image();pic1.src = 'uploads/pics/immo/1/_processed_/8/6/csm_5499738a-d7c5-464d-96c4-237a14c3e91f_737ec1bd96.jpg';
allpics.push('uploads/pics/immo/1/_processed_/8/6/csm_5499738a-d7c5-464d-96c4-237a14c3e91f_737ec1bd96.jpg');
var pic2 = new Image();pic2.src = 'uploads/pics/immo/1/_processed_/4/1/csm_dc2feba2-ef52-4d00-b2c2-9ec93b26b84f_f03c3b1058.jpg';
allpics.push('uploads/pics/immo/1/_processed_/4/1/csm_dc2feba2-ef52-4d00-b2c2-9ec93b26b84f_f03c3b1058.jpg');
var pic3 = new Image();pic3.src = 'uploads/pics/immo/1/_processed_/4/6/csm_d35e6148-de1c-4105-a412-58562b32b623_d031be5998.jpg';
allpics.push('uploads/pics/immo/1/_processed_/4/6/csm_d35e6148-de1c-4105-a412-58562b32b623_d031be5998.jpg');
var pic4 = new Image();pic4.src = 'uploads/pics/immo/1/_processed_/c/e/csm_18e77d5b-d652-448f-9642-c98dd2618f0c_aef1941c7b.jpg';
allpics.push('uploads/pics/immo/1/_processed_/c/e/csm_18e77d5b-d652-448f-9642-c98dd2618f0c_aef1941c7b.jpg');
var pic5 = new Image();pic5.src = 'uploads/pics/immo/1/_processed_/4/a/csm_5899ed68-2980-4c87-95f9-53347a9046ca_92d8cdbb00.jpg';
allpics.push('uploads/pics/immo/1/_processed_/4/a/csm_5899ed68-2980-4c87-95f9-53347a9046ca_92d8cdbb00.jpg');
var pic6 = new Image();pic6.src = 'uploads/pics/immo/1/_processed_/5/e/csm_ebccc310-f98d-4c59-aeac-c928502571c4_b4017d4f1f.jpg';
allpics.push('uploads/pics/immo/1/_processed_/5/e/csm_ebccc310-f98d-4c59-aeac-c928502571c4_b4017d4f1f.jpg');
var pic7 = new Image();pic7.src = 'uploads/pics/immo/1/_processed_/b/2/csm_d0c516a0-d571-4703-b1eb-3bcc827304f1_d60ca6cc38.jpg';
allpics.push('uploads/pics/immo/1/_processed_/b/2/csm_d0c516a0-d571-4703-b1eb-3bcc827304f1_d60ca6cc38.jpg');
Weitere Objekte zu Ihrer Suche
Helle 2-Zimmer-Wohnung in Kleinschachwitz | Eigennutzung oder Kapitalanlage | Balkon & TG-Stellplatz
Lager- und Produktionsflächen direkt an der S177 und S81 - unweit der Halbleiterindustrie - zum Kauf!
Erbbaurecht | 7.440 m² Lager-& Produktionsfläche mit Gleisanbindung und im Hafen in Dresden Friedrichstadt
Lager- und Produktionsflächen direkt an der S177 und S81 - unweit der Halbleiterindustrie - zum Kauf!
Kontakt
Telefonkontakt
| Immobilienmakler | |
| Dresden: | 0351 433 130 |
| Leipzig: | 0341 600 539 90 |
| Chemnitz: | 0371 238 710 600 |
| Hausverwaltung | |
| Dresden: | 0351 213 914 60 |
| Mietersprechzeiten | |
| Montag: | 09:00 - 12:00 Uhr 13:00 - 17:00 Uhr |
| Mittwoch: | 09:00 - 12:00 Uhr |
| Donnerstag: | 09:00 - 12:00 Uhr 13:00 - 15:30 Uhr |








































































































































































































































































































































































































































































































































































































































































