Dresden Löbtau | ca. 400 m² Halle in Gewerbeareal zu Miete
Eckdaten
| Objekt-ID: | 66990 |
| Lage: | 01159 Dresden |
| Immobilienart: | Prod./ Lager / Gewerbehallen |
| Gesamtfläche: | ca. 406 m² |
| Baujahr: | 1900 |
| Bezugstermin: | ab sofort |
| Nettokaltmiete: | auf Anfrage |
Beschreibung
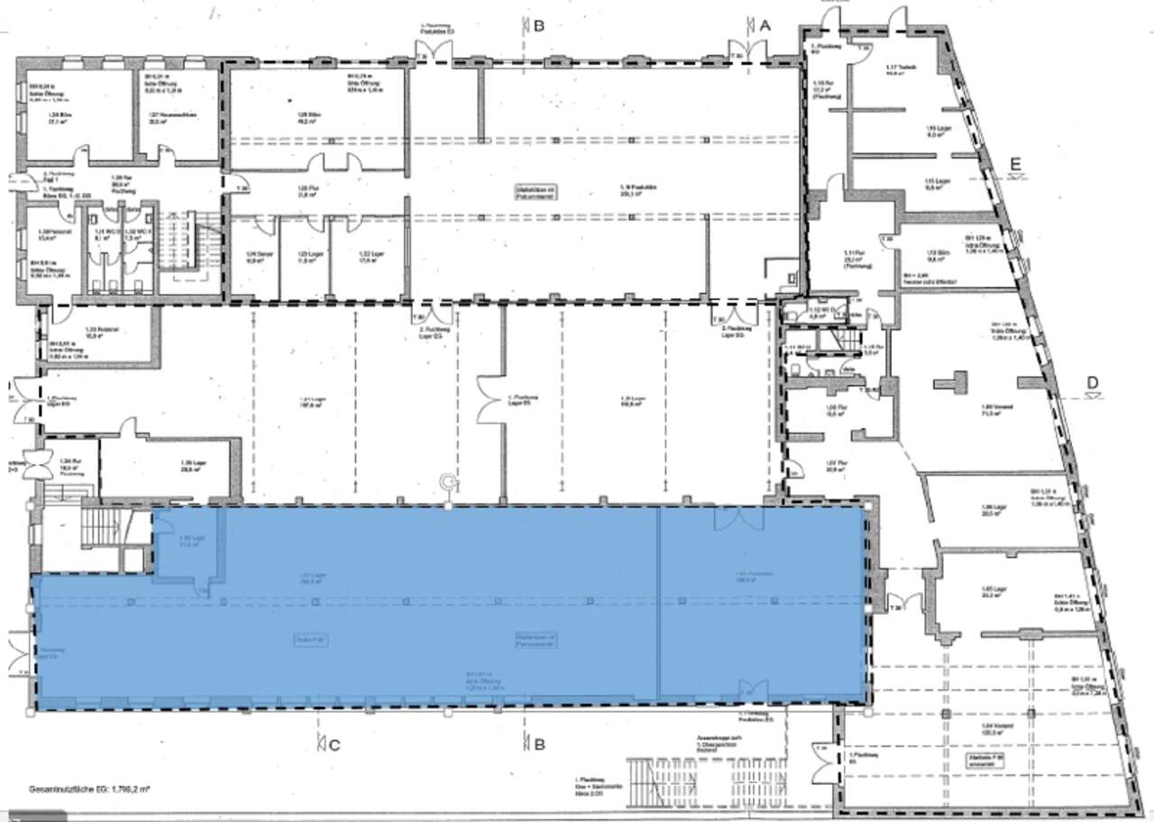
Zur Vermietung stehen ebenerdig anlieferbare Lager- und Produktionsflächen in Dresden-Löbtau. Die Flächen sind Teil eines Produktionsbetriebes und werden voraussichtlich ab Juni 2025 verfügbar sein.
Über eine doppelflüglige Tür gelangt man in die Einheit. Weitere Lager- und Produktionsflächen als auch moderne Büros können zusätzlich angemietet werden.
Über eine doppelflüglige Tür gelangt man in die Einheit. Weitere Lager- und Produktionsflächen als auch moderne Büros können zusätzlich angemietet werden.
Lage
Die Immobilie befindet sich in Dresden Löbtau.
Löbtau-Süd befindet sich südöstlich des Stadtzentrums von Dresden. Es wird im Norden von Löbtau-Nord, im Süden vom Stadtteil Nausslitz und im Osten vom Fluss Weißeritz begrenzt. Die Trennung zwischen Löbtau-Nord und Löbtau-Süd verläuft entlang der Kesselsdorfer Straße, welche zugleich die wichtigste Einkaufs- und Geschäftsstraße beider Stadtteile ist.
Mit zwei Straßenbahn- und 14 Bushaltestellen ist Löbtau-Süd gut an das öffentliche Verkehrsnetz angebunden. Drei Kindertagesstätten und Horteinrichtungen sowie jeweils eine Grund-, Mittel- und Berufsschule stehen als Bildungseinrichtungen direkt vor Ort zur Verfügung. Zur Freizeitgestaltung bieten sich Möglichkeiten in den zahlreichen Parkanlagen, im Kino, im Fitnessstudio an der Kesselsdorfer Straße und drei anderen Sporthallen.
Löbtau-Süd befindet sich südöstlich des Stadtzentrums von Dresden. Es wird im Norden von Löbtau-Nord, im Süden vom Stadtteil Nausslitz und im Osten vom Fluss Weißeritz begrenzt. Die Trennung zwischen Löbtau-Nord und Löbtau-Süd verläuft entlang der Kesselsdorfer Straße, welche zugleich die wichtigste Einkaufs- und Geschäftsstraße beider Stadtteile ist.
Mit zwei Straßenbahn- und 14 Bushaltestellen ist Löbtau-Süd gut an das öffentliche Verkehrsnetz angebunden. Drei Kindertagesstätten und Horteinrichtungen sowie jeweils eine Grund-, Mittel- und Berufsschule stehen als Bildungseinrichtungen direkt vor Ort zur Verfügung. Zur Freizeitgestaltung bieten sich Möglichkeiten in den zahlreichen Parkanlagen, im Kino, im Fitnessstudio an der Kesselsdorfer Straße und drei anderen Sporthallen.
Ausstattungsbeschreibung
- ebenerdige Anlieferung
- ebenerdig befahrbar
- Büros separat anmietbar
- Trafostation auf dem Areal vorhanden
- Glasfaser auf dem Gelände anliegend
- weitere Hallen können bei Bedarf angemietet werden
- Doppelflügiges Tor
- neue Holzfenster in 2024 eingebaut
- ebenerdig befahrbar
- Büros separat anmietbar
- Trafostation auf dem Areal vorhanden
- Glasfaser auf dem Gelände anliegend
- weitere Hallen können bei Bedarf angemietet werden
- Doppelflügiges Tor
- neue Holzfenster in 2024 eingebaut
Sonstiges
Hinweis: Fehlende Angaben zum Energieausweis gemäß Energiesparverordnung 2014 ( EnEV ) begründen sich durch Nichtangabepflicht bei Denkmalschutzobjekten, Grundstücken, nichtbeheizbaren Immobilien oder wurden bisher trotz Aufforderung gegenüber dem Auftraggeber nicht zur Verfügung gestellt.
Haftungsausschluss: Trotz sorgfältiger Bearbeitung von Daten, Bildern und Informationen übernehmen wir keine Haftung für die Richtigkeit der Angaben, ebenso wenig für die Lieferfähigkeit des Angebotes bei Vermietung bzw. Verkauf. Bitte beachten Sie hierzu unsere allgemeinen Geschäftsbedingungen die Sie unter www.der-immo-tip.de einsehen können.
Haftungsausschluss: Trotz sorgfältiger Bearbeitung von Daten, Bildern und Informationen übernehmen wir keine Haftung für die Richtigkeit der Angaben, ebenso wenig für die Lieferfähigkeit des Angebotes bei Vermietung bzw. Verkauf. Bitte beachten Sie hierzu unsere allgemeinen Geschäftsbedingungen die Sie unter www.der-immo-tip.de einsehen können.
Energieeffizienz
| Energieausweistyp: | Bedarfsausweis |
| Befeuerungsart: | Fernwärme |
| Stromwert: | 9.10 kWh/(m² a) |
| Wärmewert: | 173.50 kWh/(m² a) |
| Denkmalschutz: | Nein |
Kontakt
Robert Haupt
Semperstraße 1
01069 Dresden
E-Mail:haupt@der-immo-tip.de
Telefon:0351 433 13 0
Telefax:0351 433 13 18
Semperstraße 1
01069 Dresden
E-Mail:haupt@der-immo-tip.de
Telefon:0351 433 13 0
Telefax:0351 433 13 18

Objekt anfragen
while(allpics.length > 0){
allpics.pop();
}
var objnummer ="66990";var pic0 = new Image();pic0.src = 'uploads/pics/immo/1/_processed_/c/3/csm_66990-a_gebaeudeansicht_f28af2301e.jpg';
allpics.push('uploads/pics/immo/1/_processed_/c/3/csm_66990-a_gebaeudeansicht_f28af2301e.jpg');
var pic1 = new Image();pic1.src = 'uploads/pics/immo/1/_processed_/e/6/csm_66990-b1_aussenansicht_f3475e251f.jpg';
allpics.push('uploads/pics/immo/1/_processed_/e/6/csm_66990-b1_aussenansicht_f3475e251f.jpg');
var pic2 = new Image();pic2.src = 'uploads/pics/immo/1/_processed_/d/6/csm_66990-b2_innenansicht_cc9d8e53a5.jpg';
allpics.push('uploads/pics/immo/1/_processed_/d/6/csm_66990-b2_innenansicht_cc9d8e53a5.jpg');
var pic3 = new Image();pic3.src = 'uploads/pics/immo/1/_processed_/b/3/csm_66990-b3_innenansicht_af0ee2bdc6.jpg';
allpics.push('uploads/pics/immo/1/_processed_/b/3/csm_66990-b3_innenansicht_af0ee2bdc6.jpg');
var pic4 = new Image();pic4.src = 'uploads/pics/immo/1/_processed_/4/f/csm_66990-b4_innenansicht_c4791ad9cc.jpg';
allpics.push('uploads/pics/immo/1/_processed_/4/f/csm_66990-b4_innenansicht_c4791ad9cc.jpg');
var pic5 = new Image();pic5.src = 'uploads/pics/immo/1/_processed_/7/3/csm_66990-b5_innenansicht_5736646277.jpg';
allpics.push('uploads/pics/immo/1/_processed_/7/3/csm_66990-b5_innenansicht_5736646277.jpg');
var pic6 = new Image();pic6.src = 'uploads/pics/immo/1/_processed_/0/f/csm_66990-b9_grundriss_e3060b2e40.jpg';
allpics.push('uploads/pics/immo/1/_processed_/0/f/csm_66990-b9_grundriss_e3060b2e40.jpg');
Weitere Objekte zu Ihrer Suche
Lager- und Produktionsflächen direkt an der S177 und S81 - unweit der Halbleiterindustrie - zum Kauf!
Erbbaurecht | 7.440 m² Lager-& Produktionsfläche mit Gleisanbindung und im Hafen in Dresden Friedrichstadt
Kontakt
Telefonkontakt
| Immobilienmakler | |
| Dresden: | 0351 433 130 |
| Leipzig: | 0341 600 539 90 |
| Chemnitz: | 0371 238 710 600 |
| Rostock: | 0381 128 736 10 |
| Hausverwaltung | |
| Dresden: | 0351 213 914 60 |
| Mietersprechzeiten | |
| Montag: | 09:00 - 12:00 Uhr 13:00 - 17:00 Uhr |
| Mittwoch: | 09:00 - 12:00 Uhr |
| Donnerstag: | 09:00 - 12:00 Uhr 13:00 - 15:30 Uhr |






















































































































































































































































































































































































































































































