Dresden Laubegast | Kleine Ladenfläche ab sofort zur Miete
Eckdaten
| Objekt-ID: | 66314 |
| Lage: | 01279 Dresden |
| Immobilienart: | Ladenlokal |
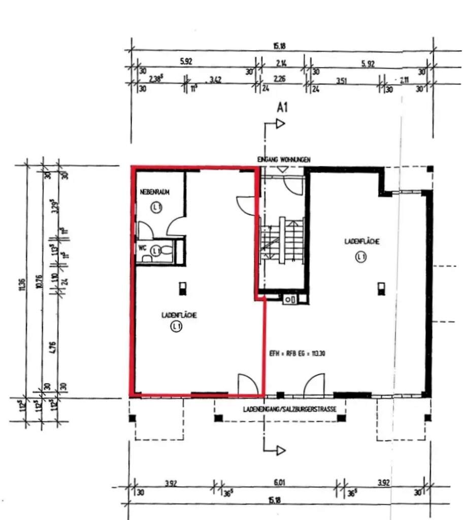
| Gesamtfläche: | ca. 67 m² |
| Baujahr: | 1990 |
| Bezugstermin: | ab sofort |
| Nettokaltmiete: | 665,00 € |
| Nettokaltmiete/m²: | 10,00 € |
| Nebenkosten: | 154,10 € |
Beschreibung
Zur Vermietung steht eine ca. 66,5 m² große Ladenflächen, die sich im Erdgeschoss eines gepflegten Wohn- und Geschäftsareals befindet. Das Objekt befindet sich in einem lebendigen Umfeld mit verschiedenen Dienstleistern und Einzelhändlern im Erdgeschoss, während die oberen Etagen als Wohnraum genutzt werden.
Die Fläche eignet sich ideal für unterschiedliche Nutzungen, darunter Einzelhandel, Büro oder Dienstleistungsangebote.
Für weitere Informationen oder eine Besichtigung stehen wir Ihnen gerne zur Verfügung.
Die Fläche eignet sich ideal für unterschiedliche Nutzungen, darunter Einzelhandel, Büro oder Dienstleistungsangebote.
Für weitere Informationen oder eine Besichtigung stehen wir Ihnen gerne zur Verfügung.
Lage
Die Immobilie befindet sich in Dresden Laubegast.
Einkaufsmöglichkeiten befinden sich im näheren Umfeld. Laubegast ist mit den Linien 4 und 6 der städtischen Straßenbahn, als auch mit der Buslinie 86 erreichbar. Mit dem PKW ist das Stadtzentrum in ca. 15 Minuten erreichbar und die A 17 in ca. 10 Minuten.
Dieser Stadtteil von Dresden zeichnet sich durch seine durchgründe ruhige Lage sowie der Nähe zur Elbe aus. Die Infrastruktur ist als sehr gut zu bezeichnen. Laubegast gehört zu den ruhigsten Wohngebieten der Stadt. Wie auch in anderen Ortsteilen Dresdens entlang der Elbe, hat auch Laubegast sich einen kleinstädtischen Charakter erhalten. Die Nähe zum Ufer der Elbe lädt zur Erholung ein. Auch für den aktiven Mieter bieten die anliegenden Radwege, welche sich von Meißen bis zur Sächsischen Schweiz erstrecken, genügend Möglichkeiten zur Freizeitgestaltung.
Einkaufsmöglichkeiten befinden sich im näheren Umfeld. Laubegast ist mit den Linien 4 und 6 der städtischen Straßenbahn, als auch mit der Buslinie 86 erreichbar. Mit dem PKW ist das Stadtzentrum in ca. 15 Minuten erreichbar und die A 17 in ca. 10 Minuten.
Dieser Stadtteil von Dresden zeichnet sich durch seine durchgründe ruhige Lage sowie der Nähe zur Elbe aus. Die Infrastruktur ist als sehr gut zu bezeichnen. Laubegast gehört zu den ruhigsten Wohngebieten der Stadt. Wie auch in anderen Ortsteilen Dresdens entlang der Elbe, hat auch Laubegast sich einen kleinstädtischen Charakter erhalten. Die Nähe zum Ufer der Elbe lädt zur Erholung ein. Auch für den aktiven Mieter bieten die anliegenden Radwege, welche sich von Meißen bis zur Sächsischen Schweiz erstrecken, genügend Möglichkeiten zur Freizeitgestaltung.
Ausstattungsbeschreibung
* ebenerdiger Zugang
* Werbemöglichkeiten vorhanden
* helles Raumklima
* Sanitäranlagen
* Werbemöglichkeiten vorhanden
* helles Raumklima
* Sanitäranlagen
Sonstiges
Hinweis: Fehlende Angaben zum Energieausweis gemäß Energiesparverordnung 2014 ( EnEV ) begründen sich durch Nichtangabepflicht bei Denkmalschutzobjekten, Grundstücken, nichtbeheizbaren Immobilien oder wurden bisher trotz Aufforderung gegenüber dem Auftraggeber nicht zur Verfügung gestellt.
Haftungsausschluss: Trotz sorgfältiger Bearbeitung von Daten, Bildern und Informationen übernehmen wir keine Haftung für die Richtigkeit der Angaben, ebenso wenig für die Lieferfähigkeit des Angebotes bei Vermietung bzw. Verkauf. Bitte beachten Sie hierzu unsere allgemeinen Geschäftsbedingungen die Sie unter www.der-immo-tip.de einsehen können.
Haftungsausschluss: Trotz sorgfältiger Bearbeitung von Daten, Bildern und Informationen übernehmen wir keine Haftung für die Richtigkeit der Angaben, ebenso wenig für die Lieferfähigkeit des Angebotes bei Vermietung bzw. Verkauf. Bitte beachten Sie hierzu unsere allgemeinen Geschäftsbedingungen die Sie unter www.der-immo-tip.de einsehen können.
Kontakt

Objekt anfragen
while(allpics.length > 0){
allpics.pop();
}
var objnummer ="66314";var pic0 = new Image();pic0.src = 'uploads/pics/immo/1/_processed_/7/5/csm_0810be84-ed07-4ca2-b81d-5cc918ece578_cc4e986c62.jpg';
allpics.push('uploads/pics/immo/1/_processed_/7/5/csm_0810be84-ed07-4ca2-b81d-5cc918ece578_cc4e986c62.jpg');
var pic1 = new Image();pic1.src = 'uploads/pics/immo/1/_processed_/d/b/csm_db3f0739-e183-46cc-b384-0648e4484d4d_ad391cf64b.jpg';
allpics.push('uploads/pics/immo/1/_processed_/d/b/csm_db3f0739-e183-46cc-b384-0648e4484d4d_ad391cf64b.jpg');
var pic2 = new Image();pic2.src = 'uploads/pics/immo/1/_processed_/4/5/csm_5f813376-af7c-472e-95a0-d5309b291c61_3f29f28c44.jpg';
allpics.push('uploads/pics/immo/1/_processed_/4/5/csm_5f813376-af7c-472e-95a0-d5309b291c61_3f29f28c44.jpg');
var pic3 = new Image();pic3.src = 'uploads/pics/immo/1/_processed_/1/7/csm_801f9116-9fc2-4650-b637-034a7e2a6366_561b83bc8b.jpg';
allpics.push('uploads/pics/immo/1/_processed_/1/7/csm_801f9116-9fc2-4650-b637-034a7e2a6366_561b83bc8b.jpg');
var pic4 = new Image();pic4.src = 'uploads/pics/immo/1/_processed_/9/4/csm_f8dbb2ea-5ac6-40d3-912f-36d67223869c_ce0273cbb2.jpg';
allpics.push('uploads/pics/immo/1/_processed_/9/4/csm_f8dbb2ea-5ac6-40d3-912f-36d67223869c_ce0273cbb2.jpg');
var pic5 = new Image();pic5.src = 'uploads/pics/immo/1/_processed_/8/8/csm_adfbf361-912d-49d3-8d05-03f54772652b_89de30eb8d.jpg';
allpics.push('uploads/pics/immo/1/_processed_/8/8/csm_adfbf361-912d-49d3-8d05-03f54772652b_89de30eb8d.jpg');
Weitere Objekte zu Ihrer Suche
Erbbaurecht | 7.440 m² Lager-& Produktionsfläche mit Gleisanbindung und im Hafen in Dresden Friedrichstadt
Lager- und Produktionsflächen direkt an der S177 und S81 - unweit der Halbleiterindustrie - zum Kauf!
Kontakt
Telefonkontakt
| Immobilienmakler | |
| Dresden: | 0351 433 130 |
| Leipzig: | 0341 600 539 90 |
| Chemnitz: | 0371 238 710 600 |
| Hausverwaltung | |
| Dresden: | 0351 213 914 60 |
| Mietersprechzeiten | |
| Montag: | 09:00 - 12:00 Uhr 13:00 - 17:00 Uhr |
| Mittwoch: | 09:00 - 12:00 Uhr |
| Donnerstag: | 09:00 - 12:00 Uhr 13:00 - 15:30 Uhr |



































































































































































































































































































































































































































































































































































































































